
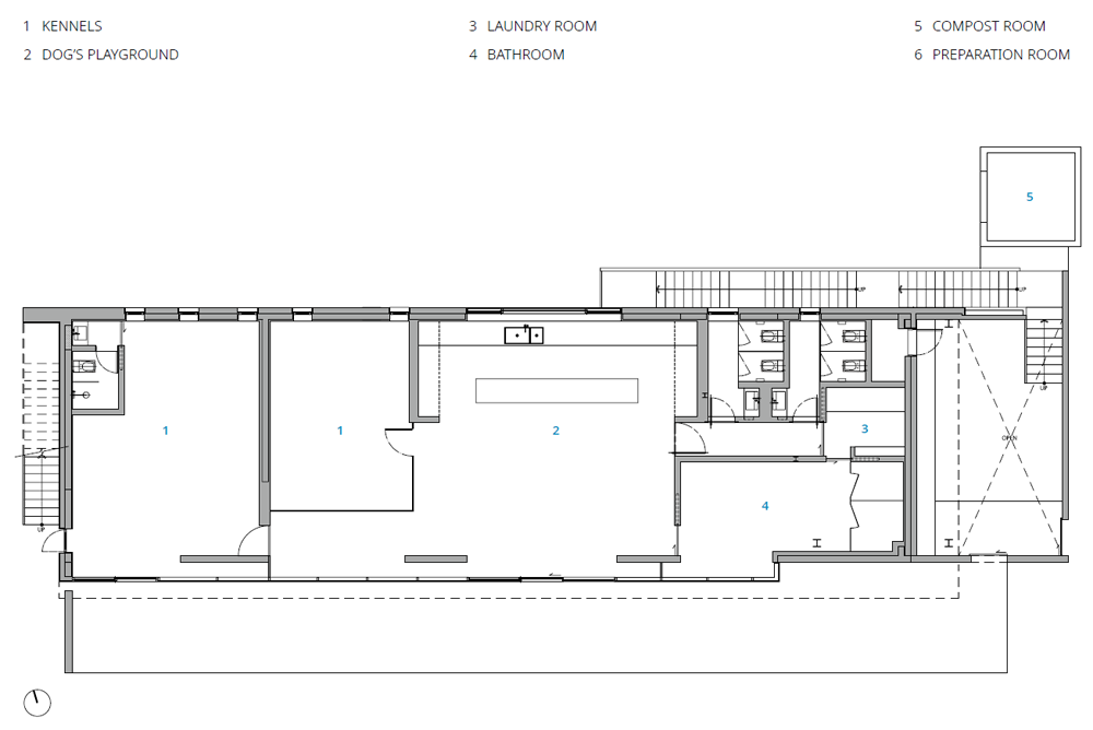
은빛 숲은 반려견을 위한 공간으로 기존 건물을 증축한 프로젝트다. 양평군 지평면 시내에서 멀지 않은 마을길을 따라 가면 숲과 맞닿은 땅이 나타난다. 이곳에 단정한 은빛 건축물이 지어졌다. 낮은 석축과 사람의 키만한 나무 담장이 주변의 짙은 신록과 어우러지면서 주변 풍경으로 건축물이 스며든다. 기존 건물은 다섯 개의 공간으로 구분되어 각 공간을 외부로만 이동해야 하는 불편한 구조였고, 부실한 시공으로 2층 지붕 방수가 제대로 되지 않아 1층 실내로 고인 물이 떨어지는 상황이었다. 기존 공간에서 부족한 부분을 최대한 빨리 보완하고 공사기간을 단축할 수 있도록 철골조로 시공되었다.
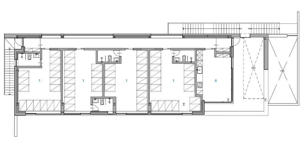
두 개의 층으로 구분된 공간은 외부 활동이 많은 반려견을 위해 층별로 각각 진입할 수 있도록 구성했다. 부족한 공간은 일부 증축했고, 대지의 경계에 나무 담장을 설치하여 주변의 시야에 간섭 없이 반려견의 산책과 교육 등 외부 활동을 즐길 수 있다. 실내는 운동 공간, 주방, 목욕실, 세탁실, 화장실 등의 공용 공간, 어린 강아지들과 임신한 반려견을 위한 공간으로 구성된다. 2층은 중정을 지나 외부 계단으로 접근할 수 있다. 주변 풍경이 파노라마로 들어오는 외부 테라스를 거쳐 실내로 들어가면 주방과 성견을 위한 네 개의 공간으로 구분되어 있다. 마감재는 유리, 콘크리트, 골강판, 목재의 네 가지 재료를 사용하여 층별 공간 구성과 기능을 직관적으로 구분할 수 있게 했다. 외부 활동이 많은 1층은 감시와 관리의 편의성을 고려하여 전체적으로 창으로 계획했고, 2층은 사람 눈높이에 맞춘 가로로 긴 창을 통해 채광과 주변 조망을 확보했다.












건축가 소을 건축사사무소 so-ul architects
위치 경기도 양평균 지평면 망미리
용도 동식물관련시설
대지면적 900.00㎡
건축면적 332.26㎡
연면적 477.52㎡
규모 지상 2층
건폐율 36.92%
용적률 52.86%
설계기간 2022. 9. - 2023. 2.
시공기간 2023. 2. - 2024. 8.
준공 2024. 8.
대표건축가 차대명
프로젝트건축가 차대명
디자인팀 차대명, 조진모
구조엔지니어 라임
기계엔지니어 익스플래닛
전기엔지니어 익스플래닛
사진작가 차대명
해당 프로젝트는 건축문화 2024년 10월호(Vol. 521)에 게재되었습니다.
The project was published in the October, 2024 recent projects of the magazine(Vol. 521).
October 2024 : vol. 521
Contents : COMPETITION : RECENT PROJECTSilver for Rest / so-ul architects은빛 숲 / 소을건축사사무소Ginkgo Gallery / MORE Architecture긴코 갤러리 / 모어 아키텍처The April House / YAYArchitects사월애가(四月愛家) / (주
anc.masilwide.com
'Architecture Project > Healthcare' 카테고리의 다른 글
| Centro de Sáude de Moreira de Cónegos (0) | 2024.10.30 |
|---|---|
| Villa B (0) | 2024.10.18 |
| Best Friend Animal Hospital (0) | 2024.05.02 |
| Blacktown Animal Rehoming Centre (0) | 2024.05.01 |
| Changwon Welfare Center (0) | 2024.04.24 |
마실와이드 | 등록번호 : 서울, 아03630 | 등록일자 : 2015년 03월 11일 | 마실와이드 | 발행ㆍ편집인 : 김명규 | 청소년보호책임자 : 최지희 | 발행소 : 서울시 마포구 월드컵로8길 45-8 1층 | 발행일자 : 매일



