
Timber Nest
팀버 네스트 캐빈은 해발 937m의 노르웨이 할란스피엘 산맥 깊은 곳, 뢰드베르그 마을 너머에 위치한 숙소이다. 이곳은 하르당에르비다 국립공원의 자연 경관을 감상할 수 있으며, 전통과 현대가 조화를 이루는 건축물로 설계되었다. 기존 식생을 보존하는 방식으로 배치하여 자연과의 공존을 실현하였다. 방문객은 차량을 도로에 주차한 뒤 자작나무 숲을 걸어 캐빈에 도달하게 되며, 이는 자연을 존중하는 건축 철학을 반영한 것이다.



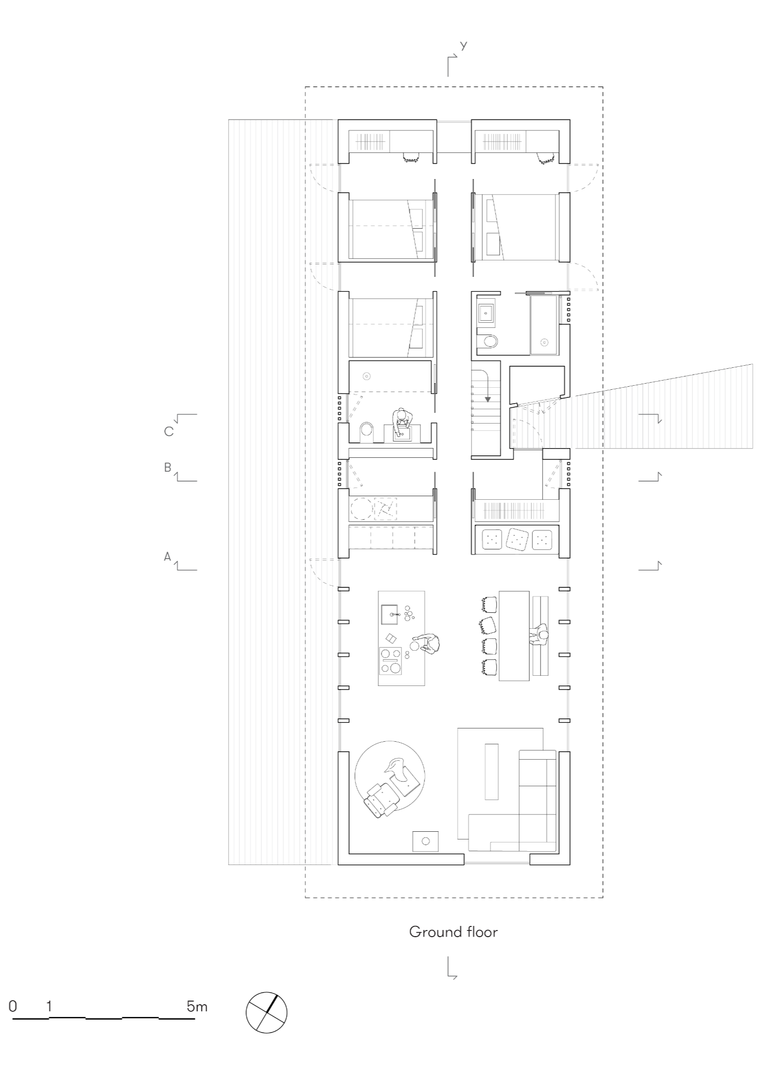
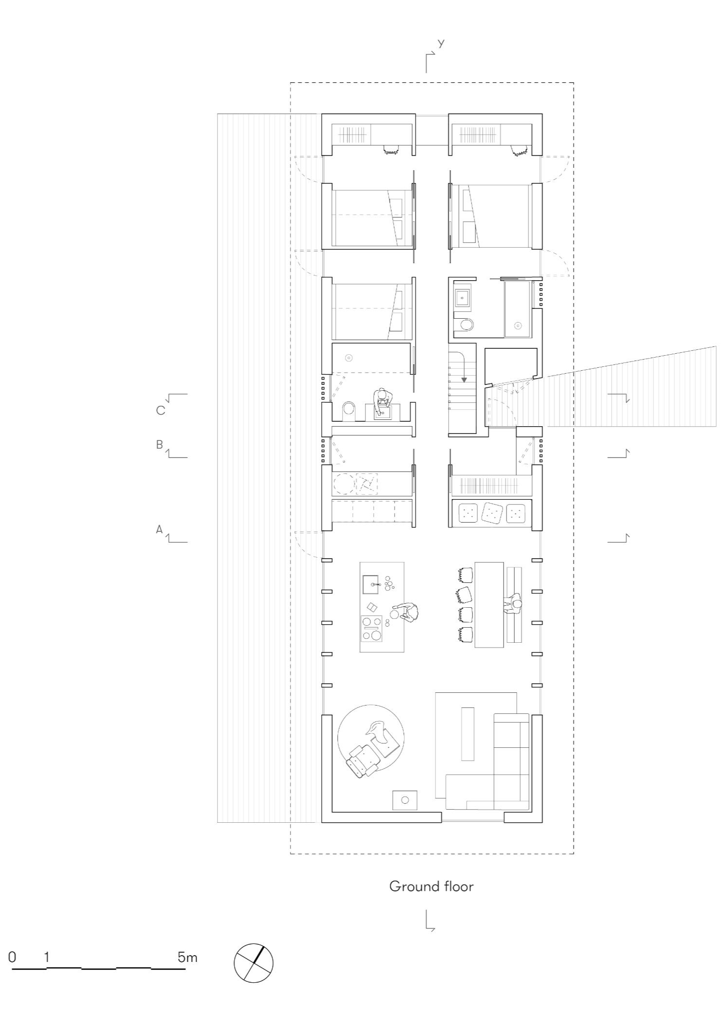
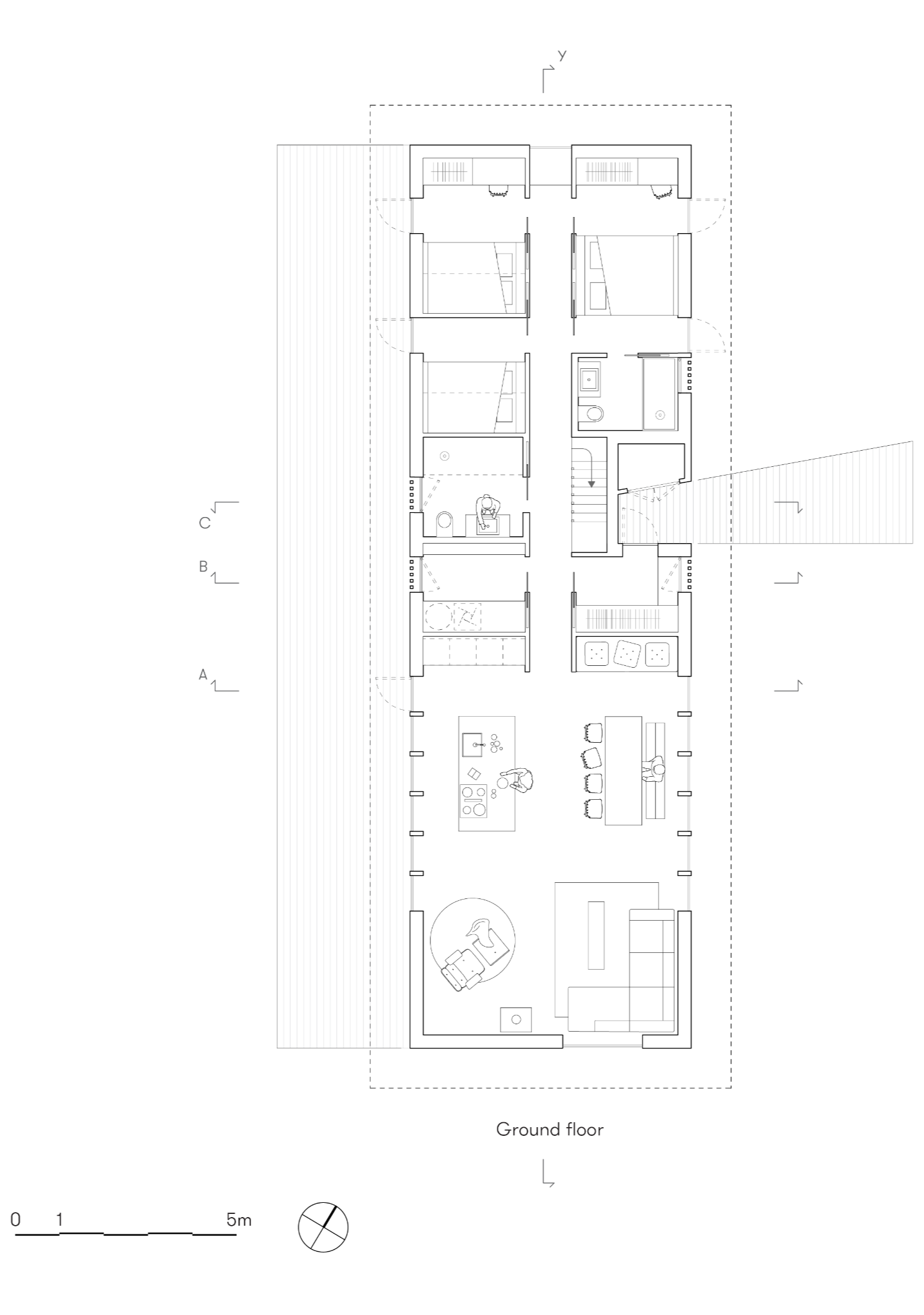
디자인은 단순하고 견고하며, 직사각형 구조에 대담한 절개부로 입구가 만들어졌다. 대형 원형 창은 실내외의 시각적 연속성을 제공하고 아늑함을 강조한다. 건물은 CLT 구조의 솔리드 우드로 시공되었고, 외장은 시간이 흐르며 회색으로 변하는 무가공 소나무 클래딩으로 마감되어 주변 자연과 조화를 이룬다.


내부는 콘크리트 바닥재와 바닥 난방 시스템, CLT로 제작된 맞춤형 가구, 녹색 포인트의 장식 요소 등을 통해 따뜻하고 현대적인 분위기를 만든다. 통창은 실내에서도 외부 자연을 생생하게 경험할 수 있게 하며, 공간의 경계를 허문다. 팀버 네스트 캐빈은 장소성과 자연에 깊이 뿌리내린 설계를 통해 노르웨이 건축의 전통을 현대적으로 해석한 사례이며, 사용자에게 고요한 안식처로 기능한다.









건축가 쾐틴 데스파르게스(Quentin Desfarges)
위치 노르웨이, 로드버그
용도 주거
프로젝트면적 110㎡
준공 2022
사진작가 Ruben Ratkusic
'Architecture Project > Single Family' 카테고리의 다른 글
| 전통 구조와 색의 요소를 더한 주택, 카사 베르데 가고 / 브루누 디아스 아르키텍투라 (0) | 2025.04.09 |
|---|---|
| 젠토 / 에스에이에이디 (0) | 2025.04.07 |
| 우물과 바다로 가는 길이 있는 주택 / 마타루 어소시에이츠 (0) | 2025.03.31 |
| 유리창이 없이 자연이 통하는 집/ 인비저블 스튜디오 (0) | 2025.03.26 |
| 공기가 흐르는 주택 / 아웃 & 어바웃 아키텍츠 (0) | 2025.03.26 |
마실와이드 | 등록번호 : 서울, 아03630 | 등록일자 : 2015년 03월 11일 | 마실와이드 | 발행ㆍ편집인 : 김명규 | 청소년보호책임자 : 최지희 | 발행소 : 서울시 마포구 월드컵로8길 45-8 1층 | 발행일자 : 매일



