
올리브 숲 한가운데 자리한 이 주택은 현지 기후와 재료에 대한 깊은 이해를 바탕으로 만들어졌다. 변화하는 미래에 유연하게 대응할 수 있도록 설계하면서도, 주거 공간으로서의 기본 기능인 쉼터, 그늘, 수면 공간, 그리고 공동 생활 공간을 제공하는 데 초점을 맞췄다.

이 섬은 소규모 농업이 중심을 이루고 있어 지나치게 정교한 건축 방식보다는 단순하고 실용적인 접근이 더 자연스럽다. 또한, 기후에 적응하는 건축을 개척한 글렌 머컷(Glenn Murcutt)과 같은 건축가들의 영향을 받아, 주변 환경과 자연스럽게 어우러지는 공간을 만들고자 했다.




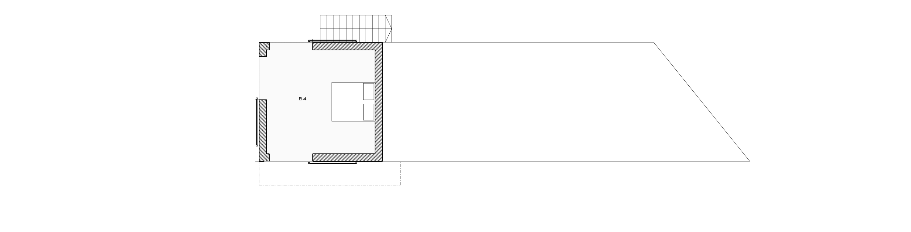
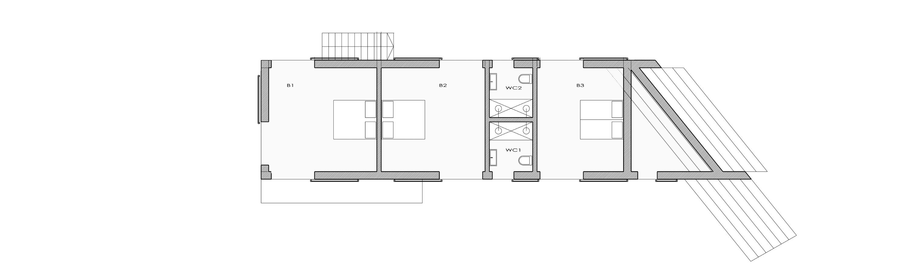
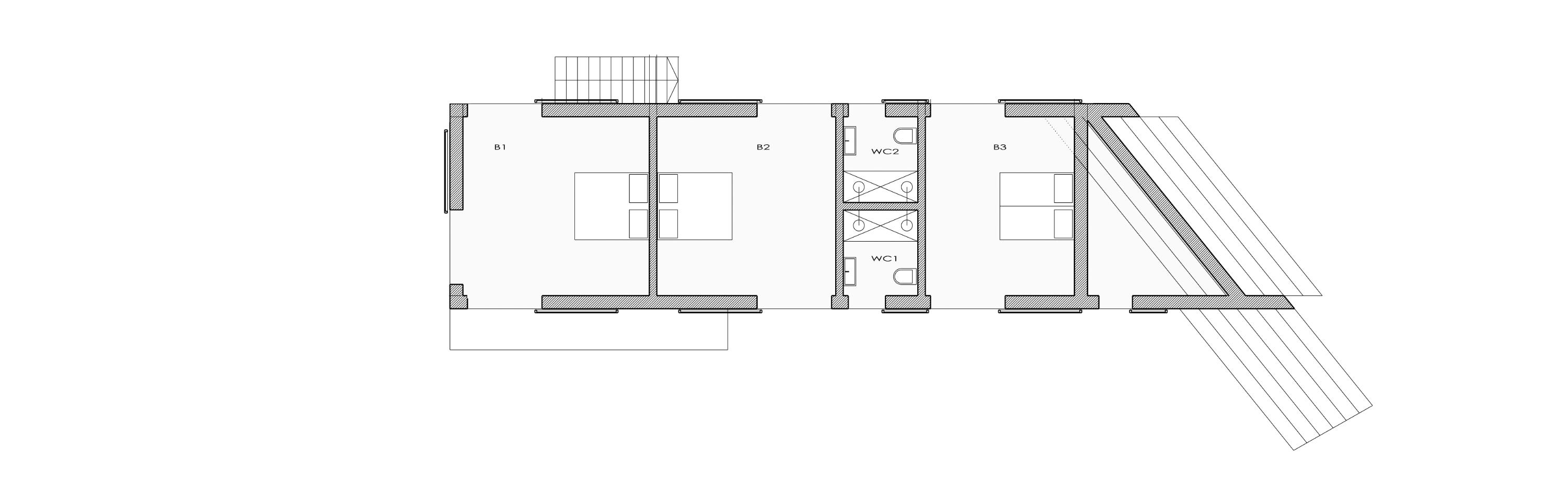
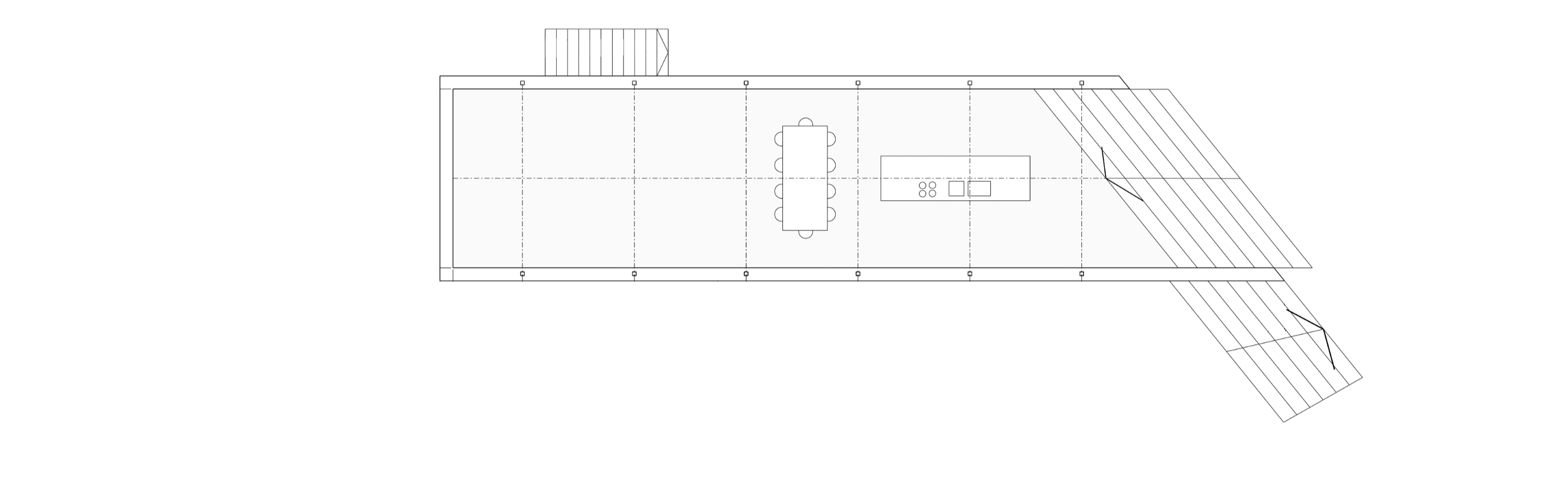
이 주택이 위치한 지역은 지진과 산불 위험이 높은 곳이며, 사용 가능한 건축 자재도 제한적이었다. 주요 구조 재료로 철근 콘크리트를 사용하고, 현지에서 쉽게 구할 수 있는 석회암 골재를 활용했다. 이곳에서는 거푸집 제작이 중요한 기술 중 하나이기 때문에, 집의 주요 공간은 벽, 바닥, 천장뿐만 아니라 주방과 일부 가구까지 모두 콘크리트로 구성되었다. 그 위에는 붉은 산화철로 마감된 철근 트러스로 지지되는 물결무늬 철판 지붕이 덮여 있으며, 넓은 그늘을 형성해 외부 생활 공간을 제공한다. 이러한 설계는 모두 현지에서 구할 수 있는 재료와 기술을 바탕으로 이루어졌다.


이 집에는 유리창이 전혀 사용되지 않았다. 대신, 아연 도금된 용접망으로 만든 미닫이형 스크린과 별도로 움직이는 방충망, 그리고 플라스틱 커튼이 설치됐다. 사용된 재료들은 모두 현지 마을의 철물점에서 쉽게 구할 수 있는 것들로 선정되었으며, 전통적인 건축적 장식이나 세련된 디자인 요소는 의도적으로 배제했다. 대문도, 울타리도 없으며, 주변의 자연환경을 정돈하거나 통제하려는 시도조차 하지 않았다.




건축가 인비저블 스튜디오(Invisible Studio)
위치 그리스, 코르푸
용도 단독주택
대지면적 10,000㎡
건축면적 125㎡
연면적 275㎡
대표건축가 Piers Taylor
디자인팀 Nikos & Lakis Voutsinases
시공 Thanos Soupinos
발주자 Piers Taylor & Sue Phillips
사진작가 Jim Stephenson
'Architecture Project > Single Family' 카테고리의 다른 글
| 눈 내리는 고요함을 만끽할 수 있는 산장, 팀버 네스트 / 쾐틴 데스파르게스 (0) | 2025.04.04 |
|---|---|
| 우물과 바다로 가는 길이 있는 주택 / 마타루 어소시에이츠 (0) | 2025.03.31 |
| 공기가 흐르는 주택 / 아웃 & 어바웃 아키텍츠 (0) | 2025.03.26 |
| 수림재 / 건축과환경 (0) | 2025.03.20 |
| 플럭스 하우스 / 에스유피건축사사무소 (0) | 2025.03.19 |
마실와이드 | 등록번호 : 서울, 아03630 | 등록일자 : 2015년 03월 11일 | 마실와이드 | 발행ㆍ편집인 : 김명규 | 청소년보호책임자 : 최지희 | 발행소 : 서울시 마포구 월드컵로8길 45-8 1층 | 발행일자 : 매일



