
Casa Verde Gago
'카사 베르데 가고'는 안시앙(Ansião)의 역사적 중심지에 위치한 오래된 건물의 리모델링 프로젝트로, 역사적 맥락을 존중하면서도 현대적인 감각을 반영하는 공간이다. 이 프로젝트는 장소의 본질을 보존하면서도 접근 방식을 통해 과거와 현재가 조화를 이룬다. 설계 및 시공 과정에서 건물의 역사적 정체성을 유지하는 동시에 새로운 해석을 가능하게 했다.

카사 베르데 가고라는 이름은 건물이 위치한 거리의 이름과 외관에 사용된 색상의 조합이다. 초록색은 전통적인 포르투갈 주택의 색조를 반영하며, 전통과 현대를 결합하는 은은한 향수를 불러일으킨다. 이는 단순한 미적 선택을 넘어, 과거의 기억을 상징하는 요소로 기능한다.

이 프로젝트에서 두드러지는 요소 중 하나는 목재의 사용이다. 목재는 전통적인 포르투갈 건축의 특징적인 요소이지만, 이번 프로젝트에서는 기존의 전통 형태에 약간의 변화를 주어 조화를 이루면서도 미묘한 차이를 만들어낸다. 건축 구조와 내부 디테일에서 목재를 적극적으로 활용함으로써, 공간에 아늑한 분위기를 더했다.


카사 베르데 가고의 또 다른 핵심 요소는 파티오이다. 과거 와인 저장고로 사용되었던 공간은 외부 공간으로 재구성되었으며, 여기에 물탱크와 미니멀한 조경을 배치하여 보다 현대적이고 쾌적한 환경을 조성했다. 이곳은 거주자들에게 새로운 방식으로 교류할 수 있는 공간으로 탈바꿈했다.


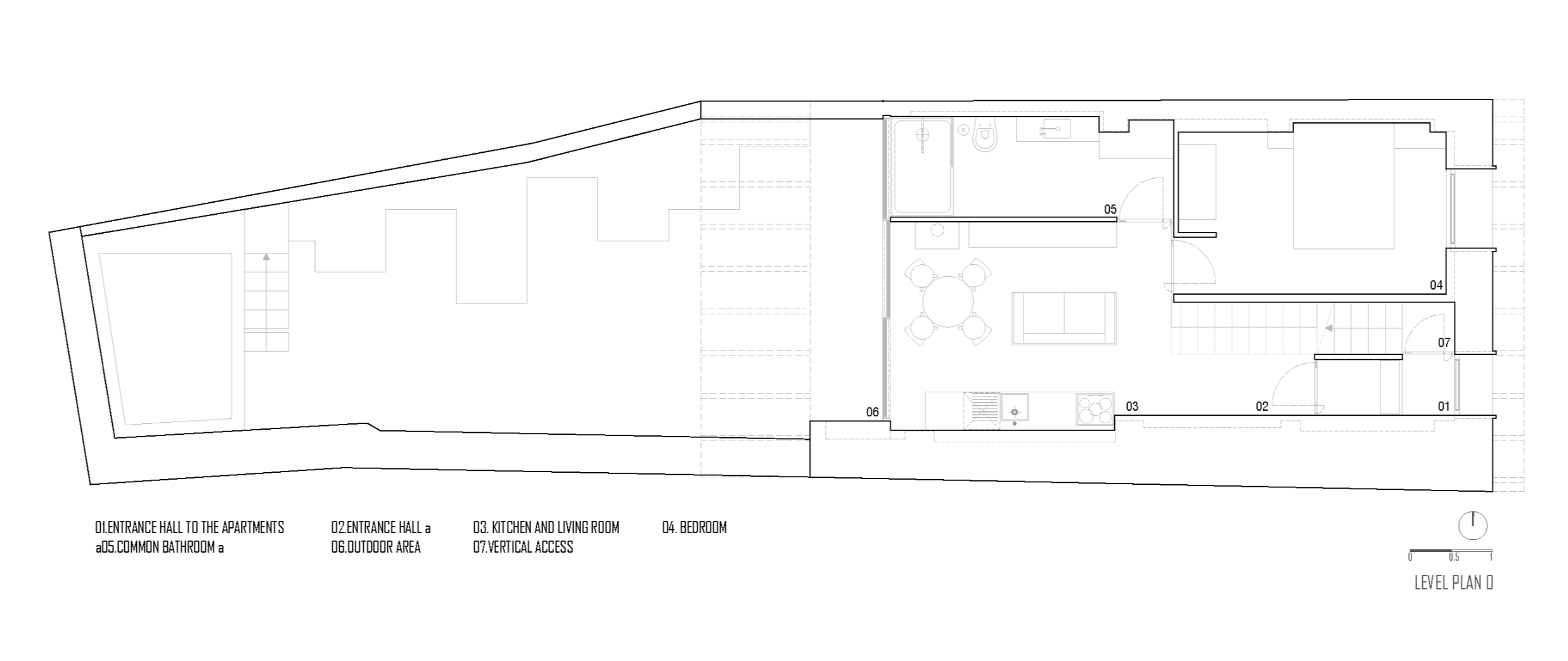
건물은 각각 한 개의 침실을 가진 두 개의 아파트로 계획되어 있으며, 각 층마다 하나씩 배치되어 있다. 각 아파트는 침실, 주방, 거실, 욕실로 구성되며, 1층 아파트에는 추가적으로 사무 공간과 드레스룸이 있다. 건물의 수직 동선은 아파트의 공간 구획을 정의하고, 공간의 흐름을 결정짓는 중요한 요소로 작용한다. 카사 베르데 가고는 전통과 현대가 균형을 이루는 공간으로, 과거의 흔적을 유지하면서도 새로운 건축적 해석을 더한 주거 프로젝트이다.




건축가 브루누 디아스 아르키텍투라(Bruno Dias Arquitectura)
위치 포르투갈, 안시앙, 후아 알미란트 가구 코티
용도 공동주거
준공 2024
디자인팀 Tânia Matias; Cristiana Henriques; Ana Valente
사진작가 Hugo Santos Silva
'Architecture Project > Single Family' 카테고리의 다른 글
| 7개 층의 주택 / 말리 흐멜 (0) | 2025.04.14 |
|---|---|
| 가사루 빌라 / 이강준(한양대학교 에리카) + 지역도시건축사무소 리플래폼 (0) | 2025.04.10 |
| 젠토 / 에스에이에이디 (0) | 2025.04.07 |
| 눈 내리는 고요함을 만끽할 수 있는 산장, 팀버 네스트 / 쾐틴 데스파르게스 (0) | 2025.04.04 |
| 우물과 바다로 가는 길이 있는 주택 / 마타루 어소시에이츠 (0) | 2025.03.31 |
마실와이드 | 등록번호 : 서울, 아03630 | 등록일자 : 2015년 03월 11일 | 마실와이드 | 발행ㆍ편집인 : 김명규 | 청소년보호책임자 : 최지희 | 발행소 : 서울시 마포구 월드컵로8길 45-8 1층 | 발행일자 : 매일



