
우리는 수많은 기록 속에 살고 있지만, 살아가면서 '기록'의 본질과 형태에 관해 생각해 보는 일은 거의 없다. 개인마다 생각하는 가치와 살아온 경험이 다르기에 기록에 대한 정의 또한 모두 다르다. 그러므로 '기록'은 쉽게 정의 내리기도, 형태화 하기도 어렵다.

시간의 결정들이 모여 역사가 되고, 그 역사의 기록들은 사실을 기반한 명백한 진실이어야 한다. 이렇게 기록될 때, 투명하고 정직한 기록물이 쌓이게 되고, 우리는 정직한 기록을 '국가기록박물관'에서 경험하게 된다.

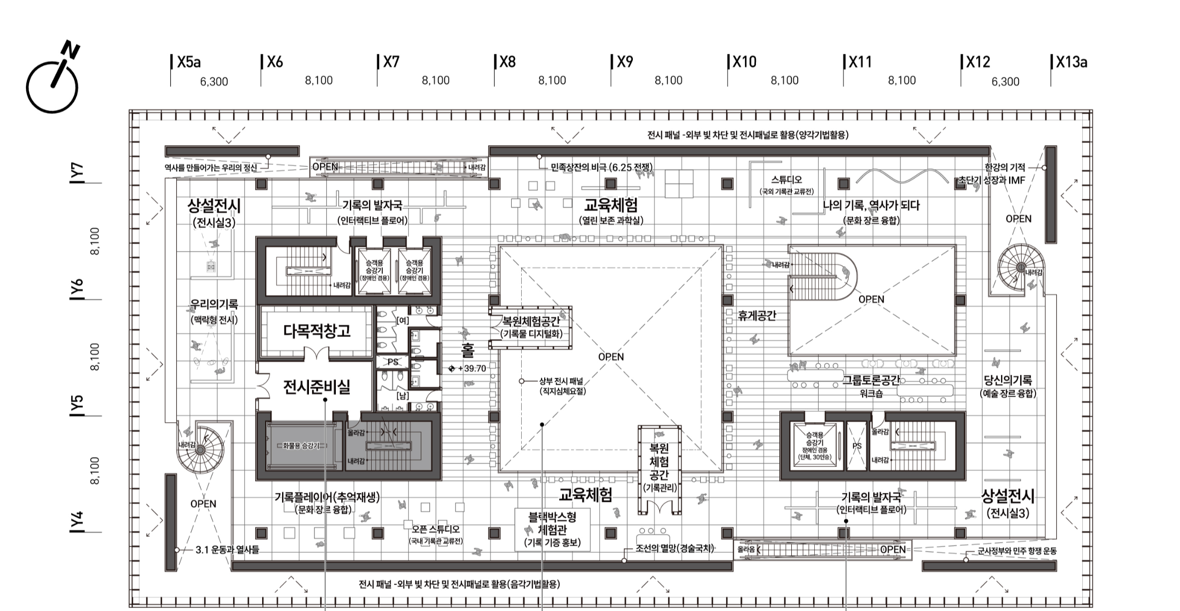
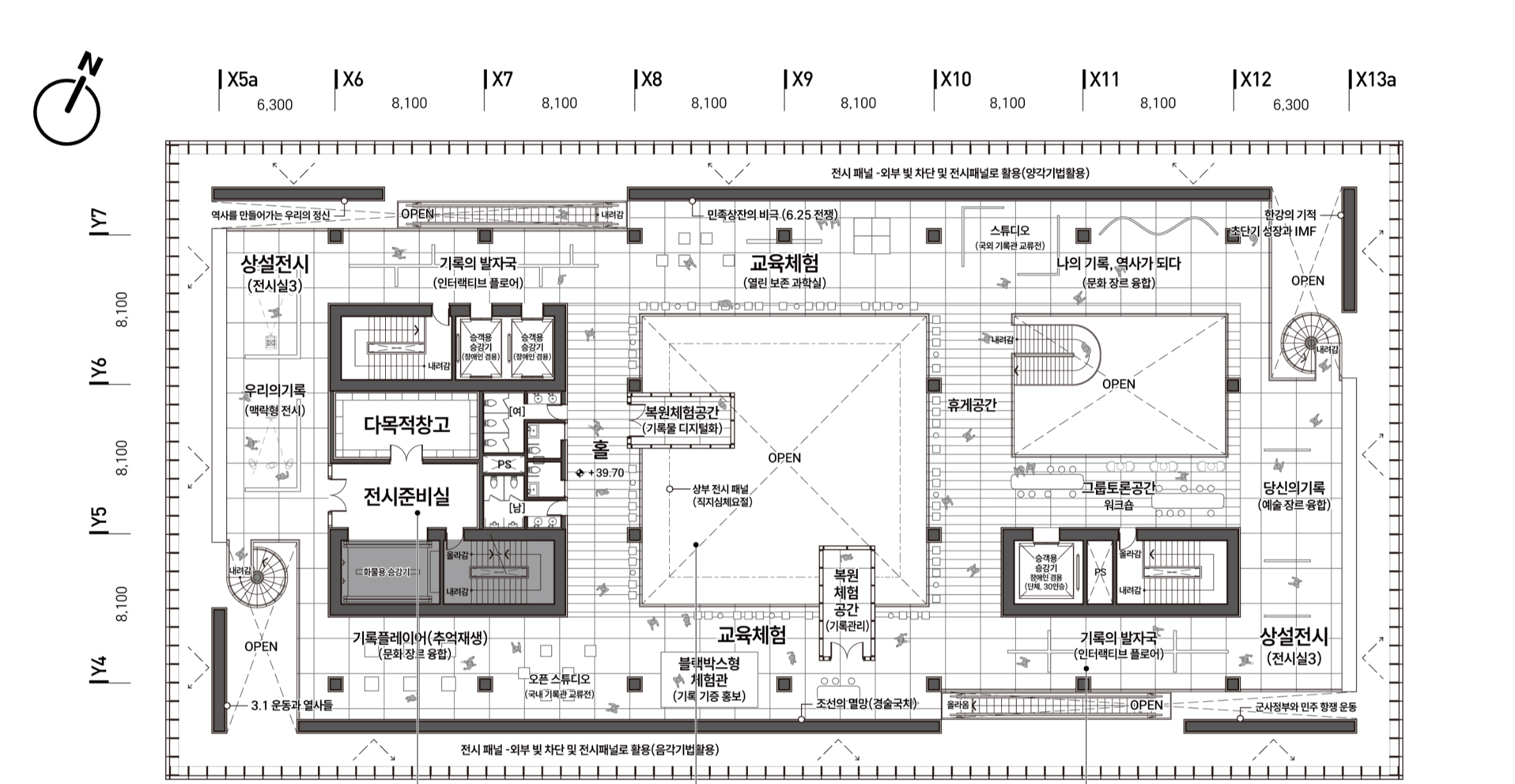
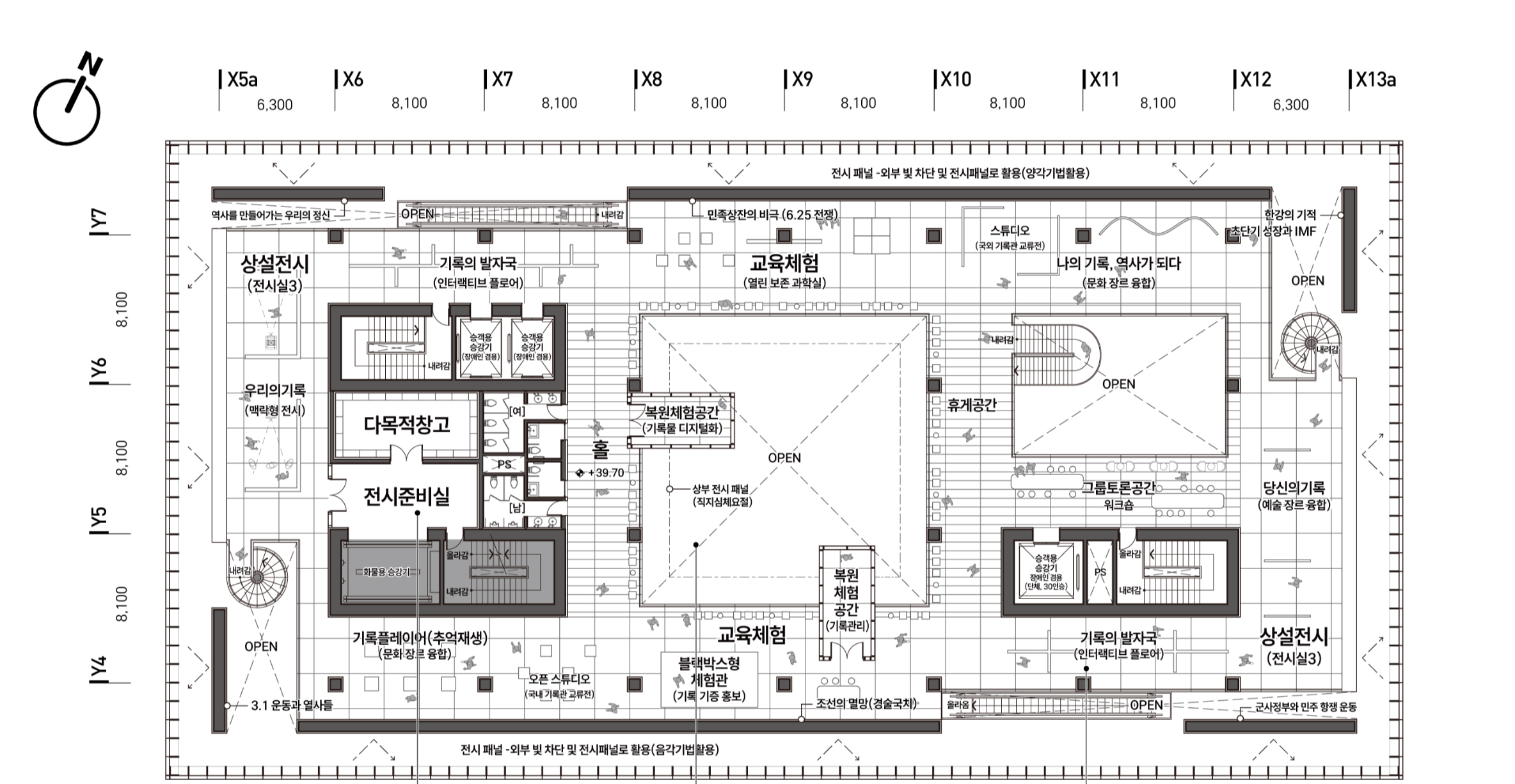
대지는 북측으로 4개의 인접 박물관과 서측으로 제천, 독락정 역사공원, 동측의 중앙광장, 중앙공원을 곁에 두고 있다. 남측으로 국립민속박물관과 그 너머 금강의 자연을 유입해 국가기록박물관 속에 자연스레 자연들이 투영된다. 맥락적 흐름에서 1구역의 마지막에 있는 국가기록박물관은 한 구역의 끝맺음 역할을 하며, 2구역이 다시 시작되는 연결 지점으로 연속적인 공간으로서의 이중성을 내포한다. 건축물의 비움과 채움 속, 선큰과 건물의 조화로운 흐름이 만들어지며, 마스터플랜에 부합하는 연결성과 통일성을 갖춘다. 박물관마다 쾌적한 선큰배치로 지하 박물관 거리에 자연을 유입시키고 서로의 하부 공간이 유연하게 공유된다. 건물 외곽 전시월은 건물 안팎으로 다양한 전시의 가능성을 열어주는 공간 큐레이팅을 가능하게 한다.

전시 벽의 외측부를 통해 자연 재료에 새겨지는 양각과 음각 기법을 입힌 전시 월은 차양 역할을 하고 내부의 기록물도 보호한다. 전시 월 덕분에 건물 밖에서 국가기록박물관의 정체성을 확인할 수 있고, "기록은 투명성과 정직함이다"라는 기록의 정의를 드러내는 요소 중 하나다. 내측 벽은 아날로그와 디지털을 넘나들며 다양한 기록 전시로 채워질 수 있게 만들어 준다. 이처럼 건물 자체가 하나의 기록물이 되는 박물관은 시간성에 따라 표정이 바뀌는 전시 형태의 새로운 변화를 끌어낸다. 국가기록박물관이 기록의 가치와 역사를 켜켜이 기록하고 재조명하는 차별화된 형태의 박물관이 되길 기대한다. 멈추지 않는 시간 속에서 백지 위에 새로운 기록을 써 내려가듯 유의미한 역사가 번져 나갈 것이며, 방문하는 관람객들이 이곳을 통해 기록에 대한 중대함을 알아가고, 개인의 기록을 경험함으로써 소중한 기록의 가치를 일깨우길 진심으로 바란다.






국가기록박물관 국제설계공모
당선작_(주)크레파스건축사사무소
대지면적 9,973.00㎡
건축면적 2,182.00㎡
연면적 9,973.00㎡
규모 지하 2층, 지상 3층
건폐율 21.88%
용적률 42.99%
구조 철큰콘크리트조
주차개요 196대
대표건축가 최민기
발주자 행정중심복합도시건설청
'Plans' 카테고리의 다른 글
| 서울시 중랑구 묵1동 복합청사 건립 설계공모 _ 가작1 / 건축사사무소큐제이 (0) | 2025.04.30 |
|---|---|
| 평택중앙도서관 건립사업 국제설계공모 _ 당선작 / (주)선진엔지니어링종합건축사사무소 + 이아키텍츠서울 (0) | 2025.04.22 |
| 일광고등학교 교사신축 건축설계공모 _ 당선작/ ㈜유림도시건축 건축사사무소 (0) | 2025.02.28 |
| 덕적면 국민체육센터 _ 당선작 / 더코너즈 건축사사무소 (0) | 2025.01.06 |
| 춘천시보건소 이전신축사업 _ 당선작 / (유)건축사사무소 더사이+건축사사무소 시에나 (0) | 2025.01.03 |
마실와이드 | 등록번호 : 서울, 아03630 | 등록일자 : 2015년 03월 11일 | 마실와이드 | 발행ㆍ편집인 : 김명규 | 청소년보호책임자 : 최지희 | 발행소 : 서울시 마포구 월드컵로8길 45-8 1층 | 발행일자 : 매일



