
장소 GENIUS LOCI
평택의 땅은 경기평야의 농지를 기반으로 오랜 시간 마을을 형성하며 담담히 사람들의 삶을 담아오던 땅이다. 어떤 면에서는 가장 보편적 한국인의 정서를 품고 있는 땅이라 할 수 있다. 90년대 이후 수도권이 팽창해 오며 대도시의 생활권역에 들어오고 대형의 반도체기지가 이 지역에 둥지를 틀며 지금까지와는 그 강도가 전혀 다른 미래를 향한 잠재력이 잉태되어가고 있다. 흙으로부터 나와 육신에 숨어있는 정신적 가치를 물질 속에 투사시키며 피지컬한 문명을 오랜 시간 정제시켜온 인간. 새 시대의 특별함이 이 장소의 정체성과 엇물려 어떠한 아우라를 만들어나갈 수 있는가를 부심하였다. 공공의 프로젝트로서 새 시대를 향한 새로운 맥박을 불어넣을 수 있는 공간을 창출해내는 것은 주민들의 일상을 담아내는 것 못지않게 소중한 의미가 있기 때문이다. “평평한 땅에 연못 밖에 없어 '평택(平澤)'이란 지명을 갖게 되었다”고 하는 말이 전해지듯이 “물(澤)”이라는 요소는 이 땅에 장소의 혼 genius loci 과 같이 스며 있다고 받아들인다.


원형 PROTOTYPE
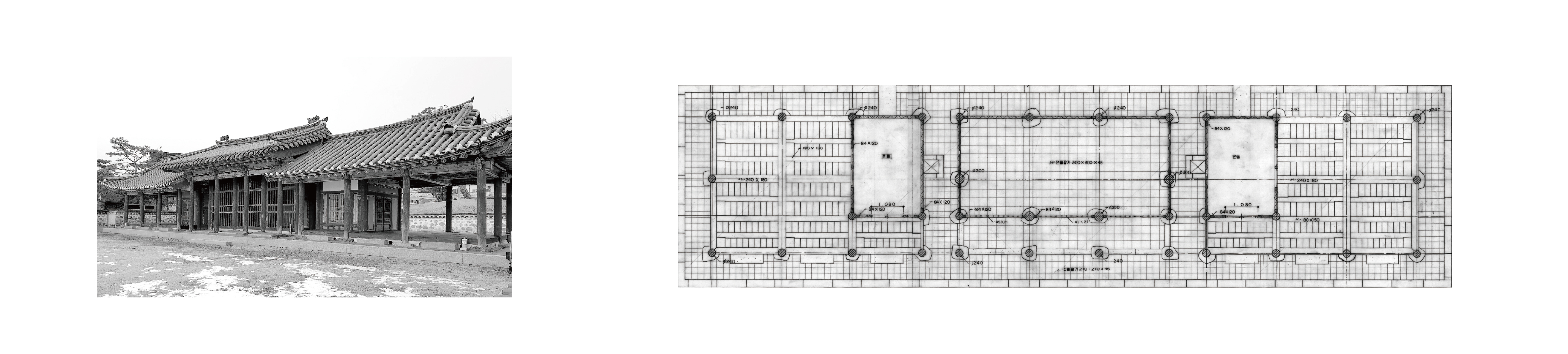
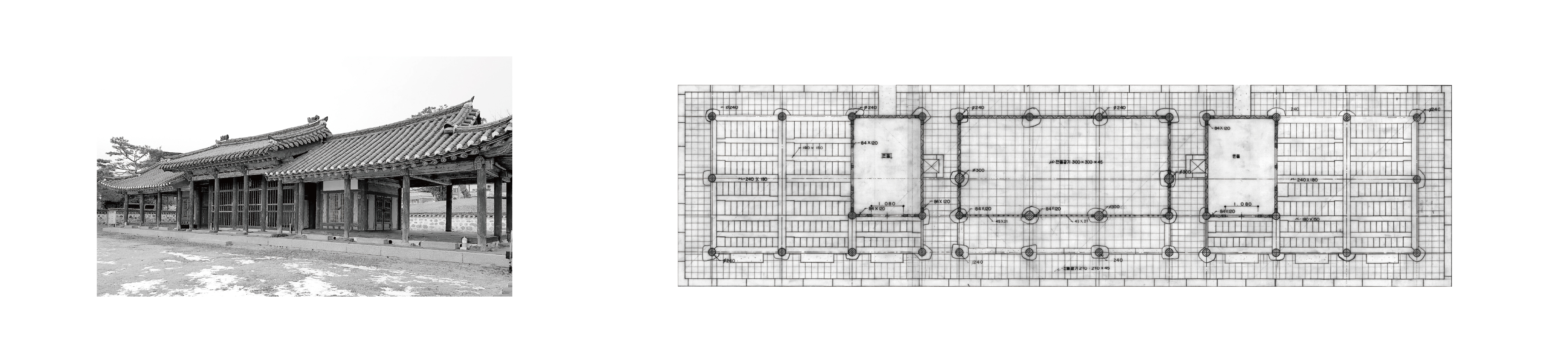
평택의 새로운 정신적, 문화적 중심을 형성코자 하는데에 그 기본의도가 있다. 고덕국제화지구의 문화적 구심점 안에서도 구심공간으로 인지되고 작동할 수 있는 ‘구심’ 속의 ‘구심’을 추구하였다. 고대그리스의 아고라(Agora)에 견줄 수 있는 공간을 우리나라 건축의 공공영역이나 사대부의 정적인 영역의 구심점으로 빼놓을 수 없는 방지(方池)라는 요소로 소화시켰다. 도서관의 영역 전체를 도서원(圖書園)이라 불릴 수 있는 하나의 커다란 정원이나 마당으로 여기고 그 중심에 Aqua Forum 이라 불리울 수광장을 조성하였다. 그 수공간을 향해 날개를 펴는 듯한 개방감으로 자리잡을 도서관의 건축적 원형을 평택의 전통건축에서 찾았다. 팽성읍객사(彭城邑客舍)는 이 지역에서의 존재감이나 공간의 유형적 특성 상 본 신축건물의 원형적 유형으로 절묘하게 맞아떨어진다. 그러한 원형적형태와 공간을 우리시대의 정서로 추상화하며, 모든 부수적인 요소와 장식적인 요소로부터 해방된 순수한 건축에 다다라 보고자 한다.


공간 SPACE
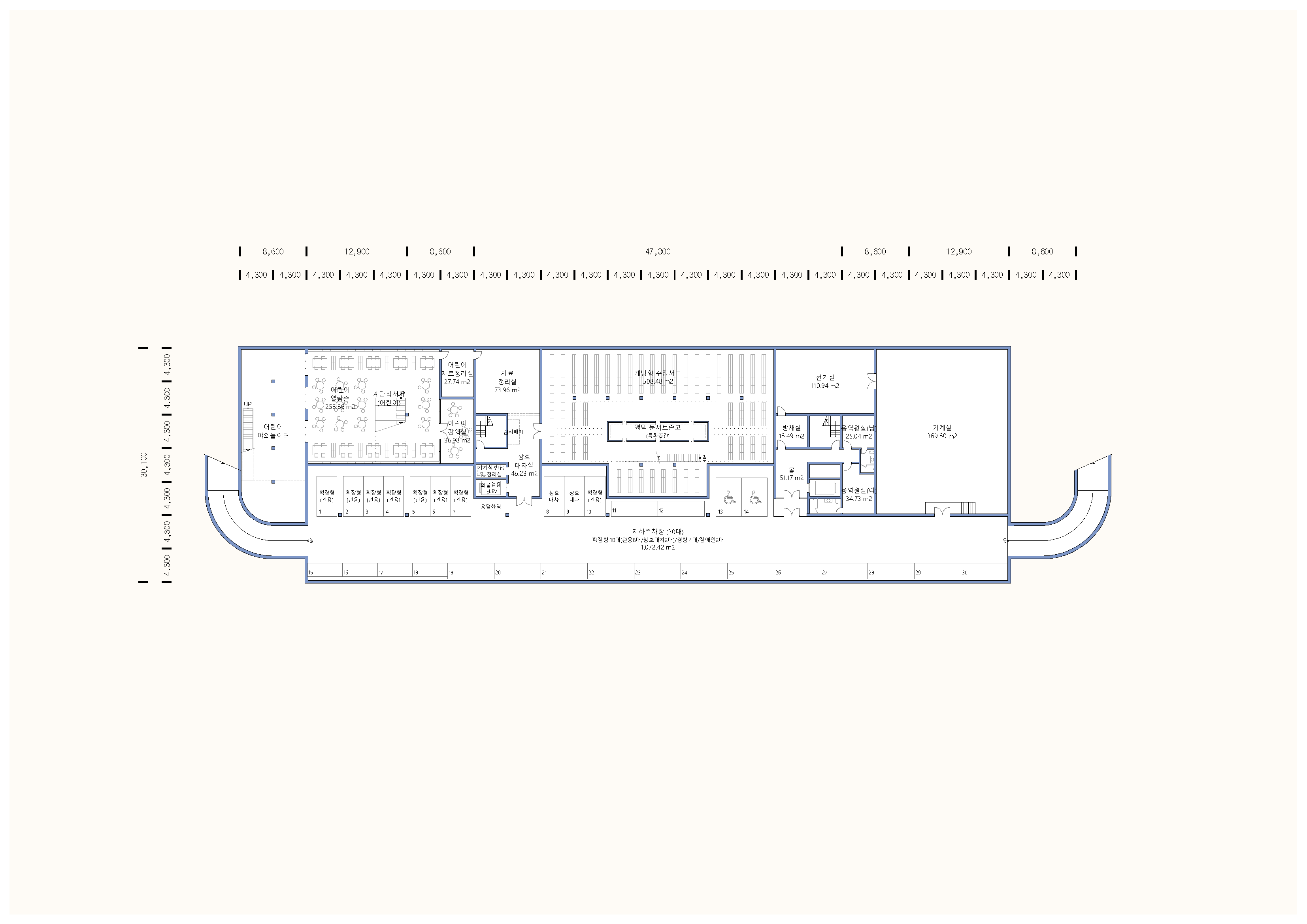
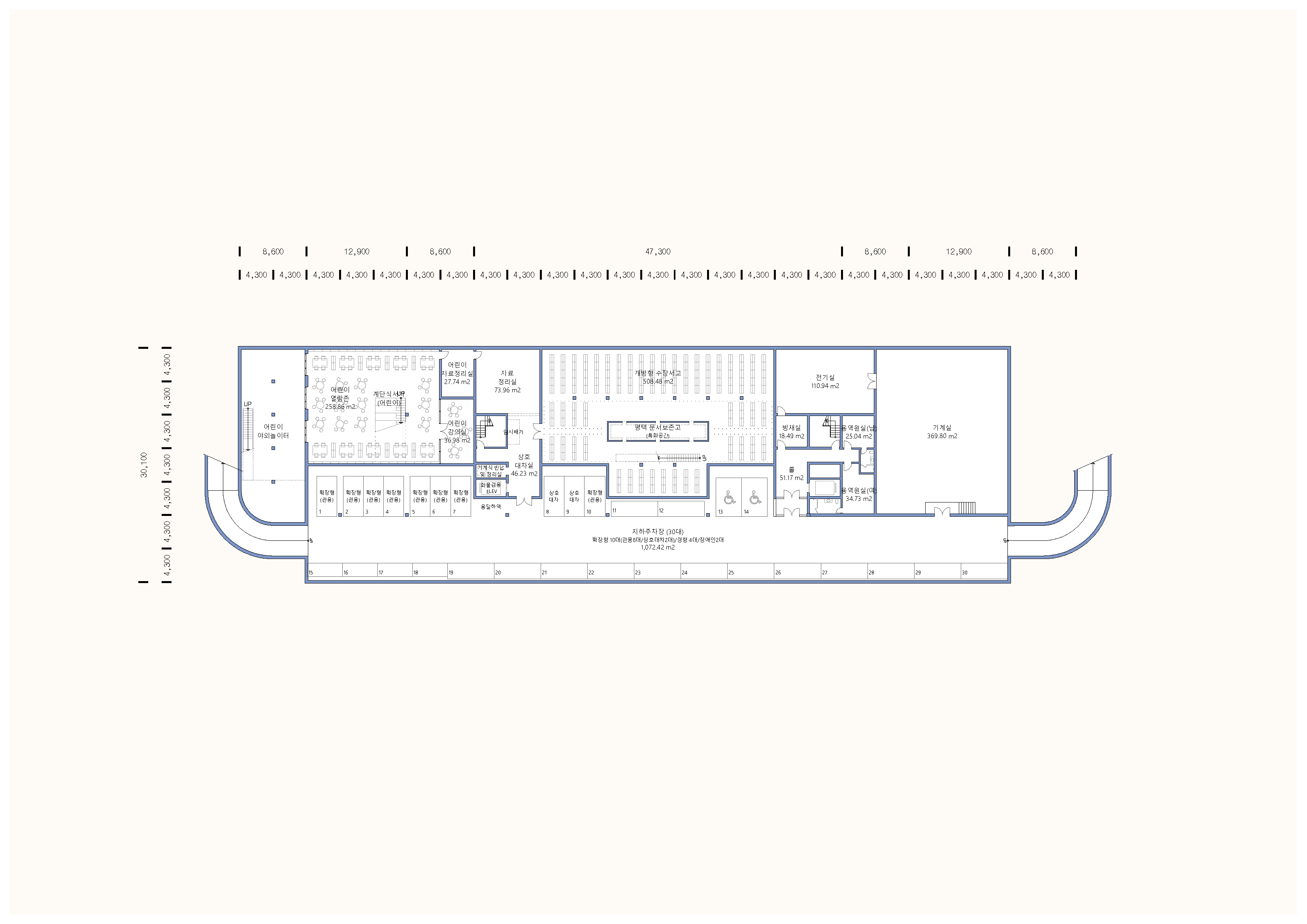
오는 동선의 흐름을 자연스럽게 받아내며, 수광장을 중심으로 즐겨 머무는 ‘도시의 거실’과 같은 공간이 되도록 하고, 자연스레 함박산공원으로 연계되도록 하였다. 도서관 건축공간 자체는 책이 중심에 있지 않고 인간이 중심에 있는 건축, 즉 지식의 습득 자체가 아니라, 지식의 교환과 시민들의 교류가 그 중심역할이 되는 도서관으로 조성코자 한다. 이를 위해 도서관 전역을 밝고 개방적인 공간이 되도록 하고 가변적인 공간이 되도록 하였다. 내외부간의 전이공간인 회랑, 그에 면한 물가의 열람공간, 그 안쪽의 개가식서가 및 중앙열람공간 순으로 내부로 향하는 공간의 켜의 정점에 도서관의 핵이라고 할 수 있는 서고공간이 있다. 우리나라 서고공간의 원형이라 할 수 있는 장경판고 건축의 유형을 따랐고 최첨단의 대출, 반납 관리 시트템을 직접 체험케 해 ‘책의 세계와의 만남’을 모두가 즐길 수 있도록 한다. 그리고 가장 중앙에 있는 평택문서고는 오직 상부로부터의 빛이 스며드는 자기성찰적인 장소가 되도록 하였다.



물성 MATERIAL
한국건축의 기본구축방식인 가구식 건축의 기본형을 형태적 공간적 순수함에 다다르기 위해 극단적으로 추상화 하였고 그 비례감을 시대의 정서에 맞게 세장하고 날렵하게 구사하였다. 가벼운 지붕과 가는 기둥으로 된 회랑공간의 뒷편의 공간은 투명한 유리파사드로, 그 내부의 공간은 젖빛의 유리블럭으로 감싸여 켜를 이루고 중앙의 기록보존실은 매시브한 오브제로 서 있어 내부로 갈수록 차츰 기밀한 물성을 갖도록 하였다. 세장한 기둥의속성과 하나가 될 수 있도록 각 벽면의 수직적 개구부, 수직적 평철난간.. 등 다양한 수직적 요소들이 비례의 변화를 통해 리듬을 만들어 낸다. 외부의 바닥과 수공간, 수변계단, 수상포디엄 등도 건물과 일체감을 줄 수 있는 재질과 색상으로 전 영역이 마치 하나의 거대한 부조와같이 되어 나무, 물 등 자연의 요소와 정갈한 만남이 이뤄지도록 한다.












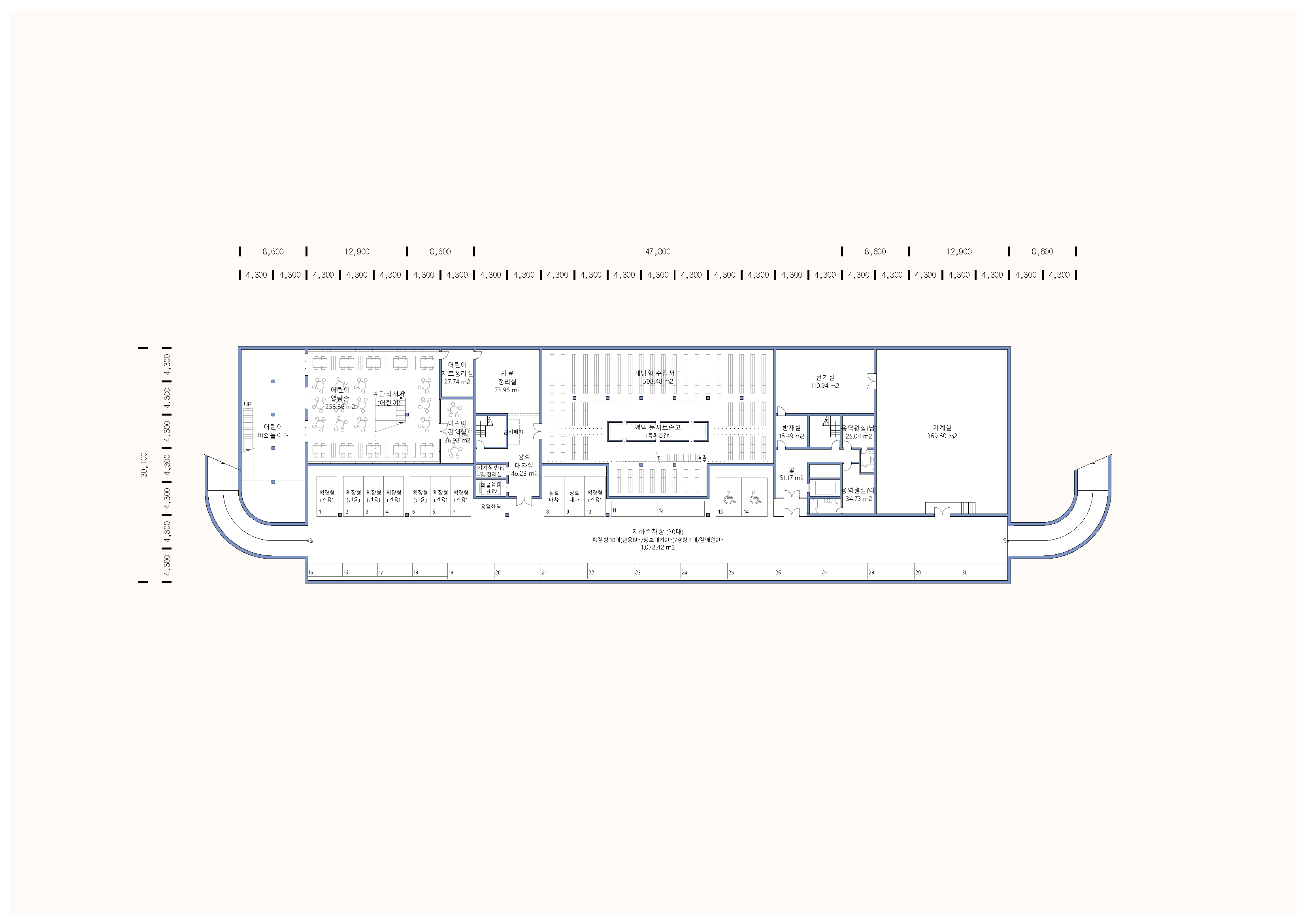
평택중앙도서관 건립사업 국제설계공모
당선작_(주)선진엔지니어링종합건축사사무소 + 이아키텍츠서울
대지면적 20,000㎡
건축면적 3,235.75㎡
연면적 9,496.42㎡
규모 지하 1층, 지상 4층
건폐율 16.18%
용적률 33.89%
구조 철근콘크리트구조, 철골철근콘크리트구조
주차개요 172대
대표건축가 유태원, 이은영
발주자 평택시 배다리도서관 도서정책
'Plans' 카테고리의 다른 글
| 공영주차장 관리사무실 건립 설계공모 _ 3등작 / (주)와이건축사사무소 (0) | 2025.06.05 |
|---|---|
| 서울시 중랑구 묵1동 복합청사 건립 설계공모 _ 가작1 / 건축사사무소큐제이 (0) | 2025.04.30 |
| 국가기록박물관 국제설계공모 _ 당선작 / (주)크레파스건축사사무소 (0) | 2025.03.28 |
| 일광고등학교 교사신축 건축설계공모 _ 4등축 건축설계공모 _ 4등작/ 인터건축사사무소(주) + (주)유림도시건축건축사사무소 (0) | 2025.02.28 |
| 덕적면 국민체육센터 건립사업 기본 및 실시설계용역 설계(제안)공모 _ 당선작 / 더코너즈 건축사사무소 (0) | 2025.01.06 |
마실와이드 | 등록번호 : 서울, 아03630 | 등록일자 : 2015년 03월 11일 | 마실와이드 | 발행ㆍ편집인 : 김명규 | 청소년보호책임자 : 최지희 | 발행소 : 서울시 마포구 월드컵로8길 45-8 1층 | 발행일자 : 매일



