
일상 의료 연결망, 생활밀착형 보건공간, 돌봄의 복지공간
보건소는 일상 의료의 연결망, 생활밀착형 보건공간과 동시에 돌봄의 복지공간이 복합된 특별한 시설입니다. 춘천시가 추진 중인 ‘은퇴 후 살기 좋은 도시 만들기’를 위해서도 보건과 복지를 연계한 공공의료는 중요합니다. 시민들의 일상 속에서 사랑받는 공공시설이 되도록 건축이 점유하지만 예술촌, 앞으로 들어설 문화시설과의 유기적인 결합을 통해 풍요로운 공간을 제공하는 것을 목표로 삼았습니다. 이를 통해 건축의 물리적 생명력 뿐만 아니라, 사회적 지속가능성을 담보합니다.
외부공간, 조경
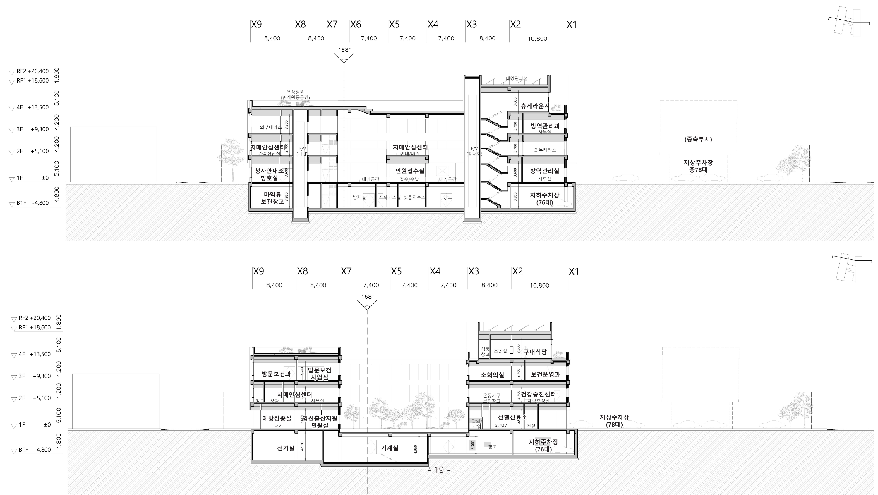
캠프페이지 공원의 영향권과 전통적 구도심 사이에서 공적인 역할을 수행합니다. 춘천에는 광장과 수변이 중심이 된 외부공간의 어메니티는 많지만 건축물 자체가 만드는 아늑한 공공마당이 부족합니다. 자연의 변화를 느끼고 다양한 자극을 경험할 수 있는 외부 공간은 일상적으로 방문하는 도시공원으로 작동합니다. 층별로 마당과 연계한 외부테라스를 조성하여 자연과의 접점을 늘리고 긴급시 외부동선으로 활용됩니다. 총 156대 중 78대의 주차를 지하층에, 나머지 78대를 지상에 계획하여 기존 보건소의 주차난을 해소하기로 합니다.
프로그램, 매스구성
좋은 건축은 누구에게나 친절한 건축이라는 생각으로 남측동과 북층동이 중앙홀을 통해 연결되는 명확한 체계의 평면을 제안합니다. 중앙홀은 남, 북 동을 수평·수직적으로 연결함과 동시에 개방되어 쾌적하고 정서적으로 평안한 환대의 공간입니다. 이곳은 각층 테라스와 마당으로 이어집니다. 따라서 건축이 내부에 머물지 않고 바깥으로 이어져 입체적인 마당이되고 도시로 이어집니다. 이러한 구성은 팬데믹 상황에서 감염의 확산을 방지하기 위한 동선으로 요긴하게 쓰일 것입니다.
1) 1층, 배치
춘천예술촌과 문화시설부지의 보행중심 가로에 접해 남측으로 면한 보행자 주출입구가 위치합니다. 시민들이 가장 많이 이용하는 진료시설은 편리한 접근을 위해 1층에 배치했습니다. 특별히 다목적실을 1층 보행출입구에 위치하여 각종 건강교실과 중규모 행사를 수용합니다. 진입광장과 다목적실, 활동마당을 연계하여 지역의 행사 시 개방할 수 있는 구조입니다.
2) 2층
건강증진영역, 치매안심센터는 2층에 배치하여 혼잡을 방지하고 로비에서 시각적 개방감으로 방문자의 인지를 쉽게 합니다. 의료행위의 변화가 예상되는 공간과 고정된 공간을 구분하고, 변화 공간은 일정 모듈을 도입하여 쉽게 크기와 기능을 조절하도록 하며, 고정 부분에는 환자와 보호자에게 휴식의 공간 등을 제공하는 일상 의료 프로그램을 제공합니다.
3) 3층
행정 및 사무기능을 배치하여 방문하는 민원인의 공간 이용의 혼돈을 방지하고 효율적인 보건소 운영을 도모합니다.
4) 4층, 옥상
대강당, 구내식당 등 비교적 대규모의 인원이 일시적으로 사용하는 기능을 최상층에 배치하고 여유로운 공용공간을 할애하였습니다. 로비를 거치지 않고도 외부에서 바로 접근이 가능한 옥상은 시민들의 일상 속 운동 마당이 됩니다.





춘천시보건소 이전신축사업 설계공모
당선작_(유)건축사사무소 더사이+건축사사무소 시에나
대지면적 9,045㎡
건축면적 2,904.27㎡
연면적 12,294.40㎡
규모 지하 1층, 지상 4층
건폐율 32.21%
용적률 87.00%
주요마감 붉은벽돌, 화강석
주차개요 154대
대표건축가 이진오, 현진
조경면적 1,456.88㎡
발주자 춘천시청
'Plans' 카테고리의 다른 글
| 일광고등학교 교사신축 건축설계공모 _ 당선작/ ㈜유림도시건축 건축사사무소 (0) | 2025.02.28 |
|---|---|
| 덕적면 국민체육센터 _ 당선작 / 더코너즈 건축사사무소 (0) | 2025.01.06 |
| 문산 실내배드민턴장 _ 당선작 / 와이즈건축사사무소 (0) | 2025.01.02 |
| 예천군 무형문화재 통합전수교육관 _ 당선작 / 주식회사 디에이치건축사사무소 (0) | 2024.12.31 |
| 인천통합보훈회관 / (주)크레파스건축사사무소 + (주)에이씨엠건축사사무소 (0) | 2024.12.30 |
마실와이드 | 등록번호 : 서울, 아03630 | 등록일자 : 2015년 03월 11일 | 마실와이드 | 발행ㆍ편집인 : 김명규 | 청소년보호책임자 : 최지희 | 발행소 : 서울시 마포구 월드컵로8길 45-8 1층 | 발행일자 : 매일



