
HOUSE F - The Place that Fosters Connections -
이 프로젝트는 건축가의 주거 공간이자 사무실로 활용되는 공간이다. 1층을 지역 주민들에게 개방하여, 자연스럽게 교류가 이루어지는 장소로 만드는 것이 이 프로젝트의 핵심 목표다.



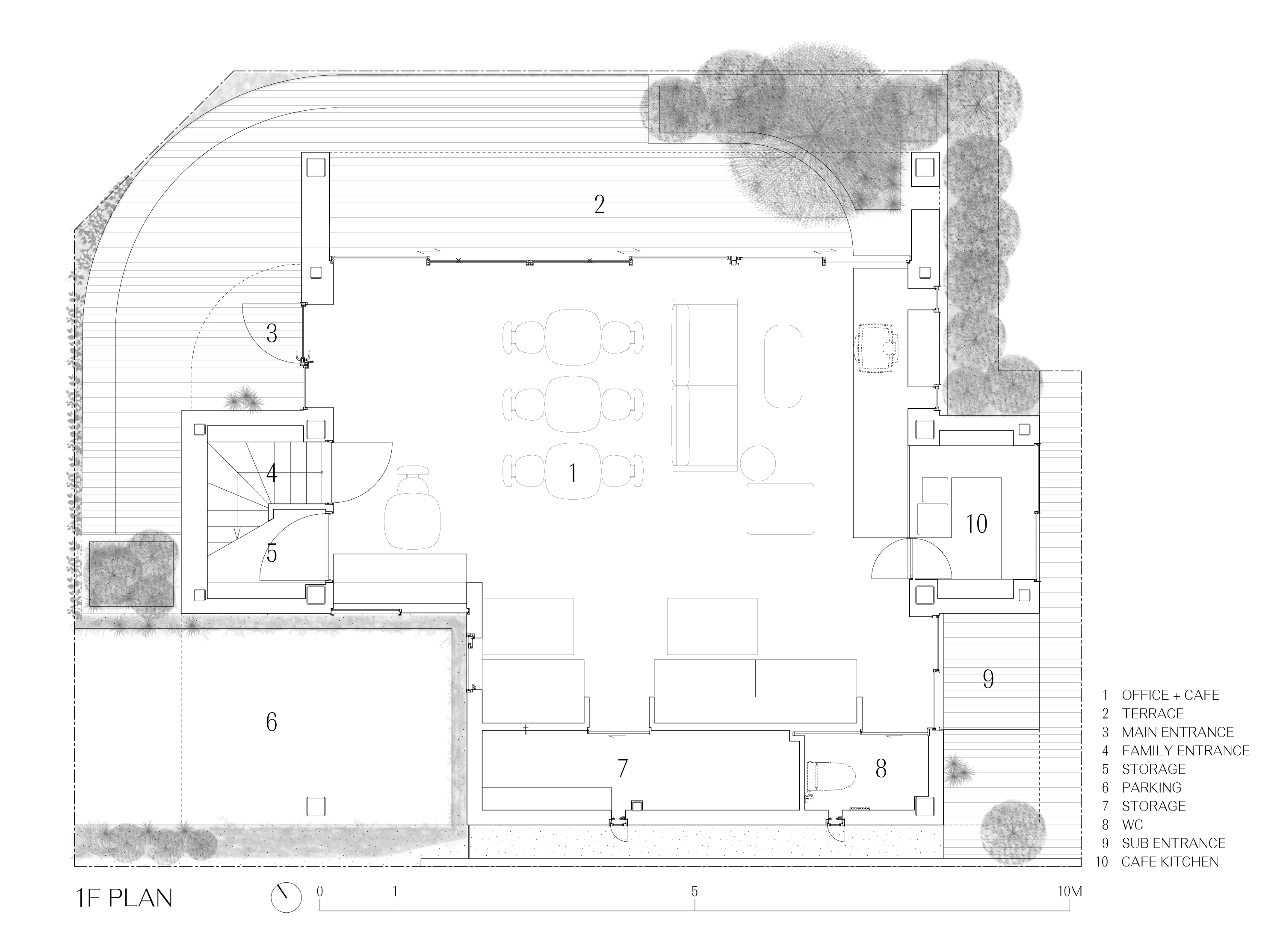
1층 공간은 단순한 사무실이 아니라, 지역 주민들이 편하게 드나들며 소통할 수 있는 커뮤니티 공간으로 활용된다. 이곳에서는 일상의 작은 변화들이 모여 새로운 관계를 형성한다. 커피를 한 잔 더 내려 이웃과 나누면, 이곳은 작은 카페가 되고, 주민들이 기증한 책들로 책장을 채우면, 자연스럽게 동네 도서관이 된다. 또한, 빔프로젝터로 함께 영화를 감상하면, 즉석 영화관이 된다. 이처럼, 일상의 작은 순간들이 쌓이며 공간이 확장되고, 주민들과의 관계가 서서히 자연스럽게 형성된다. 또한, 실내와 실외의 경계를 흐리게 만드는 설계적 요소를 활용하여, 사람들이 공간을 더 편안하게 공유할 수 있도록 했다. 바닥의 높이 변화, 재료의 연속성, 구조적 연결을 통해 공간적 흐름을 부드럽게 만들었으며, 이는 주민들 간의 사회적 거리까지 좁히는 역할을 한다.

이 지역에서는 이웃들이 시작한 식물 공유 네트워크가 수십 가구로 확장되었다. 이들은 자발적으로 서로의 삶에 개입하고, 함께 공간을 가꾸며 새로운 커뮤니티를 형성하고 있다. 이를 반영하여 건축물의 입면 디자인에도 식재 전략이 적용되었다.


1층은 거리와 자연스럽게 연결되는 열린 공간으로, 누구나 쉽게 접근할 수 있다.



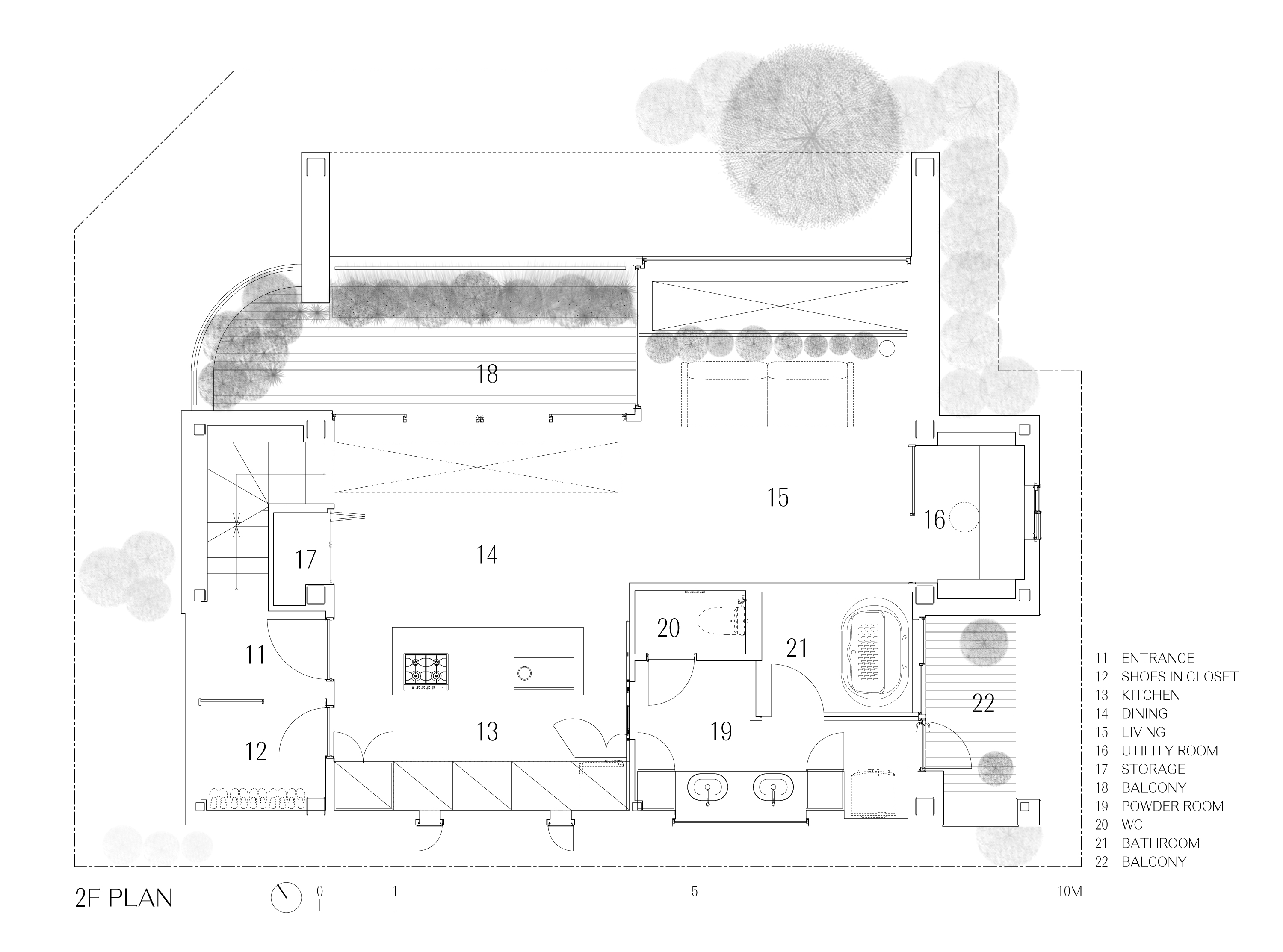
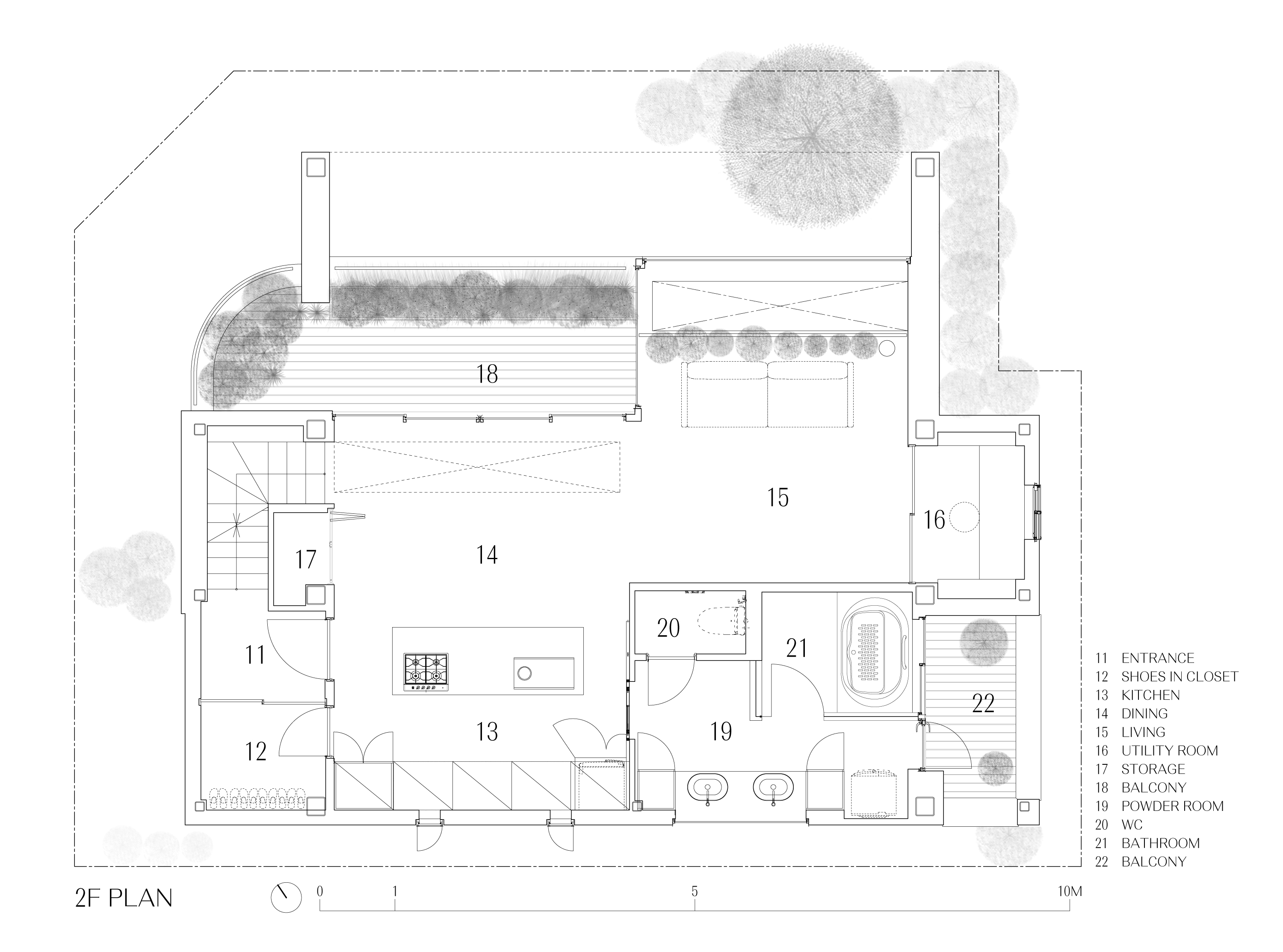
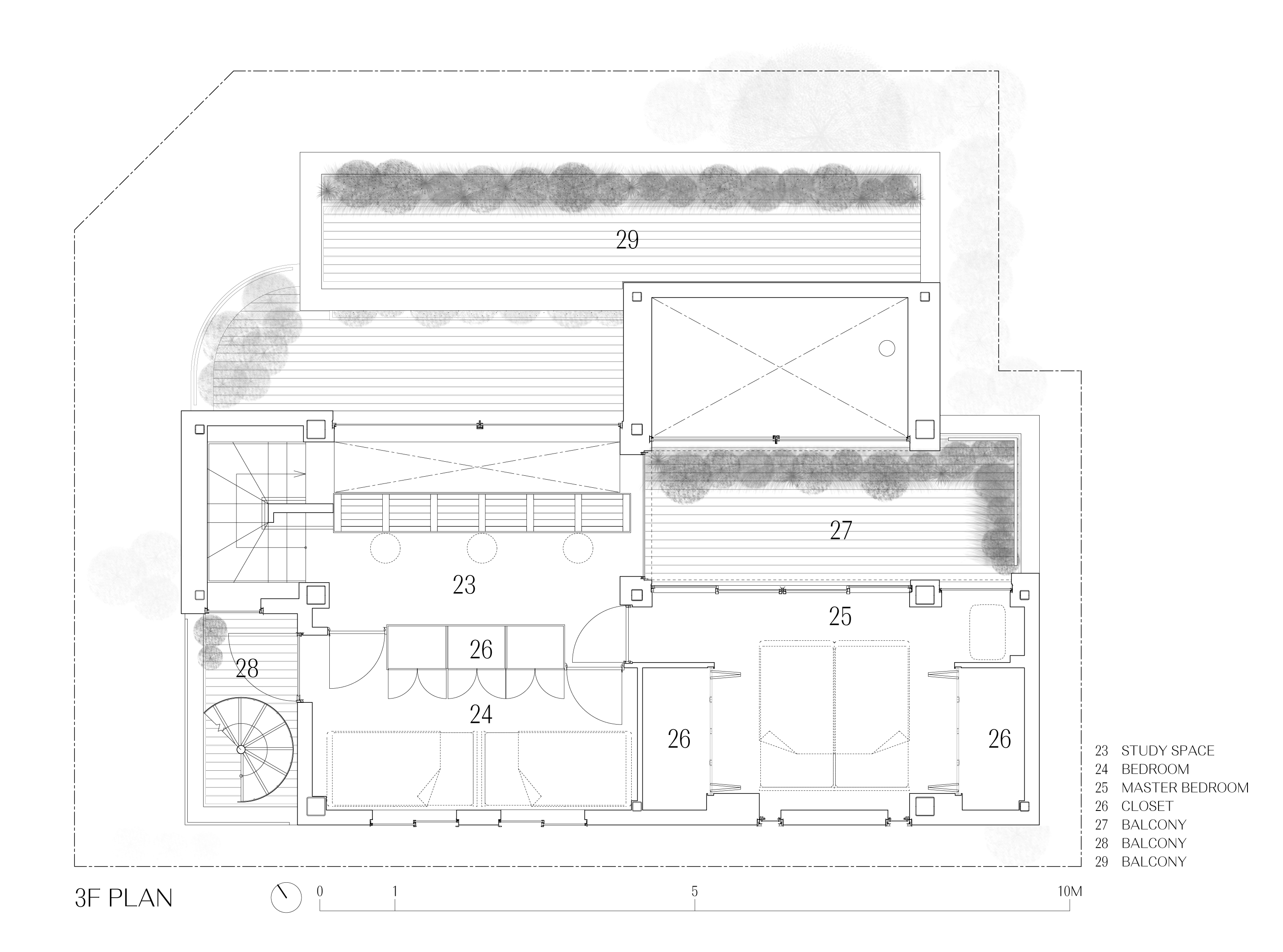
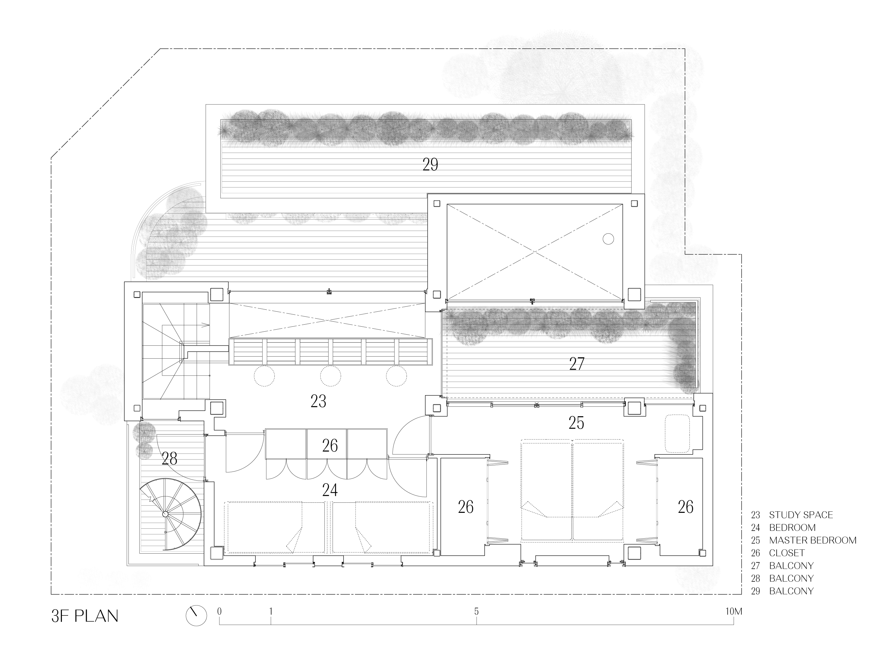
2층부터는 지역 네트워크를 통해 공유된 식물들이 대각선 개구부를 따라 배치되었으며, 남쪽 햇빛을 받으며 자라난다. 실내와 테라스가 교차하는 구성을 통해, 마치 자연 속에서 생활하는 듯한 환경이 조성되었다. 건축가는 '사람들이 함께 참여하고, 일상을 공유하는 것'이 지속 가능한 도시 공동체를 만드는 핵심이라고 믿는다. 건물이 완공된 이후, 이곳에서는 카페, 강연, 워크숍, 영화 상영 등 다양한 활동이 열리며 다층적인 네트워크가 형성되었고, 점차 다른 지역에도 영향을 미치고 있다.







건축가 카마쿠라 스튜디오(Kamakura Studio)
위치 일본, 도쿄, 치바, 나가레야마, 오오타카노모리
연면적 168.79㎡
준공 2022
대표건축가 Keisuke Fukui, Keisuke Morikawa
사진작가 Koji Fujii, Shinkenchiku-sha, KeisukeFukui
'Architecture Project > Other' 카테고리의 다른 글
| 베를리너 슈파르카세 오피스 캠퍼스 / 트호반 포스 아르히텍텐 (0) | 2025.03.25 |
|---|---|
| 돔 넥스트 도어 / 톰스 캄파르스 (0) | 2025.03.24 |
| 삼각형이 확장되는 곳, 안봉 홈 쇼룸 / 에이디 아키텍처 (0) | 2025.03.13 |
| 하늘목장 체험장 / (주)지에이건축사사무소 (1) | 2025.03.11 |
| 로컬스티치 크리에이터 타운 서교 / (주)간삼건축종합건축사사무소 (0) | 2025.03.10 |
마실와이드 | 등록번호 : 서울, 아03630 | 등록일자 : 2015년 03월 11일 | 마실와이드 | 발행ㆍ편집인 : 김명규 | 청소년보호책임자 : 최지희 | 발행소 : 서울시 마포구 월드컵로8길 45-8 1층 | 발행일자 : 매일



