
Local Stitch Creator Town Seogyo
청년 1인 가구는 다양한 주거 형태와 함께 자신들의 라이프스타일에 적합한 거주 공간을 선호한다. 로컬스티치 크리에이터 타운 서교는 이들의 유동적인 생활방식과 니즈를 충족할 수 있는 건축적인 고민과 모색을 담아 새롭게 제안한 주거 형태다. 서교동은 오래된 건물과 새로운 문화가 공존하는 지역이다. 로컬스티치 크리에이터 타운 서교는 관광숙박시설로 인허가가 진행되었지만, 일반적인 관광객이 아닌 대학생, 사회초년생, 지역의 창작자 등의 청년 세대를 주요 타겟으로 하여 내부 프로그램과 공간이 디자인되었다.


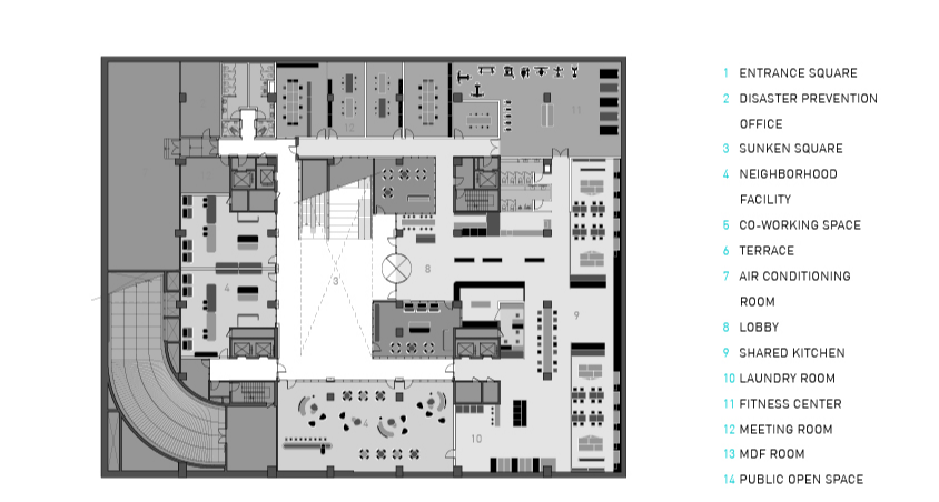
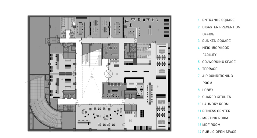
동네에서 열리는 작은 시장, 주민이 즐겨 찾는 가게와 식당, 아티스트가 함께하는 전시 및 축제 등은 창작자들의 성장을 지원한다. 로컬스티치 크리에이터 타운 서교는 호텔이 가진 유휴 자원을 지역과 공유하고 커뮤니티를 연결하는 플랫폼이며, 주민들의 일상의 장소이자 서교동만의 특별한 로컬 경험을 즐길 수 있는 곳이다.


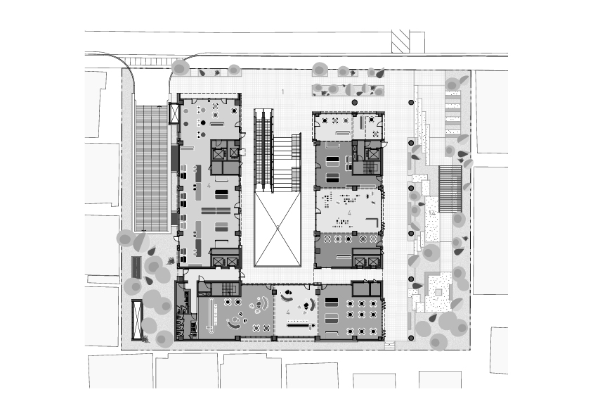
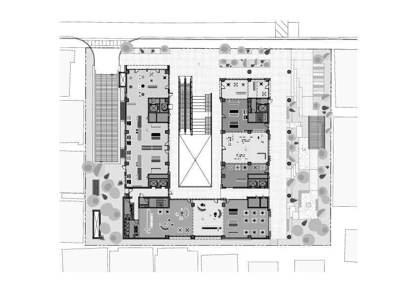
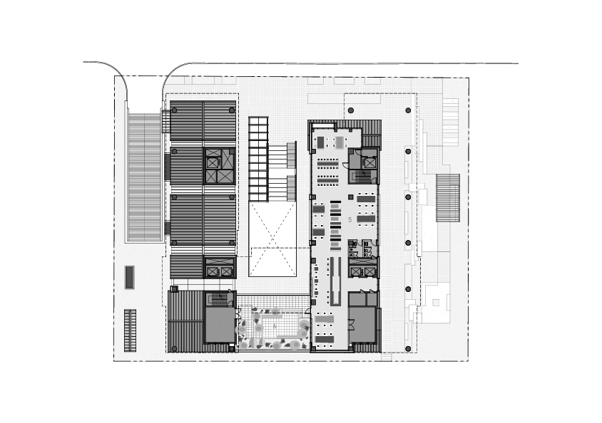
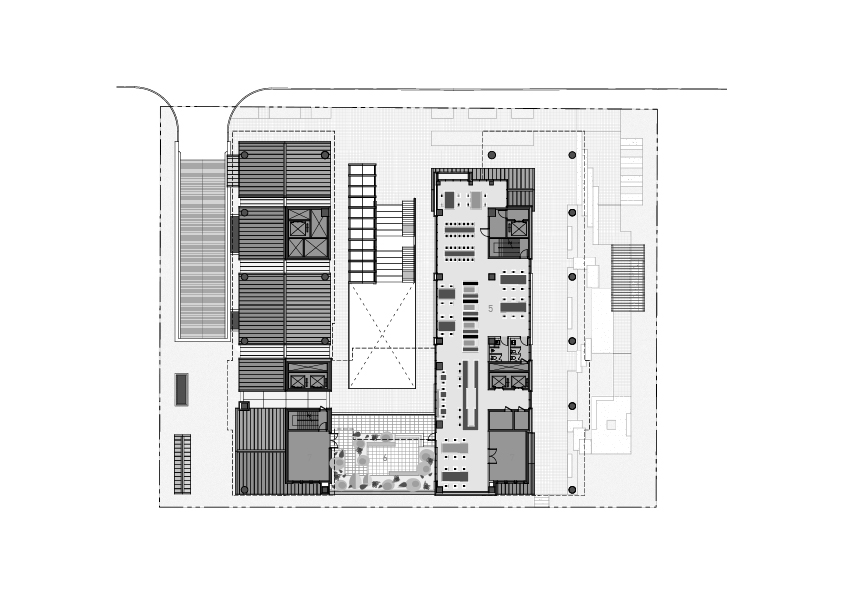
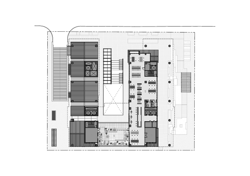
오픈 스페이스인 라운지와 중정은 보행자와 주민의 쉼터가 되며, 지역 커뮤니티를 활성화하는 지역 연계 프로그램이 진행된다. 여기에 공유 주거, 공유 오피스, 공유 주방과 같은 공유 프로그램을 통해 지역을 체험하고 자신만의 삶의 방식을 찾아 나갈 수 있다. 로컬스티치 크리에이터 타운 서교는 7개 층으로 주변 건축물에 비해 상대적으로 볼륨이 크게 지어졌다. 이러한 물리적인 규모의 차이를 해소하기 위해 저층부 일부를 시각적으로 분리하여 기존 건축물들과 어우러지도록 계획했다. 1, 2층과 상층부는 박공형 디자인과 외관 재료의 대비를 통해 완전히 분리했다. 저층부는 따뜻한 느낌의 붉은 벽돌으로 마감되었으며, 고층은 도시의 색을 담는 것과 동시에 주변 환경에서 익숙하게 찾아볼 수 있는 콘크리트 블록 쌓기 방식으로 지어졌다. 이로 인해 저층은 분산된 마을의 이미지를 가지며, 지역 가로변의 휴먼 스케일과 자연스럽게 동화되는 이미지를 느낄 수 있다.







건축가 (주)간삼건축종합건축사사무소(GANSAM co.Ltd)
위치 서울특별시 마포구 서교동 월드컵북로 5길 41
용도 관광숙박시설, 근린생활시설
대지면적 3,622.10㎡
건축면적 2,099.43㎡
연면적 17,590.02㎡
규모 지하 3층, 지상 7층
건폐율 57.96%
용적률 239.98%
설계기간 2020. 3. - 2021. 4.
시공기간 2021. 4. - 2023. 4.
준공 2023. 4.
대표건축가 김태집
프로젝트건축가 이효상
디자인팀 박성국, 최영두, 허아린, 이명률, 지윤정
구조엔지니어 (주)센구조연구소
기계엔지니어 (주)융도엔지니어링
전기엔지니어 (주)나라기술단
시공 에이치에스화성(주)
발주자 이지스자산운용(주)
사진 정동욱
해당 프로젝트는 건축문화 2025년 3월호(Vol. 526)에 게재되었습니다.
The project was published in the November, 2025 recent projects of the magazine(Vol. 526).
March 2025 : vol. 526
Contents : COMPETITION : BOOKS : RECENT PROJECT GYERIM WEST VALLEY Ⅱ / YEOHEON ARCHITECT & ENGINEERS CO계림 웨스트밸리 Ⅱ / 건축사사무소 여헌(주) Sky Ranch Sheep House / GA department Architects & Associates하늘목장
anc.masilwide.com
'Architecture Project > Other' 카테고리의 다른 글
| 삼각형이 확장되는 곳, 안봉 홈 쇼룸 / 에이디 아키텍처 (0) | 2025.03.13 |
|---|---|
| 하늘목장 체험장 / (주)지에이건축사사무소 (1) | 2025.03.11 |
| 굽이쳐 흘러 들어오는 곳 / 난 아르키텍투스 (0) | 2025.02.27 |
| 드 팔렌시아 / 프르포 로드리게스 & 오리올 (0) | 2025.02.27 |
| 트리폴리스 파크/ 엠브이알디브이 (0) | 2025.02.24 |
마실와이드 | 등록번호 : 서울, 아03630 | 등록일자 : 2015년 03월 11일 | 마실와이드 | 발행ㆍ편집인 : 김명규 | 청소년보호책임자 : 최지희 | 발행소 : 서울시 마포구 월드컵로8길 45-8 1층 | 발행일자 : 매일



