
대지 인근에는 고층의 업무 시설이 밀집해 있고, 서로 다른 성격의 거리 풍경이 급속하게 전이된다. 동서남북으로 다가구주택과 다세대주택에 면하고 있어 기존 건물의 철거 당시 여러 민원이 있었다. 선데이브런치 본사에는 외부로 보이는 창문을 최소화하고 전체적인 볼륨을 몇 개의 선으로 정돈하고 단순화하는 방식을 적용했다. 이에 따라 신축 건축물에 대한 지역 주민들의 거부감을 줄이고 기존 골목길의 풍경에 차분하게 스며들 수 있었다.

보행자의 시선과 가까운 1층 필로티 벽체는 노출 콘크리트 마감으로 회색 벽돌 파사드와 연속된다. 사선 형태의 대지 경계부에는 2층에서 옥탑 층까지 연속되는 곡면의 외피를 사용해 부드럽고 유연한 모습의 길모퉁이를 만들었다. 조적 공사는 하나의 벽돌로 두 가지의 쌓는 방식을 선택했다. 공장에서 생산된 표준 크기의 매끈한 벽돌을 쌓는 방식과 현장에서 조적공들이 표준 크기의 벽돌을 반파해 불규칙하고 서로 다른 요철 모양의 벽돌을 쌓는 방식이다.

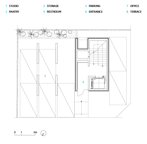
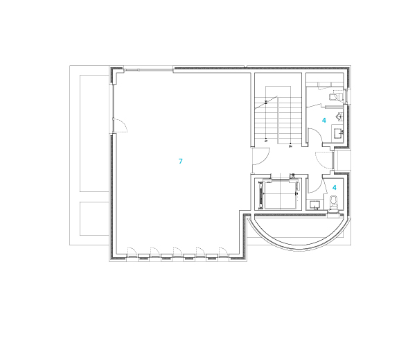
특히 현장에서 깨트린 반파 벽돌은 그 단면이 불규칙하여 건축물이 빛을 받는 시간에 따라 다양한 형상의 그림자가 건축물의 이미지를 변화시킨다. 지하 1층은 사진 스튜디오나 연습실로 사용될 것을 고려하여 전용 공간 내부에 계단을 두고 지상층에 비해 높은 층고를 확보했다. 1층은 매스를 뒤로 물러나게 하여 개방감을 부여하고 주 출입구 역할을 하는 작은 홀을 계획했다. 2층부터 5층까지는 엘리베이터와 계단실로 구성된 코어를 중심으로 전용 공간과 공용 공간을 분리하여 쾌적하고 편안한 사무 공간을 만들었다. 2층과 3층은 외부 테라스를, 옥상에는 정원을 조성하여 바쁜 일상과 업무 속에서 휴식할 수 있다.








건축가 (주)건축사사무소 서가(SEOGA ARCHITECTS)
위치 서울특별시 강남구 역삼동
용도 근린생활시설
대지면적 212.40㎡
건축면적 127.39㎡
연면적 553.00㎡
규모 지하 1층, 지상 5층
건폐율 59.98%
용적률 199.27%
설계기간 2022. 10. - 2023. 4.
시공기간 2023. 5. - 2024. 5.
준공 2024. 6.
대표건축가 오승현, 박혜선
프로젝트건축가 오승현, 박혜선
디자인팀 김몽환
구조엔지니어 윤구조
기계엔지니어 성지이앤씨(주)
전기엔지니어 성지이앤씨(주)
시공 다미건설(주)
발주자 (주)선데이브런치
사진작가 texture on texture
해당 프로젝트는 건축문화 2025년 2월호(Vol. 525)에 게재되었습니다.
The project was published in the November, 2025 recent projects of the magazine(Vol. 525).
February 2025 : vol. 525
Contents : COMPETITION : BOOKS : RECENT PROJECT Y22007 PJ_012 / BSN ARCHI.연남동 리모델링 프로젝트 / 비에스엔 건축사사무소 GD House / Adarq - André David Arquitecto지디 하우스 / 아다르크 - 안드레 다비
anc.masilwide.com
'Interior Project > Office' 카테고리의 다른 글
| 레보루션-코닉스 사옥 리노베이션 / 휴고 코노 아키텍트 어소시에이츠 (0) | 2025.07.10 |
|---|---|
| 모듈로 구성하는 생물 친화 실험공간 / 에콜로직스튜디오 엘알 (0) | 2025.04.28 |
| 나누고 더해지며 연결되고 분리되는 공간 / 세이 아키텍츠 (0) | 2025.01.23 |
| 포근함 속 개방감이 더해진 사무실 / 인오더 스튜디오 (0) | 2025.01.16 |
| 에너지 트레블 에이전시 본사 / 씨.디디 (0) | 2025.01.15 |
마실와이드 | 등록번호 : 서울, 아03630 | 등록일자 : 2015년 03월 11일 | 마실와이드 | 발행ㆍ편집인 : 김명규 | 청소년보호책임자 : 최지희 | 발행소 : 서울시 마포구 월드컵로8길 45-8 1층 | 발행일자 : 매일



