
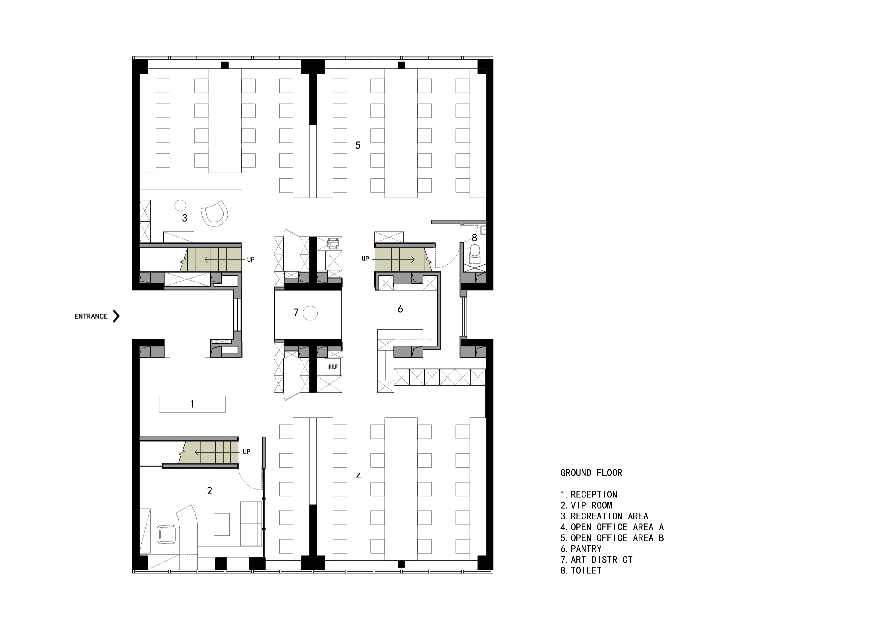
에너지 트래블 에이전시는 고품질의 서비스를 제공하는 여행사다. 디자이너는 기업의 문화를 반영하여 일반적인 공간 규범에서 벗어나 역동적이면서 효율적인 사무 공간으로 재구성했다. 기존의 공간은 제한된 면적과 낮은 빔, 공간을 차지하고 있는 두 줄의 기둥 등 여러 가지 제약이 있었다. 여기에 약 100명을 수용해야 하는 유연하고 기능적인 공간을 만들기 위해 ‘집 안의 집’이라는 콘셉트로 설계를 진행했다

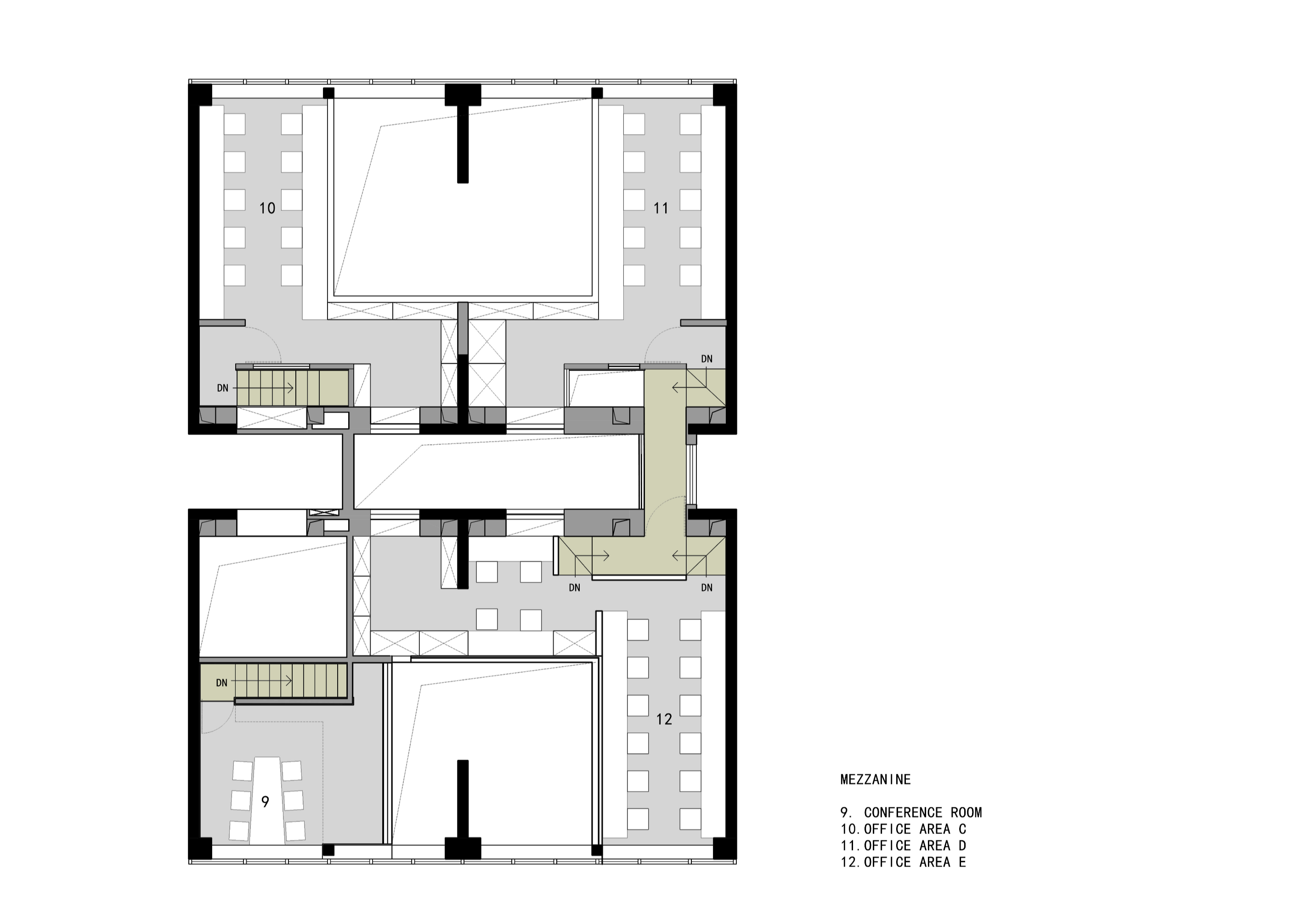
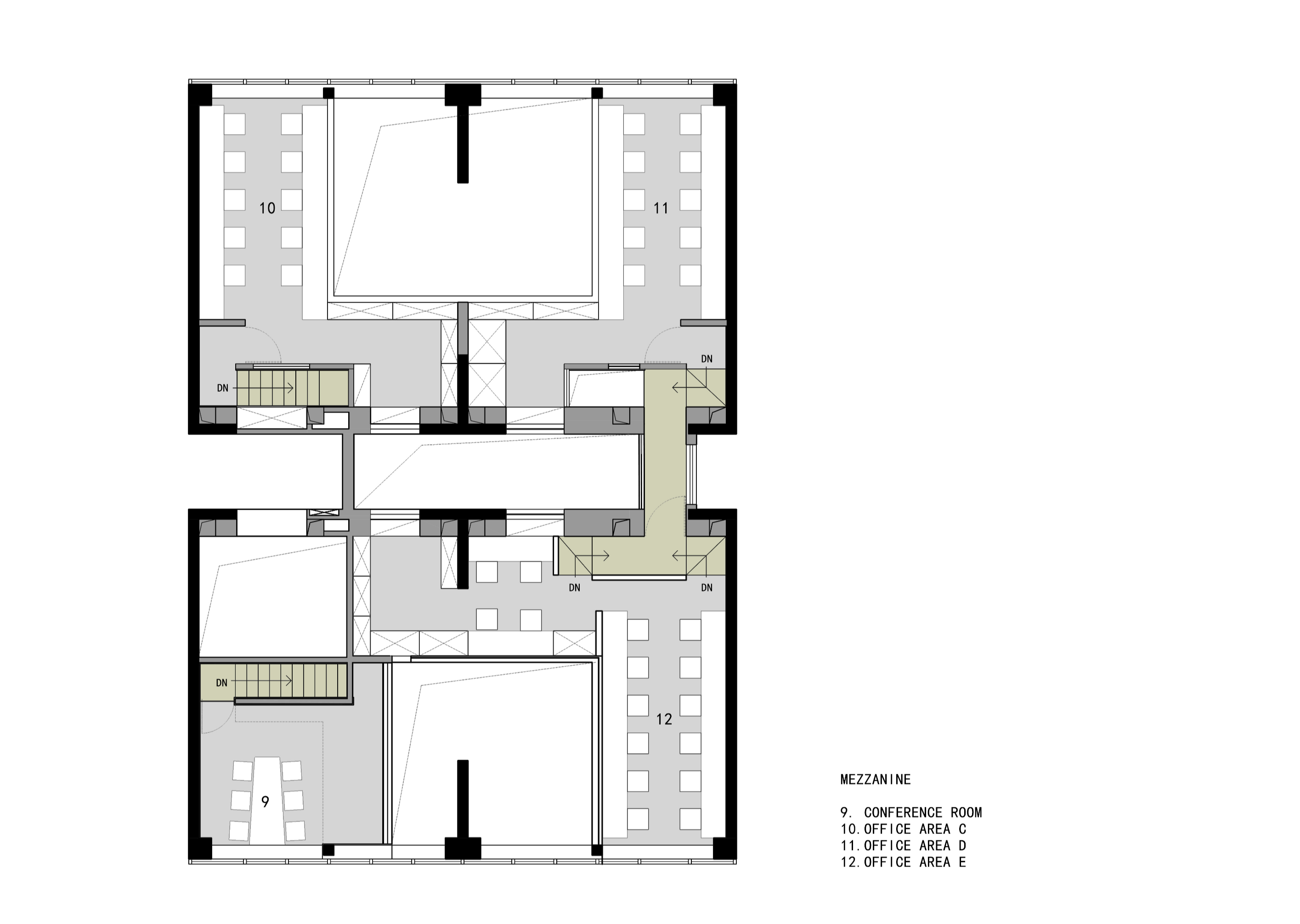
4.28m의 천장 높이를 활용하여 중층을 만들고, 수직 동선을 전략적으로 배치하여 2개 층에 있는 서로 다른 4개의 ‘집’을 연결했다. 이러한 배치는 사용 가능한 공간을 확보하는 것과 동시에 단조로운 공간의 흐름을 깨고 개방적이고 상호 작용이 가능한 기능적인 업무 공간을 제공한다. 1층은 중앙 구역을 중심으로 동선이 순환하며, 벽의 개구부를 통해 두 개의 복도가 서로 연결된다. 중앙 구역의 끝에 위치한 세 개의 계단은 1층과 2층을 연결하며 유동적인 3차원 허브를 만든다.

각 층의 사이에 자리 잡은 중층은 방음 패널, 카펫 등은 강철 구조물로 인한 소음을 줄이고 업무 공간의 편안함을 높인다. 복도와 중층에서는 중앙 구역의 설치 미술품을 바라볼 수 있다. ‘U’자 형태의 볼륨은 계단의 양쪽에 개방적인 공간을 만든다. 중앙 구역의 천장에 매단 설치 미술품은 브랜드 창업자의 레트로 퓨처리즘의 미학을 드러내고, 현대적이고 창의적인 회사 문화를 강조한다.

디자이너 씨.디디(c.dd)
위치 중국, 광둥
용도 업무시설
프로젝트면적 360.00㎡
준공 2024. 5.
대표디자이너 Li Xinglin, He Xiaoping
프로젝트디자이너 Yu Guoneng
설치미술 ROECIO Art studio
발주자 ENERGY TRAVEL AGENCY
시공 c.dd(Liang Yihui, Zeng Xiaojun, Huang Jiaxin, Lai Jiajie)
사진작가 Feast Vision/Fafa Lam


해당 프로젝트는 건축문화 2025년 1월호(Vol. 524)에 게재되었습니다.
The project was published in the November, 2024 recent projects of the magazine(Vol. 524).
January 2025 : vol. 524
Contents : RECORDS : COMPETITION : BOOKS : RECENT PROJECT Toegye-dong Community Center / ZANGINSOO.ARCHITECTS + SIMMI ARCHITECTURE & ENGINEERING퇴계동 행정복지센터 / 장인수건축사사무소 + 심미건축사사무소 Kanagawa De
anc.masilwide.com
'Interior Project > Office' 카테고리의 다른 글
| 나누고 더해지며 연결되고 분리되는 공간 / 세이 아키텍츠 (0) | 2025.01.23 |
|---|---|
| 포근함 속 개방감이 더해진 사무실 / 인오더 스튜디오 (0) | 2025.01.16 |
| 세로의 띠를 두른 듯 / 에스투디오 몬테비데오 (0) | 2025.01.10 |
| 만개를 기다리며 _ 하우스 오브 예젤 / 어나더 디 스튜디오 (0) | 2025.01.02 |
| GREEN HOME OFFICE (0) | 2024.10.28 |
마실와이드 | 등록번호 : 서울, 아03630 | 등록일자 : 2015년 03월 11일 | 마실와이드 | 발행ㆍ편집인 : 김명규 | 청소년보호책임자 : 최지희 | 발행소 : 서울시 마포구 월드컵로8길 45-8 1층 | 발행일자 : 매일


