
La Maquinita Coworking, Godoy Cruz headquarters
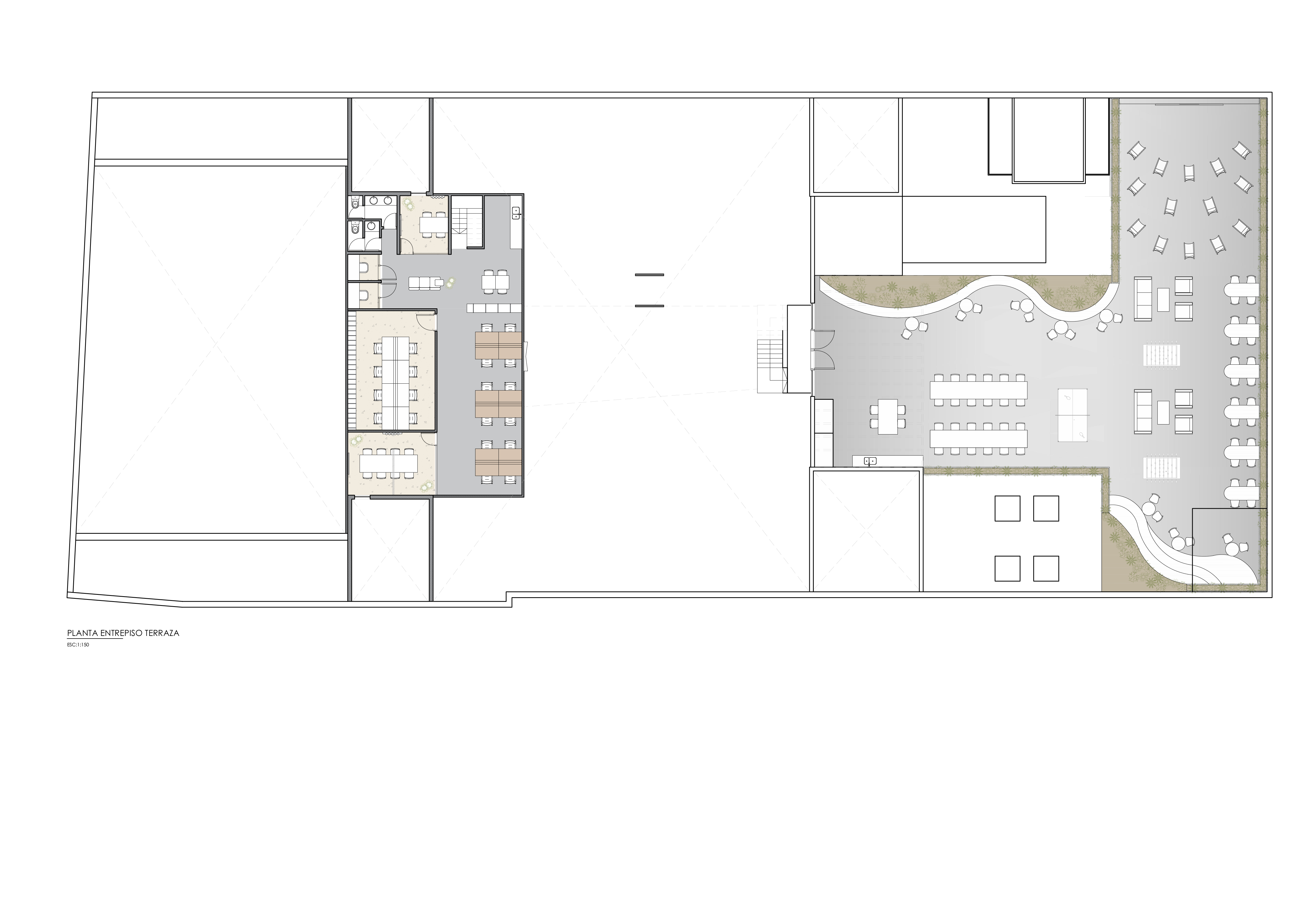
이 프로젝트는 기존 사무실을 리모델링 한 것 입니다. 프로젝트의 핵심은 공간에 큰 임팩트를 주는 요소들을 구상하는 것이었으며, 이를 위해 세 가지 주요 포인트에서 작업을 진행했습니다.


첫 번째는 기존 건축물의 안뜰을 공동 공간으로 통합하는 것이었습니다. 새로운 창틀, 가구, 식물, 그리고 기존 건축물의 벽돌을 드러내는 방식으로 공간을 재구성했습니다. 두 번째는 공간의 흐름을 강조하는 것이었습니다. 기존의 경사로에 주목하여 오래된 회색 바닥을 새로운 파란색 바닥으로 교체하고, 경사로를 파란색으로 칠했습니다. 또한, 수직적 이동을 더욱 강조하기 위해, 1층의 바닥에서 시작하여 최상층의 천장까지 벽화를 그려서 공간의 연결감을 강화했습니다. 세 번째는 테라스를 활용하여 작업 공간을 확장하고, 야외에서 다양한 활동을 할 수 있도록 공간과 전망을 최대한 활용하는 것이었습니다.







디자이너 에스투디오 몬테비데오(ESTUDIO MONTEVIDEO)
위치 부에노스 아이레스, 팔레르모 소호
프로젝트면적 2,980㎡
준공 2024
대표디자이너 Ramiro Veiga, Marco Ferrari, Gabriela Jagodnik
디자인팀 Melisa Daives, Florencia Mc Kidd, Lucia Ceballos, Violeta Bonicatto
사진작가 Gonzalo Viramonte
'Interior Project > Office' 카테고리의 다른 글
| 포근함 속 개방감이 더해진 사무실 / 인오더 스튜디오 (0) | 2025.01.16 |
|---|---|
| 에너지 트레블 에이전시 본사 / 씨.디디 (0) | 2025.01.15 |
| 만개를 기다리며 _ 하우스 오브 예젤 / 어나더 디 스튜디오 (0) | 2025.01.02 |
| GREEN HOME OFFICE (0) | 2024.10.28 |
| Mondadori Office Playground (0) | 2024.08.30 |
마실와이드 | 등록번호 : 서울, 아03630 | 등록일자 : 2015년 03월 11일 | 마실와이드 | 발행ㆍ편집인 : 김명규 | 청소년보호책임자 : 최지희 | 발행소 : 서울시 마포구 월드컵로8길 45-8 1층 | 발행일자 : 매일



