
공간과 기억, 행위
건물 간의 거리가 좁고 다가구와 다세대주택들이 즐비한 중곡동, 그 가운데에 정유헌(停庾軒)이 있다. 정유헌은 도심 속 쉴 수 있는 여백을 만들고, 새로운 요소를 구축하여 중소 규모 주택의 새로운 가능성을 보여준다. 대지에 있던 기존의 옛집은 마당이 넓고, 나무가 많아 주변 아차산에서 새들이 자주 찾아오는 집이었다. 건축주는 노후화된 옛집을 철거하지만, 새로운 건축물에서도 이 터에서의 기억과 경험이 이어지길 바랐다. 건축가는 옛집의 맥락을 고려하여 기단부, 주차장, 주 출입구를 배치하고 옛집이 가지고 있던 넓은 수평 마당은 수직의 베란다, 발코니로 각 세대의 작은 마당을 만들었다. 건축주 세대는 기존 집에서의 기억과 행위를 이어갈 수 있도록 했다.


자연과의 접점
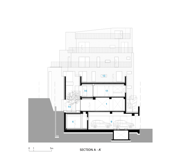
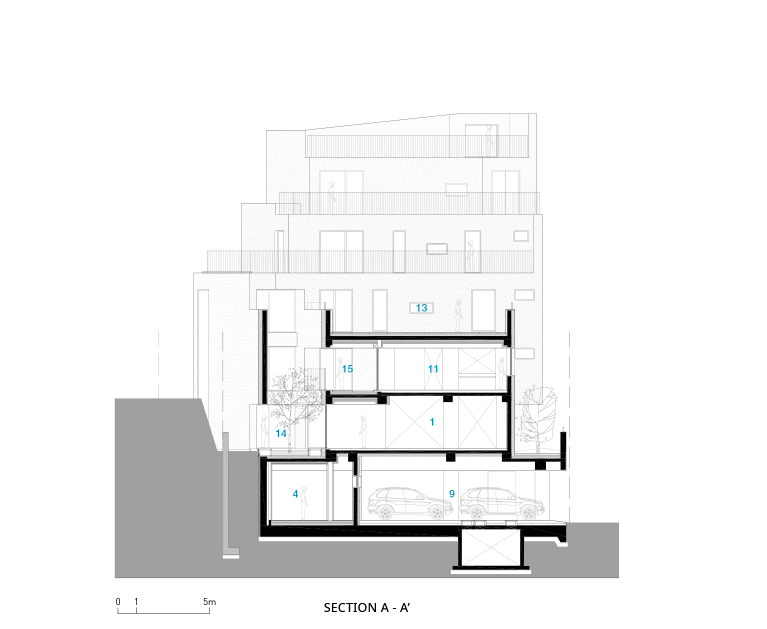
정유헌의 중정, 공용 공간, 외부 데크는 자연과 접하며 건축과 사람, 자연이 소통하는 방식을 보여주는 공간이다. 1층 중정을 통해 건물 내부까지 자연광이 들어오며, 순환되는 공기가 밝고 쾌적한 환경을 만든다. 1층부터 3층까지의 계단실은 중정과 연결된다. 3층부터 5층까지는 계단실과 홀의 천창과 창을 통해 계절의 변화를 느낄 수 있다. 특히, 각 층의 외부 데크는 작은 마당 역할을 하여 계절, 날씨의 변화에 따라 다양한 외부 활동이 가능하다.


다층적인 관계의 연결
건물의 파사드는 도시와 사람을 연결하는 매개체 역할을 한다. 정유헌의 대지는 삼거리 앞에 자리 잡아 보행자에게 건물을 기억하게 하는 것이 쉬우며 동선을 유도하고 길을 찾는 데 도움을 줄 수 있는 위치였다. 건축가는 건물의 매스를 도로의 형태와 흐름을 따라 만들고, 대조되는 질감의 마감재를 사용하여 다양한 느낌을 주고자 했다. 볼륨과 곡선을 드러내는 STO 외단열 시스템 마감재는 흰색의 매트한 질감을 보여주고, 부분적으로 사용된 검은색의 마감재는 러프하고 거친 느낌을 준다. 저층 기단부는 노란 나무 대문집이라 불리던 이전 집의 맥락을 고려하여 송판 노출콘크리트도 사용되었다. 정유헌은 세대 간의 프라이버시는 존중하되 적정한 거리를 유지하여 거주자에게 정서적, 심리적 안정감을 준다. 각 층에는 한 세대만 거주하며, 세대마다 현관, 거실, 외부 데크가 한 동선에 이어진다. 외부 데크는 개인의 공간이면서 다른 세대와 소통할 수 있는 반(半)공공 공간의 역할을 한다.






위치 서울특별시 광진구 중곡동
용도 근린생활시설, 공동주택(다세대주택)
대지면적 298.20㎡
건축면적 176.09㎡
연면적 790.49㎡
규모 지하 1층, 지상 5층
건폐율 59.05%
용적률 192.42%
설계기간 2021. 5. - 2022. 5.
시공기간 2023. 5. - 2024. 3.
준공 2024. 3.
대표건축가 이승호
프로젝트건축가 이승호
구조엔지니어 터구조(주)
기계엔지니어 (주)성지이앤씨
전기엔지니어 (주)성지이앤씨
시공 (주)우리마을에이엔씨
발주자 한강23
사진작가 노경
해당 프로젝트는 건축문화 2025년 1월호(Vol. 524)에 게재되었습니다.
The project was published in the November, 2024 recent projects of the magazine(Vol. 524).
January 2025 : vol. 524
Contents : RECORDS : COMPETITION : BOOKS : RECENT PROJECT Toegye-dong Community Center / ZANGINSOO.ARCHITECTS + SIMMI ARCHITECTURE & ENGINEERING퇴계동 행정복지센터 / 장인수건축사사무소 + 심미건축사사무소 Kanagawa De
anc.masilwide.com
'Architecture Project > Multifamily' 카테고리의 다른 글
| 과거의 옷을 입은 곳에 앉아 바라보는 지금의 풍경 / 위 아키텍텐, 파울 더 라위터르 아르히텍츠 (0) | 2025.01.22 |
|---|---|
| 자연으로 만드는 커뮤니티 / 더블유와이-티오 아키텍츠 (0) | 2025.01.16 |
| 등대와 가까이 있는 아파트 / Joaquim Sellas (0) | 2024.12.20 |
| 그리브니츠제 호수를 바라보며 / 트호반 포스 아르히텍텐 (0) | 2024.12.17 |
| 모두를 감싸안는 (0) | 2024.12.11 |
마실와이드 | 등록번호 : 서울, 아03630 | 등록일자 : 2015년 03월 11일 | 마실와이드 | 발행ㆍ편집인 : 김명규 | 청소년보호책임자 : 최지희 | 발행소 : 서울시 마포구 월드컵로8길 45-8 1층 | 발행일자 : 매일



