
Housing Near the Lighthouse
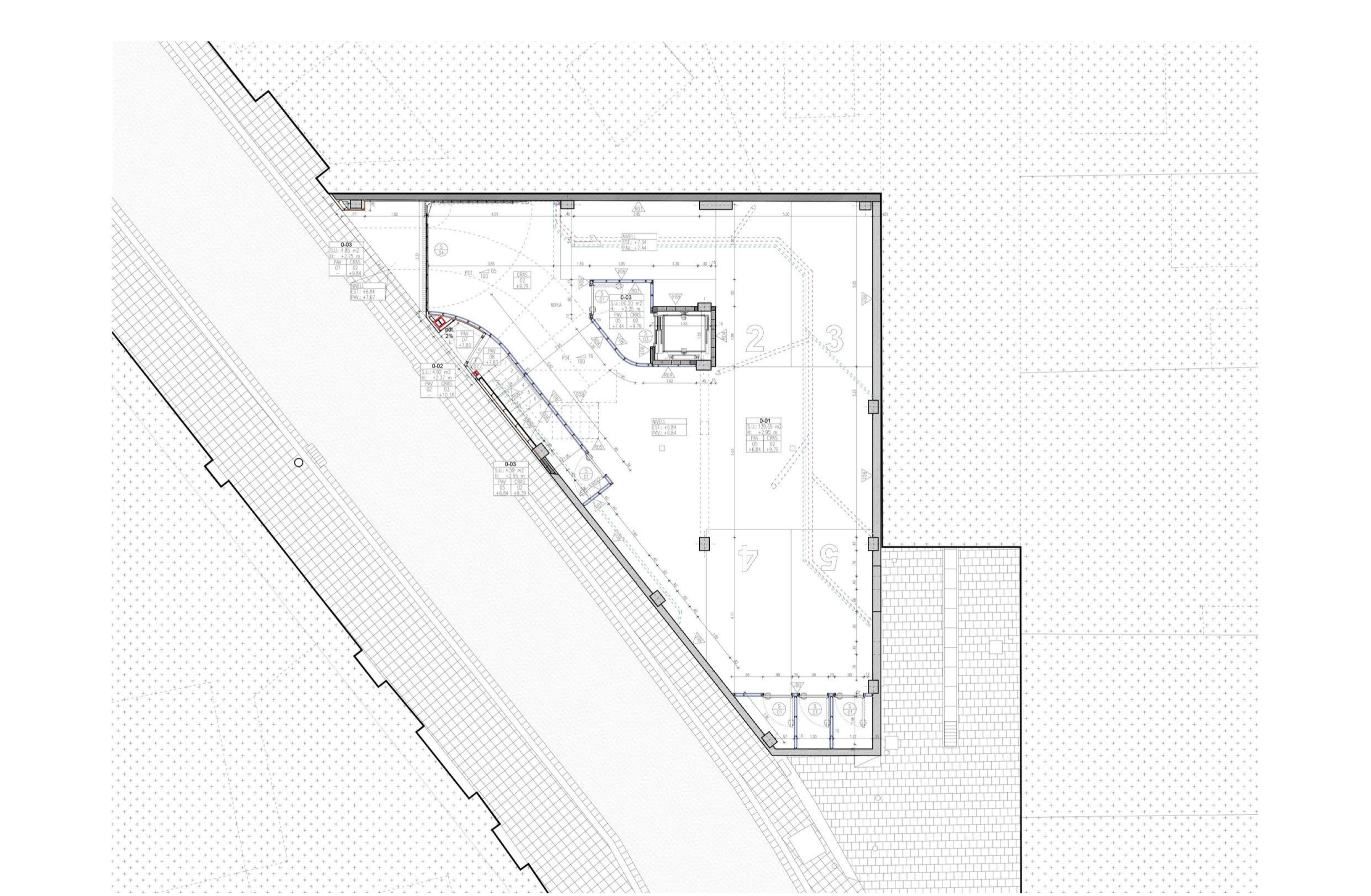
이 주택은 구시가지와 팔라모스 등대 지역 사이에 위치한 삼각형 모퉁이 부지에 자리 잡고 있습니다. 한쪽은 좁고 흙빛을 띤 구시가지의 거리이며, 다른 한쪽은 항구와 바다가 근처 등대가 있는 지역입니다.

이 프로젝트는 제약 조건을 지키며 디자인 하는 것 에서 출발했습니다. 팔라모스의 도시계획 규정상, 건축물 입면은 흙색 혹은 오크톤의 색을 띄어야 하고, 개구부의 디자인도 규칙으로 정해져 있었습니다. 메스의 디자인적 형태와 규칙은 사이트 일대 건축물 현황, 지역 전통 건축과 현대적 건축 디자인의 조화, 바다와 마주한 좁은 마을 골목 그리고 미래 거주자의 일상과 배경에 있는 넓은 바다의 지평선 사이의 것들을 참고하였습니다.


전통 건축의 단순함은 건축물 재료를 선정하는 것에도 반영되었습니다. 파사드는 모르타르로 마감되었고, 바닥은 세라믹 타일, 계단은 화강암으로 계획했습니다. 내부는 흰색으로 칠하고 난간과 롤러 블라인드를 사용했습니다. 구조를 제외한 대부분의 공정은 건식 기술과 반(半)조립된 요소를 사용했습니다. 이를 통해 건물의 탄소 발자국을 줄이고 건축 비용을 절감하며, 사용 가능한 공간을 최적화했습니다.


위치 스페인, 지로나, 팔라모스
용도 공동주택
대지면적 174㎡
건축면적 646㎡
설계기간 2020 - 2022
시공기간 2022 - 2024
대표건축가 Joaquim Sellas
프로젝트건축가 Joaquim Sellas
구조엔지니어 Cabezas, Góngora & Moreno
배관엔지니어 Hernan Lleida
시공 Ricard Mercader
사진작가 Del Rio Bani
'Architecture Project > Multifamily' 카테고리의 다른 글
| 자연으로 만드는 커뮤니티 / 더블유와이-티오 아키텍츠 (0) | 2025.01.16 |
|---|---|
| 정유헌(停庾軒) / 리아 아키텍츠 (0) | 2025.01.09 |
| 그리브니츠제 호수를 바라보며 / 트호반 포스 아르히텍텐 (0) | 2024.12.17 |
| 모두를 감싸안는 (0) | 2024.12.11 |
| 다온주택 (0) | 2024.11.27 |
마실와이드 | 등록번호 : 서울, 아03630 | 등록일자 : 2015년 03월 11일 | 마실와이드 | 발행ㆍ편집인 : 김명규 | 청소년보호책임자 : 최지희 | 발행소 : 서울시 마포구 월드컵로8길 45-8 1층 | 발행일자 : 매일



