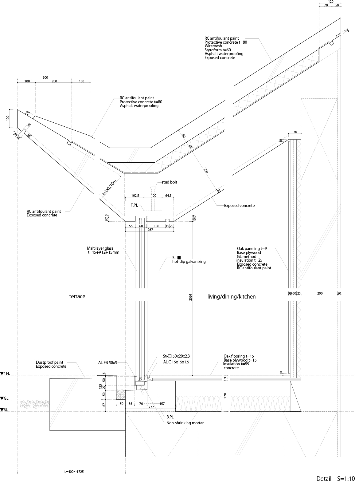
House in Muko
This is a project to rebuild an old house in Muko city, in Kyoto prefecture. Farmland and bamboo forests spread surrounding the site. Since ancient times the area has been delimited by stone walls and dotted with farm-style habitations, each consisting of
anc.masilwide.com



Architects Tomohiro Hata Architect & Associates
Location Japan, Kyoto
Completed 2023
Photographer Toshiyuki Yano
반응형
'Detail' 카테고리의 다른 글
| [section] Maatulli School and Kindergarten (0) | 2024.11.18 |
|---|---|
| [facade] THE GERLAND AQUATIC AND SPORTS CENTER (0) | 2024.11.15 |
| [facade] Paddington Square (0) | 2024.11.13 |
| [facade] Paddington Square (0) | 2024.11.13 |
| [Structure Detail] Chapais Airport (0) | 2023.04.20 |
마실와이드 | 등록번호 : 서울, 아03630 | 등록일자 : 2015년 03월 11일 | 마실와이드 | 발행ㆍ편집인 : 김명규 | 청소년보호책임자 : 최지희 | 발행소 : 서울시 마포구 월드컵로8길 45-8 1층 | 발행일자 : 매일



