https://ancmagazine.tistory.com/3436


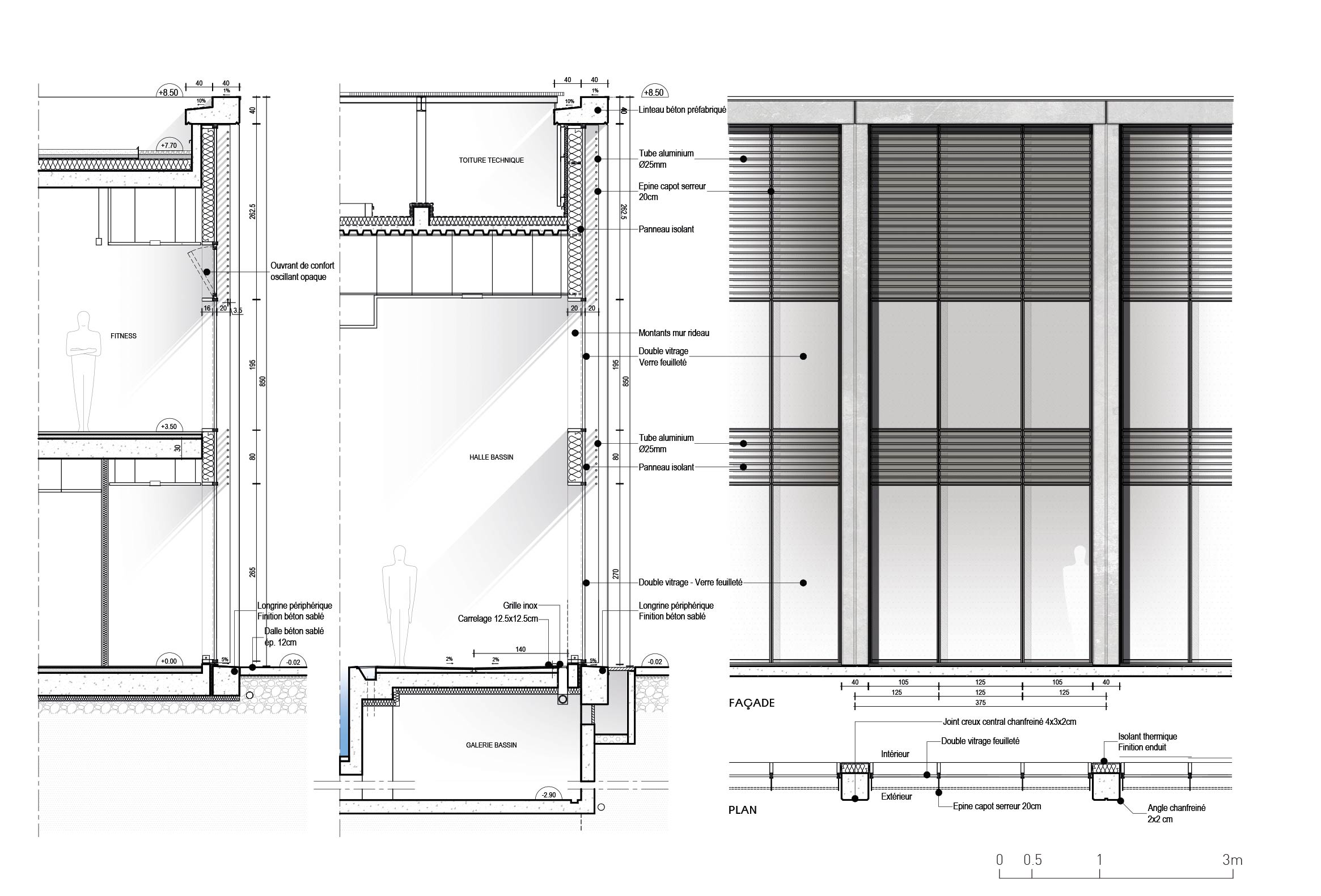
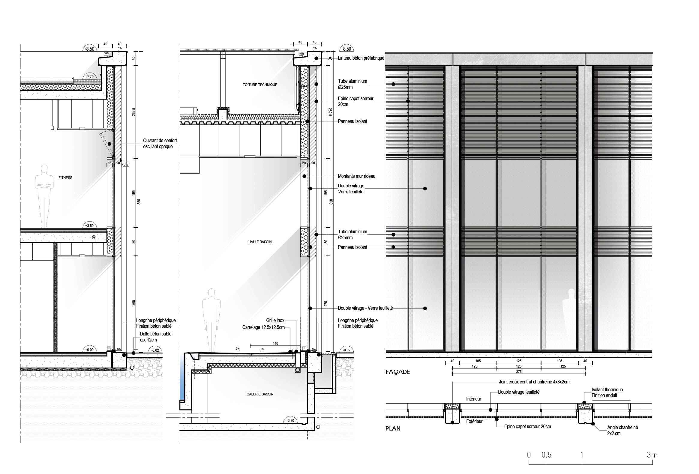
Architects 4_32 architecte
Location France, Av. Jean Jaurès, 69007 Lyon, 353
Completed 2024
Photographer Vladimir de Mollerat du Jeu
반응형
'Detail' 카테고리의 다른 글
| [section] Pavillon Jardins (0) | 2024.11.20 |
|---|---|
| [section] Maatulli School and Kindergarten (0) | 2024.11.18 |
| [section]House in Muko (0) | 2024.11.15 |
| [facade] Paddington Square (0) | 2024.11.13 |
| [facade] Paddington Square (0) | 2024.11.13 |
마실와이드 | 등록번호 : 서울, 아03630 | 등록일자 : 2015년 03월 11일 | 마실와이드 | 발행ㆍ편집인 : 김명규 | 청소년보호책임자 : 최지희 | 발행소 : 서울시 마포구 월드컵로8길 45-8 1층 | 발행일자 : 매일



