
응암제2동 복함문화센터의 "응암, 잇다"
공원속에 위치한 새로운 응암제2동 복합문화센터는 지역주민들의 문화가 곁들어져, 앞으로 변화하는 응암동의 새로운 이야기를 맞이합니다.
응암동은 재개발을 통하여 새로운 도시로 발전되어 가고 있습니다. 그에 따라 주민센터의 확장과 이전을 통하여 행정에 문화가 더해지고, 주민생활의 휴식공간인 공원이 이어지며, 시간과 함께 발전된 복합문화센터는 응암동의 새로운 활력소가 될 것입니다.
"시간, 변화를 잇다."
1990년... 어느덧 35년이 지나 2024년. 노후된 응암제2동 주민센터는 복합문화센터로 다시 태어나 현시점의 새로운 지표가 됩니다.
"행정, 문화를 잇다."
주민들을 위한 필수 기반시설을 넘어 지역 발전을 위한 프로그램과 서비스를 제공하는 공간으로 현도시의 다채로운 마당이 됩니다.
"건축, 공원을 잇다."
기존 소공원의 산책로와 다양한 휴식공간들을 건물로 끌어들이고 확장시키며 응암2동의 새로운 이야기를 이어갑니다.




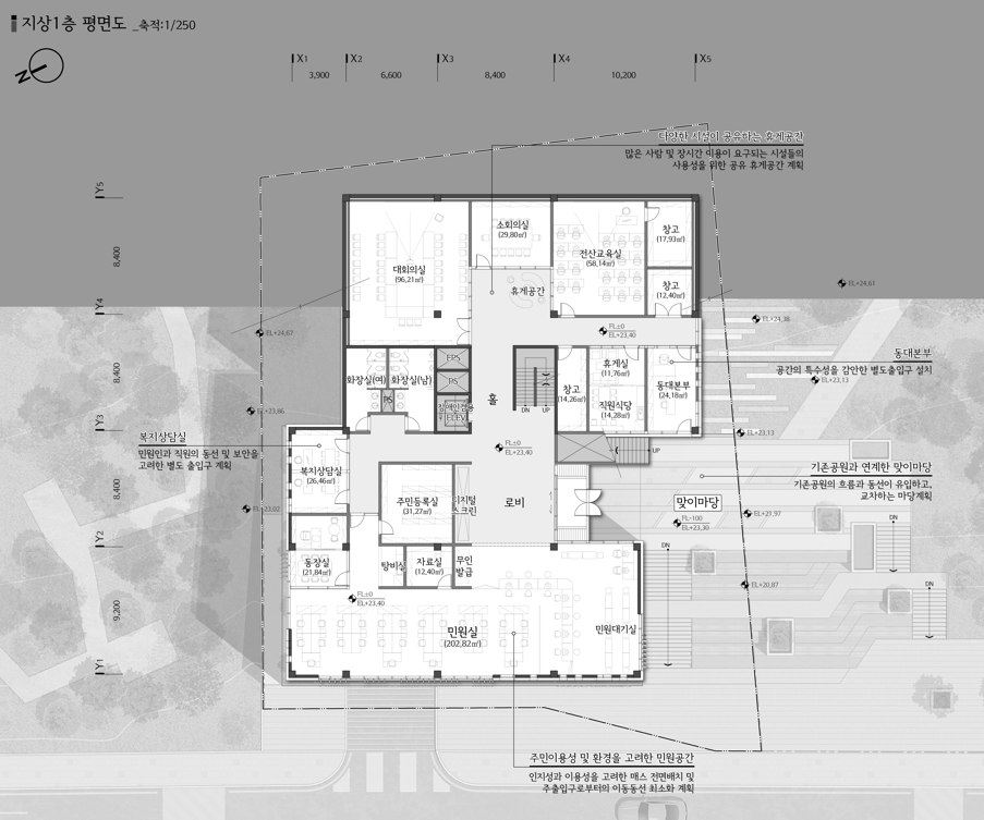
응암제2동 복합문화센터 건립 설계공모
우수작_JTM건축사무소, 에스큐빅 디자인 랩
대지면적 1,400㎡
건축면적 838.81㎡
연면적 3,357.59㎡
규모 지하1층, 지상4층
건폐율 59.92%
용적률 167.15%
주요마감 롱브릭, 테라코타, 로이복층유리, 목재루버
주차개요 19대
대표건축가 이준무, 정재희
조경면적 219.52㎡
발주자 은평구청
'Plans' 카테고리의 다른 글
| 당항포관광지 다목적홀 건립사업 _ 입상작 (0) | 2024.11.15 |
|---|---|
| 응암제2동 복합문화센터 건립 설계공모 _ 입상작 B (0) | 2024.11.14 |
| 응암제2동 복합문화센터 건립 설계공모 _ 입상작 A (0) | 2024.11.13 |
| 응암제2동 복합문화센터 건립 설계공모 _ 당선작 (0) | 2024.11.11 |
| 수서동 구립 공공도서관 설계공모 _ 입상작 (0) | 2024.11.08 |
마실와이드 | 등록번호 : 서울, 아03630 | 등록일자 : 2015년 03월 11일 | 마실와이드 | 발행ㆍ편집인 : 김명규 | 청소년보호책임자 : 최지희 | 발행소 : 서울시 마포구 월드컵로8길 45-8 1층 | 발행일자 : 매일



