
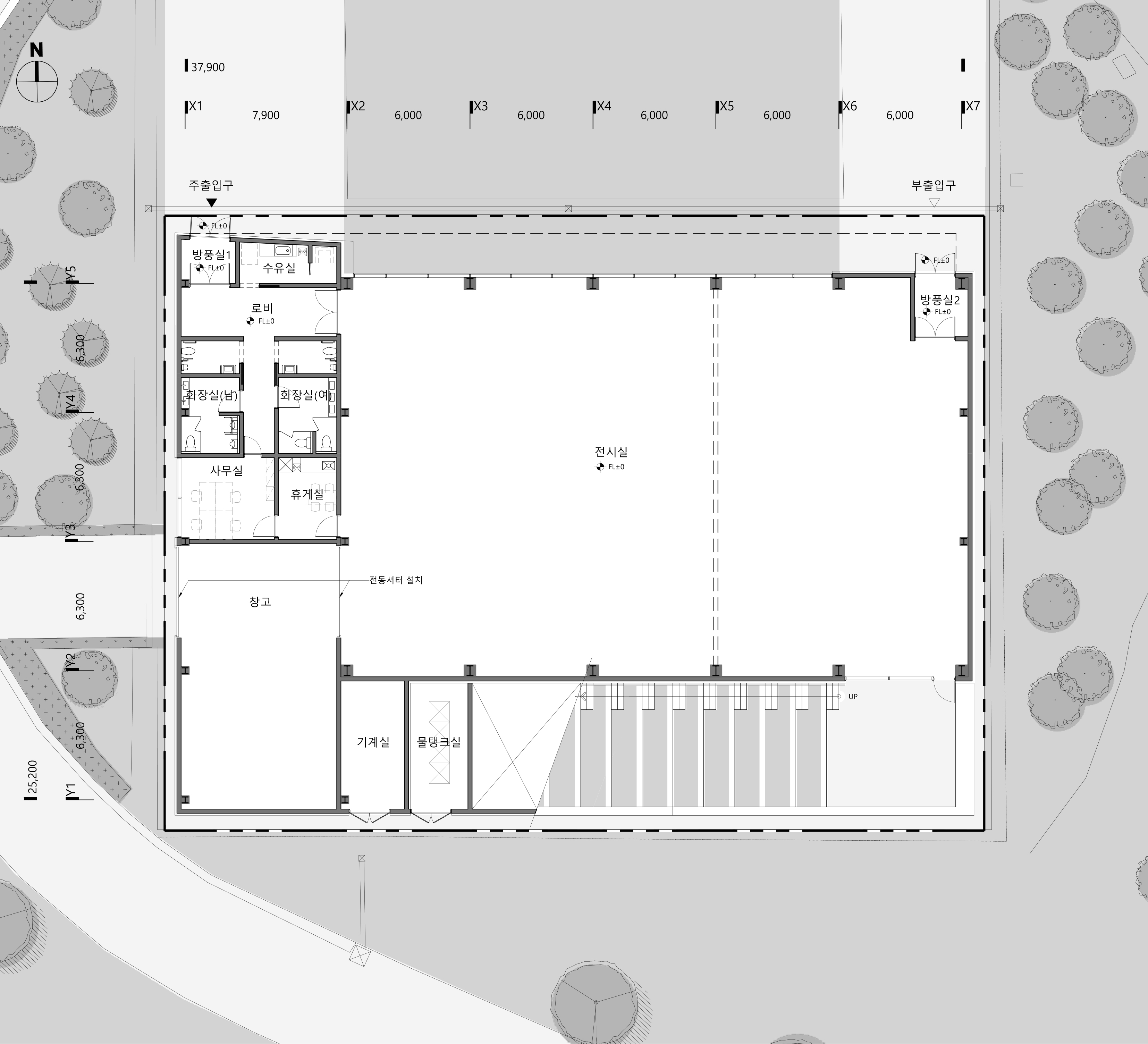
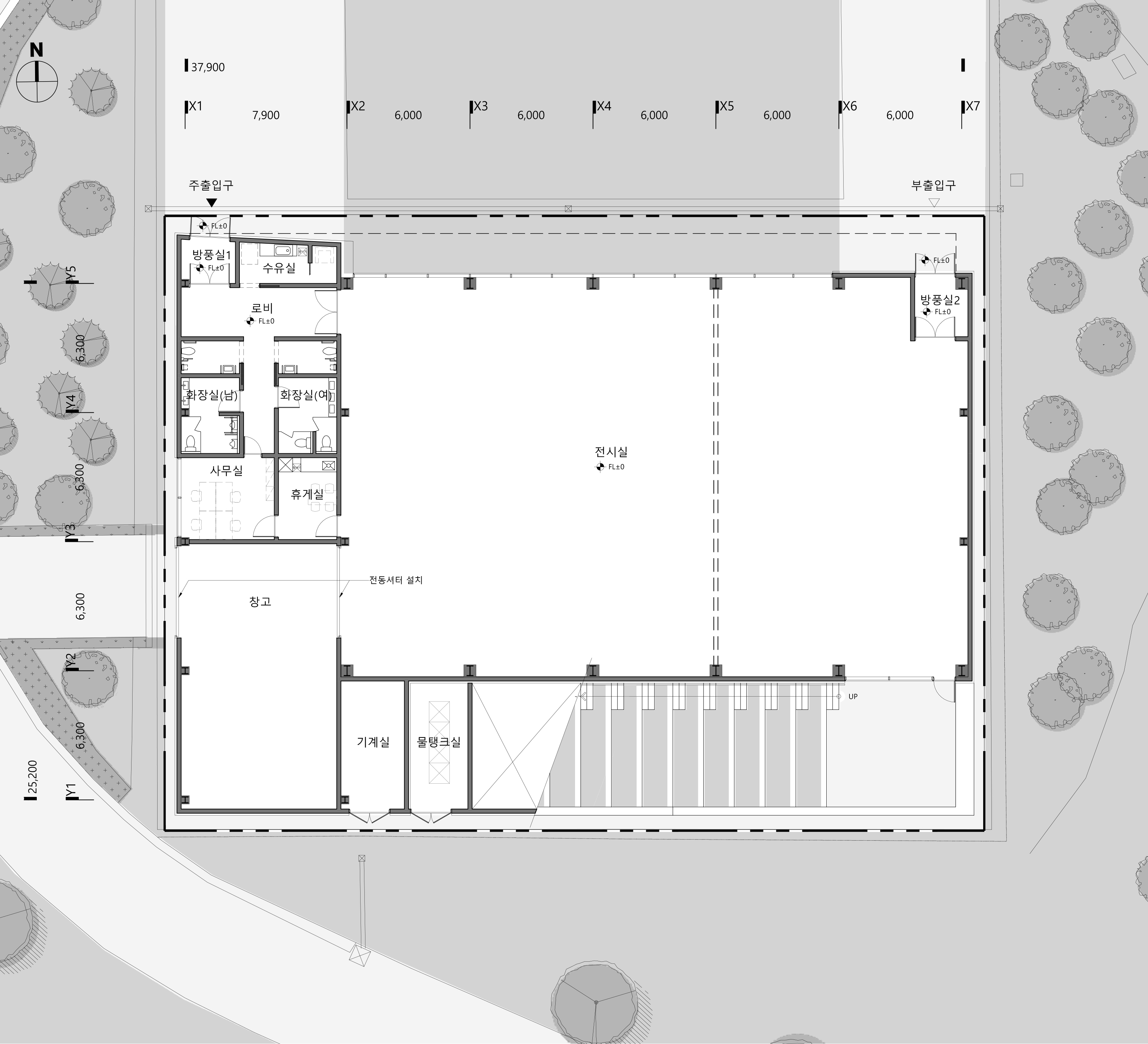
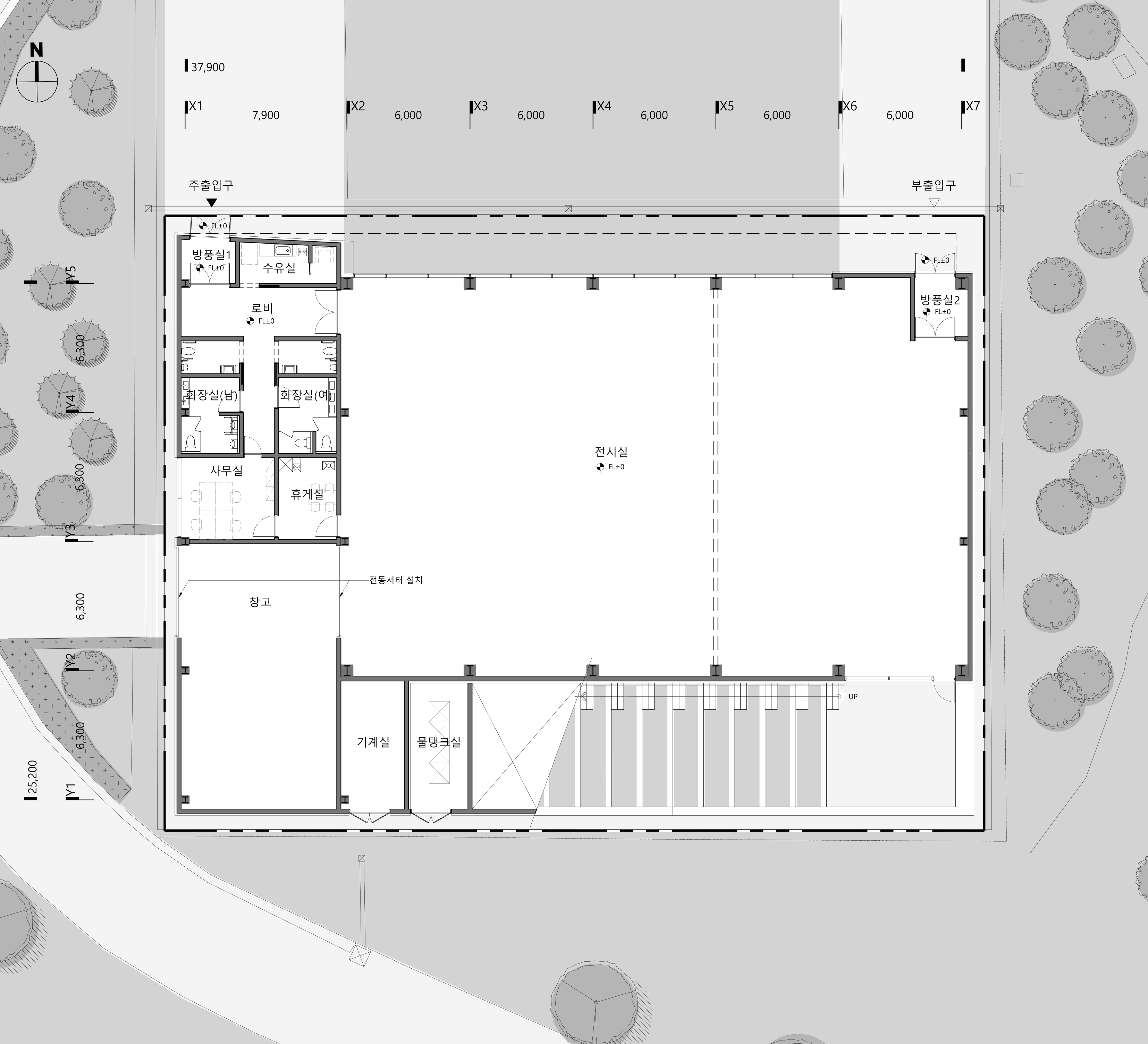
당항포관광지 내 철거 예정인 노후 전시시설 부지에 변화하는 관광 트렌드 및 관람객의 니즈를 충족하기 위해 다목적으로 구성된 새로운 전시·공연·체험 공간이 요구되었습니다. 대상지는 가로 40m, 세로 30m의 직사각형 형태의 대지로, 관광지 내 우측 해안가 옆에 위치하고 있습니다.
당항포관광지 내 다목적 홀의 기능상 공룡과 관련된 전시가 우선되었고, 공룡 화석에 대한 접근에서 디자인이 시작되었습니다. 공룡 시대, 멸종, 퇴적, 융기 그리고 발견까지의 공룡 화석이 발견되는 과정을 디자인 프로세스로 삼았습니다. 외관 디자인은 퇴적층의 레이어를 연상시키는 재료의 조합을 통해 구현되었습니다. 자연 채광과 개방감: 전면 마당으로 넓게 열린 창을 통해 자연 채광을 극대화하고, 내부와 외부 공간의 시각적 연결감을 강화했습니다.
1. 다목적 홀: 전시 공간: 공룡 화석을 중심으로 한 전시가 이루어지며, 전면 마당으로 넓게 열린 창을 두어 다목적 홀 자체가 하나의 전시관 역할을 합니다.
공연 및 체험 공간 : 출입구를 좌우로 배치하여 필요 시 분리하여 사용할 수 있도록 계획하였습니다. 다양한 공연과 체험 프로그램이 가능하도록 유연한 공간 구성을 제공합니다.
2. 외부 전시 공간 : 자연 경관과의 조화: 배면의 외부 전시 공간에서는 전시를 보며 인접한 바다를 조망할 수 있어 자연 경관을 경험할 수 있습니다. 이는 광장에서 느끼지 못한 주변 자연경관을 경험하게 합니다.
3. 서비스 동선 : 기존 차량 동선에 맞춰 창고의 서비스 동선을 계획하여, 계획 대지 주변의 훼손을 최소화하였습니다.
이와 같은 설계 방식을 통해 계획된 다목적홀은 공룡 전시뿐만 아니라 다양한 활동이 가능한 복합 문화 공간으로서, 지역 관광 활성화에 기여할 것입니다.




당항포관광지 다목적홀 건립사업(간이공모)
2등작_아키즘 건축사사무소
대지면적 104,695㎡
건축면적 6,699.51㎡
연면적 8,587.96㎡
규모 지상1층 (13.40m)
건폐율 6.40%
용적률 7.97%
주차개요 기존 당항포관광단지 내 주차장 활용(주차계획 필요없음)
대표건축가 이동형
발주자 경상남도 고성군청 관광진흥과
'Plans' 카테고리의 다른 글
| 음성 시니어친화형 국민체육센터 건립공사 건축설계공모_ 5등작 / 파이브에스 건축사사무소 + 건축사사무소 공백 (0) | 2024.11.20 |
|---|---|
| 남해군 보물섬 인생학교 상주희망센터 건립사업 건축설계 제안공모 _ 당선작 / 미틀건축사사무소 (0) | 2024.11.18 |
| 응암제2동 복합문화센터 건립 설계공모_ 5등작 / (주)고래종합건축사사무소 (0) | 2024.11.14 |
| 응암제2동 복합문화센터 건립 설계공모_ 2등작 / JTM건축사무소 + 에스큐빅 디자인 랩 (0) | 2024.11.13 |
| 응암제2동 복합문화센터 건립 설계공모_ 4등작 / (주)엠디에이건축사사무소 (0) | 2024.11.13 |
마실와이드 | 등록번호 : 서울, 아03630 | 등록일자 : 2015년 03월 11일 | 마실와이드 | 발행ㆍ편집인 : 김명규 | 청소년보호책임자 : 최지희 | 발행소 : 서울시 마포구 월드컵로8길 45-8 1층 | 발행일자 : 매일



