
대상지는 기존 구도심을 구성하는 저층주거지와 신규 개발된 고층아파트 단지의 경계부에 조성된 도심지 소공원과 직접 마주하고 있는 양호한 장소적 조건을 가지고 있다.
따라서, 공원이라는 장소적 맥락이 가진 긍정적 요소들을 주민들을 위해 마련되는 공간에 충실하게 반영하고, 요구되는 다양한 용도의 복합적 기능들을 유기적으로 조합하여 공원의 연장선상에 일체화된 생활문화센터를 계획하고자 하였다.
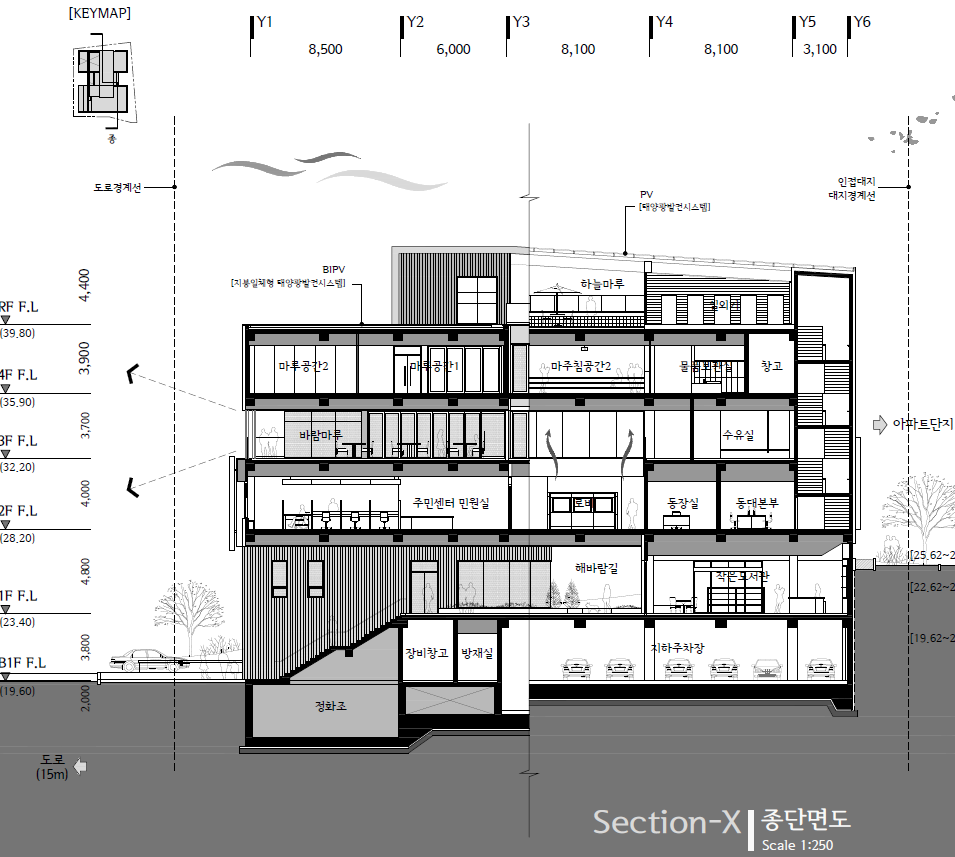
공원의 녹색 맥락을 문화센터 내로 연장하고 유입시켜 전체가 하나의 네트워크로 상호관계할 수 있도록 하였고, 공원의 양호한 녹지환경을 열린 조망의 재료로 충분하게 활용해 주었다. 문화센터와 마주하고 있는 해바람공원이 가진 원천적 자연환경인 따스한 '햇살'과 솔솔 불어오는 '바람'과 푸르른 '하늘'을 공간에 녹여 녹색경관을 향해 열린 '마루'가 되고 모여들어 담소하는 '정자'가 되게하여 지역주민을 위한 커뮤니티 거점이 되길 기대한다.






응암제2동 복합문화센터 건립 설계공모
5등작_(주)고래종합건축사사무소
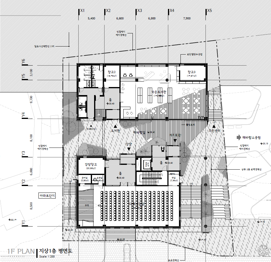
대지면적 1,400㎡
건축면적 839.57㎡
연면적 3,491.93㎡
규모 지하1층, 지상4층(최고높이 18.92m)
건폐율 59.97%
용적률 190.02%
주차개요 19대
대표건축가 김성익
발주자 은평구청
'Plans' 카테고리의 다른 글
| 남해군 보물섬 인생학교 상주희망센터 건립사업 건축설계 제안공모 _ 당선작 / 미틀건축사사무소 (0) | 2024.11.18 |
|---|---|
| 당항포관광지 다목적홀 건립사업_ 2등작 / 아키즘 건축사사무소 (0) | 2024.11.15 |
| 응암제2동 복합문화센터 건립 설계공모_ 2등작 / JTM건축사무소 + 에스큐빅 디자인 랩 (0) | 2024.11.13 |
| 응암제2동 복합문화센터 건립 설계공모_ 4등작 / (주)엠디에이건축사사무소 (0) | 2024.11.13 |
| 응암제2동 복합문화센터 건립 설계공모_ 당선작 / (주)건축사사무소 주우 + (주)건축사사무소 유피이엠 (0) | 2024.11.11 |
마실와이드 | 등록번호 : 서울, 아03630 | 등록일자 : 2015년 03월 11일 | 마실와이드 | 발행ㆍ편집인 : 김명규 | 청소년보호책임자 : 최지희 | 발행소 : 서울시 마포구 월드컵로8길 45-8 1층 | 발행일자 : 매일



