
월미도라는 지명은 그 독특한 지형을 반영하고 있으며, 그 생김새가 마치 반달의 꼬리를 닮아 달꼬리 섬으로 불리고 있다. 건축주는 월미도에 어울리는 달을 테마로 한 독창적인 건물 디자인을 요구했다.
포스트 코로나 시기에 디자인에 착수한 영향도 있지만, 갑갑한 실내가 아닌 최대한 자연환경의 접촉면을 극대화할 수 있는 개방적인 열린 공간을 추구했다. 둥근 아치와 포인티드 아치로 표현된 외부 공간은 ‘통로’와 ‘영역’의 성격을 동시에 갖는 이탈리아 건축의 포티코(Portico)를 연상시킨다. 보행자들이 부담 없이 그 안으로 들어갈 수 있으면서도, 완전한 가로 공간은 아니기에 특별한 주제를 부여할 수 있는 객장의 한 부분으로서의 기능도 기대할 수 있다.
건물 기단부에는 거친 질감의 안정감 있는 자연석(호피석) 부정형 쌓기를 사용했다. 이와 대비시켜 다층의 다양한 외부 공간을 감싸는 건축물의 외피는 매지가 없는 원바디의 메탈릭한 소재와 구조로서 백색 파빌리온(White Pavilion) 느낌의 경쾌한 분위기를 연출한다. 또한 장방형의 대지에서 흔히 볼 수 있는 상투적인 직사각형 건물 윤곽 대신, 변화감 있는 다각형 직선 라인으로 구성된 평면 형태에 요철 디테일을 가진 입체감 있는 곡선 라인(arc)의 입면을 대비시켰다. 부지 전 후면의 동서 보행 축선에서의 입면에는 달을 상징하는 달의 가장자리 주호(arc)의 윤곽을 강조하기 위해 스테인리스를 발색하여 표현했다.
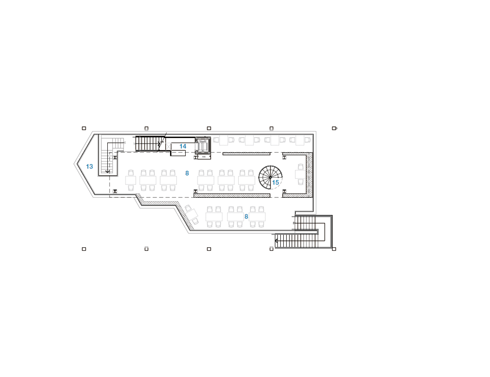
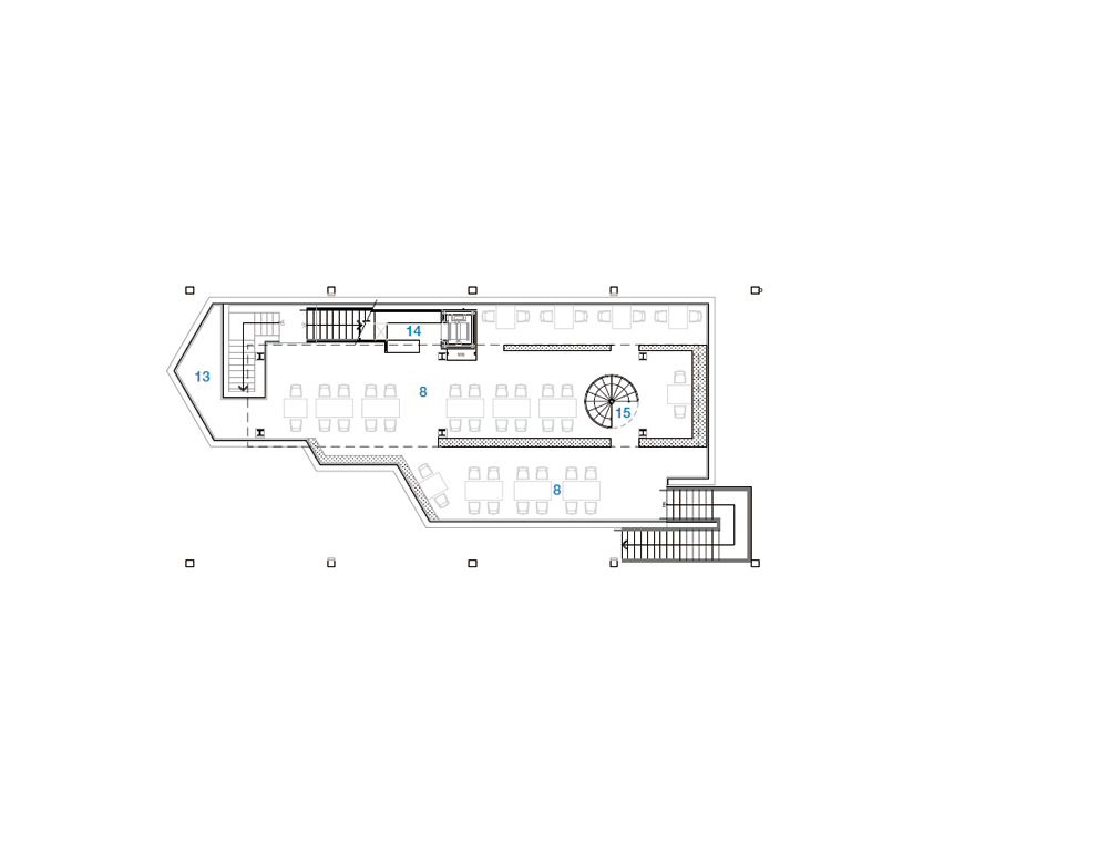
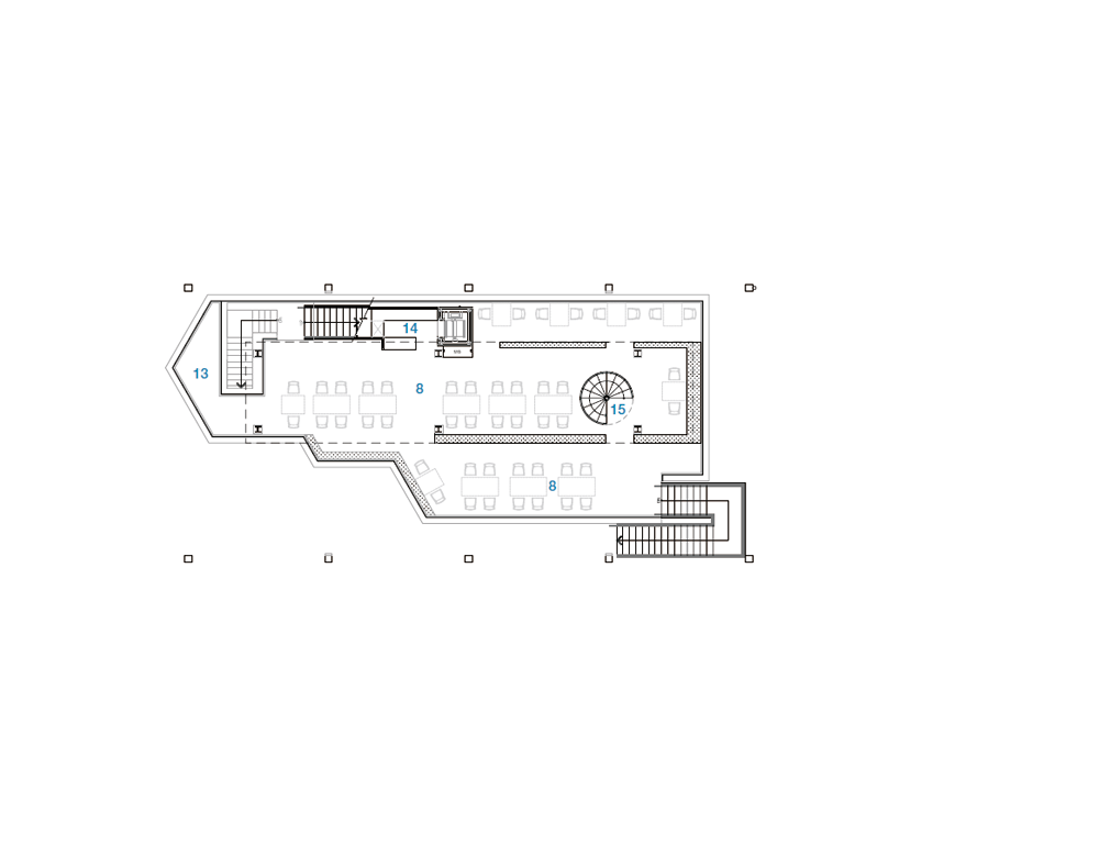
날씨와 계절의 변화에 대응할 수 있는 가변적인 건물로서, 어닝과 단열폴딩(도어) 등이 고려되었다. 특히 어닝은 패러렐 타입이면서 경관조명 업라이팅을 받으면 아름다운 실루엣이 강조되는 제품을 적용했고, 어닝의 배수로 인한 우수 선홈통이 외관을 저해하지 않도록 처리했다. 3층을 플로팅 매스로 처리함으로써 2층 객장이 메인 테라스로서의 극적 개방감을 갖도록 표현했다. 2층과 3층은 원형계단으로 연결하여 고객 접근성을 높였다. 바닷가 건물로서 염해에 강한 갈바륨을 주 외장재로 적용하여 내구성을 높였다. 계절에 따른 열적 변형을 방지하기 위해 금속 외장에는 전체적으로 2방향 슬롯 홀을 시공하였다. 경쾌하고 입체감 있는 입면의 구성을 위해, 박스칼럼과 곡가공 스틸 부재 위에 외장 금속을 레이저 가공을 통해 정밀하게 시공하고 내식성 도장을 적용하였다.
달빛 아래 아늑한 바닷바람을 즐기며 시그니처 해산물을 즐길 수 있는 특색 있는 장소로서 ‘문테라스(Moon Terrace)’가 월미도의 가족과 연인들을 위한 추억의 명소로 자리매김 하기를 바란다.











건축가 arcline architects
위치 인천광역시 중구 월미로 219
용도 근린생활시설
대지면적 487.60㎡
건축면적 289.62㎡
연면적 584.68㎡
층수 지하 1층, 지상 3층
건폐율 59.4%
용적률 106.4%
설계기간 2022. 6. - 2023. 2.
시공기간 2023. 3. - 2024. 4.
준공 2024. 4.
대표건축가 길동제
프로젝트건축가 길동제
디자인팀 박용빈
구조 CK구조 이창희
기계 선진E&C 두찬기
전기 한국티이씨 김광연
외장금속자문 이통우
발주자 (주)이든건설개발 나도선(김상훈, 오인택)
시공자 (주)다옴건설산업 김인홍(김성수, 서민균, 김종보)
사진작가 김창묵
'Architecture Project > Commercial' 카테고리의 다른 글
| Nhà Tú Garden Restaurant (0) | 2024.07.26 |
|---|---|
| KAAN restaurant (0) | 2024.07.18 |
| 8323, layers of space (0) | 2024.06.14 |
| PARK AVENUE (0) | 2024.06.13 |
| Ginza Extra Small Building (0) | 2024.06.13 |
마실와이드 | 등록번호 : 서울, 아03630 | 등록일자 : 2015년 03월 11일 | 마실와이드 | 발행ㆍ편집인 : 김명규 | 청소년보호책임자 : 최지희 | 발행소 : 서울시 마포구 월드컵로8길 45-8 1층 | 발행일자 : 매일



