

The renovation of key interior spaces at Jinpi Fang (Kingway Brewery), located in Shenzhen's Luohu District, showcases the transformation of an industrial complex into a cultural beacon within what is considered the most developed yet aging area of the city. This project adeptly navigates the delicate balance between preserving historical integrity and introducing modern enhancements, aiming to encapsulate the essence of the past and future aspirations within Shenzhen's urban fabric.
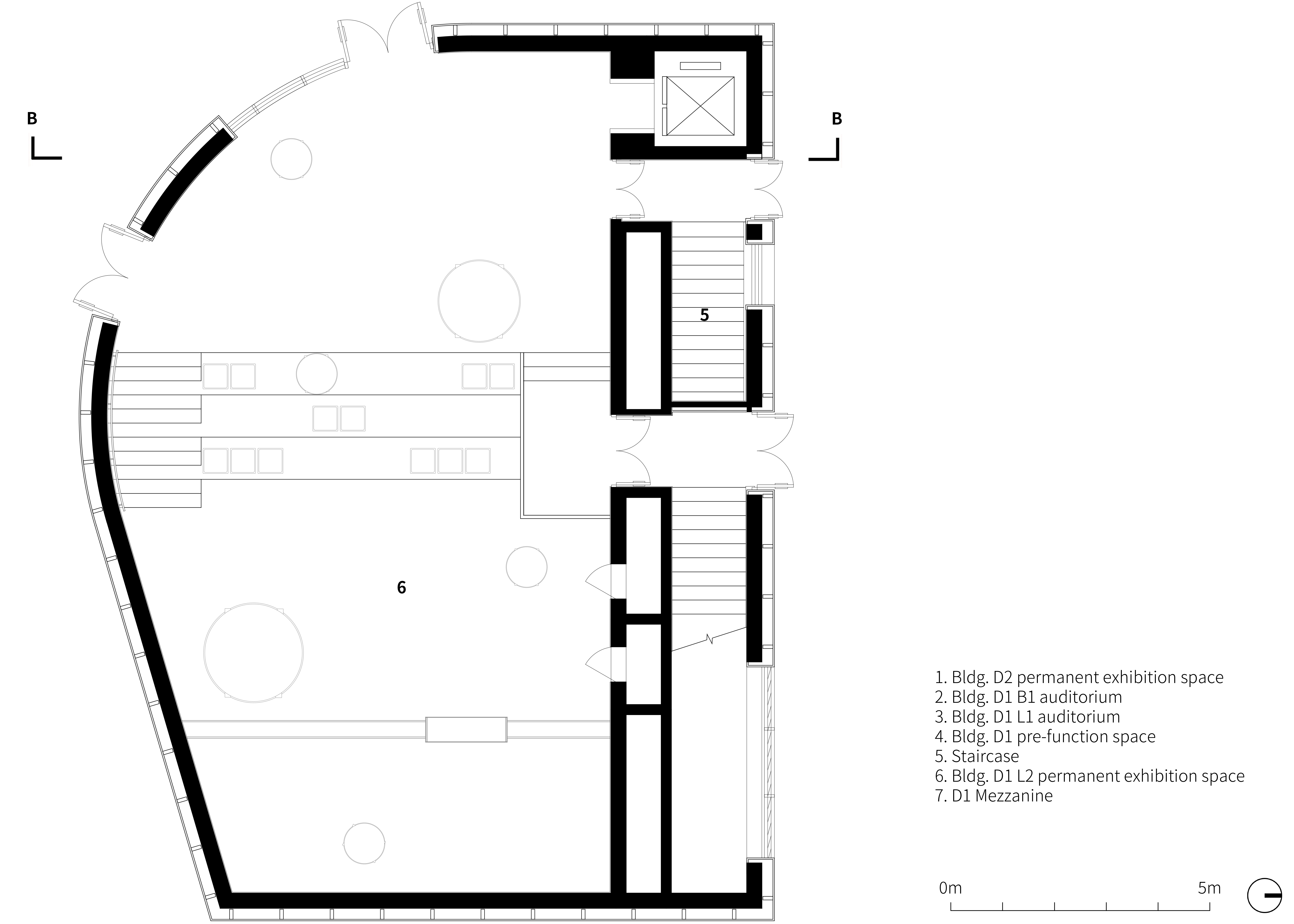
The project’s approach was characterized by minimal intervention, striving to retain the brewery's authentic elements while integrating contemporary features. The D2 exhibition space, formerly a fermentation tank workshop, has been meticulously preserved, maintaining its intricate network of pipelines and tanks. This space now serves as a living museum, embodying the brewery's extensive history and its role in the early stages of Shenzhen's development. Restoration efforts were conducted with archaeological precision, emphasizing the conservation of original features such as stainless-steel brewing equipment and vintage wall and floor tiles. Damaged areas on these tiled surfaces underwent a restoration process inspired by Kintsugi, utilizing golden mortar to accentuate repairs, symbolizing the brewery's golden era.



The project innovatively repurposed existing materials to highlight the contrast between the old and the new. For example, old metal windows were transformed into fiberglass-reinforced concrete "windows, " preserving historical traces through creative means. The addition of new spaces, such as an auditorium, incorporates industrial architectural elements such as the factory lights, exposed ceiling with HVAC pipe and ducts, raw concrete, and materials that reflect the site's original purpose, such as stainless steel, white tiles and warm red ceramic panels, bridging the past and present.

Addressing practical needs and technical issues like fire safety and infrastructure updates was crucial, carried out with an emphasis on minimal alteration to the site's historical essence. Collaboration with consultants and the use of advanced technology, such as BIM and 3D scanning, facilitated these modifications, ensuring a seamless integration of new functionalities without compromising the building's heritage.
This renovation project transcends mere architectural restoration, embodying a profound respect for the brewery's historical significance while reimagining its role for future generations. It stands as a testament to the intricate interplay between preservation and innovation, capturing the collective memory of Shenzhen's populace and positioning the brewery as a pivotal cultural landmark in the heart of a rapidly evolving urban landscape.






건축가 Studio 10
위치 GDH, 중국
용도 복합문화
대지면적 12,679.74㎡
건축면적 60㎡
연면적 1,525㎡
준공 2020. 06 - 2022.12
대표건축가 Shi Zhou
프로젝트 건축가 Urbanus
디자인팀Chunhui Mo, Jinru Zhao, An Huang, Mengqi Xue, Yingxi Dong, Chenhao Luo (Intern), Jiaxiao Bao (Project Assistant),
Feifei Chen (Project Assistant), Jiaying Huang, Yunjie Lv, Cristina Moreno Cabello, Xin Zheng, Shiyu Hu (Intern), Meishi Zhao, Ruiyu Zhang, Jingqi Qiu, Jingwei Zhang, Shengxiang Jin (Intern), Guanxin Luo (Intern)
시공 China Jingye Engineering Co,. Ltd.
사진작가 ZC Studio, Studio 10
'Architecture Project > Cultural' 카테고리의 다른 글
| SOROL MUSEUM (0) | 2024.06.18 |
|---|---|
| Zhengxiangbaiqi Grassland Community Center (0) | 2024.06.17 |
| Cloud Tea Room (0) | 2024.06.10 |
| Bat Trang Pottery Museum of Ceramic Art (0) | 2024.06.05 |
| Pyrotechnics Museum (0) | 2024.06.03 |
마실와이드 | 등록번호 : 서울, 아03630 | 등록일자 : 2015년 03월 11일 | 마실와이드 | 발행ㆍ편집인 : 김명규 | 청소년보호책임자 : 최지희 | 발행소 : 서울시 마포구 월드컵로8길 45-8 1층 | 발행일자 : 매일



