
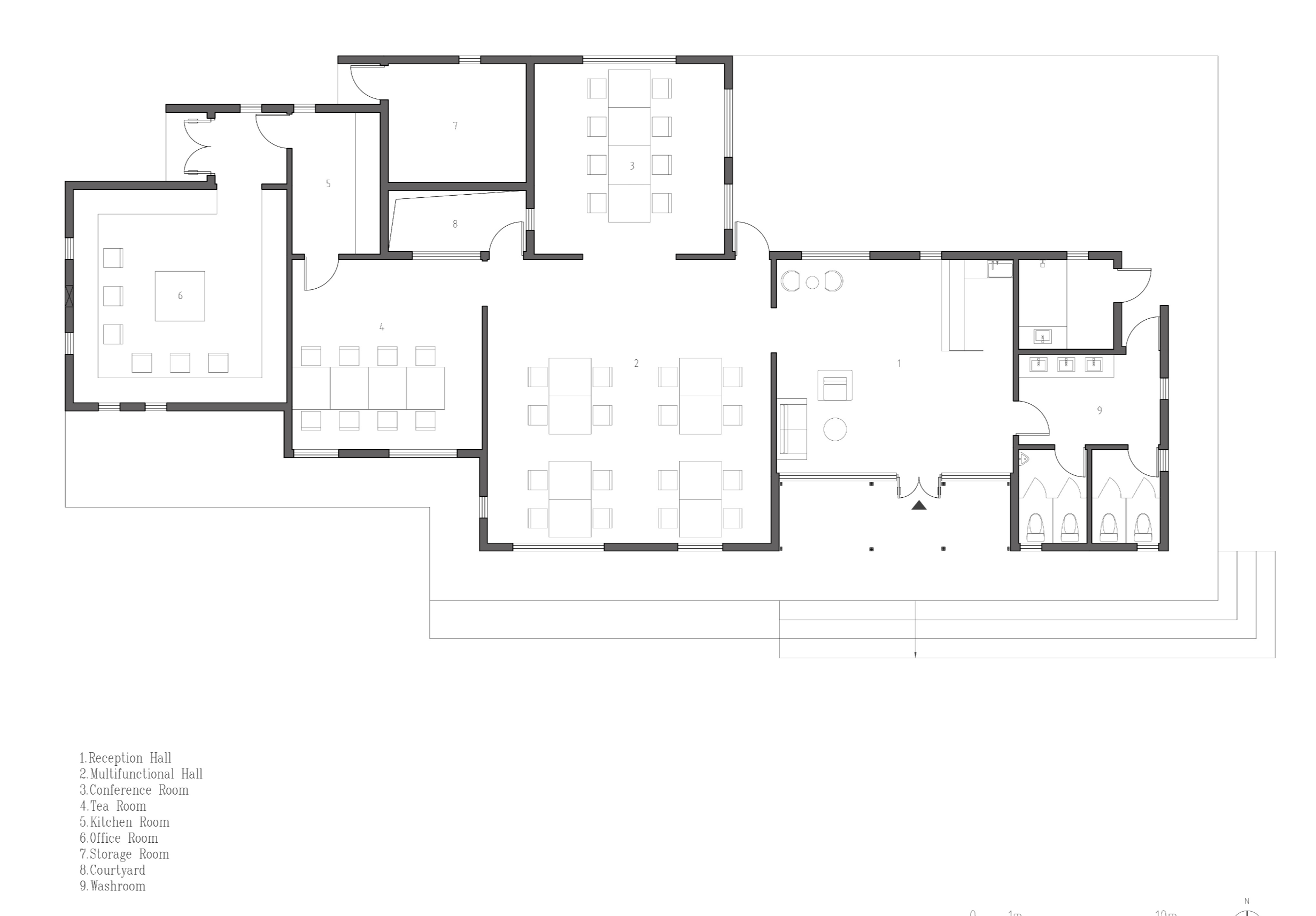
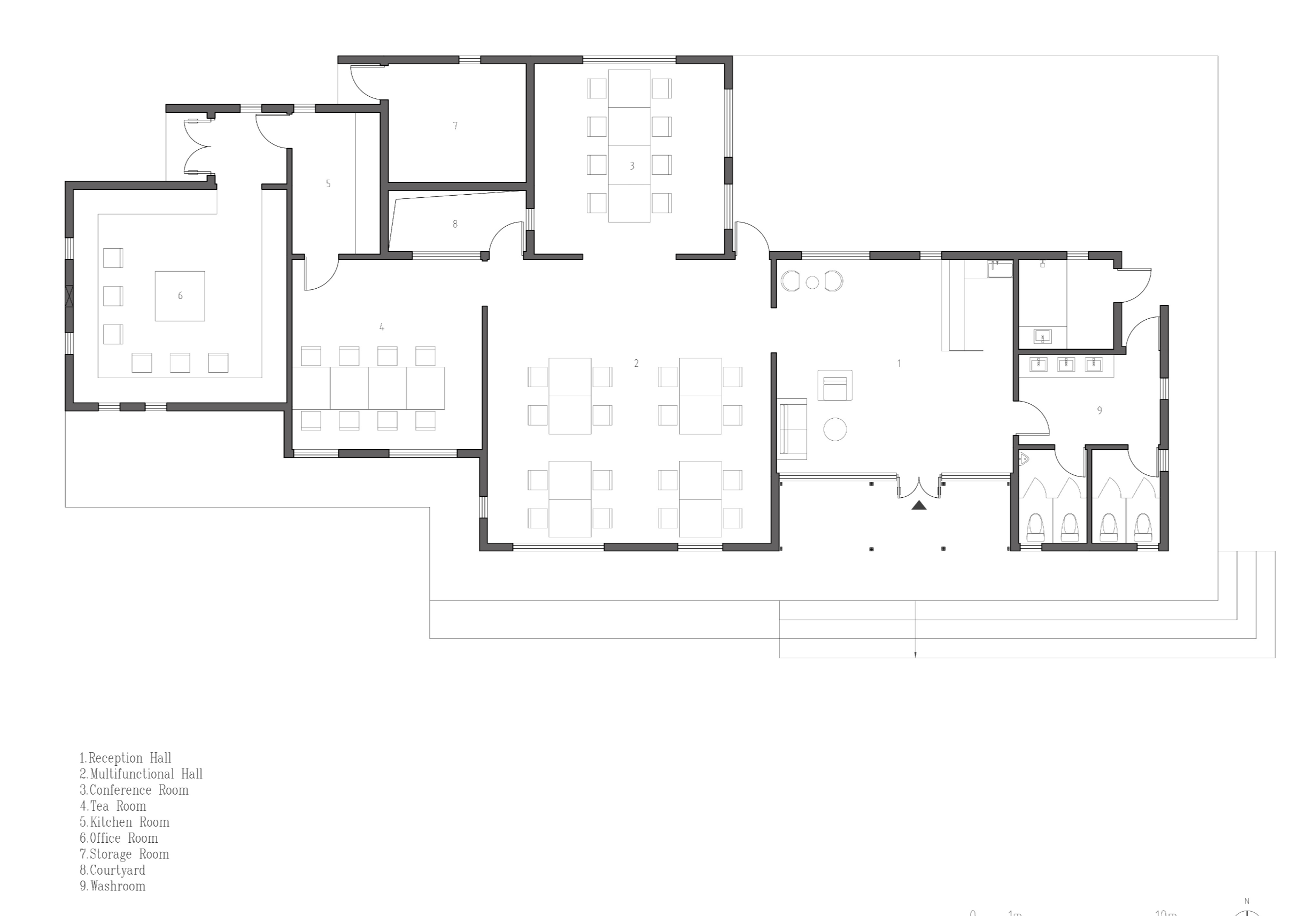
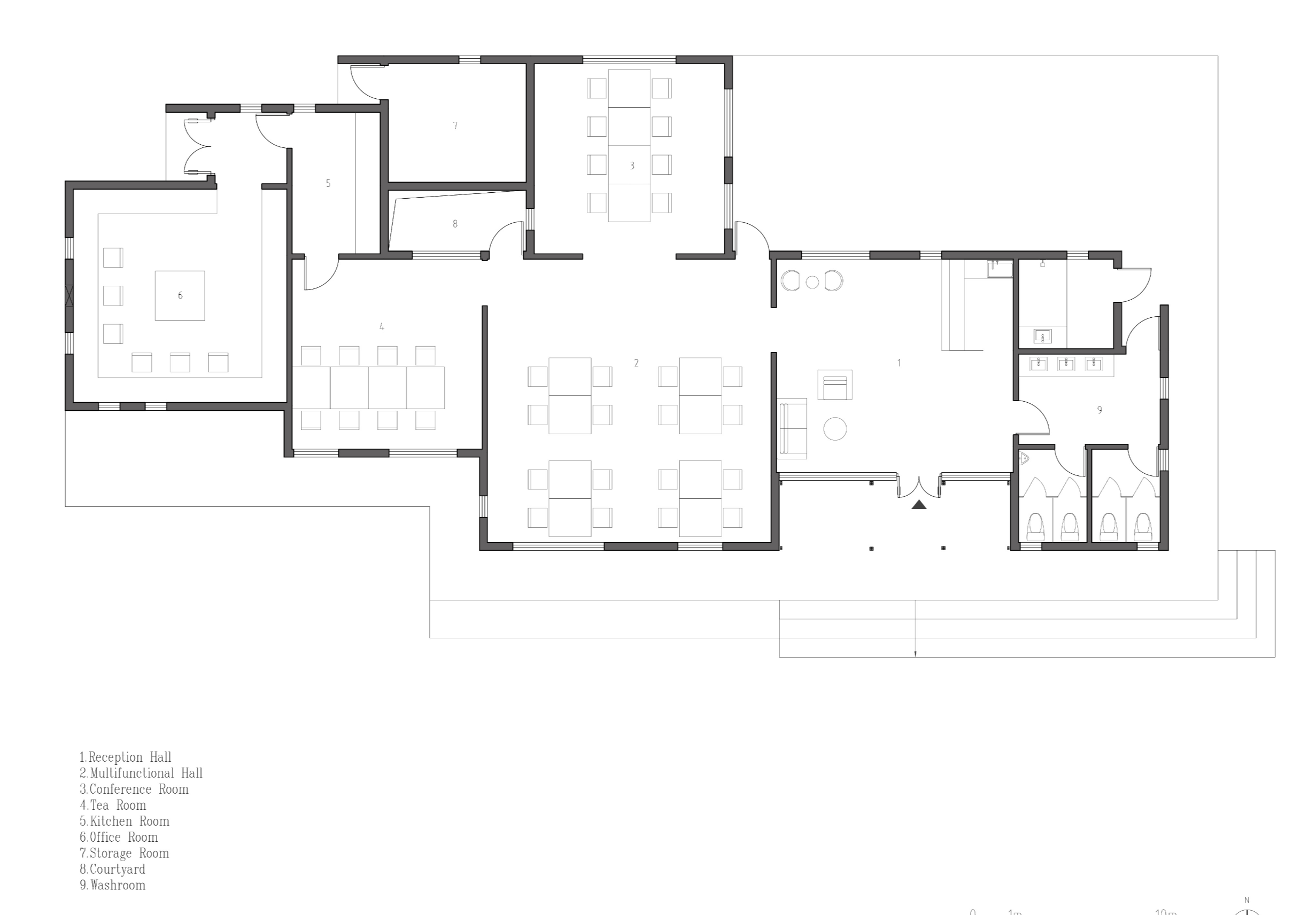
목축업을 하는 지역의 지속 가능한 발전의 해결책은 어디에 있을까. 목축지는 지역 고유의 기후, 자원, 주거, 생산, 문화가 통합되면서 고유한 속성을 가지고 있지만, 지속 가능한 발전에 대한 체계적인 분류와 창의적인 탐색이 시급하다. 혹독한 기후를 가진 목축지는 자연과 자원, 사회에 적합한 전통적 경량 조립식 건물 시스템을 가지고 있는데, 이를 게르(Ger)라고 한다. 한편, 이번 프로젝트는 이러한 게르를 유닛형 평면으로 조직하고 확장 가능하도록 만들어 현대 목축지에 적용할 수 있도록 만들어진 프로토타입이다. 프로토타입에 사용된 버드나무 가지와 생가죽 로프는 일체형 접착식 목주를 조립식 강재 부품으로 대체하고, 직교로 쌓고 결합하여 안정적인 구조시스템을 구축한다. 조립이 용이하고 가볍기 때문에 대형 장비가 없이도 초원에 신속하게 시공할 수 있다. 일교차가 큰 목축지 기후에 따라, 저온 복사 전기 난방 필름으로 내부의 난방과 단열을 조절하고, 무선 원격 지능형 제어시스템이 적용되어 있어 에너지 소비 데이터를 정확하게 모니터링하거나 수집할 수 있다.












건축가 Ger Atelier + Inner Mongolian Grand Architecture Design CO., LtD.
위치 중국, 내몽골, 정샹바이기
준공 2023. 8.
대표디자이너 Zhang Pengju
프로젝트디자이너 Zalagenbaier, Huhehada
디자인팀 Daimurigen, Qu Wenyong, Mengkezhula, Liu Handong(internship), Xie Haodong (internship), Zhao Zhen(internship)
시공 Ger Atelier
개발 Zhengxiangbaiqi Weilisi Industrial Service Co., Ltd
사진작가 Dou Yujun
'Architecture Project > Cultural' 카테고리의 다른 글
| Shayang Rapeseed Museum · Archives and Site Renovation (0) | 2024.06.18 |
|---|---|
| SOROL MUSEUM (0) | 2024.06.18 |
| Renovation of Key Interior Public Spaces at the Industrial Heritage of Jinpi Fang (0) | 2024.06.11 |
| Cloud Tea Room (0) | 2024.06.10 |
| Bat Trang Pottery Museum of Ceramic Art (0) | 2024.06.05 |
마실와이드 | 등록번호 : 서울, 아03630 | 등록일자 : 2015년 03월 11일 | 마실와이드 | 발행ㆍ편집인 : 김명규 | 청소년보호책임자 : 최지희 | 발행소 : 서울시 마포구 월드컵로8길 45-8 1층 | 발행일자 : 매일



