


After 3 years of construction, Bat Trang Ceramic Community House opened its doors in 2021. This showcase of artisanal work and pottery-making techniques embodies the village's rich history. The 150 billion VND project is a significant part of "The Center for Quintessence of the Vietnamese Craft Village, " dedicated to preserving the 500-year-old pottery tradition.
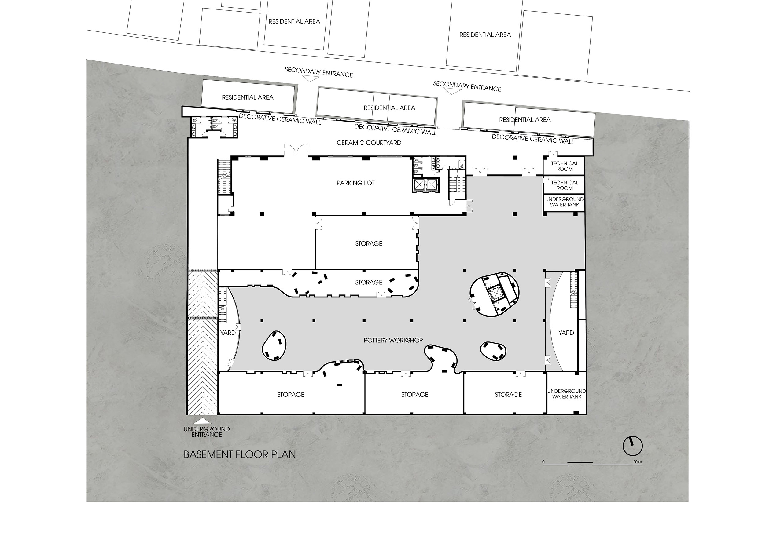
Bat Trang Ceramic Community House plays an important role in village planning. It is located at the gateway to welcome tourists, facing the Bac Hung Hai Canal and connecting to the Red River. The building form is carefully considered to control construction density and height, create harmonious proportions and views, improve the canal landscape, and recreate the hustling and bustling scene of the canal’s ancient pottery market.


This five-storey multi-functional complex takes inspiration from the artistry of ceramic production, with its architectural form mirroring the seven interlocking turntables, evoking the image of a ceramic artisan molding clay into overlapping curves that tend to expand gradually. This idea produces a visually captivating result where concrete frames are folded into steps, optimizes the functionality of the space, and functions as display shelves or staircases between floors. From another perspective, the project is reminiscent of the image of Bat Trang's antique gourd furnace.
The open area of the 1st floor is created between these seven upside-down domes for public events. Skylights at the top allow for natural daylighting and cooling of the area, enabling hot air to flow upward.



To emphasize the rustic and idyllic characteristics of the pottery village, the reddish-brown color of rough ceramics is the main theme. The striking form of the building is cladded with fiber-reinforced concrete, which is light enough to be expanded upwards and easy to construct for the local builders. In addition, earthen bricks, mosaic ceramic, and pottery tiles are used throughout the building, making good use of materials characteristic of the Bat Trang craft village.
Bat Trang Ceramic Community House stands not only as a symbol of architectural ingenuity but also as a living tribute to the enduring legacy of the Bat Trang craft village, preserving its cultural heritage for generations to come.









건축가 1+1>2 ARCHITECTS
위치 하노이, 베트남
용도 복합문화
연면적 6,300 m²
준공 2021
대표 건축가 Hoang Thuc Hao
프로젝트 건축가 Nguyen Duy Thanh
디자인팀 Do Quang Minh, Tran Hong Nam, Tran Van Tu, Nguyen Duc Tuan
구조 엔지니어 Vo Manh Tung, Nguyen Van Han
사진작가 Trieu Chien
'Architecture Project > Cultural' 카테고리의 다른 글
| Renovation of Key Interior Public Spaces at the Industrial Heritage of Jinpi Fang (0) | 2024.06.11 |
|---|---|
| Cloud Tea Room (0) | 2024.06.10 |
| Pyrotechnics Museum (0) | 2024.06.03 |
| Revitalization of Old Glassworks (0) | 2024.05.29 |
| Media Library Sainte-Geneviève- des-Bois (0) | 2024.05.28 |
마실와이드 | 등록번호 : 서울, 아03630 | 등록일자 : 2015년 03월 11일 | 마실와이드 | 발행ㆍ편집인 : 김명규 | 청소년보호책임자 : 최지희 | 발행소 : 서울시 마포구 월드컵로8길 45-8 1층 | 발행일자 : 매일



