
미조구치 츠바사 이사가 선정한 브랜드들은 1940년대 산업통상부 공예지도원 자문을 위해 센다이에 온 샬롯 페리앙드처럼 모두 '스트롱코어’ 여성들을 위해 디자인됐다. 르 코르뷔지에의 철학과 일치하는 상업적 모더니즘 건물에 공업적이면서도 사람의 손길이 매력적인 가구들을 배치해 매장의 콘셉트를 더욱 공고히 했다.
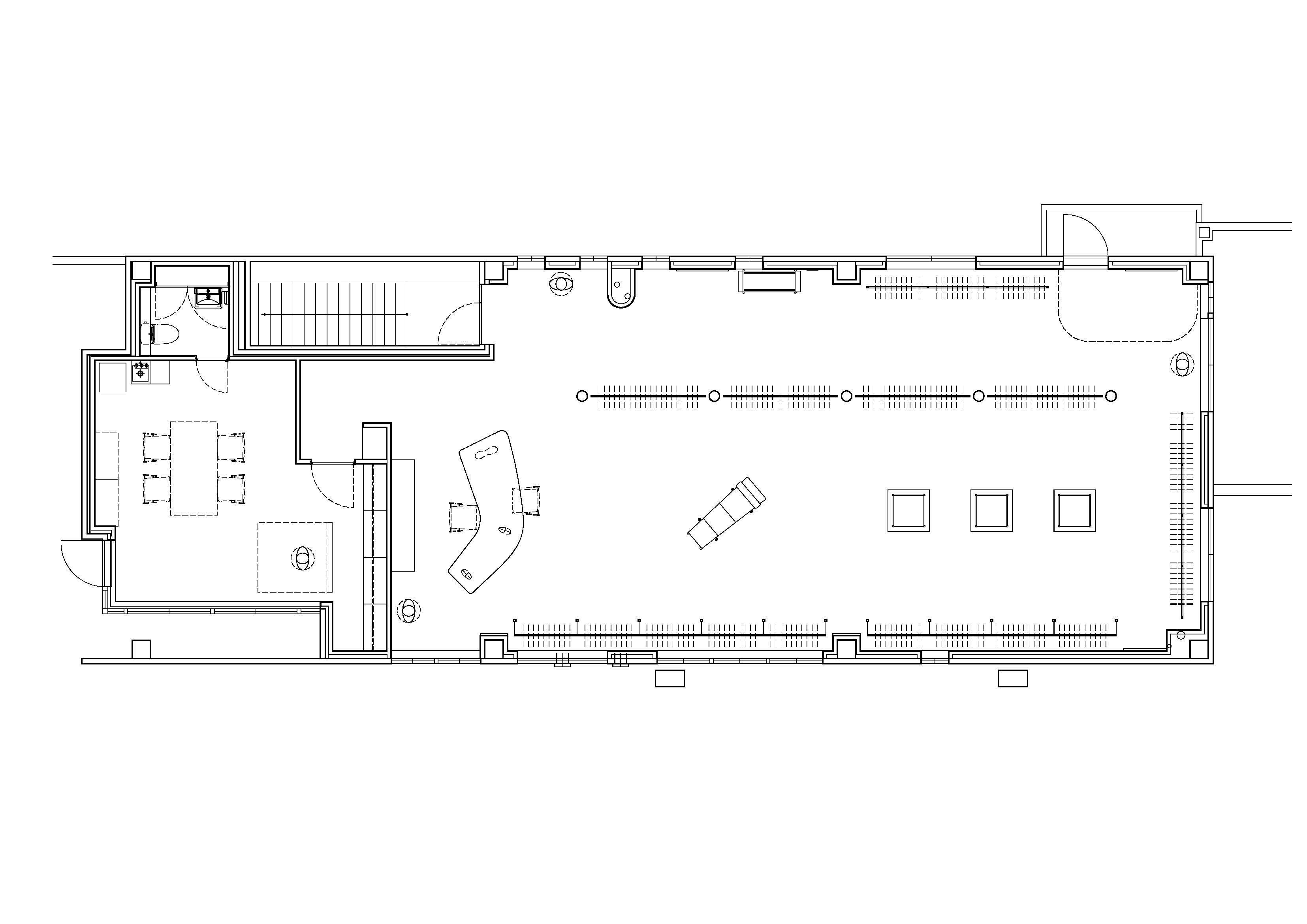
따라서 공간을 유연하게 사용하고 직원들이 단독으로 매장을 운영할 수 있도록 하기 위해서는 공간 전체를 막힘없이 볼 수 있어야 했다. 따라서 기둥, 쇠창틀, 천장 마감재의 변형 등 모더니즘 건축의 요소에서 영감을 받은 기둥의 연속성을 통해 어떠한 격벽도 사용하지 않고 구역을 달리 설정할 수 있는 계획을 세웠다. 상징적으로 배치된 부메랑 테이블은 가구 장인이 과거의 그림, 사진, 관련 건축물의 세부 사항을 참고하여 만든 청사진을 바탕으로 재구성하였다. 그 뒤로 금속 장인이 알루미늄으로 된 "치가이-다나" 스타일의 벽 선반을 재구성하였다.
이러한 강한 존재감을 지닌 의복이 같은 공간에 빈티지 가구와 공존하면서 새로운 가구로서 나타나고, 결국 빈티지 그 자체가 될 것인가? 이렇게 잘 만들어진 가구의 창작을 통해 미래를 상상하는 것은 우리의 철학이 되었다.

The brands selected by Director Tsubasa Mizoguchi are all designed for women with a “strong core,” just like Charlotte Perriand, who came to Sendai in the 1940s to advise the Ministry of Trade and Industry’s Craft Guidance Institute. The store’s concept is further solidified with the placement of furniture that is industrial yet charming with a human touch, in a commercial modernist building consistent with the philosophy of Le Corbusier.
In order to use the space flexibly and allow staff members to operate the store alone, it was necessary that the entire space could be seen without any obstructions. We therefore created a plan to establish different zones without using any partition walls, through the continuity of pillars inspired by elements of modernist architecture such as columns, steel sashes, and variations in ceiling finishes.
The symbolically placed boomerang table was reconstructed by furniture craftsman based on a blueprint created by referencing past drawings, photographs, and details of relevant architecture. Behind it, a wall shelf in the style of a “CHIGAI-DANA” was reconstructed in aluminum by metal craftsmen. How will the garments, with their strong presence, appear as these new pieces of furniture, coexisting with vintage furniture in the same space, eventually become vintage themselves? Imagining the future through the creation of well-crafted furniture thus became our philosophy.















디자이너 Shinsuke Yokoyama / CANOMA
발주자 FERN OST GALERIE
사진작가 Takuya Yamauchi
'Architecture Project > Retail' 카테고리의 다른 글
| The Spine Resort (0) | 2024.08.15 |
|---|---|
| ENNEA Hotel (0) | 2024.07.24 |
| Blue Lake-Lakeside Teahouse Renovation (0) | 2024.04.10 |
| XINTIANDI STYLE II (0) | 2024.04.03 |
| Bake Mogul (0) | 2024.03.22 |
마실와이드 | 등록번호 : 서울, 아03630 | 등록일자 : 2015년 03월 11일 | 마실와이드 | 발행ㆍ편집인 : 김명규 | 청소년보호책임자 : 최지희 | 발행소 : 서울시 마포구 월드컵로8길 45-8 1층 | 발행일자 : 매일



