
Ennea is a project that is molded by the physical and climatic conditions of its site. Located two blocks from the famous Punta Zicatela beach in Oaxaca, this nine-room hotel is situated on an elevated position relative to the sea and borders a nature reserve. These two conditions, along with the architectural proposal, create an atmosphere that invites disconnection from the everyday, offering peace and relaxation, whether surrounded by the region's characteristic vegetation or enjoying expansive views of the Pacific Ocean.
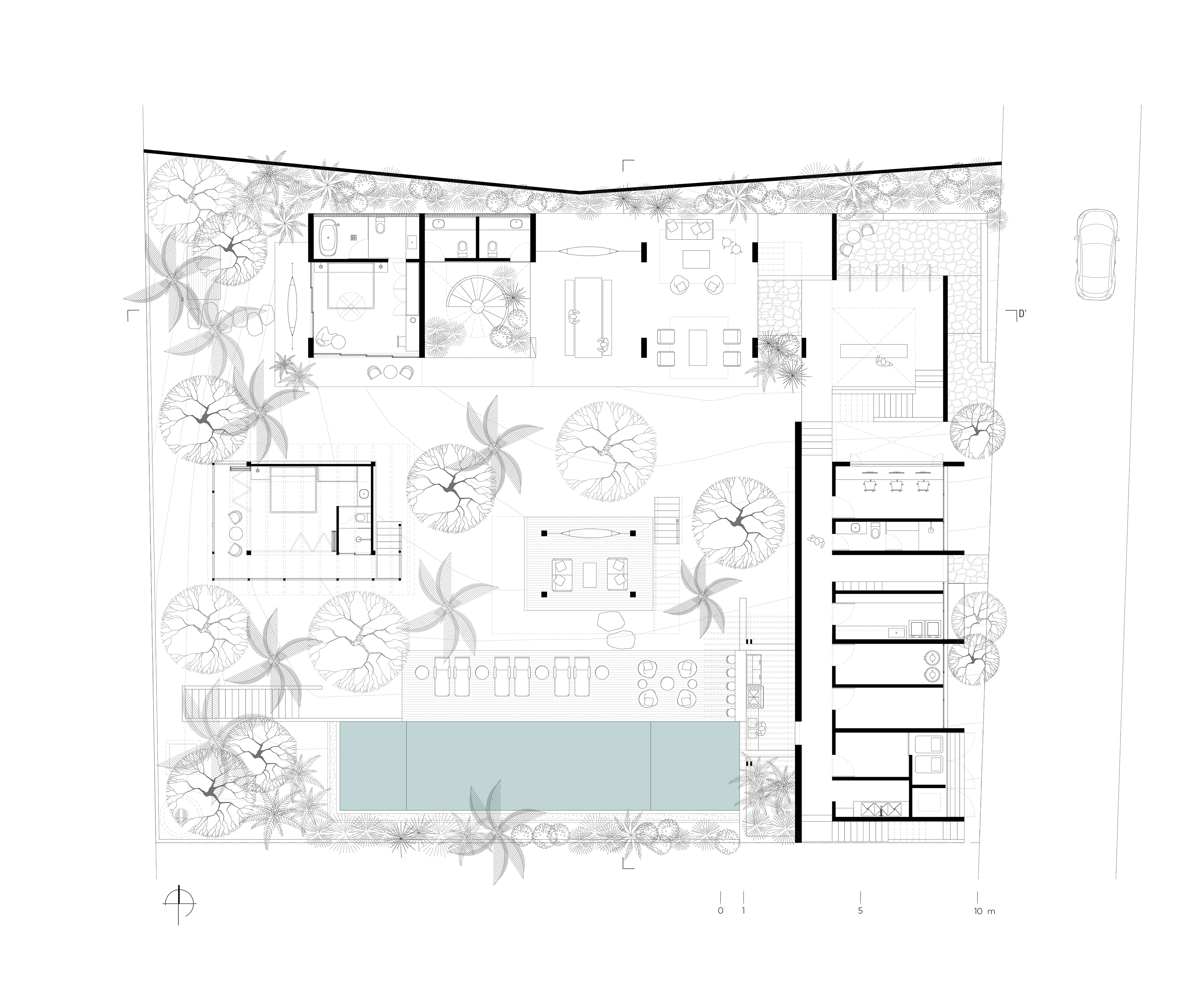
The architectural proposal consists of three main volumes, located at the edge of the property facing the city, with the aim of generating a microclimate within the hotel that opens towards the landscape of the nature reserve. The first volume, which welcomes guests, is the reception area. This double-height space, with bridges and staircases, is conceived as a small temple of welcome. Its goal is to create a gradual transition from the street to the gardens, the restaurant, and the hotel rooms.



The second volume is the grand palapa, situated on a second level parallel to Punta Zicatela beach. The palapa, supported by exposed concrete columns, allows for cross ventilation and offers views of the central garden, the pool, the reserve, and the sea. Beneath the restaurant, the service and administration areas of the hotel are strategically located.
The third volume is a rectangular prism with an open, social ground floor and two upper levels of rooms, all connected by a large helicoidal staircase made of reinforced concrete. The ground floor functions as a shaded extension of the gardens and pool area, allowing guests to escape the midday heat without resorting to air conditioning.
This volume is positioned parallel to the reserve and perpendicular to the coast, aiming not to obstruct the view of the bay and to take advantage of views of both the reserve and the sea from all rooms.



All the hotel buildings face a large garden, where there are two "tree house" style rooms, a bar area, a massage pavilion, and the main pool. The material palette seeks to emulate the textures, colors, and materials of the region through exposed finishes, woods, stones, and local fabrics. In a way, Ennea is perceived as an oasis within the growing coastal city of Puerto Escondido.




건축가 Jaque Studio
위치 오악사카, 멕시코
용도 호텔
연면적 998 m²
준공 2022 - 2024
대표건축가 Jesús G Acosta
디자인팀 Carlos Enríquez, César Pérez
시공 Constructora Ingrid
인테리어 디자인 Comité de Proyectos
조경 디자인 Polen Paisaje
사진작가 César Belio
'Architecture Project > Retail' 카테고리의 다른 글
| Nude Project Ibiza (0) | 2024.08.28 |
|---|---|
| The Spine Resort (0) | 2024.08.15 |
| FERN OST GALERIE (0) | 2024.06.07 |
| Blue Lake-Lakeside Teahouse Renovation (0) | 2024.04.10 |
| XINTIANDI STYLE II (0) | 2024.04.03 |
마실와이드 | 등록번호 : 서울, 아03630 | 등록일자 : 2015년 03월 11일 | 마실와이드 | 발행ㆍ편집인 : 김명규 | 청소년보호책임자 : 최지희 | 발행소 : 서울시 마포구 월드컵로8길 45-8 1층 | 발행일자 : 매일



