
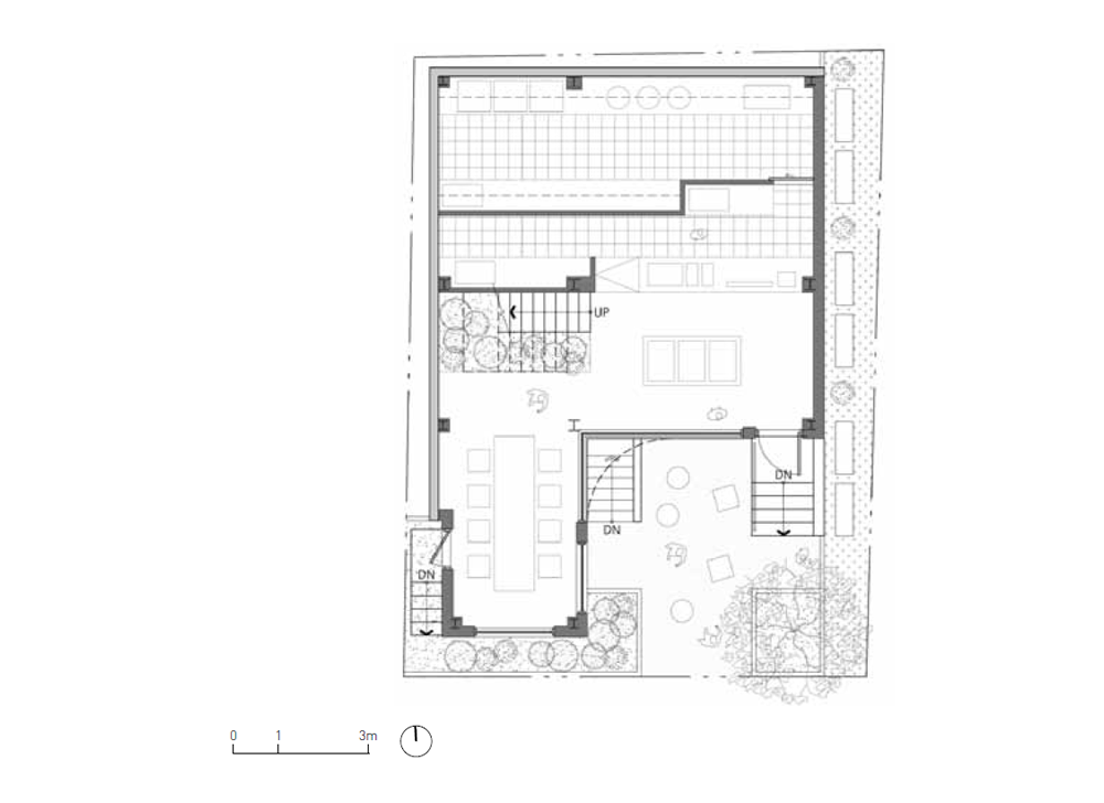
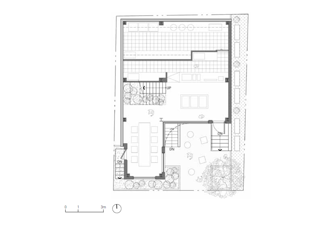
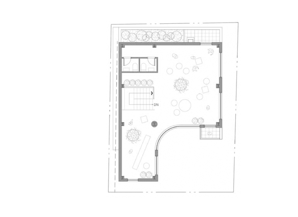
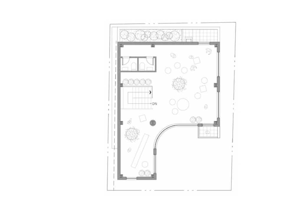
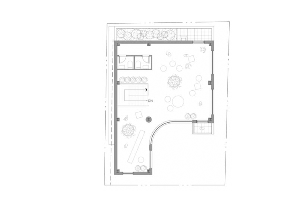
서울숲과 접해 있는 성수동의 아틀리에 길은 작은 규모의 주택들이 밀집한 동네로 연무장길 인근의 큰 공장 지대와 사뭇 다른 분위기와 풍경을 만든다. 소규모 카페와 음식점, 주택이 혼재된 지역은 기존 가지고 있었던 소외된 지역이라는 이미지에서 활기를 띤 거리로 변모하고 있다. 기존 건물은 70년대 지어진 전형적인 단층의 단독주택이다. 작은 마당과 한 그루의 나무를 품은 모습은 좁은 골목에서 차별화되는 정체성을 만들고 있었다. 건축주의 요구는 2층 규모에서 최대의 면적을 확보해 달라는 단순하지만 명확한 요구 사항이었다. 최대 면적 확보를 위하여 1층의 일부를 수평 증축하고, 2층 전체를 수직 증축하는 계획이 필요했다.
기존 건물은 북측에 밀접하게 배치되어 있었다. 면적 확보를 위하여 남측의 입면 대부분을 해체할 수밖에 없는 상황이었다. 건축가는 기존 건물과 증축부의 관계에서 디자인의 방향성을 찾기보다 건축주의 요구 조건에 따라 변화하게 될 상황에 집중했다. 기존 건물의 작은 마당은 건물과 도시 관계에서 정체성을 만드는 중요한 요소였다. 건축가는 기존의 마당을 통해 도시와의 관계를 지속할 수 있는 공간을 만들었다. 증축된 공간은 부드럽게 곡선을 그리며 마당을 감싸는 형태의 흰색 매스이다. 깔끔한 흰색의 느낌과 질감, 부드러운 곡선은 좁은 골목에서 마당으로 자연스럽게 사람들의 시선과 발걸음을 유도한다. 마당은 기존 건물과 도시 조직 사이에서 맥락을 유지하고 새로운 건물과 낯설지만 익숙한 풍경을 만들어 낸다. 작은 마당을 품고 있는 흰색 건물은 크고 작은 규모의 건물들이 빽빽하게 이어지는 좁은 골목 사이에서 한 줌의 여유와 같은 공간이 될 것이다.

Atelier Road in Seongsu-dong, which borders Seoul Forest, is a neighborhood of small-scale houses, creating an atmosphere and landscape quite different from the large factory area near Yeonmujang-gil. The mix of small cafes, restaurants, and houses has transformed the area from a marginalized neighborhood to a vibrant street. The existing building is a typical single-story detached house built in the 70s. With a small yard and a single tree, it created a distinctive identity in the narrow alley. The client’s request was simple and clear: to maximize the square footage within the two-story scale. To achieve this, the plan called for a horizontal extension of part of the first floor and a vertical extension of the entire second floor.
The existing building was arranged close to the north of the site, and much of the southern façade had to be demolished to secure space. Rather than seeking a direction for the design in the relationship between the existing building and the extension, the architects focused on the situation that would change according to the client’s requirements. The small yard of the existing building was an important element of identity in the relationship between the building and the city. The architects created a space to continue the relationship with the city through the existing yard. The extension is a white mass that gently curves and wraps around the courtyard. The clean white feel and texture and soft curves naturally attract people from the narrow alley to the yard. The yard maintains context between the existing building and the urban fabric and creates an unfamiliar yet friendly landscape with the new building. A white building with a small courtyard will be a handful of space between narrow streets lined with buildings large and small in scale. The white building with a small yard is a bit of space among the narrow alleys packed with buildings large and small.










건축가 gdgg architecture
위치 서울시 성동구 성수동1가 685-428
용도 근린생활시설
대지면적 149㎡
건축면적 86.99㎡
연면적 178.69㎡
규모 지하 1층, 지상 2층
건폐율 58.38%
용적률 104.36%
설계기간 2022. 7. - 2023. 5.
시공기간 2023. 5. - 12.
준공 2023. 12.
대표건축가 김대청, 김요셉
프로젝트건축가 김대청, 김요셉
디자인팀 김대청, 김요셉
구조엔지니어 시도구조
시공 에이치세븐건설(주)
발주자 베이크 모굴
사진작가 김창묵
해당 프로젝트는 건축문화 2024년 2월호(Vol. 513)에 게재되었습니다.
The project was published in the February, 2024 recent projects of the magazine(Vol. 513).
February 2024 : vol. 513
Contents : COMPETITION : SKETCH A Landscape that is Hard to Pass / Johanna Sinkkonen 좀처럼 지나칠 수 없는 풍경 / 요한나 신코넨 : RECENT PROJECT IRIS Headquaters / RE:TMUS ARCHITECTS 아이리스 사옥 / 리트머스 건축사사무소 Ye
anc.masilwide.com
'Architecture Project > Retail' 카테고리의 다른 글
| Blue Lake-Lakeside Teahouse Renovation (0) | 2024.04.10 |
|---|---|
| XINTIANDI STYLE II (0) | 2024.04.03 |
| NOWSEE (0) | 2024.02.28 |
| RARA Whole-house Showroom (0) | 2023.12.01 |
| A Home of Sport: adidas Asia Pacific Flagship, Seoul (0) | 2023.11.30 |
마실와이드 | 등록번호 : 서울, 아03630 | 등록일자 : 2015년 03월 11일 | 마실와이드 | 발행ㆍ편집인 : 김명규 | 청소년보호책임자 : 최지희 | 발행소 : 서울시 마포구 월드컵로8길 45-8 1층 | 발행일자 : 매일



