
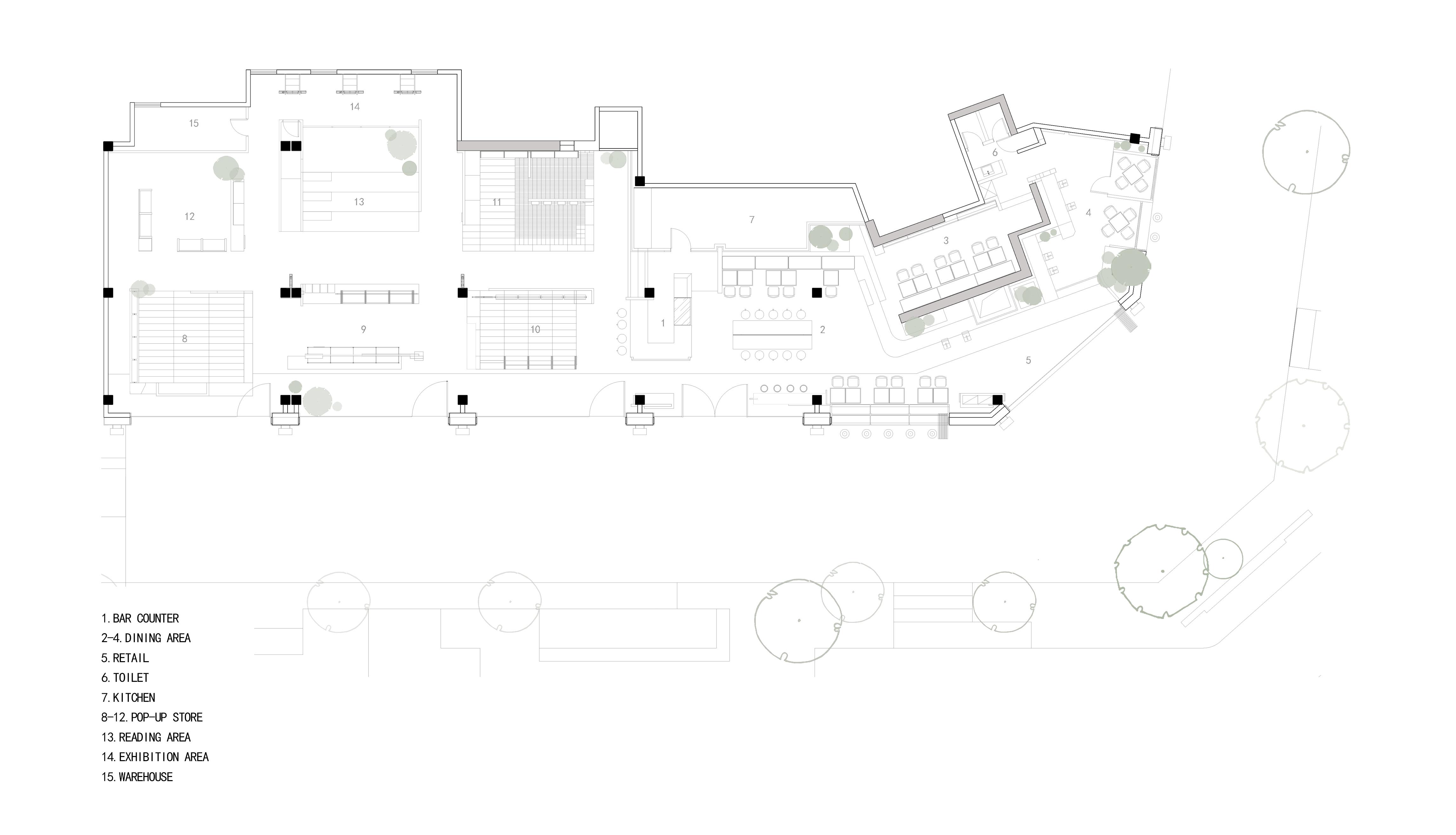
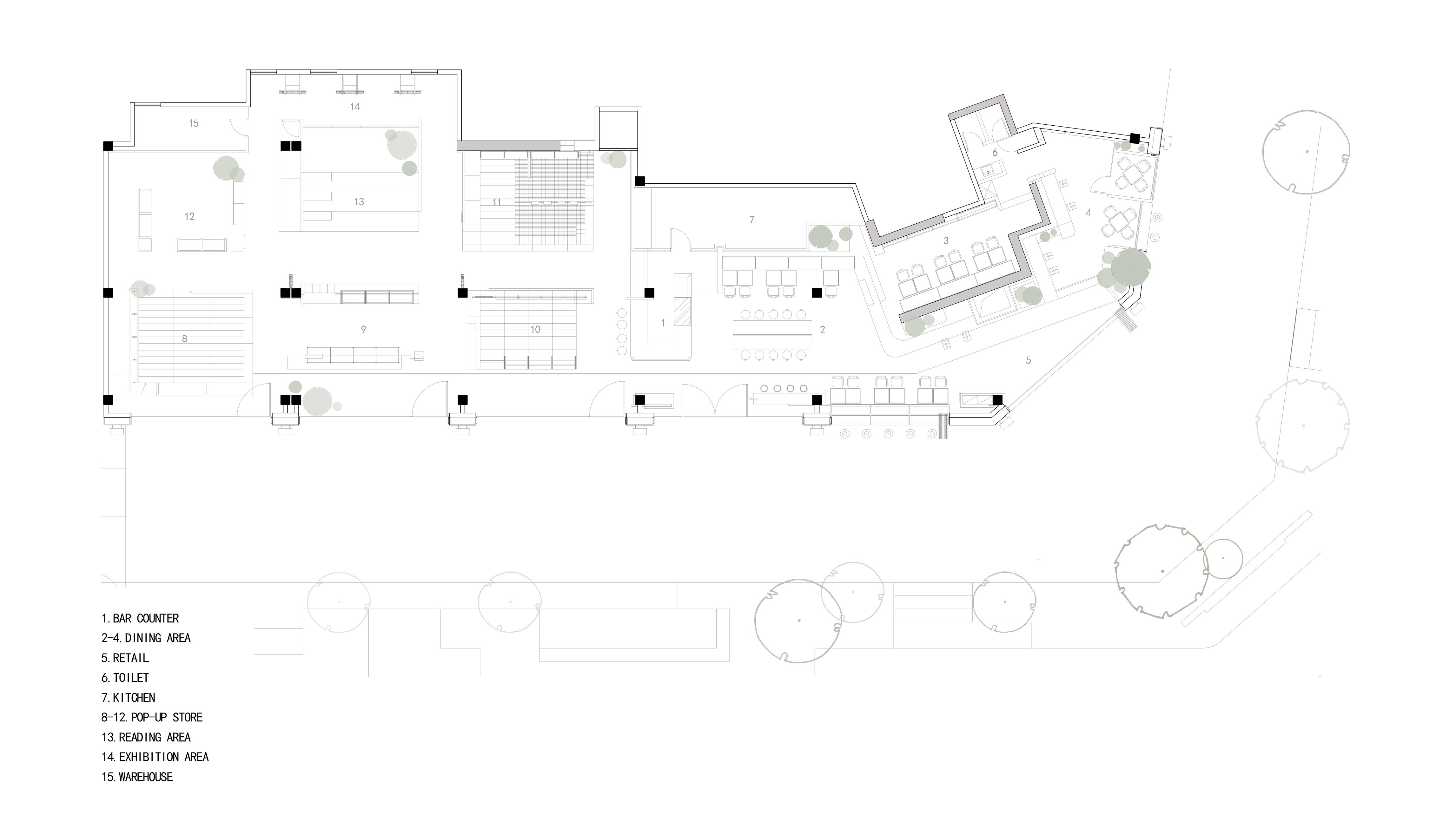
나우씨는 커뮤니티 중심의 상업시설이자 부동산, 전시 등 다양한 용도를 지닌 공간이다. 디자이너는 공간의 위치를
직접 선정하고 리노베이션, 브랜딩, 공간디자인 등 전반적인 디자인을 총괄했다. 거리의 모퉁이에 자리한 나우씨는 다섯 개의 블록이 건축물 안에 삽입된 듯한 파사드가 특징이다. 투박했던 기존의 출입구와 창문은 내부 공간을 어둡게 만드는 요소였다. 리노베이션을 통해 천장 높이의 넓은 유리 문과 창문을 설치해 밝은 내부 환경을 조성했다. 인테리어는 마치 도심 속의 공원을 걷는 듯한 개방적인 느낌을 준다.
여러 종류의 모듈러 유닛, 가벽, 기둥, 낮은 디스플레이 선반을 사용해 개방적이며 유연한 분위기로 계획했다. 내외부 공간에는 지나가는 사람들이 잠시 쉬어 갈 수 있도록 좌석과 테이블을 배치해 주민들이 교류할 수 있다. 나우씨의 중심 공간은 다용도 바 카운터로, 계절마다 다양한 콘텐츠를 만나 볼 수 있다. 자원의 낭비를 최소화하기 위해 기존의 처마, 콩자갈 마감, 시멘트 벽 등은 그대로 사용하고, 추후 재활용할 수 있는 재료를 선택했다. 또한 건축재에 활용한 재료를 가구에도 사용하여 전체 공간의 분위기를 조화롭게 계획했다.

With the intention to redefine the commercial value of community space, Informal Design delivered integrated solutions for site selection, branding, architectural renovation, space and VI design, and even for future operation management and supply chain. NOWSEE grows from a community street corner, with five interconnected facade blocks inserted into the architecture in an outward form. The space languages of the interior and exterior are unified. The swaying plants, gray pavements, warm road lamps and window seats extend inwards along the expansive pedestrian street, combining street-style layout with landscape. The street-style open circulation route vividly presents urban street elements from the inside to the outside. The original door and windows on the exterior facade were thick and bulky, resulting in dark interior. Therefore, the design team removed the original door and windows, and installed large transparent floor-to-ceiling push-pull glazing, to create a simple yet unified facade image. Echoing with interior lighting design, the show windows are organized in sequence, which allows daylight in and thus ensures an open and bright indoor environment.
The interior is harmonious and concise, with an open vibe and flexible layout. Irregular modular units combined with few walls, structural columns and low display racks create an open space realm for daily life. The fluid circulations allow people to explore freely throughout the multi-layered space. The bar counter is the central point, surrounded by different functions such as the retail area, art exhibition area, stepped reading area, casual dining area, and business negotiation area. These areas are integrated into a unified visual structure, with the retail area updated seasonally to generate diversified contents in NOWSEE. In terms of spatial renovation and material selection, the design team tried to minimize the wastage of the existing building components and maximize the potential for future reuse by retaining the original flat eaves, pebblewash, and interior cement walls. The minimalist approaches and natural, simple materials result in an approachable and inviting spatial tone.














건축가 Informal Design
위치 중국, 후이저우
용도 상시설
프로젝트면적 700㎡
설계기 2023. 3. – 5.
총괄 이재호, 박진선
준공 2023. 7.
공간디자인 Sheng Wang, Shubin Lin, Jie Wang, Hongtao Shen
그래픽디자인 Jing Zheng, Yanhong Liu, Jing Fu
브랜딩 Sumi Huang, Wenqi Huang
시공 Shenzhen Jushen Construction Co., Ltd.
발주자 CR Land Park View Mansion
사진작가 Chao Zhang
해당 프로젝트는 건축문화 2023년 12월호(Vol. 511)에 게재되었습니다.
The project was published in the December, 2023 recent projects of the magazine(Vol. 511).
December 2023 : vol. 511
Contents : Records Imaginative Architect’s Drawing Exhibition, Moon Hoon 상상을 짓는 건축가의 그림 전시, 문훈 Waiting for the Light Within Seoul’s Underground World, Realization of Dominique Perrault’s ‘Lightwalk’ 서울 지하 세
anc.masilwide.com
'Architecture Project > Retail' 카테고리의 다른 글
| XINTIANDI STYLE II (0) | 2024.04.03 |
|---|---|
| Bake Mogul (0) | 2024.03.22 |
| RARA Whole-house Showroom (0) | 2023.12.01 |
| A Home of Sport: adidas Asia Pacific Flagship, Seoul (0) | 2023.11.30 |
| X11 FLAGSHIP STORE (0) | 2023.09.20 |
마실와이드 | 등록번호 : 서울, 아03630 | 등록일자 : 2015년 03월 11일 | 마실와이드 | 발행ㆍ편집인 : 김명규 | 청소년보호책임자 : 최지희 | 발행소 : 서울시 마포구 월드컵로8길 45-8 1층 | 발행일자 : 매일



