
‘ARQ’는 모든 공간이 효율적으로 기능을 해야 하는 현대 가족을 위해 설계된 주택이다. 대다수의 주택이 도시의 작은 크기의 부지에 있었기 때문에 건축가는 현대 도시 라이프스타일에 맞는 녹지 공간과, 수영장, 그 외 활동을 위한 공간을 만드는 데 어려움이 있었다. 대부분의 공간에는 풍부한 자연광과 공기순환에 중점을 두어 수직으로 건축이 이루어져야 했다.
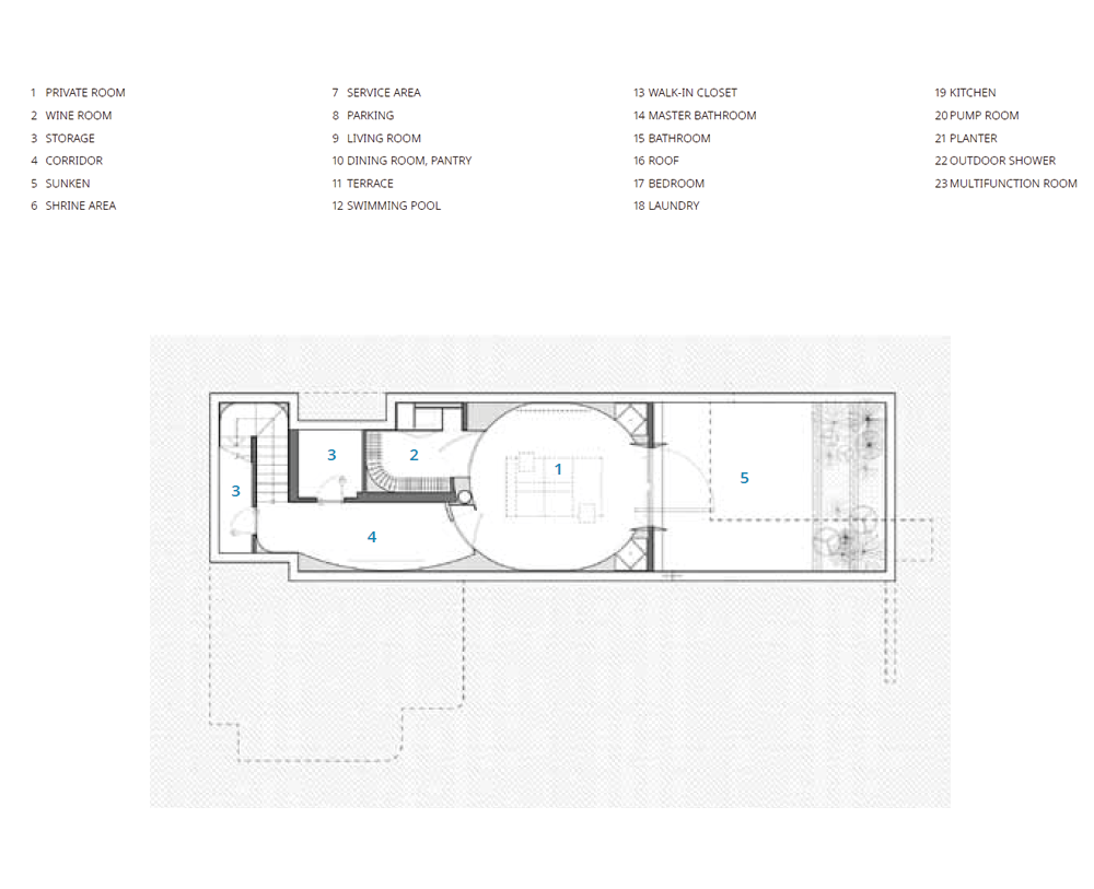
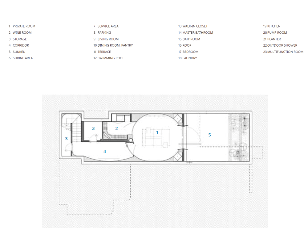
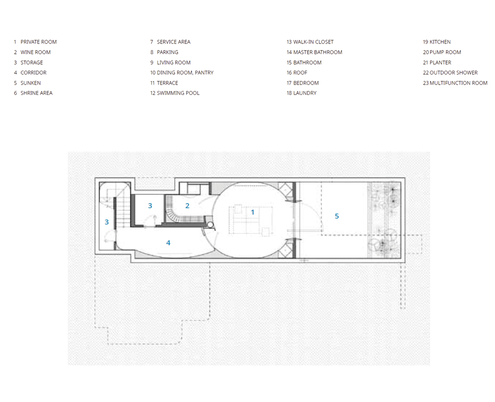
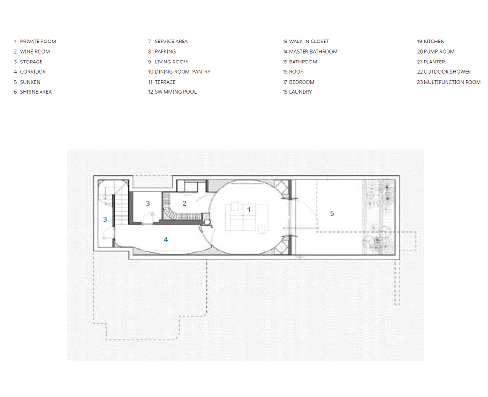
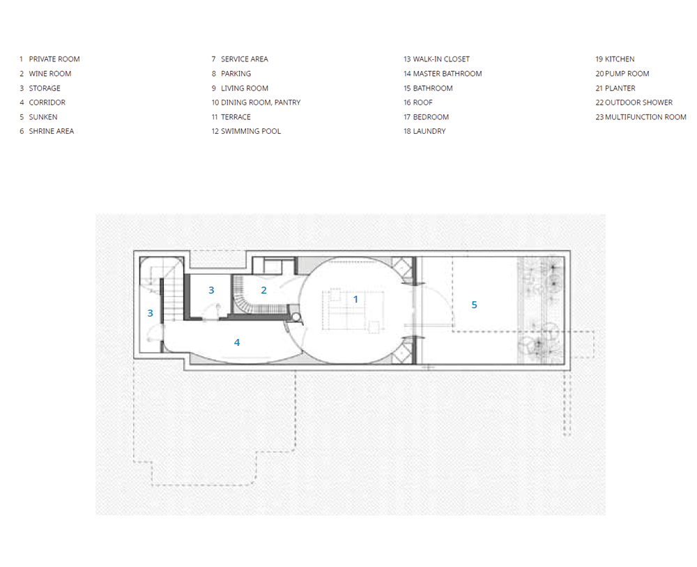
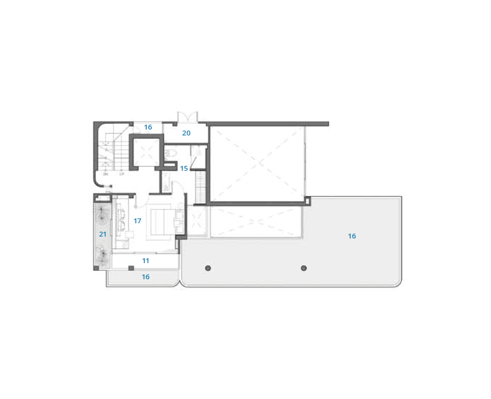
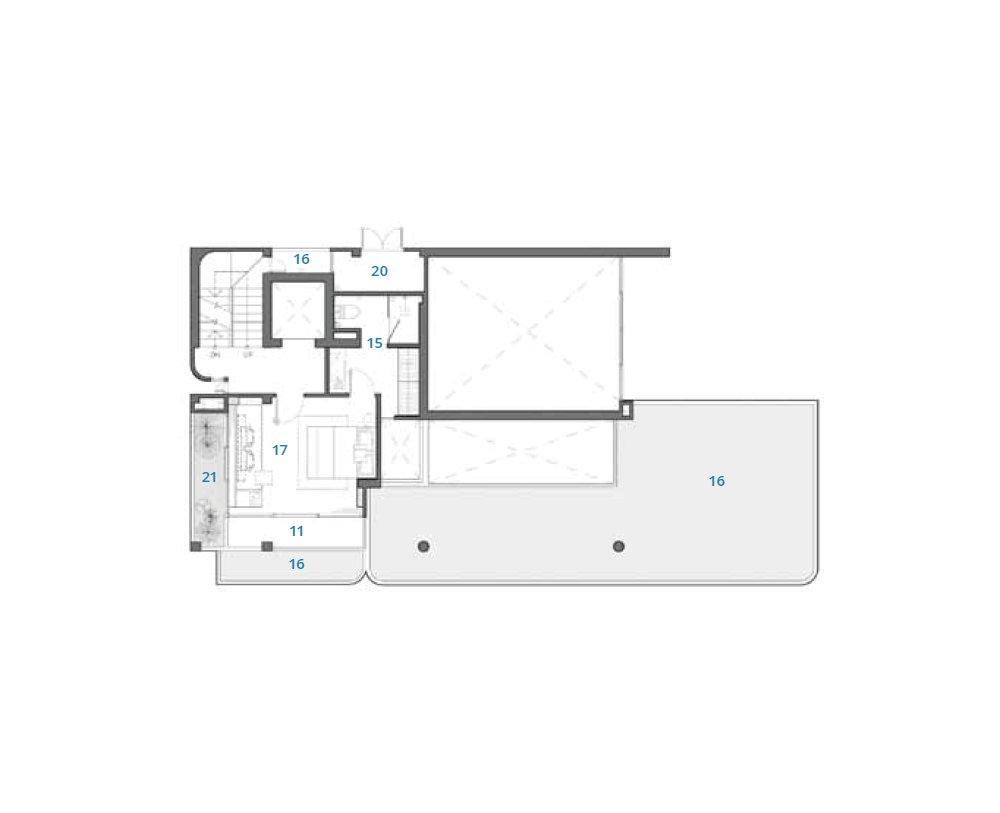
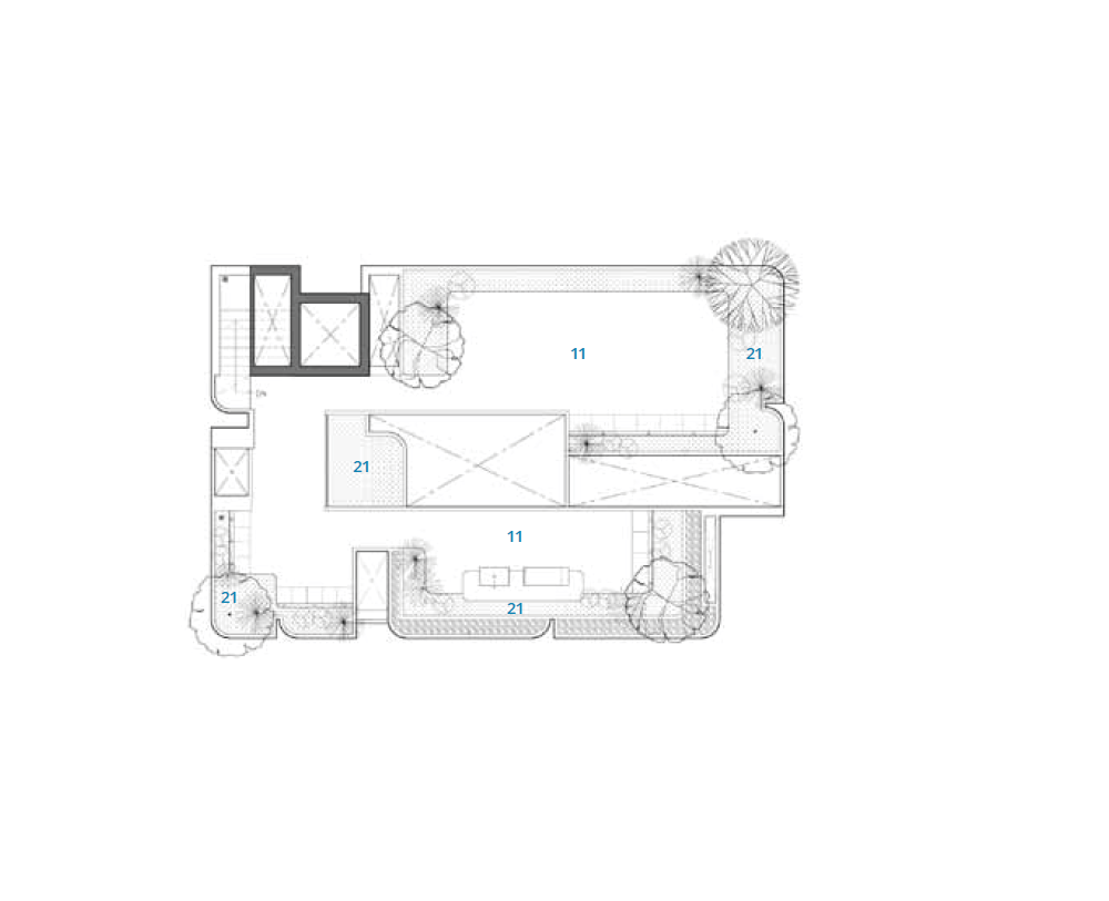
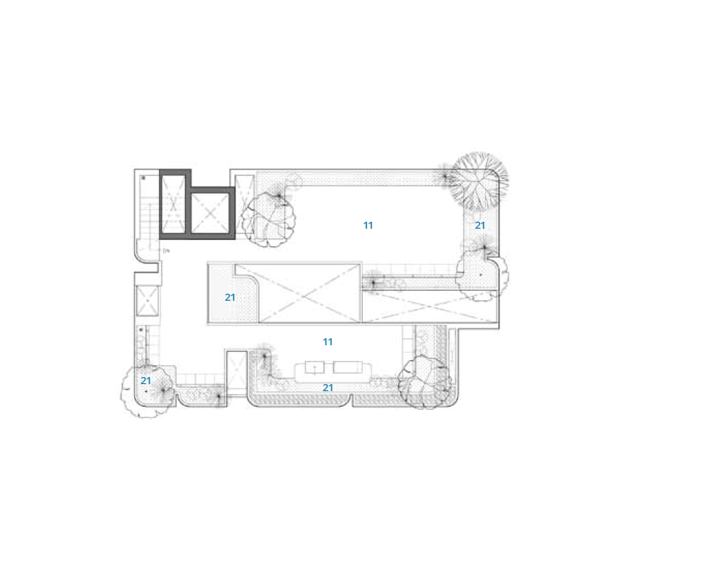
ARQ는 M과 L, 두 가지 유형이 있으며 두 유형이 동일한 컨셉으로 설계되었다. L타입에는 지하층과 선큰 코트가 추가되었다는 점을 제외하면 설계적인 측면에서는 상당히 유사하다. 1층 레이아웃은 손님을 맞이할 수 있고 식사 공간으로도 전환할 수 있는 공용공간으로 설계되었으며 L 유형에서는 지하와 연결되어 있어 ‘맨케이브’ 혹은 파티 룸/와인으로 사용될 수 있는 다목적 공간으로 설계되었다. 지하실은 1층의 정원에서 움푹 들어가 있으면서 안뜰로 연결되어 녹지가 보이고 공기 순환이 잘 이루어지도록 한 지하실로 사적공간으로 사용될 수 있다. 1층과 2층 사이의 중간에 침실을 두고 녹지 공간으로 둘러싸여 있게 배치하였고 2층은 가족 구성원을 위한 '준공용구역'이 있다. 2층은 가족이 대부분의 시간을 보내는 공간으로 계획되었으며, 레이아웃은 거실과 식사 공간이 결합된 개방형 평면으로 되어 있다. 또한, 그늘이 있는 수영장을 두어 하루 종일 사용할 수 있다. 수영장을 사용하지 않을 때에는 생활 공간에서 바라볼 수 있는 쾌적한 배경이 되어 파티를 위한 공간이 되고 수영장의 물은 더운 공기를 식히는 데 도움이 되고 도넛 모양의 공용 공간을 통해 3층과 연결되는 편안한 분위기를 조성한다. 2개의 침실은 3층 양쪽 날개에 배치하여 녹지가 있는 풍경과 마주하고 있다. 지붕이 있는 정원에서는 여가 활동을 즐길 수 있으며 지붕위에 나무들은 또 다른 그늘을 만들어 주고 아래층 침실로 가는 열도 줄여준다.
따라서 ARQ은 땅에서부터 수직적으로 식물들이 수직적으로 이어져 지붕에서 퍼져 있는 것처럼 보이고 방들이 서로 이어져 있어 건축물과 포켓 그린 코트가 함께 어우러진 모습이라고 할 수 있다. 포켓 코트가 방안으로 이어지면서 공기의 순환이 훨씬 원활해지고 내부로 더 많은 자연광이 들어오게 된다. 이로 인해 이산화탄소는 줄어든다. 도시 환경에서 더 많은 녹지를 조성하는 방법으로 도시 설계 시에 참고할만한 흥미로운 디자인 솔루션이 탄생한 것 같다.

This project, “ARQ” is designed to be a house for a small modern family, where all of the spaces need to serve the functions efficiently. As all of the houses are located in an urban neighborhood, each with compact plot size, the architect is challenged with creating sizable green spaces, swimming pools and enough spaces for other activities to suit the lifestyle of the modern-day city dwellers. Most of the expansion has to be done vertically, with an emphasis on the abundance of natural light and cross-ventilation.
ARQ comprises two building types; M and L. Both types are designed based on the same concept and are quite similar in terms of design with the exception being an additional basement floor and a sunken court of the L type. The first floor's layout of both types is designed to be “semi-public” for welcoming guests and for lounging that can also be turned into a guest dining area. This level allows for interactions between the homeowners and their guests which is also connected to the basement features only in the L type, designed for being a “man-cave” or a multi-purpose room that can be customized into a party room / wine cellar / cigar bar and a home theater. The basement also opens out to a sunken court which flows out to the garden on the first level, resulting in an airy basement with a view of the greenery but at the same time, still private. Above the first level, a bedroom is placed on a mezzanine surrounded by the green spaces while on the second floor, locates a “semi-private zone” for the family members. The second floor is intended to be the area where the family would spend most of their time, the layout is an open plan that combines the living room and the dining space. The swimming pool is also placed on this floor so the shade would allow for its all-day usage. Additionally, when the pool is not in use, it becomes a pleasant background that can be seen from the living space, providing an area for activities such as parties. The water also helps to cool down the air, creating a comfortable atmosphere that connects to the third level through a doughnut-shape open void. The two master bedrooms are located at both wings on the third level, facing the view of greenery of the inner courtyard. The rooftop on the next level features a rooftop garden to house leisure activities, the trees located on the roof also provide a welcoming shade for the rooftop users but also reduce the heat being transferred down through to the bedrooms below.
The design of ARQ is therefore a combination of architectural volume with the pocket green courts that is inserted in between the seams of rooms, as if to create a vertical flow of greenery from the ground level and disperse it throughout on the roof, in the form of a rooftop garden. The insertion of these pocket courts in between the rooms also increases ventilations as well as bringing more natural light into the interior spaces. This results in an interesting design solution, which could be explored further when designing in urban settings as a way to reduce carbon dioxide and create more greenery for the city.














건축가 IDIN Architects
위치 태국, 방콕
용도 주거시설
프로젝트면적 470㎡
프로젝트건축가 IDIN Architects
조경설계 TROP : Terrains + Open Space
시공 FINE HOME AND ASSOCIATE CO., LTD.
발주자 FLOW Assets
사진작가 DOF Sky | Ground
해당 프로젝트는 건축문화 2024년 5월호(Vol. 516)에 게재되었습니다.
The project was published in the May, 2024 recent projects of the magazine(Vol. 516).
May 2024 : vol. 516
Contents : SKETCH City of Lost Memories / Hossain Mousavi 잃어버린 기억의 도시 / 허세인 무사비 : COMPETITION : RECENT PROJECT g:ign / g:ign architects 지아인(地我因) / 건축사사무소 지아인Arc and
anc.masilwide.com
'Architecture Project > Single Family' 카테고리의 다른 글
| Forest Villa (0) | 2024.06.07 |
|---|---|
| La Marina House (0) | 2024.05.23 |
| Onhyeri Jung Youngja House (0) | 2024.05.21 |
| MUNUMI STUDIO (0) | 2024.05.20 |
| A Cat Tree House (0) | 2024.05.03 |
마실와이드 | 등록번호 : 서울, 아03630 | 등록일자 : 2015년 03월 11일 | 마실와이드 | 발행ㆍ편집인 : 김명규 | 청소년보호책임자 : 최지희 | 발행소 : 서울시 마포구 월드컵로8길 45-8 1층 | 발행일자 : 매일



