
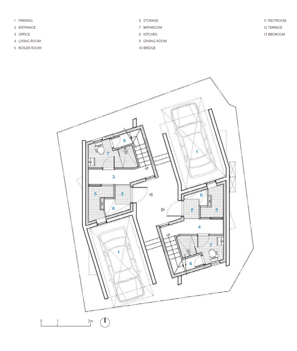
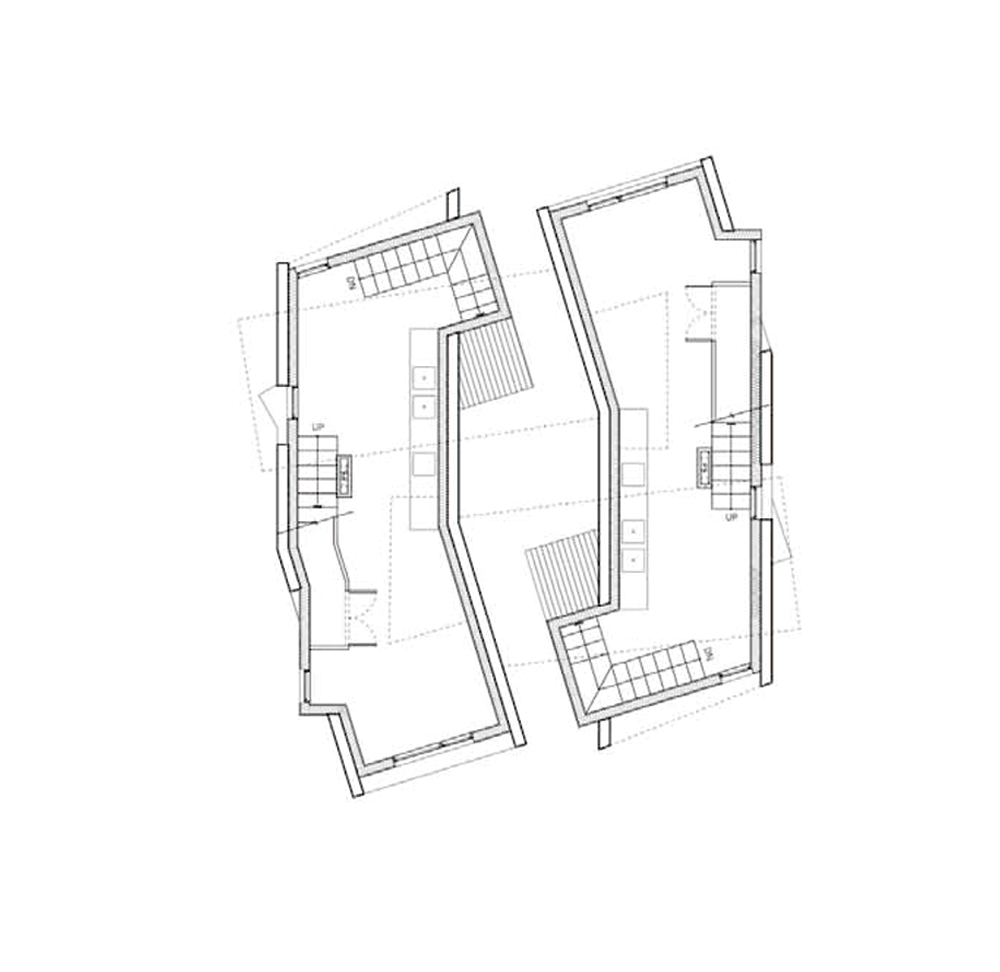
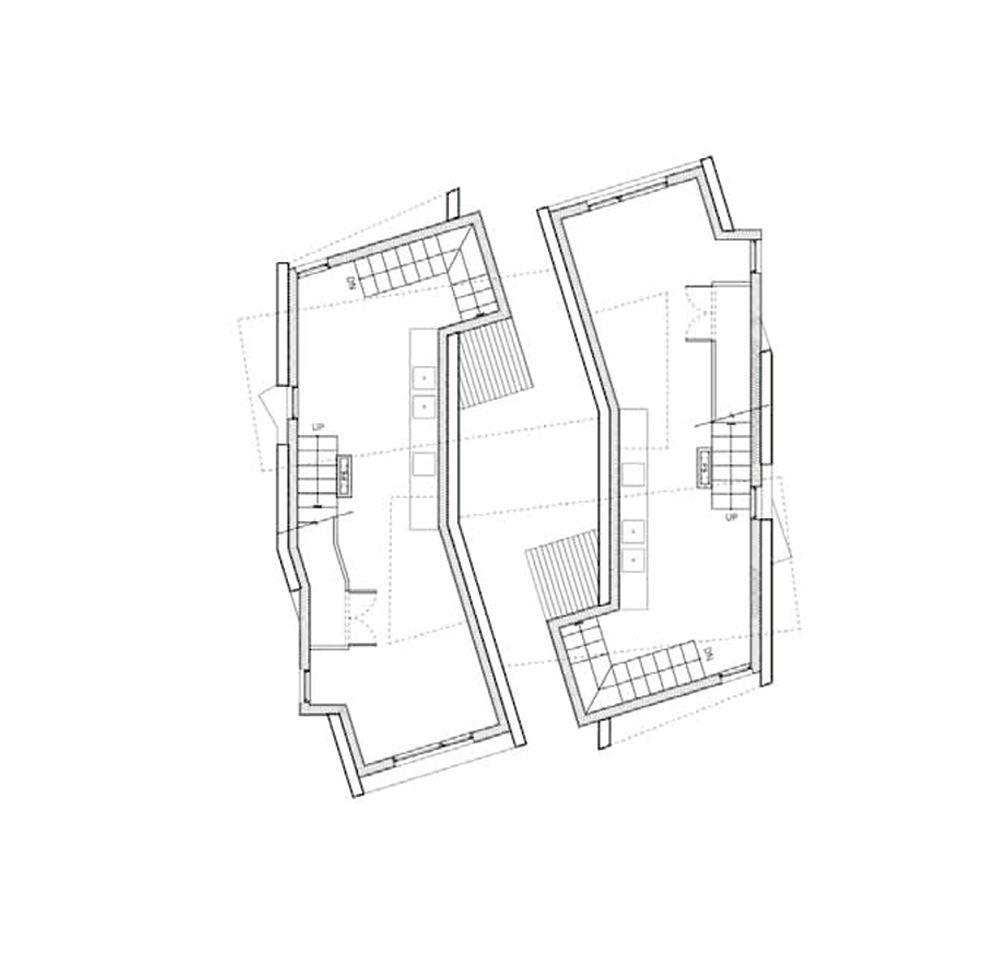
역사적인 서울 강북구 인수봉 자락에 위치한 무너미 스튜디오는 북한산의 인수봉과 도봉산을 멀리 바라보며 목재와 콘크리트라는 두 가지 주요 재료를 흥미로운 방식으로 혼합했다. 이 주택은 어릴 적부터 친구였던 두 명의 집주인을 위해 설계된 쌍둥이 주택으로, 작은 출판사를 위한 공간과 1인 가구를 수용할 수 있는 주택으로 각각 구성되어 있다. 쌍둥이 주택은 각 동에 두 개의 방과 두 개의 욕실을 갖추고 있으며, 97㎡의 콤팩트한 내부에는 수직으로 통합된 생활 공간과 인접한 주방이 조성되어 있다.
기존의 아파트 방식의 건설과 도시 주택 구성 관행에서 벗어나, 수직으로 같은 유닛이 적층되는 방식과는 다른 수직 구성을 도입하는 것을 목표했다. 건축가는 건축 법규를 창의적으로 재해석하고 작업자들의 장인 정신을 최적화하여 같이 사는 주거의 수직 통합 뿐만 아니라 목재와 콘크리트의 조합에서 나오는 예기치 않은 우연적 상황에 주목했다. 각 동의 상호 침투로 인한 도시 주택의 공간적 조직을 재정의하는 한편, 두 동이 완전히 분리됐지만 긴밀하게 통합된 연결을 이루도록 했다.여기서 ‘통합’과 ‘독립’이라는 용어가 모순된 것처럼 들릴 수 있지만, 한국의 전통적인 ‘방’을 목재 큐브와 박공지붕으로 전환한 가장 단순한 유형을 채택하고, 콘크리트가 지상 인프라 역할을 하면서 개방형 뼈대로 이를 지지하는 철근 콘크리트와 혼합된 목조 주택의 다른 형식을 선보였다.
이 하이브리드적인 재료의 혼합은 서울의 고층 주거 현실에 대한 도전임과 동시에 실용적이면서도, 실내 조직에 대한 느슨한 용도(Loose-Fit)라는 사고를 구현한다. 이는 목조 건축을 고층화하는 데 처한 현실적이고 실무적인 한계를 받아들이면서도, 경량 목구조에 대한 이해, 이를 다룰 수 있는 국내 기술의 숙련도 그리고 단기 건설 시장의 급격한 변화를 반영한 결과이기도 하다. 더 나아가 목재와 콘크리트라는 재료 선택을 통해 기후 변화와 자원 고갈에 대한 서울의 건축적인 대안을 제시하며, 내부의 미시 기후를 만들기 위해 목재와 콘크리트에 대한 균형 잡힌 접근 방식을 강조했다.























건축가 Jungin Kim(DoSeeRock Architecture, Soongsil University) + Table O Architects
위치 서울특별시 강북구 인수봉로 188-8
대지면적 117.27㎡
건축면적 70.32㎡
연면적 194.52㎡
건폐율 59.96%
용적율 165.87%
규모 지상 5층
설계기간 2021. 12. - 2022. 7.
시공기간 2022. 8. - 2023. 9.
프로젝트건축가 김정인(도시락 건축연구소, 숭실대학교) + 테이블오 건축사사무소
시공 이정훈, 모르포
구조엔지니어 하이 구조
전기엔지니어 세종 전기
기계엔지니어 태림 종합 기계설비
발주자 박종일, 김정인
사진작가 김태윤
해당 프로젝트는 건축문화 2024년 5월호(Vol. 516)에 게재되었습니다.
The project was published in the May, 2024 recent projects of the magazine(Vol. 516).
May 2024 : vol. 516
Contents : SKETCH City of Lost Memories / Hossain Mousavi 잃어버린 기억의 도시 / 허세인 무사비 : COMPETITION : RECENT PROJECT g:ign / g:ign architects 지아인(地我因) / 건축사사무소 지아인Arc and
anc.masilwide.com
'Architecture Project > Single Family' 카테고리의 다른 글
| ARQ10 (0) | 2024.05.22 |
|---|---|
| Onhyeri Jung Youngja House (0) | 2024.05.21 |
| A Cat Tree House (0) | 2024.05.03 |
| sosowon (0) | 2024.04.26 |
| Oshigome Base (0) | 2024.04.16 |
마실와이드 | 등록번호 : 서울, 아03630 | 등록일자 : 2015년 03월 11일 | 마실와이드 | 발행ㆍ편집인 : 김명규 | 청소년보호책임자 : 최지희 | 발행소 : 서울시 마포구 월드컵로8길 45-8 1층 | 발행일자 : 매일



