
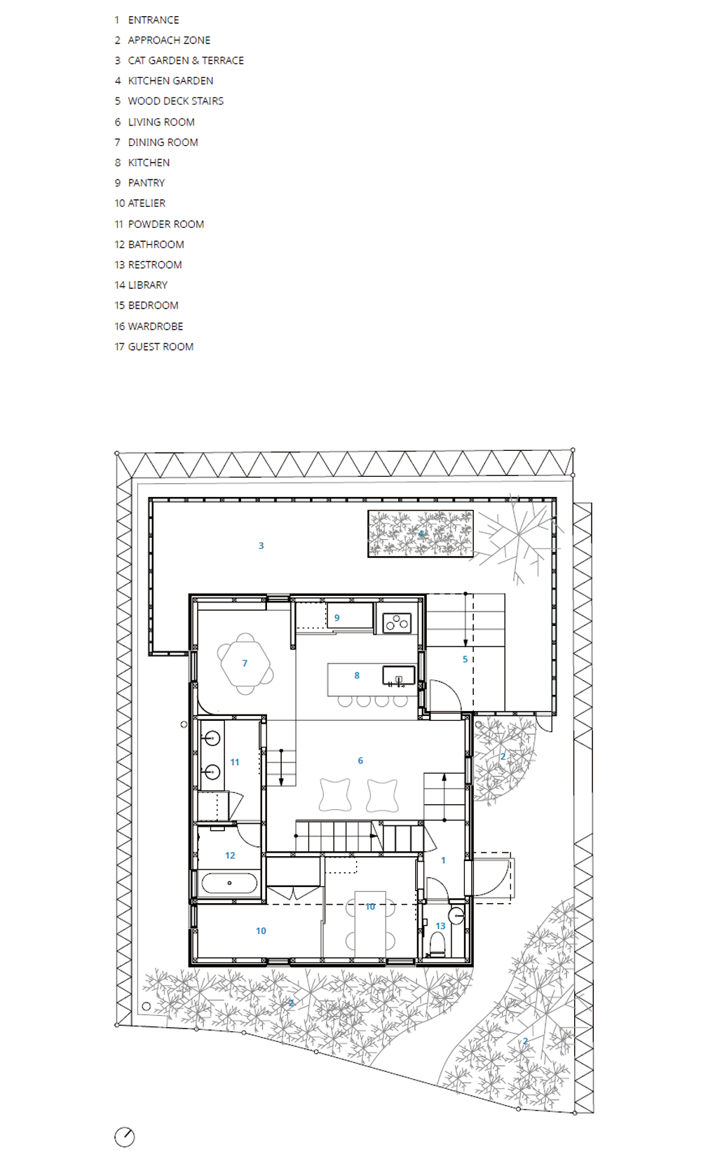
도쿄의 중심부에서 약 1시간 거리에 있는 가마쿠라는 오랜 역사와 푸른 녹지가 풍부한 도시다. 건축가는 작업실 겸 주거 용도로 두 마리의 고양이와 함께 살 수 있는 캣트리 하우스를 설계했다. 고양이에게 있어 집은 세상의 전부이다. 건축가는 고양이들의 관점에서, 고양이를 마치 ‘두 명의 클라이언트’로 여기며 설계했다. 캣트리 하우스는 10년 간 고양이와 살면서 느낀 고양이들만의 언어를 이해하려는 건축가의 노력이 담긴 집이다.
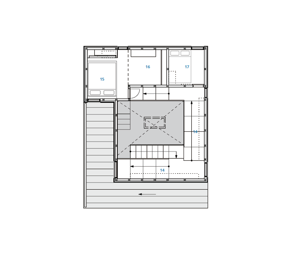
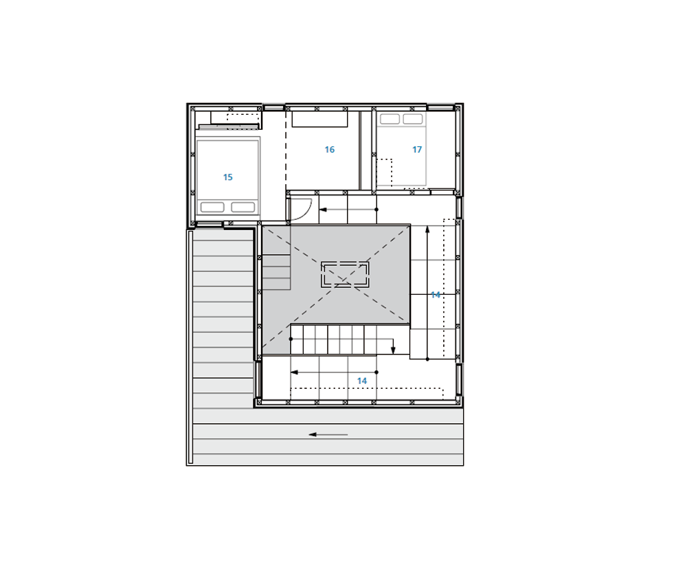
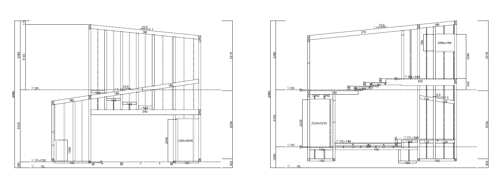
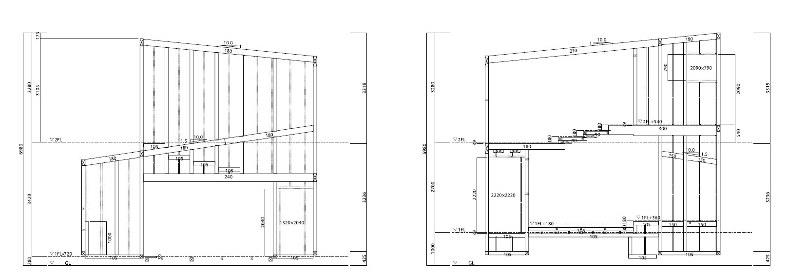
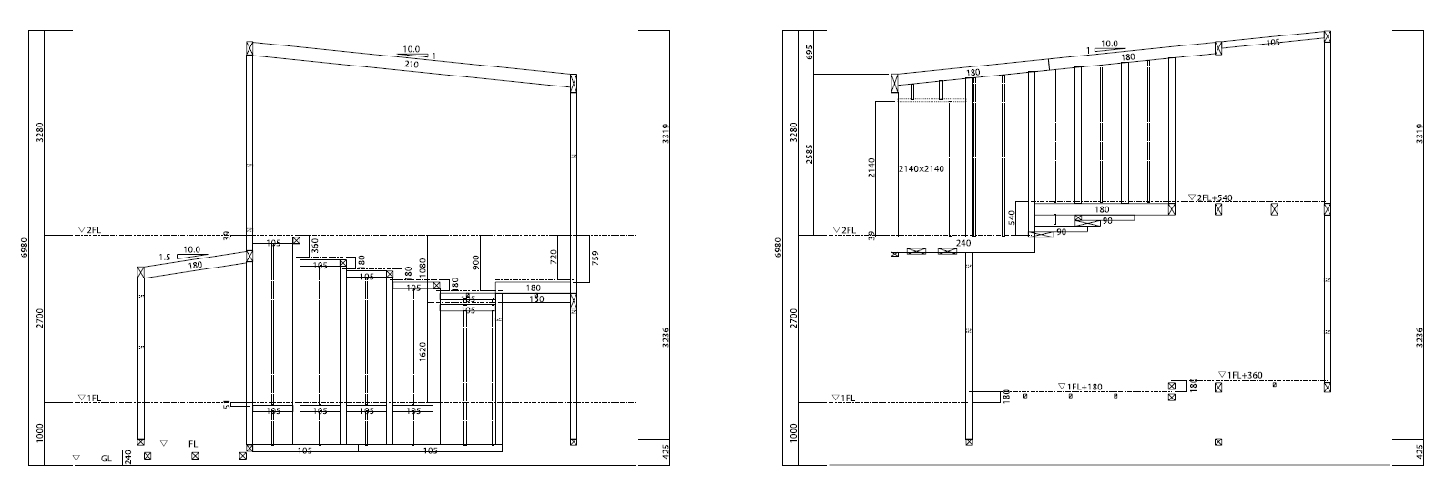
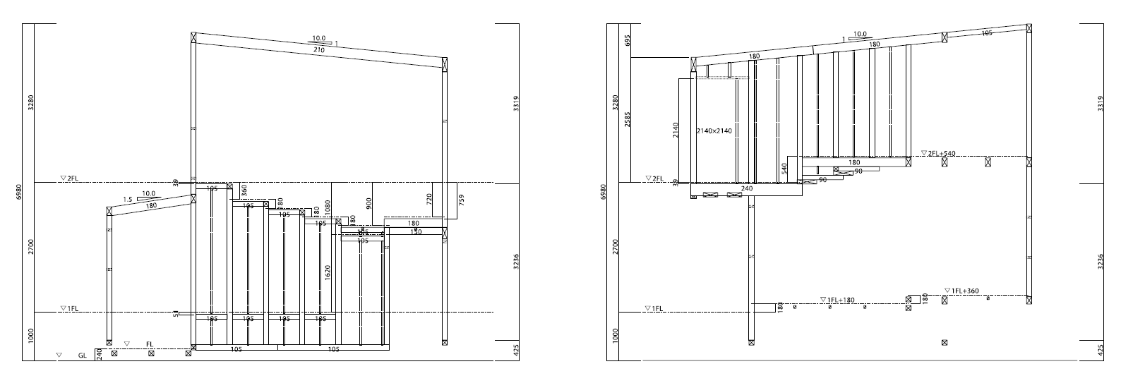
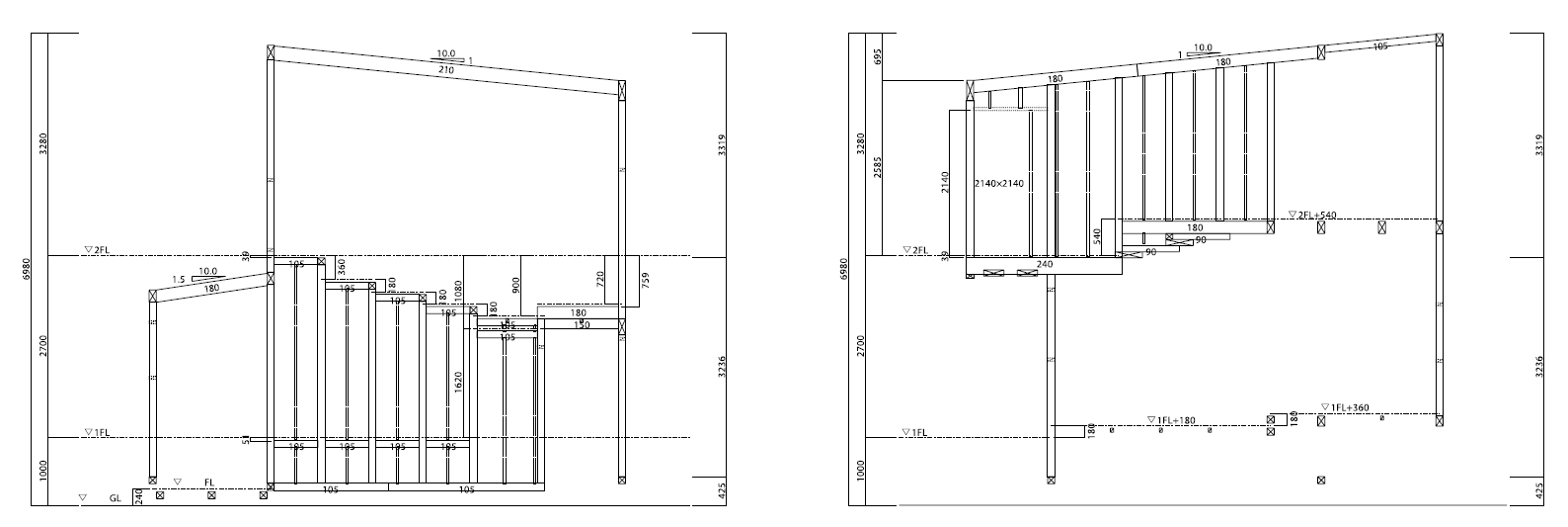
고양이에게 필요한 것은 크게 세 가지이다. 선호하는 온도의 미세한 차이, 사람들과 너무 가깝지도 멀지도 않은 적절한 거리, 고양이들이 안전하다고 느낄 수 있는 장소를 다양하게 마련하는 것이다. 건축가는 이러한 조건을 고려하여 주택 전체를 하나의 ‘캣트리(Cat tree)’처럼 설계했다. 천장의 조명을 중심으로 아트리움을 배치하고, 나선형 계단으로 집을 둘러싸 자연광이 하루종일 나선형 계단을 밝힌다. 집 안의 공간들은 층마다 미세한 온도 차이가 나며, 고양이들은 시간에 따라 자신이 좋아하는 온도별 공간을 찾아 움직일 수 있다. 또, 나선형 계단은 집 전체를 둘러볼 수 있게 설계되어 고양이가 숨거나 사람과의 거리를 유지할 수 있게 한다. 계단을 따라 놓인 벽의 캔틸레버 구조 책장은 복층 도서관의 역할을 한다. 고양이에게는 계단이 아늑한 침대가 되고, 건축주는 어느 곳에서나 앉아 책을 읽을 수 있는 공간이 된다. 원형 계단의 일부는 고양이 눈높이에 맞춰 창문을 두었다.
주택의 전체적인 형태는 두 개의 ‘L’자형 볼륨으로 구성되어 있고, 각각 다른 각도의 지붕이 있다. 지붕은 두 개의 볼륨을 지닌 주택을 이어주면서 가마쿠라 산과 조화를 이룬다. 지나가는 사람들은 건물의 외관과 더불어 창밖을 내다보는 고양이를 풍경의 일부로서 감상할 수 있을 것이다.














건축가 Tan Yamanouchi & AWGL
위치 일본, 카마쿠라
대지면적 182.04㎡
건축면적 63.94㎡
연면적 94.19㎡
규모 지상 2층
설계기간 2021. 1. - 2022. 7.
시공기간 2022. 8. - 2023. 7.
대표건축가 Tan Yamanouchi
구조엔지니어 (Yamawaki Katsuhiko Architectural Engineering Design) Katsuhiko Yamawaki, Yumena Hirata
시공 (Tokyo Kenchiku Plus) Satoshi Nakazato, Yuta Ogura
마감 (Kojima Komuten) Makoto Kojima, Riki Matsui
식물조경 (SOLSO) Hidenori Juna
데크 (Iroha Zoen) Masashi Hisanaga, Mutsumi Hisanaga
사진작가 Lamberto Rubino
해당 프로젝트는 건축문화 2024년 4월호(Vol. 515)에 게재되었습니다.
The project was published in the April, 2024 recent projects of the magazine(Vol. 515).
April 2024 : vol. 515
Contents : SKETCH Living Room in Fantasy / Alexandr Krylov 환상적인 건축물 속 거실 / 알렉산드로스 크릴로프 : COMPETITION : RECENT PROJECT Gomso Salt Farm Smart Complex Center / LIM architects 곰소염전 스마트복합쉼터 / 건축
anc.masilwide.com
'Architecture Project > Single Family' 카테고리의 다른 글
| Onhyeri Jung Youngja House (0) | 2024.05.21 |
|---|---|
| MUNUMI STUDIO (0) | 2024.05.20 |
| sosowon (0) | 2024.04.26 |
| Oshigome Base (0) | 2024.04.16 |
| House for a Family of Cats and Dogs (0) | 2024.04.11 |
마실와이드 | 등록번호 : 서울, 아03630 | 등록일자 : 2015년 03월 11일 | 마실와이드 | 발행ㆍ편집인 : 김명규 | 청소년보호책임자 : 최지희 | 발행소 : 서울시 마포구 월드컵로8길 45-8 1층 | 발행일자 : 매일



