
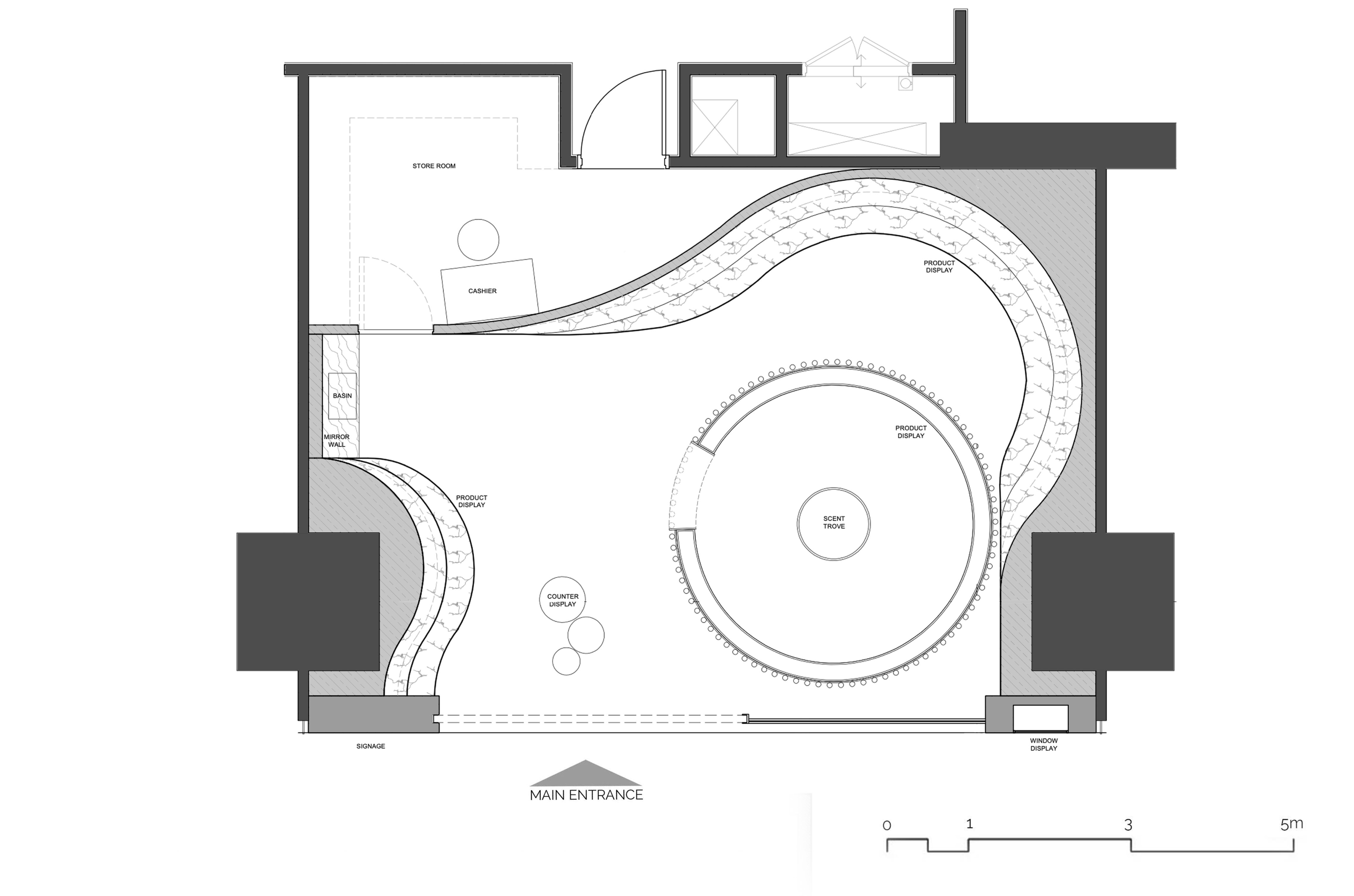
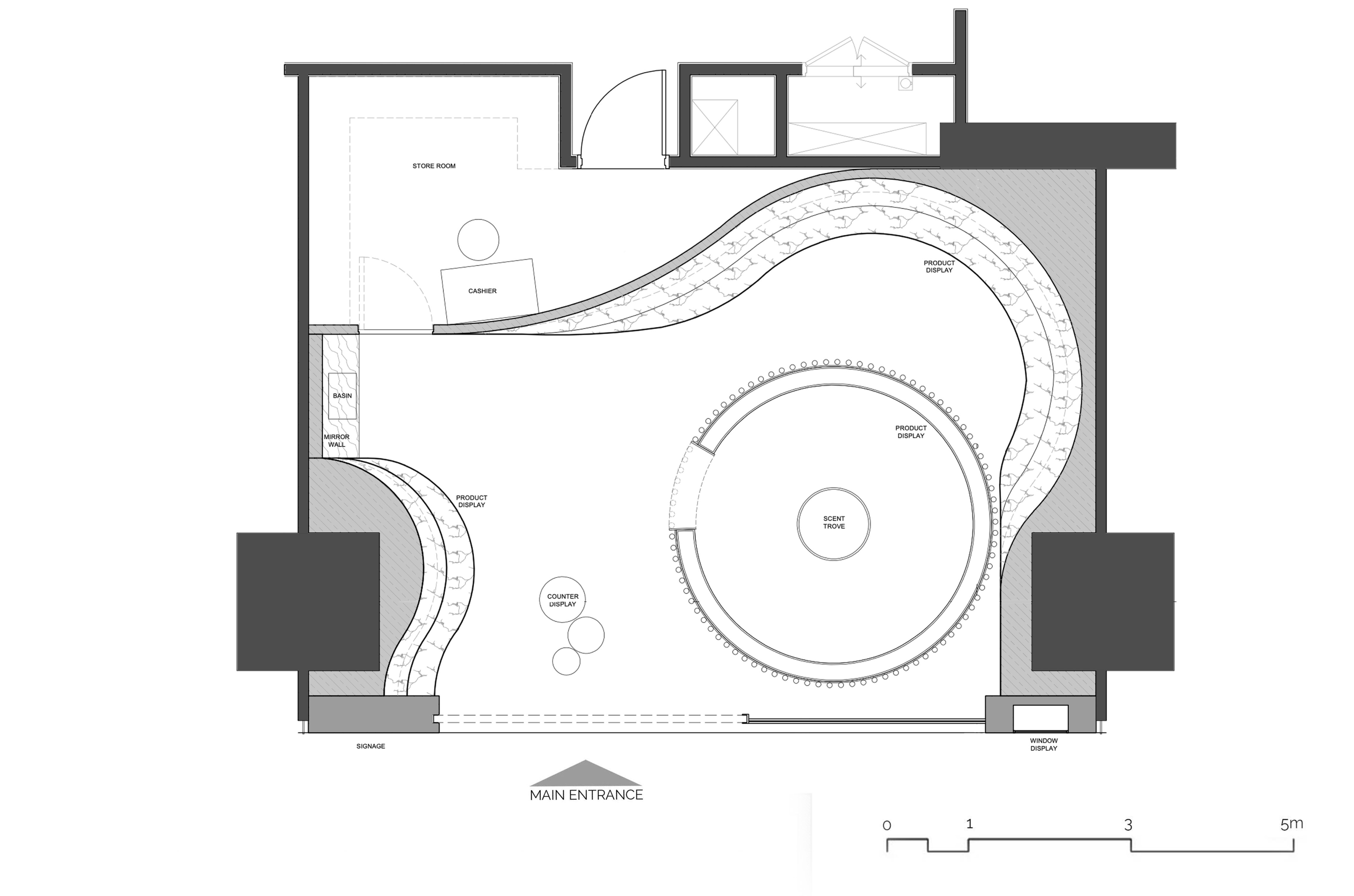
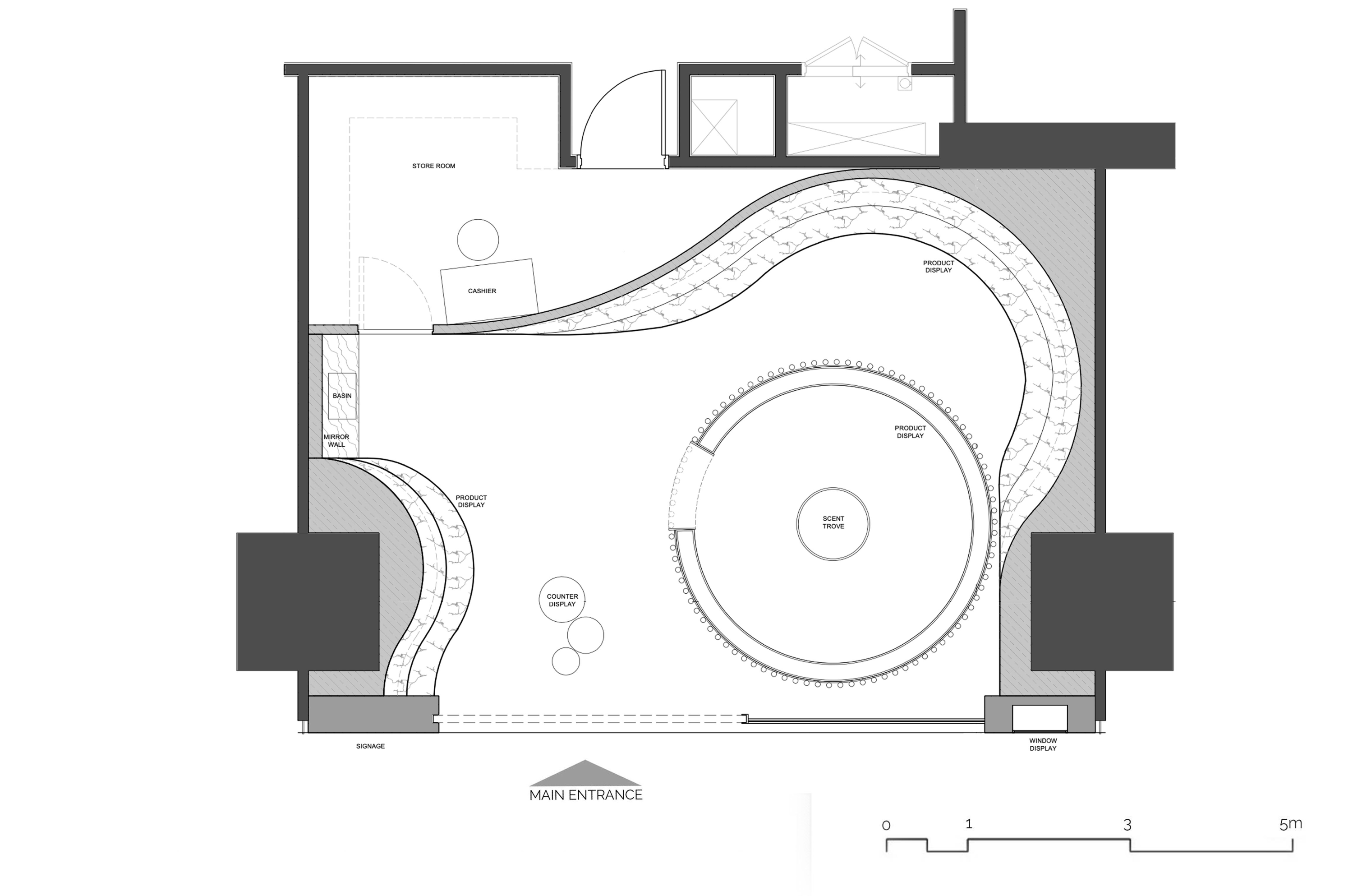
쿠알라룸푸르 중심부에 위치한 파빌리온 다만사라 하이츠 몰에 위치한 최신 트로브 매장은 매장된 보물을 찾아 땅을 파면서 마치 그 공간을 탐험하는 것처럼 손님들에게 몰입도 높은 발견의 여정을 선사한다. 흙을 쌓아올린 곡선의 둘레 벽과 거친 치장벽토는 땅의 질감을 흉내 내기 위해 조각되었다. 흙을 뒤지는 손가락의 개념에서 영감을 얻어 벽을 따라 계단식 층이 드러나며 제품 진열된 구석을 유기적으로 형성한다. 흙으로 만든 회색 침전물은 가게 정면과 부서진 대리석 대야 작업대를 장식한다.
매장의 '드 피스 드 레지스탕스' 원형 스테인리스 스틸 캐빈으로 아노다이징 처리된 무지개 마감이 반짝이며 발견되기를 기다리고 있다. 그 안에는 넓고 다양한 향수들이 담긴 세심하게 큐레이션된 체험형 '센트 트로브'가 있다. 마치 실험실처럼 고객들이 완벽한 향을 찾고 실험에 완전히 몰입할 수 있도록 디자인된 것이다.

The latest Trove store which is located in Pavilion Damansara Heights Mall in the heart of Kuala Lumpur, brings guests on an immersive journey of discovery as they explore the space as one does when digging the ground in search of buried treasure. Curved perimeter walls in rammed earth and coarse stucco were sculpted to mimic textures of the ground. It draws inspiration from the notion of fingers rummaging through soil, revealing cascading layers along the walls that organically form display nooks for products. Earthy-toned grey travertine clads the shopfront facade and the broken marble basin counter top.
The ‘de piece de resistance’ of the store is a circular stainless-steel cabin which reveals itself with its anodized rainbow finish glistening and waiting to be discovered. Within is a thoughtfully curated experiential ‘Scent Trove’ with a vast and extensive range of perfumes. It was designed akin to a lab to allow customers to fully immerse themselves to experiment and discover their perfect scent.










건축가 Spacemen Studio
위치 Lot 2.10 3, Jalan Damanlela, Pusat Bandar Damansara, 50490 Kuala Lumpur, Wilayah Persekutuan Kuala Lumpur, Malaysia
용도 소매점
준공 2023
연면적 830sqm
대표건축가 Edward Tan
프로젝트팀 Edward Chan, Wei Tan, Kuma Ni, Alvin Zhou
발주자 Trovelux Sdn Bhd
사진작가 David Yeow Photography
'Interior Project > Retail' 카테고리의 다른 글
| GUNGSEOCHAE HAIR PANGYO (0) | 2024.05.13 |
|---|---|
| Coach Airways, A Retro-Futuristic Ode to 1970s Air Travel (0) | 2024.05.09 |
| LIGHT UP COFFEE Mitaka (0) | 2024.05.03 |
| Xiaozhuo Boutique (0) | 2024.04.26 |
| Nude Project's Milan Flagship Store (0) | 2024.04.25 |
마실와이드 | 등록번호 : 서울, 아03630 | 등록일자 : 2015년 03월 11일 | 마실와이드 | 발행ㆍ편집인 : 김명규 | 청소년보호책임자 : 최지희 | 발행소 : 서울시 마포구 월드컵로8길 45-8 1층 | 발행일자 : 매일



