
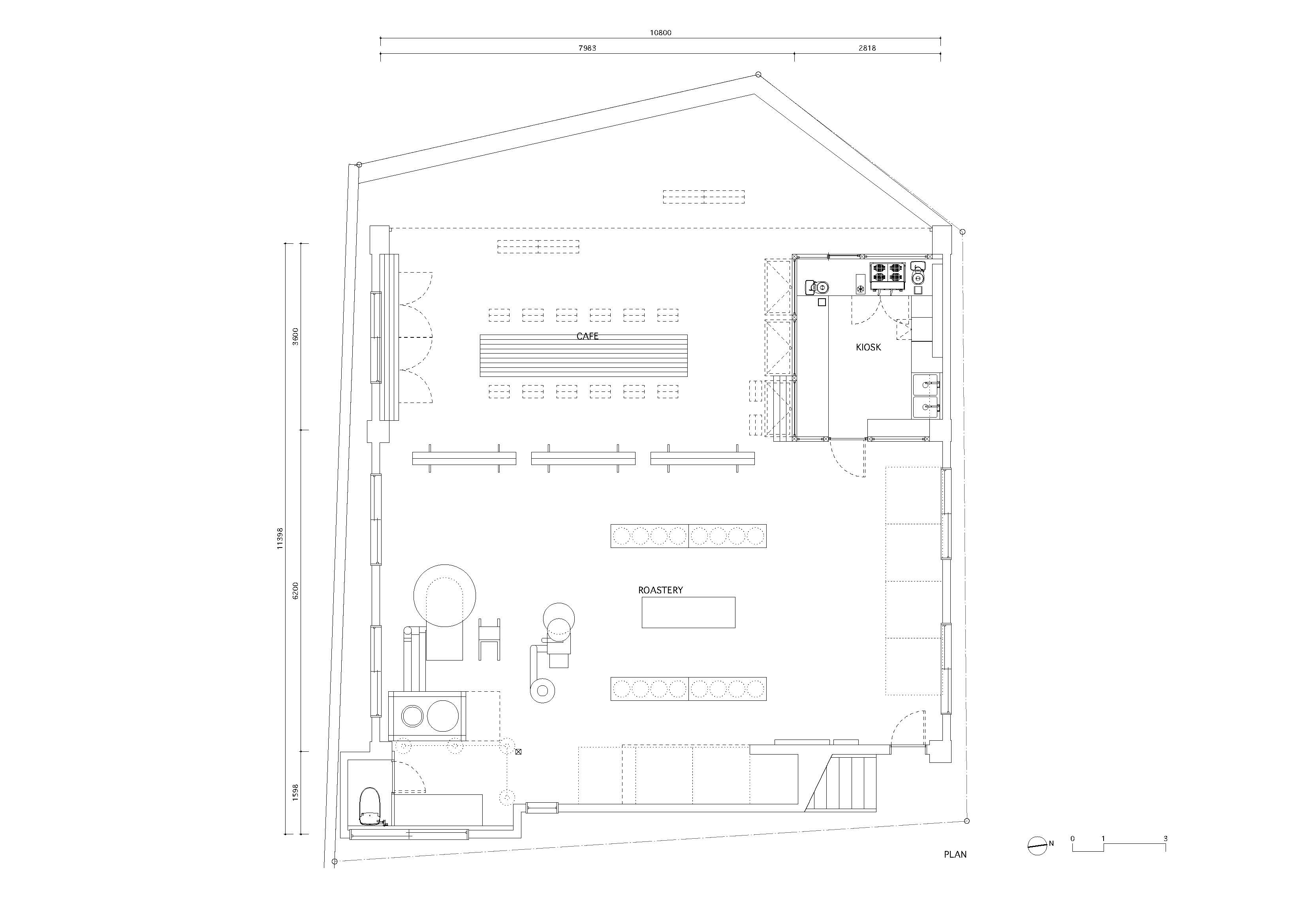
LIGHT UP COFFEE 가게는 오래된 자동차 정비소를 로스터리로 사용할 수 있게 리모델링 한 것이다. 1층은 로스팅 공간 겸 카페로 앉아서 커피를 즐기거나 진열된 원두를 둘러볼 수 있는 공간이 넉넉하게 자리잡고 있다. 건물 2층은 포장이나 배송, 제품 관리를 위한 공간으로 사용된다. 처음에 LIGHT UP COFFEE의 카와노 씨가 1960년대 빈티지 독일산 로스팅 머신 'Probat UG22'를 구입했다고 연락이 왔다. 커피에 대한 관심과 이에 어울리는 공간을 만들고 싶다는 그의 말에서 낭만이 느껴졌다. 로스팅 공간과 카페 사이에 벽을 두지 않아 생원두부터 로스팅 작업 및 커피가 내려지기까지의 모든 과정을 지켜볼 수 있다.
이 건물은 원래 자동차 정비소였기 때문에 거리에 접해 있는 건물의 전면은 모두 천장까지 열 수 있는 셔터로 되어 있다. 셔터를 열면 활짝 열린 공간이 연출되어 지나가는 이웃, 자전거를 탄 사람들, 개와 산책 중인 이웃 등 주변 사람들과 가까운 듯한 느낌을 받을 수 있다. 이 공간을 카페로 바꿔 도시속에서도 사람들이 자유롭게 커피를 즐기고 야외에 있는 듯한 분위기 속에서 일상속의 소통이 이루어지길 바라는 마음에서 '스트리트 라운지'를 설계하였다.
카페 공간에는 키오스크(KIOSK), 4m 길이의 테이블과 바 스툴, 2인용 벤치가 있다. KIOSK는 건물 앞쪽 도로를 향하여 놓여 있고 강렬한 느낌의 로스팅 머신과 대조를 이룬다. 긴 하이 테이블은 직원과 이웃들이 대화를 할 수 있도록 디자인 하였고 벤치는 외부로 옮기기 용이하게 디자인하였다. 공장 느낌의 로스팅 공간과는 다르게 카페 공간은 따뜻한 느낌을 주는 삼나무를 사용하였다. 세심하게 내린 커피처럼 각 조인트도 그 자리에서 직접 손으로 자르고 조립하였다. 로스팅 공간과 카페, 실내외 공간을 개방함에 따라 로스팅 머신의 소리와 냄새는 이웃과 긴밀하게 이어준다.

LIGHT UP COFFEE shop, it was decided to renovate an old auto body shop to be able to also serve as a roastery. The first floor serves as a roasting space and cafe, with plenty of space for sitting and enjoying coffee or browsing the beans on display. The second floor of the building is used for packing, shipping and administration. At first, Mr. Kawano of LIGHT UP COFFEE, contacted us, saying that he had purchased a vintage 1960s German-made roasting machine named "Probat UG22”. When we heard, that the machine had been sold to him by the store that sparked his interest in coffee and that he wanted to create a suitable space for it, we immediately felt a sense of romance. We wanted to make use of the story of the roasting machine and convey the store's commitment to coffee to as many people as possible by allowing them to see and learn about the roasting process. For this reason, no walls were built between the roasting space and the cafe, so that visitors can watch the entire process from the green beans to the coffee they can sample in the cafe.
Because this building used to be an auto body shop, the front of the building bordering the street, is all shutters and can be opened up all the way to the ceiling. By opening the shutters, a space with a great sense of freedom was created, allowing us to feel very close to our neighbors passing by - a parent and child on a bicycle or a neighbor walking their dog. We designed this liberating space as a "street lounge" in the hope that by turning it into a cafe, people would enjoy coffee freely in the city, and that casual communication would occur, just as if they were outside.
The cafe space design includes a KIOSK, a 4-meter long table, bar stools and a bench for two. The KIOSK was symbolically placed facing the road in front of the building to form a counterpoint to the roasting machine, which has a strong presence further in the back. The long high-table was designed to be shared to encourage conversation among staff and neighbors, and the bench to be easily moved around and taken outside. In contrast to the roasting space, which has a strong factory feel, the cafe space is made of solid cedar wood with visible knots to give a sense of warmth through the materials used. Each joint was hand-cut and assembled on site to create a handmade feel that corresponds to the carefully crafted coffee. By opening up the roasting space and the cafe, the indoor and outdoor spaces, the cafe seamlessly connects the neighbors with the sounds and smells of the roasting machine.











건축가 Spicy Architects
위치 Mitaka-shi, Tokyo
연면적 115.19m²
준공 2023. 09.
프로젝트팀 Ryo Yamamoto / Sanako Oosawa
시공 Souta Yoriki
사진작가 Tomoyuki Kusunose
'Interior Project > Retail' 카테고리의 다른 글
| Coach Airways, A Retro-Futuristic Ode to 1970s Air Travel (0) | 2024.05.09 |
|---|---|
| Unearthing a Hidden Trove (0) | 2024.05.08 |
| Xiaozhuo Boutique (0) | 2024.04.26 |
| Nude Project's Milan Flagship Store (0) | 2024.04.25 |
| PJ. Lobster Fernando VI (0) | 2024.04.18 |
마실와이드 | 등록번호 : 서울, 아03630 | 등록일자 : 2015년 03월 11일 | 마실와이드 | 발행ㆍ편집인 : 김명규 | 청소년보호책임자 : 최지희 | 발행소 : 서울시 마포구 월드컵로8길 45-8 1층 | 발행일자 : 매일



