
아쉬운 프로젝트의 조건들
송파위례유치원은 신도시 건설과 함께 설계공모(2019)를 통해 지어진 공립 단설 유치원이다.부지는 강북에서 이전하는 덕수고등학교와 대규모 공동주택부지 사이 자투리에 자리잡고 있는데 애초 바람직한 프로젝트가 성립되기 몇 가지 어려운 조건을 가지고 있었다.
신도시 중심 녹지 축이 인근에 있음에도 부지는 물리적, 시각적으로 연결이 전혀 되지 않는 위치였다. 전면의 넓은 27m 전면 도로에 접한 대지의 폭은 주차진출과 원생들의 출입을 분리하기에 충분하지 않았고, 부지 동측에 수 백대의 차량이 드나드는 공동주택의 지하주차장 출입구가 인접해 있어 안전의 확보 또한 쉽지 않았다. 주어진 대지면적은 시설규모에 비해 너무 작았고 고저차도 심해 BF를 비롯하여 필수적으로 요구되는 평평한 레벨의 진입광장, 놀이공간, 정원을 포함한 적절한 외부공간의 구성이 불가능하였다. 거기에 부지의 남측과 동측에 30층이 넘는 많은 수의 아파트 주동들이 조밀하게 배치되어 조망 및 채광 또한 매우 불리하였다. 송파위례유치원의 설계는 이러한 조건을 극복하려는 노력에서 출발하였다.
안전한, 그러나 호기심을 자극하는 공간
지구단위계획에 전면도로 변3m의 건축한계선이 정해져 있어 주동의 배치 역시 다른 대안을 찾기 어려웠다. 전면도로 쪽으로 원생들이 드나드는 출입구가 위치할 수 밖에 없고 도로 쪽으로 기울어진 대지의 경사까지 있어 유치원 마치고 현관문이 열리자 마자 쏟아져 나오는 아이들의 물리적 안전의 확보는 설계과정에서 가장 중요한 고려사항이었다. 건물을 최대한 북쪽으로 붙여 전면에 8미터 가량의 공지를 확보하고 다양한 모양의 개구부가 있는 가벽으로 둘러싸는 구상을 하였는데 어찌 보면 불필요한 이 건축적 제안이 결과적으로 많은 문제를 풀어주고 건물에 여러 중요한 가치도 가져다 주었다.
전면 공지를 위요하는 가벽을 건물의 외벽과 일체화시켜 전체 매스를 다공질의 박스같이 만들고 전면도로변으로 특별한 파사드를 형성시켰다. 이 둘러싸는 파사드는 겉에서 보기에 흥미롭고, 공간의 깊이와 투과가 있으며 안쪽에서 밖을 내다 볼 때도 다양한 시각적 프레임을 제공한다. 해의 움직임에 따라 변화무쌍하는 그림자와 채도 높은 내부 색상은 아이들은 물론 어른들의 호기심도 불러 일으킨다.
낯선 것과의 조우
내부로 들어오면 아까 보았던 형태를 다른 높이와 시각에서 볼 수 있는 또 다른 경험을 하게 된다. 다양한 모양의 오프닝과 가벽, 보 등이 만드는 프레임은 무미건조한 신도시의 풍경을 조각조각 잘라내어 시시 때때로 달라지는 빛, 계절과 함께 흥미로운 장면을 제공한다. 그리하여 더 자세히 관찰하고 상상하게 돕는다. 이렇듯 다양한 크기와 형태의 프레임을 통해 바라보는 것 만으로도 관찰자와 외부의 대상 – 도시와 자연 - 사이에는 어떤 분명한 관계의 설정이 일어난다.
관계와 연결, 순환과 통합
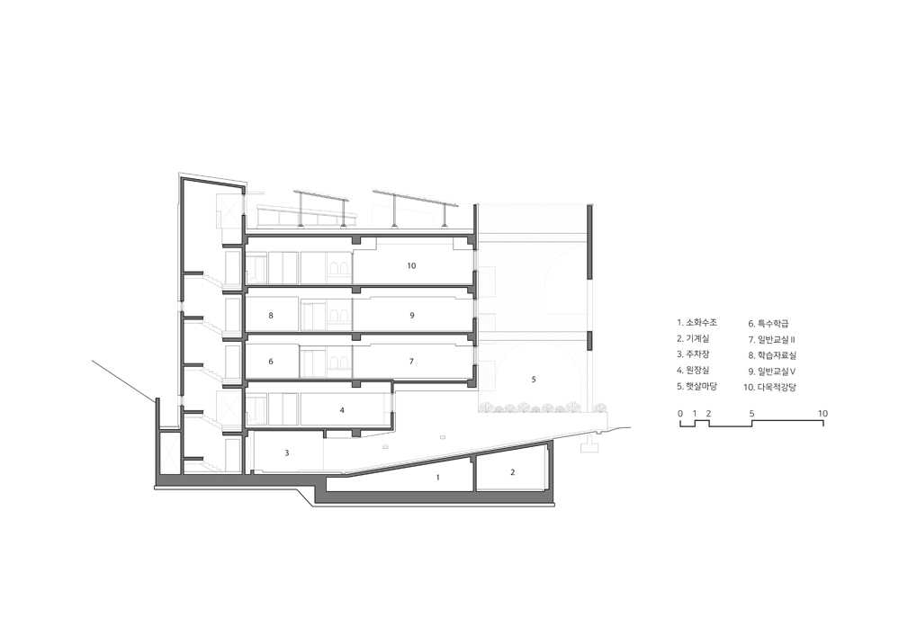
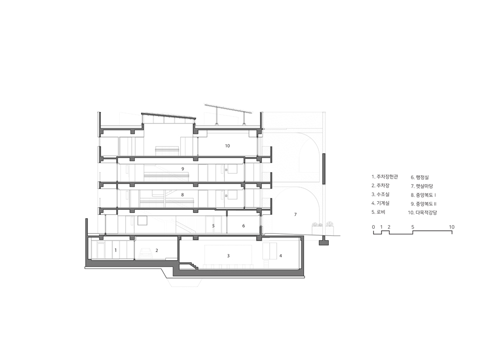
유치원은 대부분의 경우 아이가 세상에 태어나 가정 밖에서 처음으로 만나는 교육공간이자 사회적 공간 – 또 다른 세상 – 이다. 이곳에서 다른 아이들과 친구가 되고, 가족 밖의 어른들 – 선생님들 - 과의 관계를 처음으로 맺게 된다. 우리는 평면과 단면의 계획에서 관계 설정을 위한 몇 가지 방법을 도입하였다.
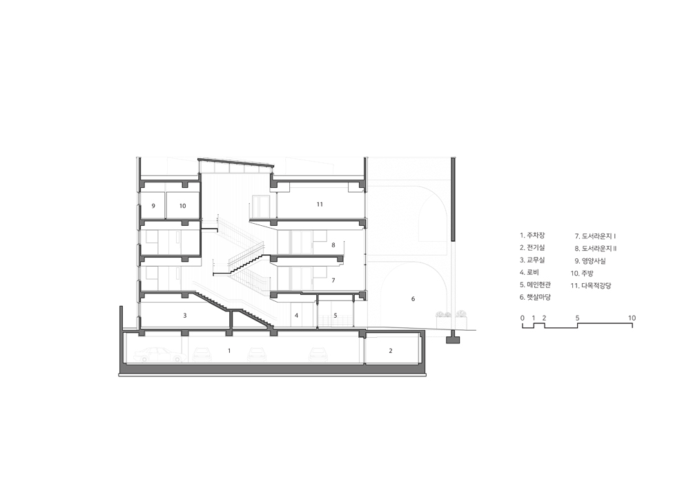
우리나라 대부분의 교육시설은 교실(교육공간)과 복도(이동공간)로 명확하게 구분되는데 우리는 이 구분을 될 수 있는 한 희미하게 만들고 싶었다. 넓고 빛이 충만한 홀을 복도 대신3개의 교실이 모여있는 오픈형 계단 앞에 두어 다용도의 층별 테마공간으로 활용할 수 있게 하였다. 교실은 넓은 미닫이 문을 열어 두는 것만으로 간단하게 공용 홀로 확장된다.
또한 건물에 비해 커다란 오픈형의 계단을 적극적으로 디자인하여 콤팩트한 평면의 4개 층을 수직으로 연결시켰다. 아트리움을 대신하는 오픈 계단의 최상부는 천창을 두어 평면 깊숙한 곳의 빛환경을 개선하는 한편 하늘과 내부공간을 연결하였다. 천창을 통해 옥상의 텃밭의 식물들이 눈에 들어온다. 4층의 강당, 식당 등 서비스 영역과 옥상과의 연계활동도 염두에 두었다. 이 계단은 유치원의 수직이동통로이자 각 층을 시각적, 청각적, 공간적으로 연결하는 장치이다.
각 층의 평면은 막다른 곳이 없이 원형으로 순환할 수 있게 조직하였다. 각 교실은 미닫이 문들을 통해 다른 교실로 또 공용 홀로 연결되어 여러 방향의 동선을 제공한다. 각 교실에는 테마 색을 두어 영역성을 분명하게 하면서도 놀이활동이나 비상시에는 여러 경로를 통해 인접공간으로 이동할 수 있게 된다. 이런 평면구조와 동선체계는 한 층 전체, 그리고 4개 층을 통합하고 연결시켜 아이들의 자연스런 관계 맺기를 유도한다.




















건축가 TAAL Architects
위치 서울특별시 송파구 (위례신도시) 거여동 443
용도 교육연구시설(유치원)
대지면적 804.00㎡
건축면적 401.95㎡
연면적 1,964.84㎡
건폐율 49.99%
용적률 183.64%
규모 지하 1층, 지상 4층
설계기간 2019. 09 - 2021. 01
시공기간 2021. 05 ~ 2022. 06
대표건축가 조항만
프로젝트건축가 서지영
디자인팀 임종훈, 김가림
구조엔지니어 이성모 (SM구조컨설턴트)
기계엔지니어 정상용 (우리이엔씨)
전기엔지니어 이철규 (㈜삼우전기컨설턴트)
시공 이기열 (㈜혁성공영)
발주자 서울특별시 교육청 강동송파교육지원청
사진작가 노경
'Architecture Project > Education' 카테고리의 다른 글
| Van Hien University Vietnam (0) | 2024.05.17 |
|---|---|
| Marshgate UCL East Building (0) | 2024.05.17 |
| Pako Street Animal Social Life Campus (0) | 2024.05.06 |
| FOM Pavillon Düsseldorf (0) | 2024.04.19 |
| Study Pavilion TU Braunschweig (0) | 2024.04.18 |
마실와이드 | 등록번호 : 서울, 아03630 | 등록일자 : 2015년 03월 11일 | 마실와이드 | 발행ㆍ편집인 : 김명규 | 청소년보호책임자 : 최지희 | 발행소 : 서울시 마포구 월드컵로8길 45-8 1층 | 발행일자 : 매일


