
UCL East를 위한 Stanton Williams의 새로운 랜드마크 건물은 새로운 유형의 대학 캠퍼스의 표준을 세웠다.
Marshgate는 스탠튼 윌리엄스(Stanton Williams)가 설계한 35,000제곱미터 규모의 최첨단 학술 건물로 런던 퀸 엘리자베스 올림픽 공원, UCL East 캠퍼스에 지어졌다. Marshgate는 오늘날의 가장 이슈가 되는 사회적, 환경적, 기술적 과제에 대한 해결책을 찾는 데 초점을 맞추었고, 교육 환경을 조성하여 새로운 동부 런던 캠퍼스에 통합될 많은 교수진의 전문 지식을 활용할 수 있도록 설계 되었다.
UCL 최대 규모의 단일 건물이 될 랜드마크 계획은 창의 산업부터 엔지니어링, 로봇 공학, 녹색 기술 및 글로벌 헬스에 이르기까지 다양한 분야를 위한 개방적이고 적합한 교육과 연구 및 협업이 이루어 질 수 있도록 8개층에 걸쳐 공간을 제공하고 상호 연결된 작업이 이루어 질 수 있도록 하였다. 새로운 유형의 대학 캠퍼스에 대한 표준을 제시하고 있는 이 건물은 사일로를 허물고 학제 간 학습과 연구를 촉진하고 학생을 비롯하여 학계 및 대중을 관심을 이끌도록 설계되었다.
Stanton Williams’ new landmark building for UCL East sets standard for new type of university campus
Marshgate, a 35,000sqm state-of-the-art academic building designed by Stanton Williams, has completed at the forefront of the UCL East campus, in London’s Queen Elizabeth Olympic Park. Marshgate is designed to create a collaborative and cross-disciplinary educational environment focused on finding solutions to today’s biggest social, environmental and technological challenges, drawing on the shared knowledge and expertise of the many faculties that will converge at the new east London campus.
The landmark scheme, UCL’s largest single building, offers eight floors of open and adaptable teaching, research and collaboration spaces, for fields ranging from the creative industries to engineering, robotics, green technologies and global health - inviting new and interconnected modes of working, and entirely new research avenues and disciplines to emerge. Setting the standard for a new type of university campus, the building is designed to break down siloes and promote and cross-disciplinary learning, thinking and research, bringing together students, academics, and the public.


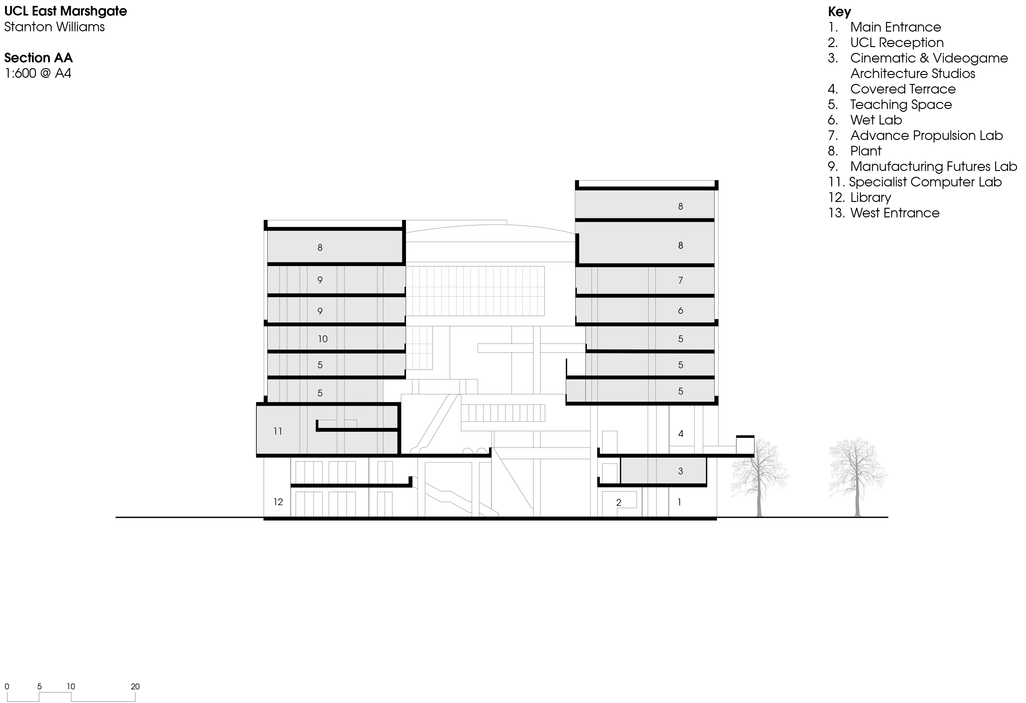
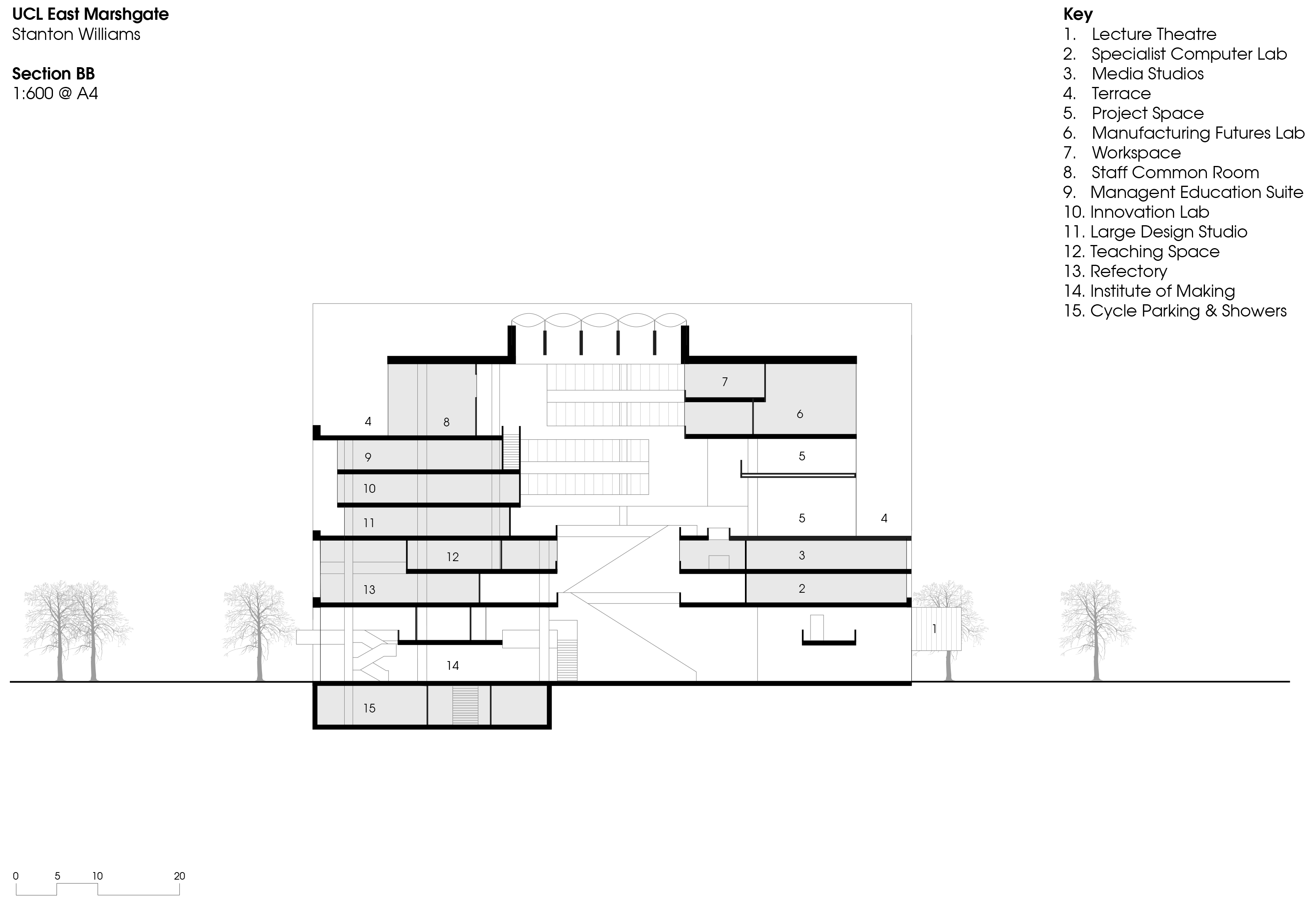
서로 다른 층은 일련의 이웃처럼 모여 있으며, 각 층에는 비공식 회의나 전시를 위한 2배 높이의 협업 공간이 있다. 건물의 낮은 층에는 학교와 지역 사회 단체 및 대중을 위해 고안된 카페, 공공 예술 전시 및 활동을 갖춰 공식적으로 접근성을 높인 공간을 갖추고 있다. 새롭게 조경한 공공 영역은 인접한 강변과 퀸 엘리자베스 올림픽 공원 모두에 생동감 있고 접근 가능한 인터페이스를 제공한다.
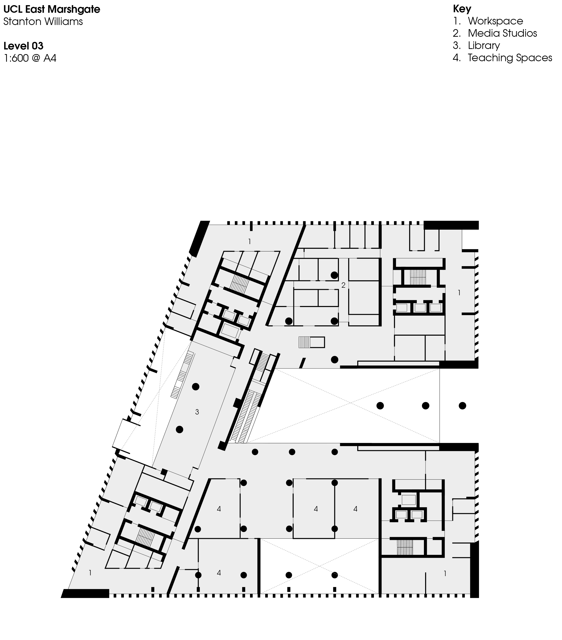
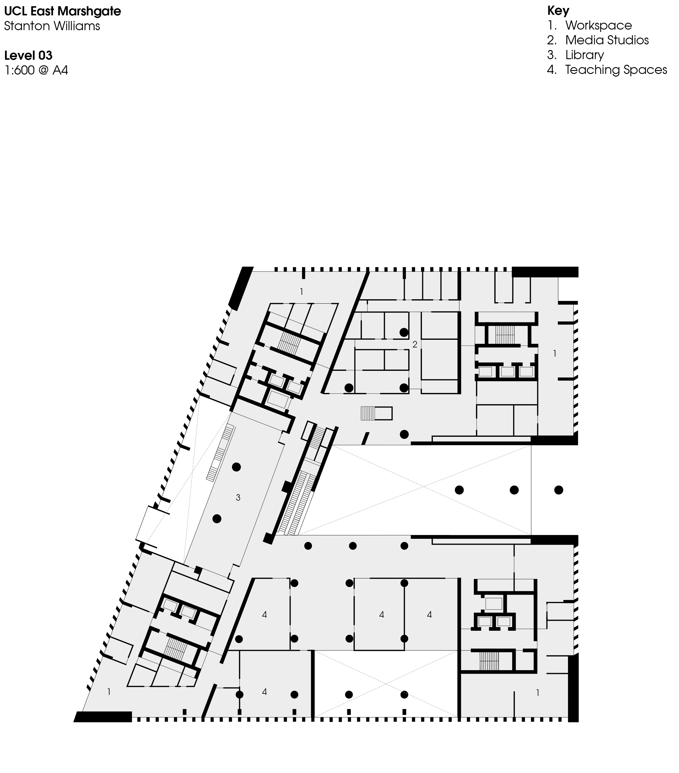
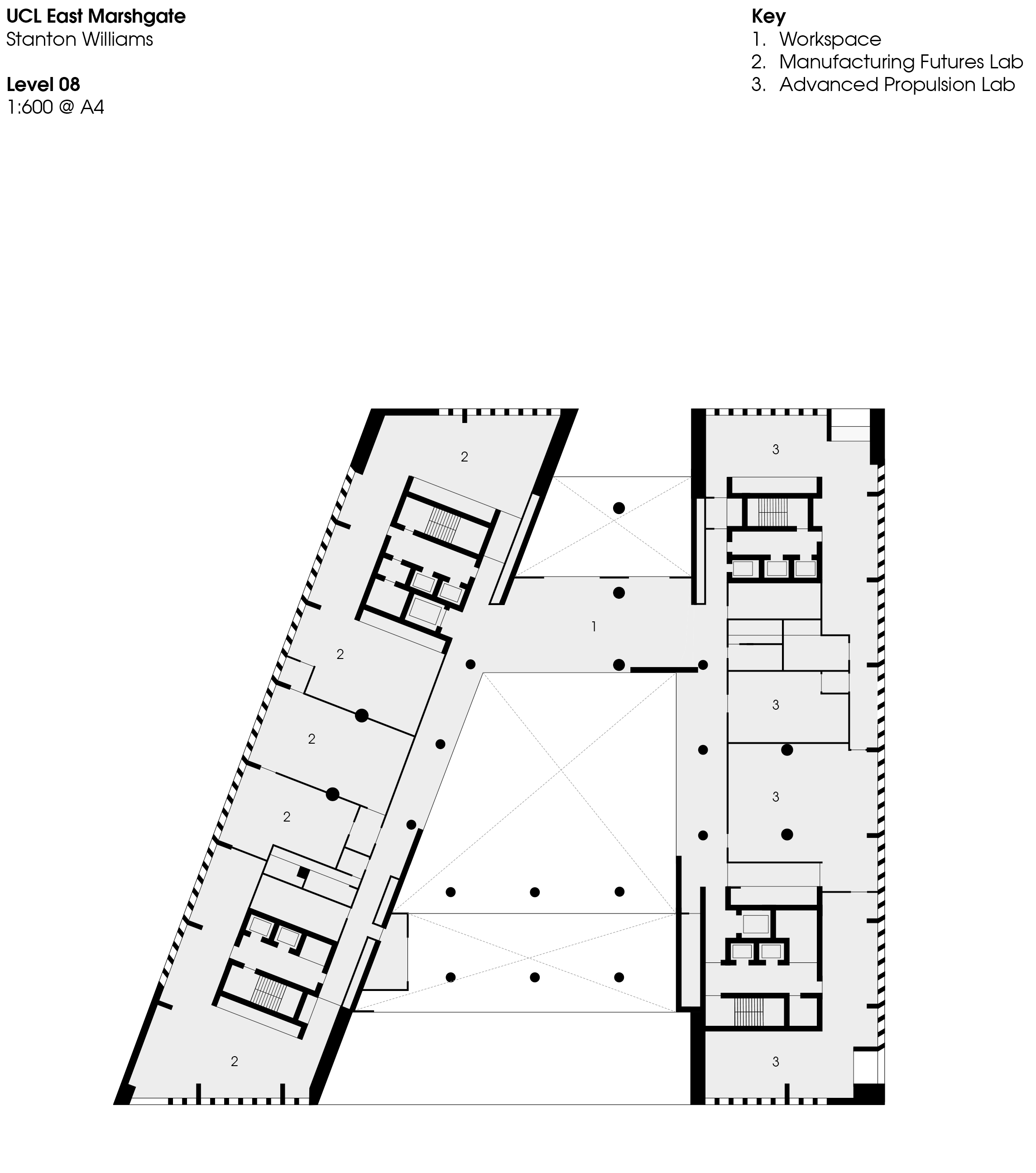
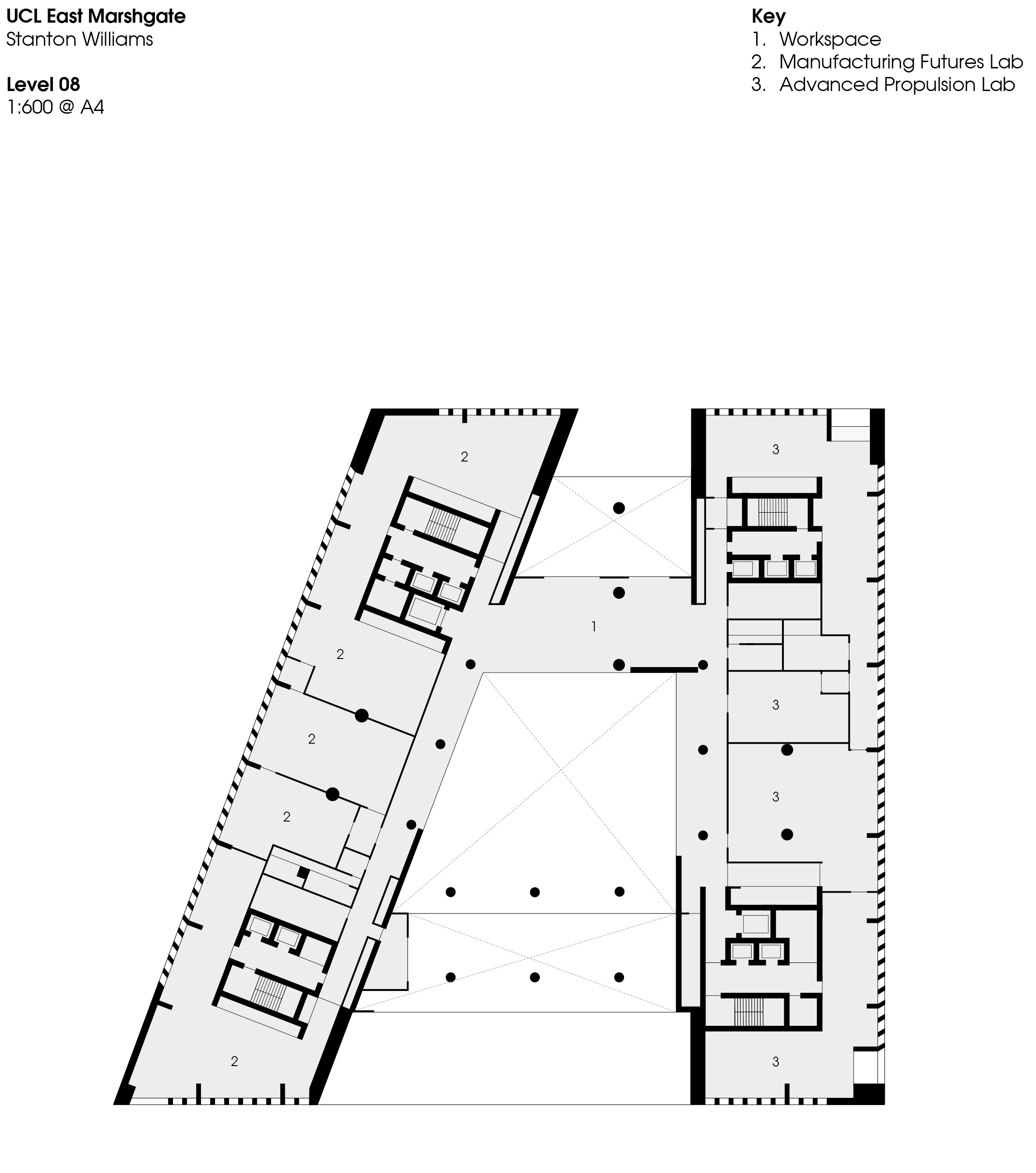
공공 편의 시설은 주로 1층에 자리잡고 있고 학생, 학술 및 연구 공간은 중앙 층에 집중되어 있으며, 고도로 전문화된 실험실과 작업장은 주로 건물의 상층부에 위치해 있다. 이 구성은 Stanton Williams가 RIBA 3단계가 끝날 때까지 했던 사용자 브리핑에서 보여주었으며 이후 단계에서는 공동 인테리어 건축가인 Sheppard Robson이 사용자 브리핑 세션을 수행했다. Sheppard Robson은 Stanton Williams의 디자인을 바탕으로 실험실, 워크샵 및 다양한 작업 공간 설계에 대한 전문적인 경험을 제공하는 것을 포함하여 대학의 요구 사항을 충족하도록 내부 공간을 구성했다.
중앙의 일광 아트리움은 건물의 모든 활동을 수직으로 연결하고 있으며 계단과 에스컬레이터를 포함한 눈에 잘 띄는 경로는 상호 작용을 위한 기회를 만들어준다. 추가 시설로는 제작실, 미디어 스튜디오, 전시 공간, 디자인 스튜디오, 강의실, 도서관, 임원실, 지역 기업 및 지역 사회와의 협력 및 참여를 위한 공간이 있다.
Different floors are clustered into a series of ‘neighbourhoods’, each with its own double-height collaboration space for informal meetings or exhibitions. The lower levels of the building include a network of publicly accessible spaces, with a café, public art displays and activities designed to draw schools, community organisations and the public into the life and heart of the building. Newly landscaped public realm provides an animated and accessible interface with both the adjacent riverside and wider Queen Elizabeth Olympic Park.
While public amenities predominantly populate the ground level, student, academic and research spaces are concentrated on the central floors, and highly specialised laboratories and workshops are primarily situated on the building’s upper levels. This configuration emerged from end-user briefing carried out by Stanton Williams to the end of RIBA Stage 3, with further end-user briefing sessions carried out by joint interior architect Sheppard Robson in the subsequent stages. Sheppard Robson built on Stanton Williams’ design to configure internal spaces to meet the University’s requirements, including lending specialist experience in designing laboratories, workshops and a range of workspaces.
A central, day-lit atrium vertically connects all the building’s activities, and highly visible circulation routes including stairs and escalators create further opportunities for chance encounters and interaction. Additional facilities include fabrication workshops, media studios, exhibition areas, design studios, lecture theatres, a library and an executive suite and spaces for collaboration and engagement with local businesses and communities.


유리 커튼월 식의 외관을 선호하기 보다는 Marshgate는 UCL의 기존 Bloomsbury 캠퍼스가 가지고 있던 견고함과 영속성을 반영하였다. 또한, 매스 구조는 역사적으로 주변 레아 밸리(Lea Valley)에 있던 건물을 참조하고 인근 올림픽 구조물의 선명한 조각 형태를 반영하여 현장의 산업적 과거를 말해준다. 미묘하게 그라데이션된 톤과 질감, 프리캐스트 콘크리트 패널로 구성된 외관은 자연 채광과 환기가 원활하게 이루어 질 수 있도록 아래층과 위층에 콘크리트로된 목재 보드를 사용하였다.
캠퍼스와 문화를 통해 지속 가능성을 구현하려는 UCL의 중요한 사명을 반영하여 stanton Williams의 디자인 접근 방식에 있어 내구성과 에너지 효율성을 우선시하였다. BREEAM 우수 등급 건물은 공간 및 프로그래밍에 있어 매우 유연하고 지속가능한 설계를 하였고, 견고한 외관은 높은 열과 태양광 차단 기능을 한다. 건물 설계에 패시브 설계 전략을 반영하였으며, 전체 전기 건물은 보다 폭넓은 지속 가능한 에너지 전략에 맞춰 2035년까지 탄소 제로 달성을 목표로 하고 있으며 일부는 재생 가능 전기를 이용해 작동된다.
Lifschutz Davidson Sandilands의 최근 완공된 One Pool Street 건물과 함께 학업 공간과 학생 숙소로 구성된 Marshgate는 UCL 200년 역사상 가장 큰 UCL 동부 캠퍼스 마스터플랜의 첫 번째 단계가 완성되었음을 보여준다. 이는 또한 런던 시장이 지원하는 혁신적이고 창의적인 학습을 위한 새로운 문화 공간인 East Bank의 설계에 있어서 중요한 이정표가 될 것이다. 여기에는 UAL의 London College of Fashion과 Sadler's Wells East 극장, BBC 뮤직과 V&A East을 위한 새로운 공연장이 포함될 것이다.
In a departure from the trend towards glassy, light-weight curtain wall facades, Marshgate is built to echo the solidity and permanence of UCL’s original Bloomsbury campus. The massing also speaks to the site’s industrial past, referencing the buildings that historically populated the surrounding Lea Valley, while responding to the bold sculptural forms of the contemporary neighbouring Olympic structures. Comprised of in-situ and precast concrete panels in subtly graded tones and textures, the façade features timber board marked concrete on the lower floors and upper levels sculpted to optimise natural daylight and ventilation.
Reflecting UCL’s overarching mission to embed sustainability through its campus and culture, durability and energy efficiency were at the front of Stanton Williams’ design approach. The BREEAM Excellent-rated building marries a strong and enduring identity with a highly flexible and long-life design approach to space and programming, and the solidity of the facade delivers high thermal performance and solar shading. Passive design strategies informed the overall building design, and the all-electric building is powered in part by renewable electricity, with the aim to reach net zero carbon by 2035 in keeping with the district’s wider sustainable energy strategy.
Together with the recently completed One Pool Street building, designed by Lifschutz Davidson Sandilands, which comprises both academic spaces and student accommodation, Marshgate marks the completion of the first phase of the UCL East campus masterplan, UCL’s biggest expansion in its 200-year history. It also marks a major milestone in the wider creation of East Bank, a new cultural quarter for innovation, creativity and learning supported by the Mayor of London, which will include UAL’s London College of Fashion, a new Sadler’s Wells East theatre and new bases for BBC Music and V&A East.

Marshgate는 또한 Stratford의 SHIFT 혁신 구역 내에 위치해 있다. UCL 및 기타 주요 기관이 주도하는 고도의 협력 이니셔티브로 공공 및 민간이 교육, 지역 사회, 혁신 기업 및 기술 기업을 한데 모아 협업할 수 있는 기회를 찾고 도시를 더욱 안전하고 건강하며 지속가능 하도록 만들어 줄 것이다.
Stanton Williams의 수석 이사인 Gavin Henderson은 이렇게 말했다: “Lee Valley의 근면함과 창의성 그리고 Queen Elizabeth 올림픽 공원의 뛰어난 문화 및 경관을 바탕으로 Marshgate는 흥미와 학습의 협력의 장소가 될 것입니다. 빠르게 진화하는 학문적 실행의 성격을 촉진하고 유연성과 영속성 사이에서 균형을 맞춰주고 새로운 종류의 대학을 만들어 내기 위해 주변 도시와 협력하는 장소가 될 것입니다.”
UCL East Provost Provost Paola Lettieri 교수는 다음과 같이 말했다. “사람과 지구가 직면한 문제는 그 어느 때보다 복잡하고 시급합니다. 저는 UCL 동부 캠퍼스가 우리에게 제공해 줄 확장된 규모와 공간에서 학과와 교수진이 모두 함께 모여 문제를 해결하는 공간이 될 것이고 이에 따라 UCL은 전 세계적으로 혁신과 발견을 가속화할 것이라고 확신합니다. 웅장한 디자인과 특별한 시설을 갖춘 Marshgate는 연구적 협력과 세계 최고의 연구 프로그램의 본거지가 되어 지역적으로나 전 세계적으로 영향을 미칠 것이라고 확신합니다."
Marshgate is also situated within Stratford’s SHIFT innovation district, a highly collaborative initiative headed up by UCL and other major bodies to bring together the public and private sectors with education, local communities, innovative enterprises, and tech companies to find, test and demonstrate interventions to make cities safer, healthier and more sustainable.
Gavin Henderson, Principal Director, Stanton Williams, said: “Drawing on the legacy of Lee Valley's industriousness and creativity, and the exceptional cultural and landscape setting of the Queen Elizabeth Olympic Park, Marshgate will be a place of curiosity, learning and collaboration. A place that engages with the surrounding city to create a new kind of university experience that balances a sense of permanence with a designed in flexibility that will both facilitate and embrace the rapidly evolving nature of academic practice.”
Professor Paola Lettieri, Pro-Provost UCL East, commented: “The issues facing people and the planet have never been more complex or more urgent. I am confident that the increased scale and space that our UCL East campus will give us, where departments and faculties are all coming together to problem-solve under the same roof, will accelerate the breakthroughs and disruptive discoveries that UCL is known for around the world. Marshgate, with its magnificent design and extraordinary facilities, will be home to research collaborations and world-leading programmes of study, that I am confident will impact both locally and globally."


UCL 공공 미술 책임자인 Sam Wilkinson은 다음과 같이 덧붙였다. "UCL은 공사 기간과 완공 과정 모두에서 예술가들을 참여시켜 공간에 활기를 불어넣었고 이를 통해 지역주민이 UCL의 일부가 되게 하기 위해 최선을 다해 왔습니다. Marshgate 건물의 디자인은 UCL과 지역사회에게 UCL 연구와 지역 문제 및 관심 사항을 반영한 공개 행사와 창의적인 프로그램을 만들 수 있는 기회를 제공하게 될 것입니다. "
Mace의 공공 부문 건설 MD인 Terry Spraggett는 다음과 같이 말했다: “이렇게 훌륭한 건물에서 UCL과 광범위한 프로젝트 팀 그리고 공급망 파트너와 협력하게 된 것은 환상적이었습니다. Marshgate는 학생과 학계, 더 넓게는 대중을 포함한 협력을 추구한다는 점에 있어 탁월합니다. 지역 사회와 긴밀히 협력하는 것은 더 넓은 캠퍼스를 통해 장기적인 사회적 가치를 창출하기 위한 전략의 핵심 구성 요소였습니다. Marshgate가 개장하여 훌륭한 아이디어와 혁신이 실현되는 모습을 보고 싶습니다.”
UCL East의 새 캠퍼스는 약 4,000명의 학생과 700명의 교직원의 커뮤니티를 수용할 수 있는 규모이며 대중들을 위한 다양한 활동과 참여 기회를 연중에 제공할 계획이다.
Sam Wilkinson, Head of Public Art, UCL, added: "UCL has been committed to the involvement of artists in this development, both during construction and on completion, to animate our spaces and in doing so welcome our neighbours to become part of our UCL community. The design of the Marshgate building will give UCL and our community partners opportunities to create public events and creative programmes that reflect on UCL research and local issues and interests. We are looking forward to inviting people into our buildings to experience for themselves our spaces and creative programmes."
Terry Spraggett, MD Public Sector Construction, Mace said: “It has been fantastic to work with UCL, the wider project team and our supply chain partners on such an outstanding building. Marshgate is exceptional in its vision-championing collaboration not just between the students and academics but including the wider public. Working closely with the community has been a core component of the delivery strategy to ensure we create long-term social value for the wider campus. I can’t wait to see Marshgate open and all the great ideas and innovations come to life.”
At capacity, UCL East’s new campus will comprise a community of around 4,000 students and 700 staff and offer a range of year-round activities and engagement opportunities for the public.











건축가 Stanton Williams
위치 영국
용도 대학시설
연면적 35000 ft²
준공 2023
조경 디자인 Vogt Landscape
인테리어 디자인 Stanton Williams, Sheppard Robson
구조엔지니어 AKT II
사진작가 Hufton+Crow, Ståle Eriksen
'Architecture Project > Education' 카테고리의 다른 글
| Kakapo Creek Children’s Garden (0) | 2024.05.22 |
|---|---|
| Van Hien University Vietnam (0) | 2024.05.17 |
| Songpa Wirye Kindergarten (0) | 2024.05.07 |
| Pako Street Animal Social Life Campus (0) | 2024.05.06 |
| FOM Pavillon Düsseldorf (0) | 2024.04.19 |
마실와이드 | 등록번호 : 서울, 아03630 | 등록일자 : 2015년 03월 11일 | 마실와이드 | 발행ㆍ편집인 : 김명규 | 청소년보호책임자 : 최지희 | 발행소 : 서울시 마포구 월드컵로8길 45-8 1층 | 발행일자 : 매일



