
프렌치 키치의 주요 디자인 컨셉은 ‘프렌치’와 ‘키치’ 그 이름을 해석하여 개발되었다. 프랑스식 빵집이라는 점을 제외하고서도 소유자의 프렌치 불독에 대한 사랑이 브랜드 정체성으로 나타나, 카페의 경쾌하면서도 우아한 이미지를 전달한다. 이 디자인은 ‘키치'라는 개념과 함께 이 이미지를 강화하고, '크로와상'의 불완전한 형태에서 영감을 받은 건축 요소와 소재를 통해 불완전함을 감상하는 예술 형태인 '키치'를 반영하고 있다.
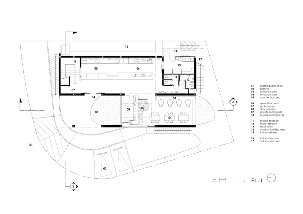
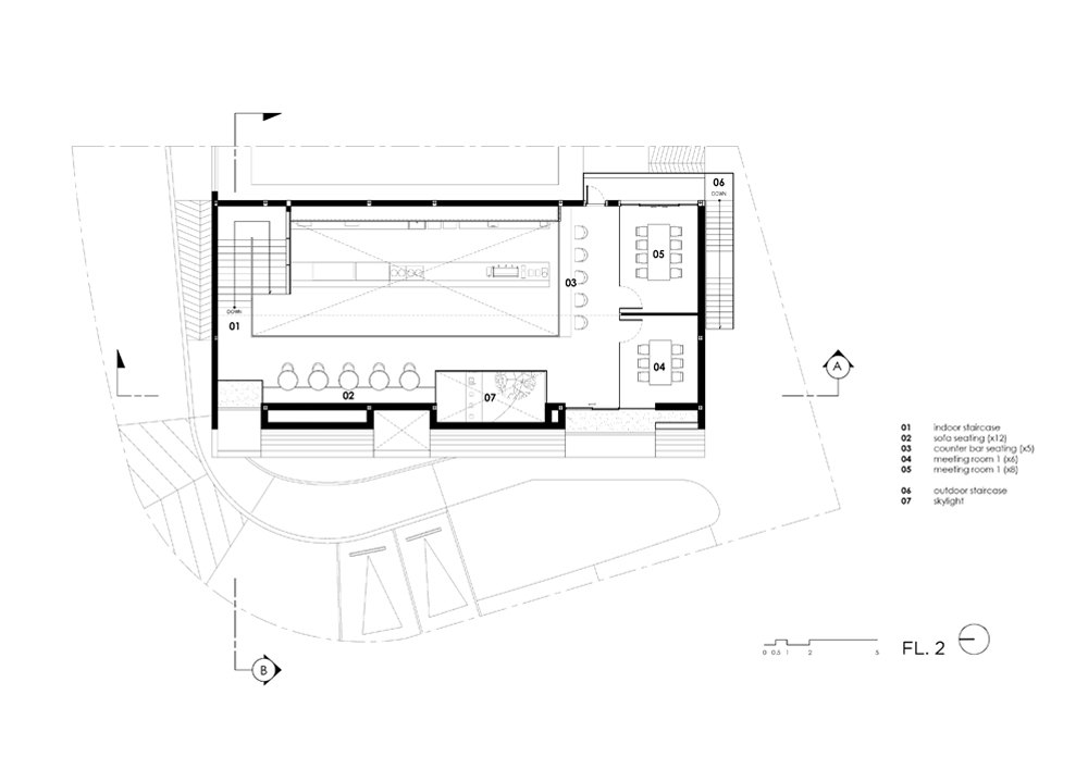
프랑스 대성당이 디자인의 주요 레퍼런스로 채택되어 리듬 있는 아치가 개발되었다. 대칭적인 아치 대신에 다양한 규모의 불완전한 아치가 사용되었다. 디자인은 1층은 불완전한 아치를 그리고 2층은 반전된 불완전한 아치를 조각함으로써 불완전하게 만들어진 완벽한 직사각형 덩어리에서 출발했다. 첫 번째 층에서 이러한 아치들은 그들의 고풍스러우면서도 현대적인 외관으로 방문객을 맞이하며, 길을 따라 그림자를 만들어내고, 아치 모양의 창을 통해 빛이 통과할 때 대성당 유리와 유사하게 바닥에 반사되어 대성당의 유리 같은 모습이다. 과도하게 큰 불완전한 아치는 또한 계산대에서 2층까지 이어지는 연속적인 공간을 만들어내며, 계산대의 전체적인 기능을 강조하여 양층에서 볼 수 있게 한다. 두번째 층에서 역전된 곡선이 공간을 조각하여, 햇빛이 들어오게 하면서 동시에 그림자 장치와 같은 역할을 한다.
질감 있는 콘크리트를 사용함으로써, 벽이 완전히 매끄럽지 않지만 그 자체로 아름다울 수 있는 재료의 진정성을 반영하여 불완전함의 완벽함이라는 개념을 강화한다. 또한 콘크리트를 주요 소재로 사용함으로써 가구, 장식품 및 LED 조명을 두드러지게 만들어 불완전한 아치 곡선을 강조하고 터널 공간 안에서 강한 기억에 남는 카페의 이미지를 창출한다.















건축가 TOUCH Architect
위치 태국, 나콘라차시마
연면적 360㎡
준공 2023
프로젝트건축가 Setthakarn Yangderm / Parpis Leelaniramol
디자인팀 Pitchaya Tiyapitsanupaisal / Tanita Panjawongroj / Thanunya Deeprasittikul / Matucha Kanpai
인테리어디자인 TOUCH Architect
사진작가 Metipat Prommomate x Anan Naruphantawa
'Interior Project > Cafe&Restaurant' 카테고리의 다른 글
| DABANG (0) | 2024.03.25 |
|---|---|
| Two ALGEBRAIST COFFEE Shops in Changsha (0) | 2024.03.08 |
| Art Forest (0) | 2024.03.05 |
| SAWERDO (0) | 2024.02.08 |
| Ernest (0) | 2024.01.18 |
마실와이드 | 등록번호 : 서울, 아03630 | 등록일자 : 2015년 03월 11일 | 마실와이드 | 발행ㆍ편집인 : 김명규 | 청소년보호책임자 : 최지희 | 발행소 : 서울시 마포구 월드컵로8길 45-8 1층 | 발행일자 : 매일



