
코로나 사태로 인해 지난 2년간 대다수의 사람은 불신이 생겼다. 사람들로 둘러싸인 테이블에서의 모임이 사라질 수도 있다는 두려움을 가지고 Sawerdo라는 프로젝트를 시작하게 되었다. 질병의 전염이 이웃과 함께하는데 장애물이 되지 않을 것이라는 믿음과 희망으로 창립자는 위험을 감수하였다. 그 대신 반대의 시나리오에 베팅했다. 가까이 있는 사람은 질병의 매개체로 능동적인 대화와 교류를 위해서는 두려움을 뛰어넘어야 한다.
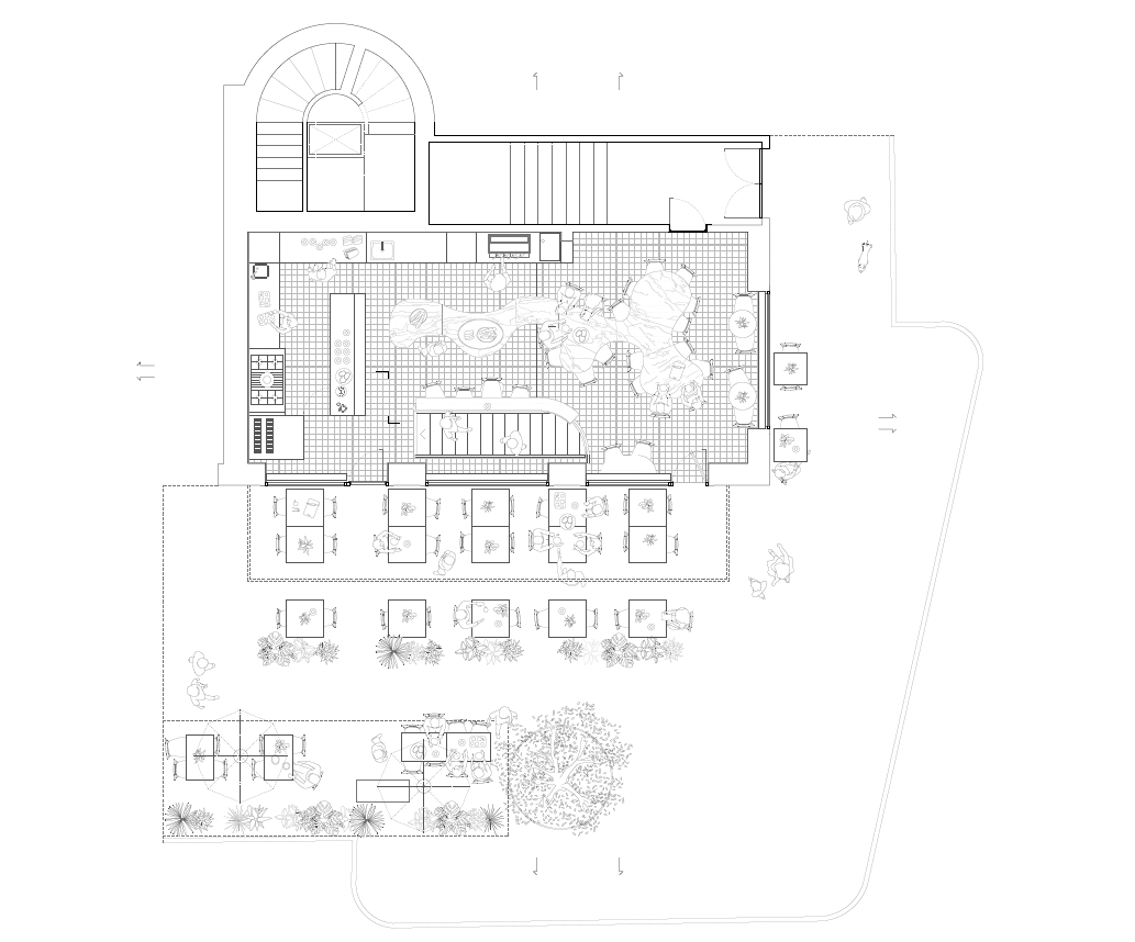
이 프로젝트에서는 우리 삶의 "순간"을 공간화하고 구성했다. 사람들을 비롯하여 모든 것이 물질적이고 무대 같은 테이블 주변을 둘러싼다. 대리석이나 강철 스피드 랙과 같은 전통적인 제빵 도구에 대한 기존의 틀에서 벗어나 새로운 발상은 매우 간단 해졌다. 다양한 구성이 가능한 호스팅 테이블이다. 반은 가정식이고 반은 전문적인 테이블 정식이 어우러져 베이커리에서 식사하는 것이라고 할 수 있다.
제프 월(Jeff Wal)의 이미지 드레싱 폴트리(Dressing Poultry(2007))는 요리를 준비하는 그 과정의 즐거운 순간을 기억하며 밴쿠버 인근 농장에서 촬영되었다. Sawerdo의 프로젝트와 정반대의 이미지를 보여주지만 둘은 요리하고, 먹고, 나누는 행위도 결국은 하나의 삶이라는 동일한 의도를 드러낸다. 제프 월(Jeff Wal)의 라이트박스와 마찬가지로 Sawerdo의 매우 아름다운 공간에 머무를 수 있는 기회를 만들어 주었다. 이 프로젝트에서는 우리 모두가 생물학적 존재라는 것과 전염의 매개체라고 이해한다면 계속해서 삶의 장면들이 지나가고 또 생겨나는 라이트박스 속에 살고 있는 것과 같다는 것을 보여준다.

Two years of covid have pushed everyone to a certain level of distrust. We started the project of the Sawerdo with the fear that putting people around a table was an endangered gathering format. The risk was taken, a sort of hopeful leap of faith by the founders, believing that the jumping microbes of a too-close neighbour would never be an obstacle to being together. Instead, a bet was taken on the opposite scenario: the one by which proximity is a simple vector towards spontaneous conversation and exchange well beyond the fear of a viral other.
Our project spatialised and constructed this “moment” of our lives and put everything and everyone around a staged and very material table. Beyond the obvious references to traditional bread-making materials like marble and steel speed racks, the idea became quite simple: a hosting table allowing a variety of configurations. Somehow, the set is a half domestic, half professional one, between sharing “table d’hôtes” and dining in the interior of a bakery.
Jeff Wall's image Dressing Poultry (2007) was shot on a farm near Vancouver, celebrating a moment of fun while working – preparing what will become food. With an aesthetic at the antipodes of Sawerdo's project, this image has yet the same intention: to bring the act of cooking, nourishing, and sharing into a unifying whole of the living. Like Jeff Wall's lightboxes, the Sawerdo had the chance to be in a very beautiful space that the project reveals as much as possible: an inhabited lightbox where scenes of life occur and will keep on happening as long as we understand that we are all biological beings or “viral others”.

















건축가 BUREAU
위치 Geneva, Switzerland (CH)
용도 Bakery & coffee
면적 200㎡
준공 2021. 11.
컨셉디자인 Daniel Zamarbide, Carine Pimenta, Jolan Haidinger
프로젝트실행 Jolan Haidinger (project manager), Marco Pallaoro, Driss Veyry
시공감리 Daniel Zamarbide, Jolan Haidinger
그래픽 디자인&브랜딩 및 표지판 디자인 Basile Jeandin
사진작가 Dylan Perrenoud
'Interior Project > Cafe&Restaurant' 카테고리의 다른 글
| French Kitsch III (0) | 2024.03.06 |
|---|---|
| Art Forest (0) | 2024.03.05 |
| Ernest (0) | 2024.01.18 |
| AGE House (0) | 2024.01.17 |
| Zhongmeishan Self-service BBQ PLUS (0) | 2024.01.08 |
마실와이드 | 등록번호 : 서울, 아03630 | 등록일자 : 2015년 03월 11일 | 마실와이드 | 발행ㆍ편집인 : 김명규 | 청소년보호책임자 : 최지희 | 발행소 : 서울시 마포구 월드컵로8길 45-8 1층 | 발행일자 : 매일



