
르 보스케는 잡목이 우거진 숲으로서 척박한 환경에도 불구하고 고난과 역경을 극복하고 스스로 잘 가꾸어져 있는 것에 그 의미가 있다. 다양하고 복잡한 도시라는 야생에 적절히 대응, 적응, 생존에 이르게 된 유기체로서 골목 풍경에 녹아든 주거지 내 오피스 건축물의 미래를 향한다. 건축주는 성형이나 화장술 등 일시적 효과에 의존하지 않고 지속적인 관리를 통한 아름다움을 추구하는 뷰티 & 에스테틱 전문 기업이다. 기업의 목적에 부합하는 공간을 단순히 이질적 형태나 색감을 표현하여 돋보이게 하는 방식은 배제해야 했고, 건축주의 니즈와 사이트 컨디션, 건축법, 인접 대지와의 민원 등 각종 요구 및 제약 사항을 반영하여 가장 조화롭고 자연스러운, 실리적인 구조를 연구해야만 했다.
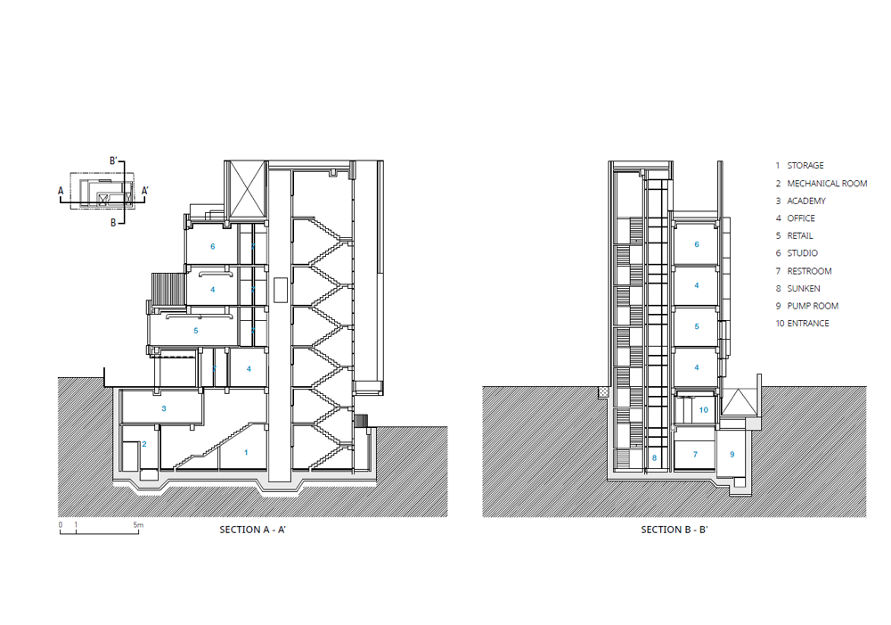
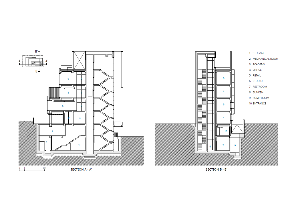
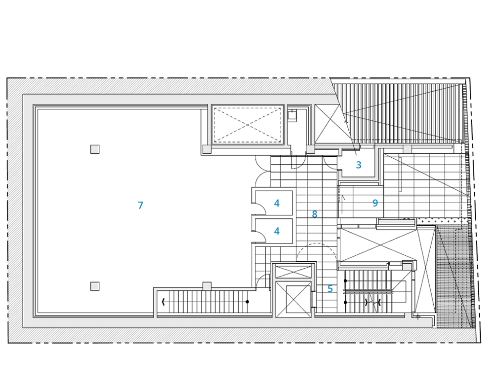
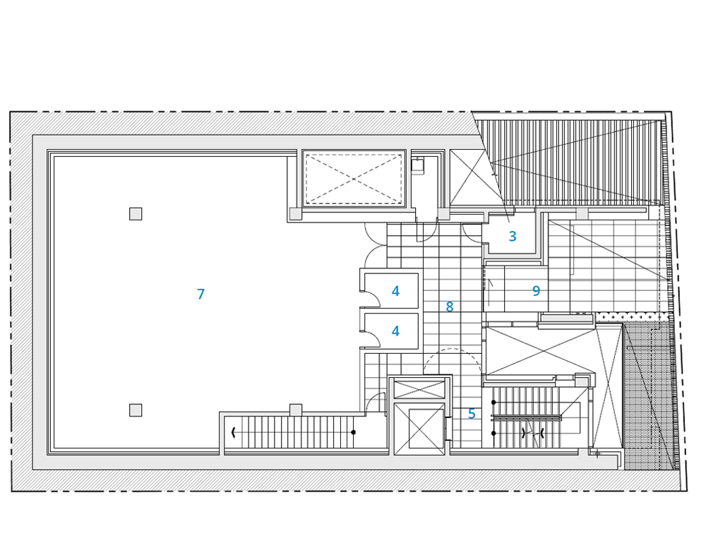
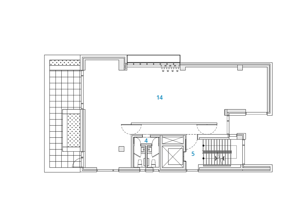
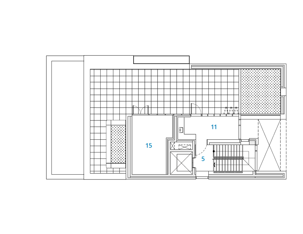
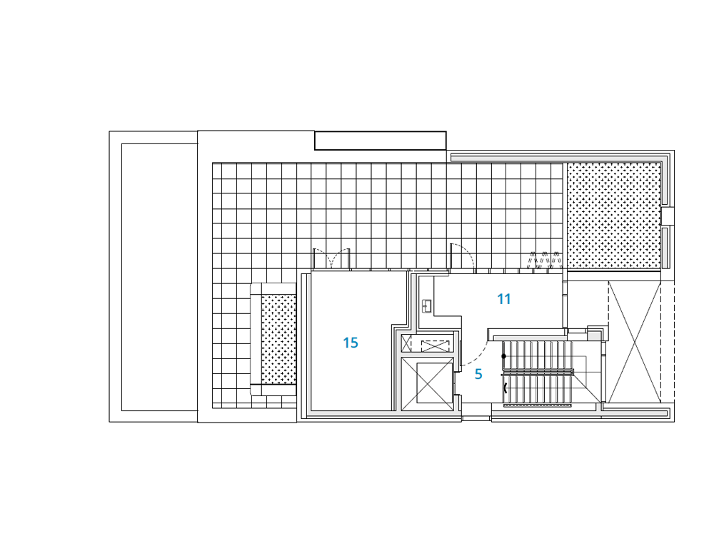
전면의 떠 있는 벽은 거주지와 오피스 간 프라이버시 보호와 함께 적정하게 남향의 빛을 차단하여 눈부심을 감쇄시켜주는 역할도 함께 한다. 계단에서도 느낄 수 있는 수직으로 이어진 긴 보이드 공간과 개폐된 틈은 이용자의 시점 변화에 따라 다양한 시선을 유도하여 입체적 공간감을 선사하여 보다 넓고 풍부한 공간이라는 착각을 불러일으킨다. 그렇게 끝까지 다다르면 열린 공간의 옥상 정원에 도달하게 되고, 마침내 긴 협곡을 지나 탁 트인 광야에 도달한 것 같은 극적인 개방감을 끌어올린다. 3 그루의 나무는 항상 관심을 주며 잘 가꾸고 돌봐주어야 하는 대상이자, 3개의 조직으로 구분되는 기업을 의미한다. 사옥을 찾아오는 방문객이나 행인들에게는 생경한 시퀀스로 눈길을 붙잡아 두고, 어떠한 조형물로 대체할 수 없는 기업의 특별한 상징물로 건축물이 느껴질 수 있도록 했다.

Le Bosquet is a dense forest with trees of all sorts, and its significance lies in the fact that it has overcome hardship and adversity to become self-sustaining despite its harsh environment. As an organism that has learned to respond, adapt, and survive in the diverse and complex wilderness of the city, it is oriented to the future of office buildings in residential areas that are integrated into the alley landscape. The client is a beauty and aesthetics company that pursues beauty through continuous care rather than relying on temporary effects such as plastic surgery or makeup. In order to make the space that meets the company’s purpose stand out by simply expressing heterogeneous shapes or colors, we had to research the most harmonious, natural, and practical structure that reflects the needs and constraints of the architect, site conditions, building codes, and complaints from neighbors. We excluded the method of simply expressing heterogeneous shapes or colors to make a space that suits the company's purpose stand out, and studied natural, practical structures reflecting various requirements and constraints such as the client's needs, site conditions, building codes, and civil complaints from adjacent sites in the most harmonious and natural way.
The floating wall in the front protects privacy between the residence and the office, and also serves to reduce glare by appropriately blocking light from the south. The long vertical voids and openings in the staircase create a three-dimensional sense of space by inviting different perspectives from different viewpoints, creating the illusion of a wider and richer space. When you reach the end, you arrive at the open roof garden, creating a dramatic sense of openness as if you have passed through a long canyon and finally reached an open wilderness. The three trees represent objects that need to be nurtured and cared for, as well as a company that is divided into three organizations. The unfamiliar sequence is meant to catch the eye of visitors and passers-by, and to make the building feel like a special symbol of the company that cannot be replaced by any sculpture.














건축가 CIID
위치 서울시 강남구 논현동 265-24
용도 근린생활시설
대지면적 430.4㎡
건축면적 226.27㎡
연면적 1,136.15㎡
규모 지하 2층, 지상 4층
건폐율 52.57%
용적률 149.44%
설계기간 2020. 10. – 2021. 2.
시공기간 2021. 3. – 2022. 3.
준공 2022. 4.
대표건축가 주익현
프로젝트건축가 주익현, 송정은
구조엔지니어 한길구조엔지니어링
기계엔지니어 수양엔지니어링
전기엔지니어 수양엔지니어링
시공 다산엔지니어링종합건설
발주자 (주) 끌리메
사진작가 노경
해당 프로젝트는 건축문화 2024년 1월호(Vol. 512)에 게재되었습니다.
The project was published in the January, 2024 recent projects of the magazine(Vol. 512).
January 2024 : vol. 512
Contents : RECORDS ‘Rural Reconstruction and Regeneration, Perspectives of Land Use’, The 3rd Urban & Architecture and Urbanism Forum 2023 ‘농촌공간 재구조화 및 재생, 토지 이용에서 바라보다’, 2023 제3차 AURI 건축도시포
anc.masilwide.com
'Architecture Project > Commercial' 카테고리의 다른 글
| mimmim (0) | 2024.03.06 |
|---|---|
| TRIVIUM (0) | 2024.03.05 |
| BREEZE ON CAFE (0) | 2024.02.21 |
| ENOWA YUFUIN (0) | 2024.02.20 |
| The Coolest Hotel (0) | 2024.02.14 |
마실와이드 | 등록번호 : 서울, 아03630 | 등록일자 : 2015년 03월 11일 | 마실와이드 | 발행ㆍ편집인 : 김명규 | 청소년보호책임자 : 최지희 | 발행소 : 서울시 마포구 월드컵로8길 45-8 1층 | 발행일자 : 매일



