
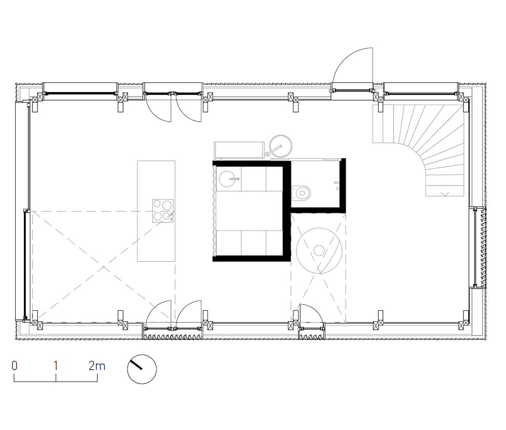
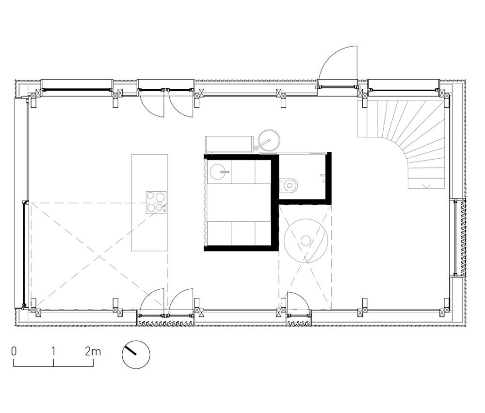
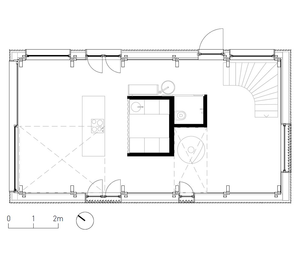
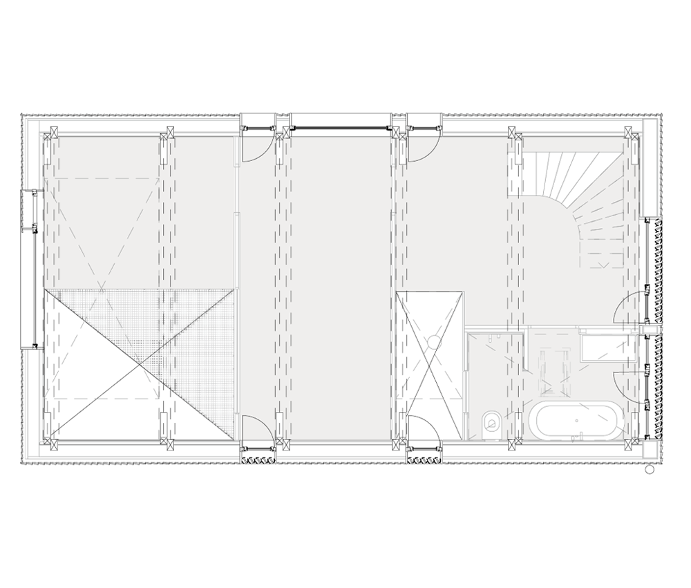
식스 프레임은 1850년대에 지어진 헛간을 주택으로 리노베이션한 건물이다. 건축물이 살아온 시간의 흔적을 보존하는 것이 건축가의 목표였다. 식스 프레임은 건축물이 지어질 당시에는 새로운 기술이었던, 두께가 가는 구조 부재를 사용해 지어졌다. 건축가는 리노베이션 공사가 진행되는 동안 기존의 오래된 구조를 지탱하기 위해 여섯 개의 가문비나무 프레임으로 건축물을 보강했다. 공사가 끝난 뒤에도 이 프레임은 공간을 구분하는 요소로 남겨 두었다. 또한 수직과 수평 패널을 사용해 건축물을 추가로 보강하고, 여기에 다양한 개구부를 추가했다.
완성된 건축물은 지하에서부터 최상층까지 하나로 연결된 공간이다. 협소한 부지에 지어지는 미국의 주택 양식 중 하나인 ‘아메리칸 샷건 하우스(American shotgun house)’는 일직선으로 거실, 침실 및 주방이 연달아 나열된 집으로, 현관에서 뒷문까지 일직선으로 총알이 날아갈 수 있다는 아이디어에서 유래되었다. 건축가는 식스 프레임을 수직으로 연결된 아메리칸 샷건 하우스에 비유했다. 외부 창문이 없는 공간은 내부 창문과 그물망을 사용해 내부로 열려 있다. 지하의 작업실에서는 천창을 통해 상부 목조 주택 구조를 바라볼 수 있으며, 지상층과는 개방형 계단을 통해 연결된다.
매스나 지붕 모양은 기존의 헛간 형태에서 크게 벗어나지 않았지만, 외벽에는 일본의 야키스기(Yakisugi) 기법을 적용한 전나무 패널을 새로 설치했다. 나무판자의 패널을 고열로 가공한 이 기법은 내구성을 크게 향상하므로, 이 집에서 몇 세대가 사는 동안에도 끄떡없을 것이다. 사생활 보호와 채광 조절을 위해 외부로 면하는 창문이 있는 건축물의 두 면에는 빛을 조절할 수 있도록 목재 창살로 만든 덧문을 계획했다.




















건축가 LUKAS LENHERR ARCHITEKTUR GmbH
위치 스위스, 취리히, 메네도르프
용도 주거시설
대지면적 664㎡
연면적 149㎡
설계기간 2020. 5. - 2021. 5.
건설기간 2021. 10. - 2022. 11.
준공 2022
구조엔지니어 Weber Ingenieurbau Gmbh
목구조엔지니어 Besmer Holzingenieure GmbH
시공 Brunner + Strub Partner AG, Keller Holzbau AG
사진작가 Florian Amoser
해당 프로젝트는 건축문화 2023년 11월호(Vol. 510)에 게재되었습니다.
The project was published in the November, 2023 recent projects of the magazine(Vol. 510).
November 2023 : vol. 510
Contents : Records ‘Drawing the Future of East Asian Traditional Architecture’, 2023 Hanok Policy Symposium ‘동아시아 전통건축의 미래를 그리다’, 2023년 한옥정책 심포지엄 The ‘Diplomatic Venue’ Returns after 100 Years, De
anc.masilwide.com
'Architecture Project > Single Family' 카테고리의 다른 글
| House with an Eye (0) | 2024.02.06 |
|---|---|
| Places in Karuizawa (0) | 2024.02.05 |
| House in Kamakura (0) | 2024.01.31 |
| Casa CT (0) | 2024.01.30 |
| IN THE AEE (0) | 2024.01.30 |
마실와이드 | 등록번호 : 서울, 아03630 | 등록일자 : 2015년 03월 11일 | 마실와이드 | 발행ㆍ편집인 : 김명규 | 청소년보호책임자 : 최지희 | 발행소 : 서울시 마포구 월드컵로8길 45-8 1층 | 발행일자 : 매일



