
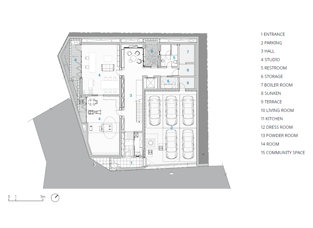
대상지는 염곡동 주택 단지의 경사진 길이 두 개로 갈라지는 모서리에 위치한다. 올라가는 길에 서서 올려다 보면 대지의 모서리 부분이 보인다. 건축가는 그곳에서 날개가 펼쳐지며 날아오르는 것을 떠올렸고, 그것이 디자인의 시작이었다. 지하층은 검은색의 기단부로 만들어져 무거움을 더했고, 지상층은 2층 규모의 건물 매스를 감싸는 하얀 날개 형태의 외피를 가지고 있다. 기단부를 이루는 지하층의 외벽은 마치 담장처럼 보인다. 스튜디오에 면한 선큰에는 담장 위로 대나무가 살짝 보이게 설치되어 있다. 그 전면의 모서리에는 출입문을 설치하여 현관이 외부에서 직접 보이지 않도록 했다. 거주자는 진입 마당을 거쳐 집 내부로 향하는 현관문을 만난다.
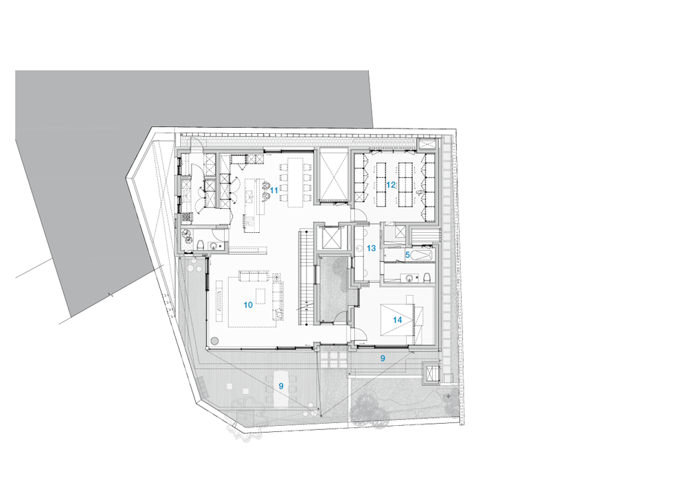
1층 모서리에서 세로로 길게 만들어진 담장에서는 길들이 내려다보인다. 안에서 밖을 내다보는 슬릿은 안쪽이 좁고 바깥이 넓어 사선으로 틈이 난 담장 안에서 외부를 바라볼 수 있다. 그 자리에는 배롱나무 한 그루가 식재되어 있어 이 주택의 스토리에 상징성을 부여한다.
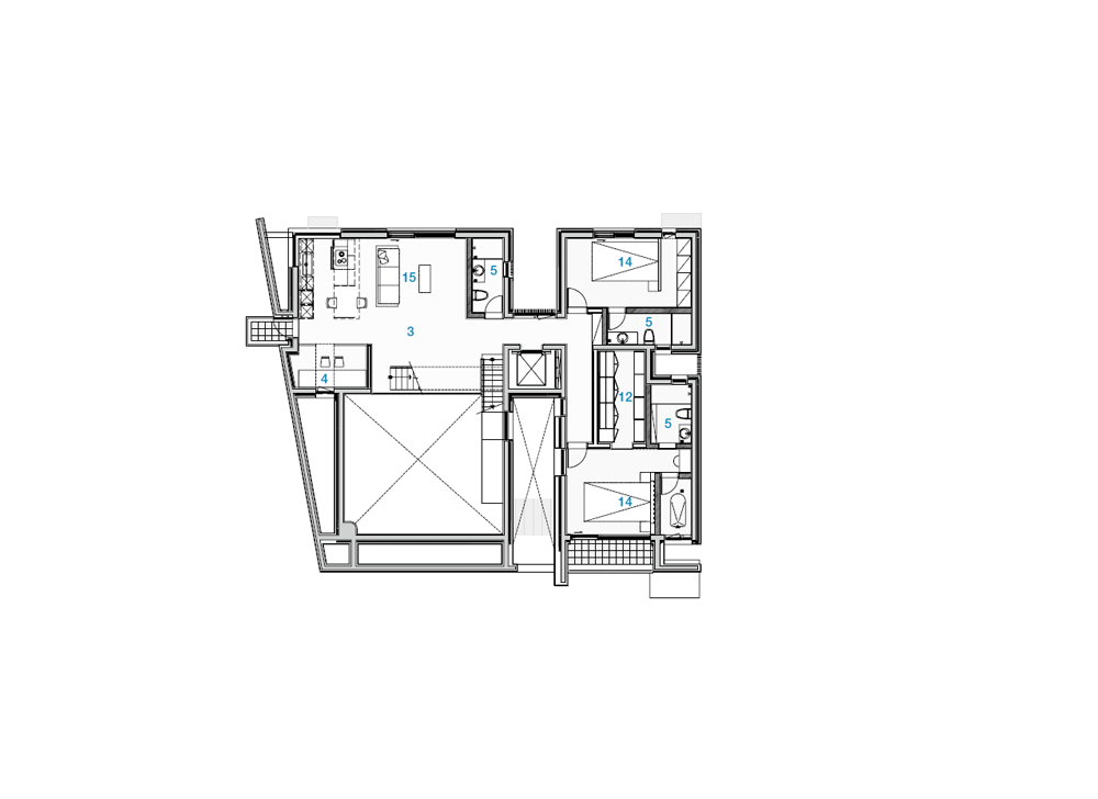
건축가는 여러 개의 선큰과 중정 공간을 만들며 정방형의 대지를 꽉 채웠다. 내부는 두 개의 매스가 엘리베이터와 복도로 연결되며, 서측의 공용 공간과 동측의 프라이빗한 공간으로 나뉜다. 그 사이의 중정은 두 공간을 이격시키고 내부 정원으로 이어지는 역할을 한다. 주택의 가장 프라이빗한 욕실이나 화장실 등의 공간은 외벽을 안쪽으로 말린 공간과 면하여 창을 내고 바깥에서는 보이지 않는 루버를 설치했다. 이와 반대로 공용 공간은 외부 도로를 향해 돌출된 발코니를 설치하여, 가족들이 집에서도 외부 공간을 충분히 느낄 수 있도록 의도했다.















건축가 한기엔지니어링건축사사무소 + 엠케이종합건설(주)
위치 서울특별시 서초구 염곡동
용도 단독주택
대지면적 409.00㎡
건축면적 202.01㎡
연면적 646.27㎡
규모 지하 1층, 지상 2층
건폐율 49.39%
용적률 84.75%
준공 2022. 1.
조경 더 가든
토목 유로엔지니어링
인테리어 엠디디자인(주)
구조엔지니어 한주
기계엔지니어 기성이앤씨
소방엔지니어 기성이앤씨
전기통신엔지니어 우림전기
시공 엠케이종합건설(주)
사진작가 김창묵
해당 프로젝트는 건축문화 2023년 11월호(Vol. 510)에 게재되었습니다.
The project was published in the November, 2023 recent projects of the magazine(Vol. 510).
November 2023 : vol. 510
Contents : Records ‘Drawing the Future of East Asian Traditional Architecture’, 2023 Hanok Policy Symposium ‘동아시아 전통건축의 미래를 그리다’, 2023년 한옥정책 심포지엄 The ‘Diplomatic Venue’ Returns after 100 Years, De
anc.masilwide.com
'Architecture Project > Single Family' 카테고리의 다른 글
| House in Kamakura (0) | 2024.01.31 |
|---|---|
| Casa CT (0) | 2024.01.30 |
| House in Torreira (0) | 2024.01.29 |
| House in Mabi Ⅲ (0) | 2024.01.16 |
| SHIFT HOUSE (0) | 2024.01.15 |
마실와이드 | 등록번호 : 서울, 아03630 | 등록일자 : 2015년 03월 11일 | 마실와이드 | 발행ㆍ편집인 : 김명규 | 청소년보호책임자 : 최지희 | 발행소 : 서울시 마포구 월드컵로8길 45-8 1층 | 발행일자 : 매일



