
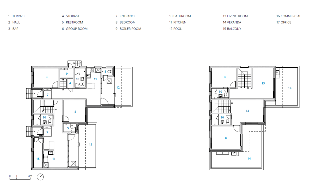
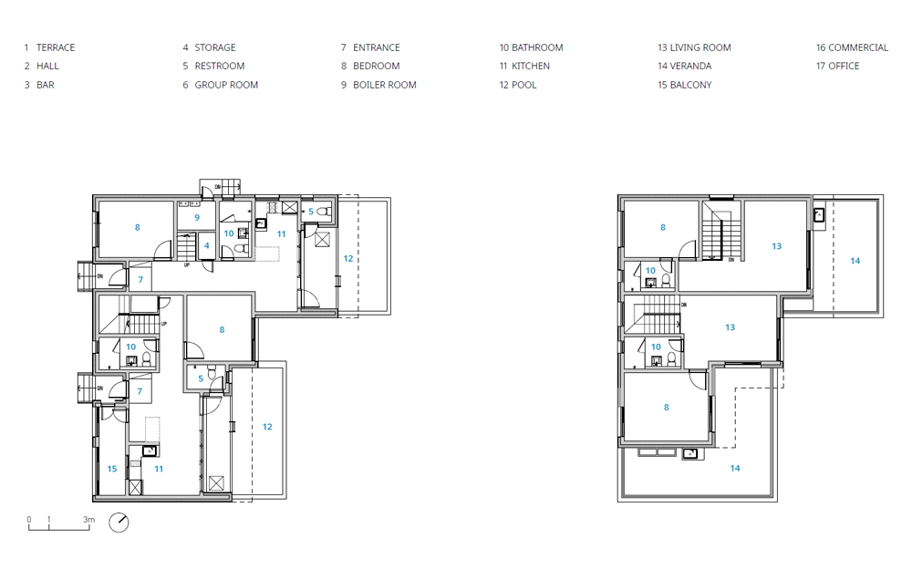
이에스씨 프레임은 북동쪽으로 후포항, 남서쪽으로는 마니산 끝자락이 조망되는 강화도 해안도에 접한 사이트에 계획된 베이커리 카페와 펜션 프로젝트다. 건축주는 서해임에도 불구하고 온종일 바닷물이 빠지지 않고, 새우잡이 철에는 그물을 펼친 어선들이 마치 하얀 요트들이 떠 있는 것 같은 풍경을 보고 경치를 선사할 수 있는 공간을 요구했다.
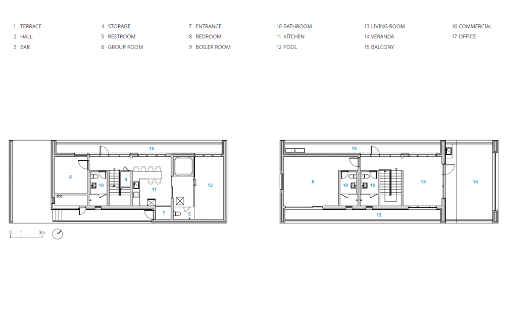
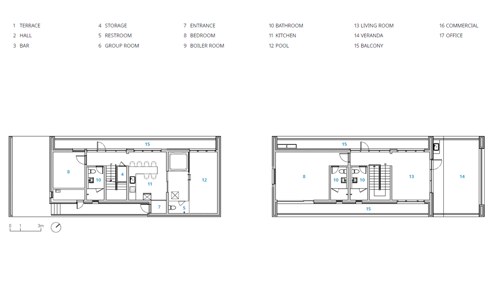
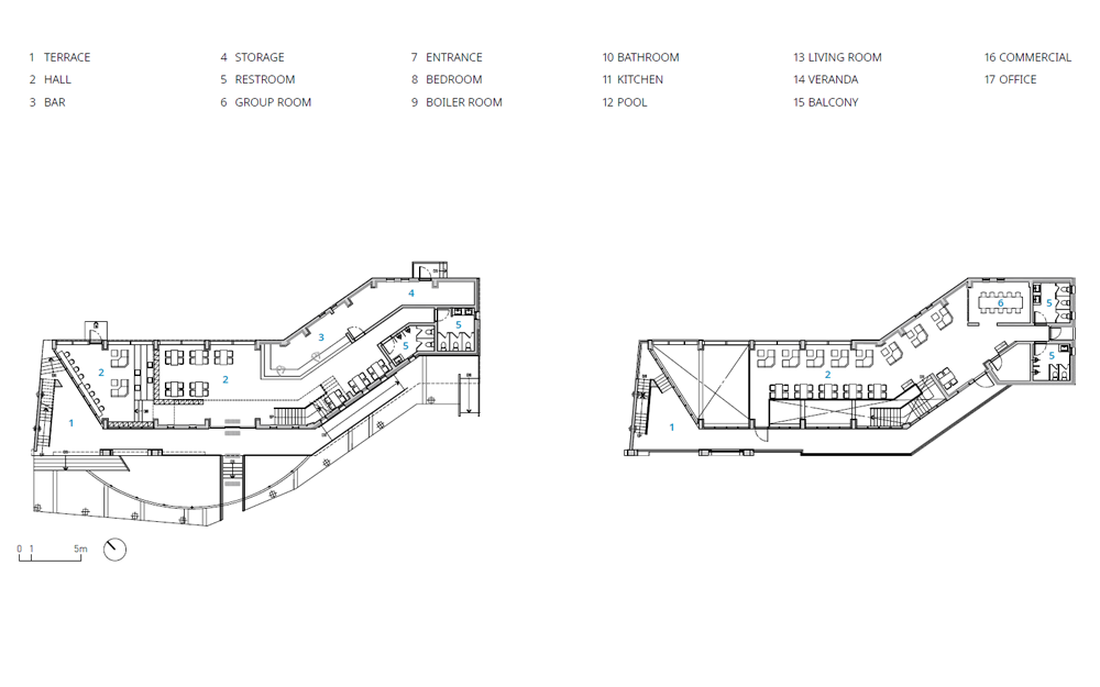
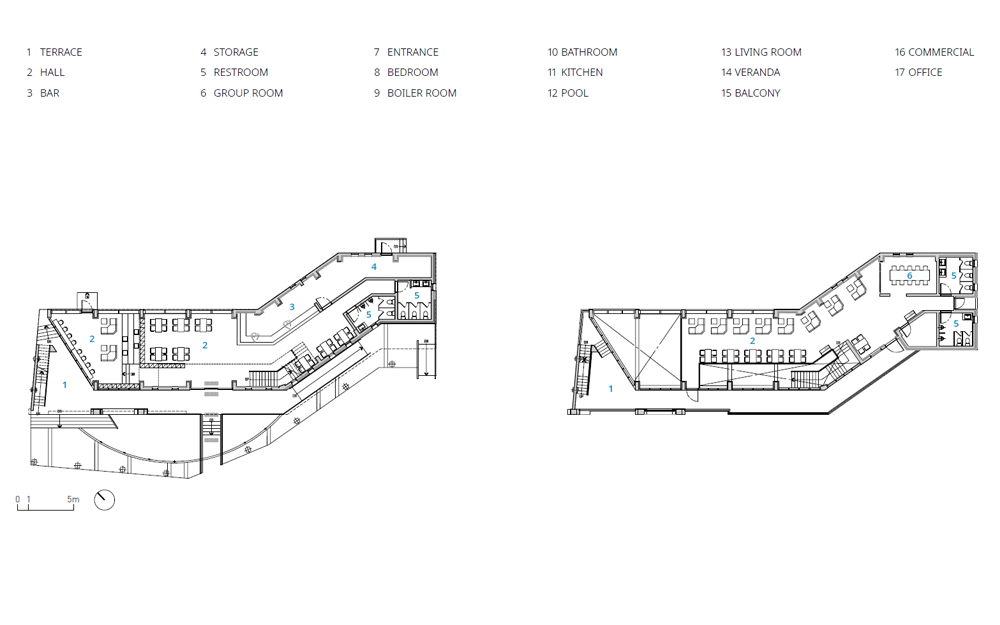
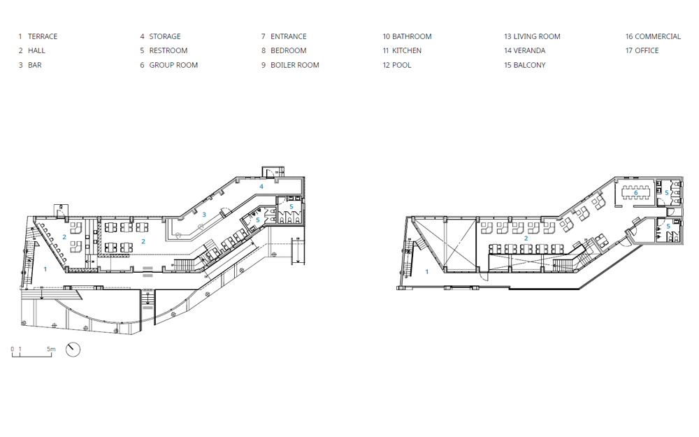
풍경이 핵심인 대지에 바닥, 벽, 천장으로 이루어진 육면체들을 쌓되, 계절과 시간마다 바뀌게 될 산, 바다, 그리고 들을 실내로 끌어들일 액자 틀을 요소마다 두었다. 건물과 건물 사이에는 꽃, 나무, 조각물 그리고 다양한 모양의 하늘을 담았다. 시시각각 연출될 자연의 그림(Figure)이 돋보여야 하기에 벽(Ground)들은 안팎 모두 하얀색으로 틀어막았다. 그리고 실내 곳곳에 건축주 부부가 키우고 있는 다육식물을 전시할 틀(Frame)도 조성했다. 화분 하나하나가 마치 산과 들을 축소한 듯하니, 이 또한 고객에게 보내는 건축주의 선물이다. ‘Everyday Special Coffee’라는 의미를 담은 건축물은 폐쇄 시각장치(VISTA)들이 이곳을 찾는 이들의 도시적 강퍅함을 자연의 심성으로 초기화(ESC)하는 도구가 되길 바라는 소망을 담았다. 설계 당시에는 의도하지 않았으나 그라운드 레벨에서는 보이지 않던 소원바위가 모든 펜션의 거실 창마다 슬그머니 그림(Figure)으로 다가와 있었다. 이곳을 찾은 사람들이 소원바위를 보며, 마음이 고요해지는 휴식을 보내길 바란다.

ESC Frame is a bakery cafe and pension[1] project planned on a site adjacent to the coastal island of Ganghwa Island, overlooking Hupo-hang Port to the northeast and the tip of Manisan Mountain to the southwest. Seeing that despite being on the West Coast, the water does not recede throughout the day, and during shrimping season, fishing boats with their nets spread out look like white yachts floating by, the client requested a space that would provide a scenic view of the sea.
With the landscape as the protagonist, hexahedrons made up of the floor, walls, and ceiling were stacked on the site, and a frame was installed for each element to bring the mountains, sea, and fields that change with the seasons and time of day into the interior. Flowers, trees, sculptures, and various shapes of the sky are encased in between the buildings. The walls (ground) were painted white inside and out so that the ever-changing natural figures would stand out, and frames were created throughout the interior to display the couple’s succulents. Each potted plant looks like a miniaturized version of mountains and fields, which is also a gift from the client to visitors. The building, whose name stands for “Everyday Special Coffee,” reflects the hope that closed visual devices (VISTA) will become a tool to reset the urban rigidity of those who visit this place to the heart of nature (ESC). Although it was not intended at the time of design, the wishing rock, which was not visible from the ground level, quietly appeared as a figure in all the living room windows of the building. We hope that people who visit this place will relax and find peace of mind while looking at the wishing rock.
[1] A Korean version of a Bed and Breakfast.













건축가 박효철 (신한대학교, 이로운건축사사무소)
위치 인천광역시 강화군 화도면 내리
용도 카페, 펜션
대지면적 카페_1,298㎡ / 펜션 A동_388㎡ / 펜션 B,C동_532㎡ / 숙소_416㎡
건축면적 카페_329.65㎡ / 펜션 A동 150.22㎡ / 펜션 B,C동_130.31㎡ / 숙소_113.71㎡
연면적 카페_594.89㎡ / 펜션 A동_183.15㎡ / 펜션 B,C동_197.62㎡ / 숙소_198.05㎡
규모 지상 2층
건폐율 카페_25.49% / 펜션 A동_38.72% / 펜션 B,C동_24.49% / 숙소_27.33%
용적율 카페_46.01% / 펜션 A동_47.2% / 펜션 B,C동_37.15% / 숙소_47.61%
설계기간 2021. 9. - 2022. 5.
시공기간 2022. 10. - 2023. 4.
준공 2023. 5.
대표건축가 박효철
프로젝트건축가 안성일
디자인팀 이로운건축사사무소
사진작가 박영채
해당 프로젝트는 건축문화 2023년 8월호(Vol. 507)에 게재되었습니다.
The project was published in the August, 2023 recent projects of the magazine(Vol. 507).
August 2023 : vol. 507
Contents : Records Four Architects from Three Teams Selected for ‘2023 Korea Young Architects Award’ 2023 젊은 건축가상에 선정된 4명의 건축가들 : EXHIBITION / COMPETITION / BOOKS : SKETCH Mistakes, New Beginnings / Diego Alejandro Oquen
anc.masilwide.com
'Architecture Project > Single Family' 카테고리의 다른 글
| C4L (0) | 2023.12.06 |
|---|---|
| RUDE HOUSE (0) | 2023.12.04 |
| F-House (0) | 2023.11.13 |
| House in Yokohama (0) | 2023.10.25 |
| Sky Vessel House (0) | 2023.10.24 |
마실와이드 | 등록번호 : 서울, 아03630 | 등록일자 : 2015년 03월 11일 | 마실와이드 | 발행ㆍ편집인 : 김명규 | 청소년보호책임자 : 최지희 | 발행소 : 서울시 마포구 월드컵로8길 45-8 1층 | 발행일자 : 매일



