
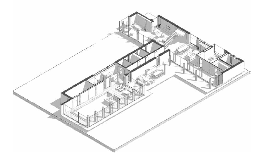
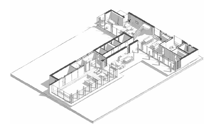
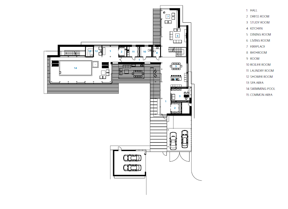
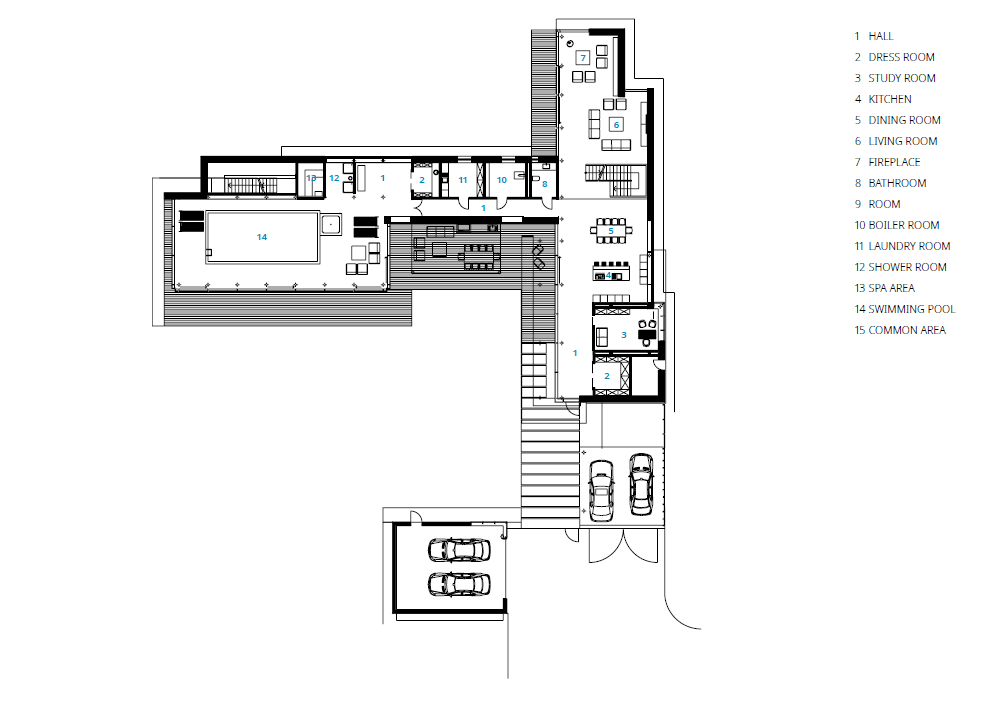
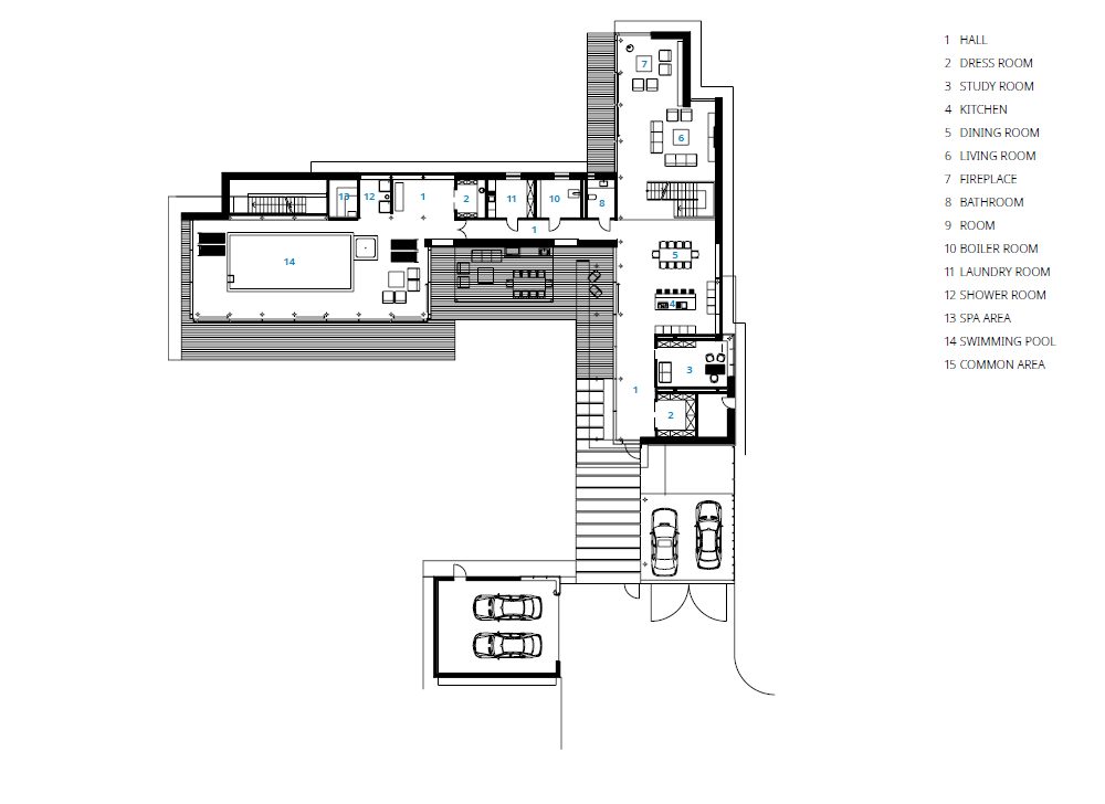
에프 하우스는 4인 가족을 위한 주택 건물로, 주변의 연못과 숲을 포함한 자연환경을 즐길 수 있는 사적인 분위기를 조성한다. U자형의 건물은 외부를 향해 반 밀폐된 안마당을 형성하며, 전체 건물에 주요하게 사용된 유리는 숲의 경치를 담아내며 주택과 자연을 조화롭게 어우러지게 만드는 요소가 된다. 건축가는 인테리어와 인접한 자연환경의 시각적인 부분을 돋보이도록 의도했다. 인접한 숲의 색상과 음영이 사용된 두 채의 건물은 주거용과 스파용으로 나누어진다. 두 건물을 연결하는 복도는 숲이 내려다보이는 테라스를 형성한다.
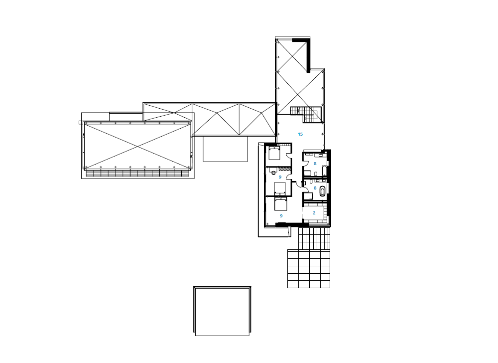
주거용 건물의 긴 복도는 1층의 모든 구역을 중심으로 하는 주택의 기본 축을 이루며, 그 끝에는 독특한 분위기의 응접실 공간이 마련되어 있다. 벽난로가 있는 응접실 공간의 벽면은 유리로 되어 있어 계절에 따른 자연 채광이 마당을 비추는 풍경을 감상할 수 있다. 내부의 벽면은 응접실의 높은 천장과 전면의 유리로 인한 소음의 반향을 보정하기 위해 방음 패널로 설계됐다. 2층은 투명한 유리 난간의 계단을 통해 돌출된 작은 메자닌으로 이어진다. 독서공간, 게스트룸, 스위트룸 등 프라이빗한 공간을 구성하기 위해 따뜻함과 편안함을 더한 목재 파레트의 가구를 활용했다.
건축가는 건축주가 휴양시설을 이용하며 자연적으로 평화로운 환경에 완전히 몰입할 수 있는 공간을 설계했다. 스파용 건물의 파노라마 유리는 스파 시설을 이용하면서 물이 인접한 숲을 반사하여 자연환경을 내부로 끌어들인다.

F-House is a residential building for a family of four, which has a private atmosphere where the family can enjoy the natural environment such as the surrounding pond and forest. The U-shaped building forms a semi-enclosed courtyard facing the outside, and the predominant use of glass throughout the building captures the forest views, making it an element of harmony between the house and nature. The architects intended to highlight the visual aspects of the natural environment that is adjacent to the interior. The two buildings, which borrow the colors and shades of the neighboring forest, are divided into residential and spa areas. The corridor connecting the two buildings forms a terrace overlooking the forest.
The long hallway of the residential building forms the main axis of the house, centering all the zones on the ground floor, and at the end of it is a living room with a unique atmosphere. A fireplace sits in the living room space, which has walls made of glass, allowing for views of the natural light shedding light in the yard throughout the seasons. The interior walls were designed with soundproofing panels to compensate for the reverberation of noise caused by the high ceilings of the living room and the glass facade. The second floor is accessed by a staircase with a transparent glass railing that leads to a small protruding mezzanine. When arranging private spaces such as a reading nook, guest room, and suites, wood pallet furniture was used to add warmth and comfort.
The architects designed a space where the clients can fully immerse themselves in a naturally peaceful environment while using the recreational facilities. The panoramic glass of the spa building reflects the forest, bringing the nearby natural environment inside.














건축가 LEVEL80 Architects
위치 리투아니아, 빌뉴스
용도 단독주택
면적 570㎡
준공 2022
대표건축가 Kirill Skorynin
인테리어 Valerie Kisliuk, Natalia Lutovich, Natalia Lutovich
사진작가 Elizaveta Kulenenok
해당 프로젝트는 건축문화 2023년 8월호(Vol. 507)에 게재되었습니다.
The project was published in the August, 2023 recent projects of the magazine(Vol. 507).
August 2023 : vol. 507
Contents : Records Four Architects from Three Teams Selected for ‘2023 Korea Young Architects Award’ 2023 젊은 건축가상에 선정된 4명의 건축가들 : EXHIBITION / COMPETITION / BOOKS : SKETCH Mistakes, New Beginnings / Diego Alejandro Oquen
anc.masilwide.com
'Architecture Project > Single Family' 카테고리의 다른 글
| RUDE HOUSE (0) | 2023.12.04 |
|---|---|
| ESC Frame (0) | 2023.11.15 |
| House in Yokohama (0) | 2023.10.25 |
| Sky Vessel House (0) | 2023.10.24 |
| Gomo-dong House (0) | 2023.10.05 |
마실와이드 | 등록번호 : 서울, 아03630 | 등록일자 : 2015년 03월 11일 | 마실와이드 | 발행ㆍ편집인 : 김명규 | 청소년보호책임자 : 최지희 | 발행소 : 서울시 마포구 월드컵로8길 45-8 1층 | 발행일자 : 매일



