
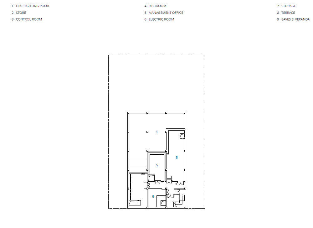
샤오싱 지역의 청주는 오랜 역사를 지니며 샤오싱 지역에서 깊은 문화로 자리잡고 있다. 프로젝트의 대지는 이 지역의 청주 사업의 중심지로, 청주를 생산하던 작업장이었던 기존 건물을 리모델링 하여 붉은 벽돌 굴뚝과 같은 흔적이 남아있다.
건축가는 초반에는 샤오싱 청주의 전시 및 체험관으로 사용하고, 추후에는 수변에 자리잡은 상업공간으로 공간이 용도가 변경될 것을 염두했다. 내부 공간의 분할을 유연하게 설정하기 위해 가로, 세로, 높이 4.8m의 정방형의 기본 모듈로 건물을 설정했다. 이러한 룸 형태의 모듈은 전시회, 상업공간, 레스토랑, 엘리베이터룸 등 필요한 공간의 평면과 높이를 수용할 수 있는 최적의 크기이다. 기본 모듈러 유닛은 건물의 형태와 파사드에서 완전히 대응하며, 반복하는 유닛의 구성은 독특한 건축적인 특징을 형성한다. 전통 민가의 분리 가능한 창문을 상징하는 차양한 파사드의 깊이와 층을 한결 깊게 느끼게 한다. 모듈에 사용된 주재료는 재활용 대나무로 가공이 편하고 친환경적이라는 장점을 가진다.
모듈형 유닛의 사용은 신속한 사전 제작과 설치가 가능하여 공사비 절감으로 이어졌다. 건축가는 중국의 전통적인 건축 방식과 모듈식 설계를 실험적으로 사용했고, 역동적인 방식으로 전통적인 청주를 위한 문화공간을 제안했다.

Rice wine has a long history and is deeply embedded in the culture of the Shaoxing region. The project site is the center of the region’s rice wine business, and the existing building, which was once a rice wine production workshop, has been remodeled, with vestiges such as red brick chimneys retained
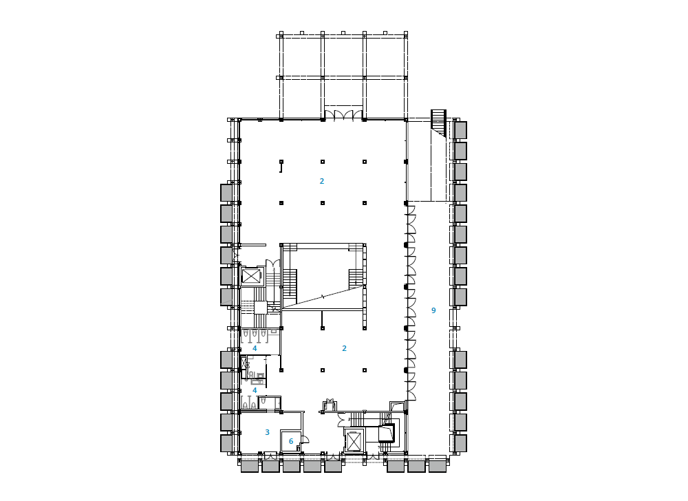
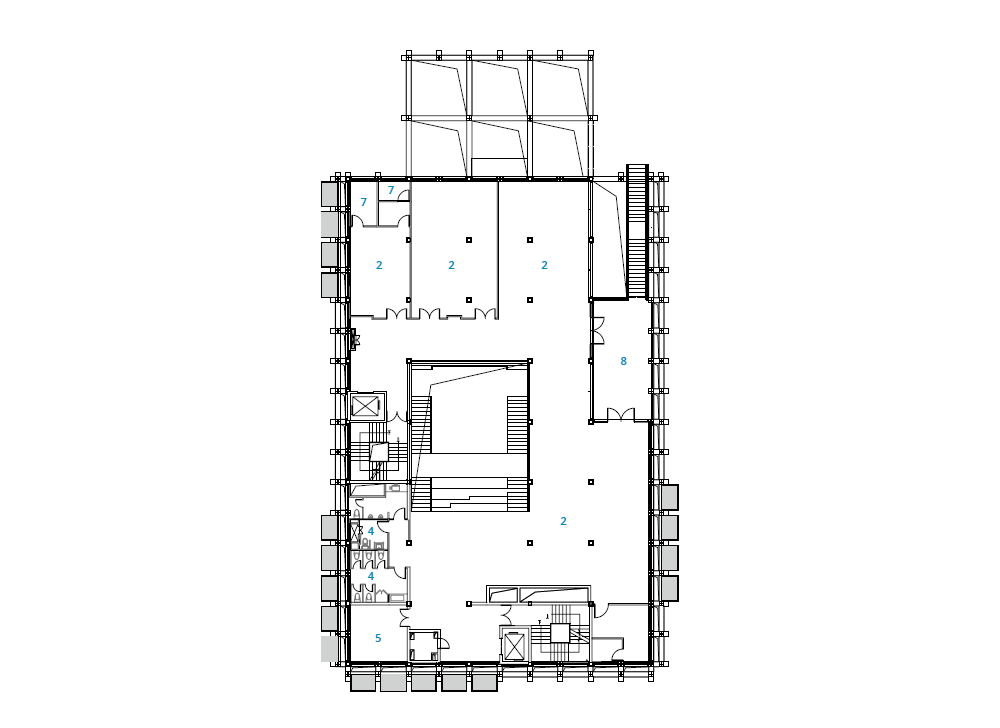
The architects initially envisioned the space being used as an exhibition and experience center for the rice wine of Shaoxing, and later repurposed as a commercial space along the waterfront. To flexibly divide the interior space, the building was set up with cubic modules as the basic module of the building, which have a width, length and height of 4.8m. These room-shaped modules are optimally sized to accommodate the floor plan and height of the required spaces, such as exhibitions, commercial spaces, restaurants, and elevator rooms. The basic modular units fully correspond to the shape and façade of the building, and the composition of the repeating units forms a unique architectural feature. The shaded façade, which symbolizes the detachable windows of traditional houses, creates a sense of depth and layers. The main material used for the modules is recycled bamboo, which has the advantage of being easy to process and environmentally friendly.
The use of modular units allowed for rapid prefabrication and installation, which reduced construction costs. The architects experimented with traditional Chinese construction methods and modular design, and proposed a cultural space for traditional rice wine in a dynamic way.














건축가 GAD
위치 중국, 저장성
용도 문화시설
면적 2,113㎡
시공기간 2020. 12. - 2021. 9.
준공 2021
프로젝트건축가 Wei Zhang
프로젝트리더 Kesuo Wu
디자인팀 Yiran Wang, Xiaoyu Sun, Chenglong Ma, Hengyi Cai, Fangyuan Yang, Yuxin An
구조 Dianyu Sun
물공급 Lian Zhang, Qi Huang
HVAC시스템 Fangfang Li
전기 Guoping Chen
인테리어 Interior Architecture Studio
조경 Guangzhou Guanji Landscape Co., Ltd.
조명 bpi
파사드 CLASSICAL DECORATION
발주자 SUNAC China Holdings (Southeast Region) Group
사진작가 YAOLI STUDIO
해당 프로젝트는 건축문화 2023년 8월호(Vol. 507)에 게재되었습니다.
The project was published in the August, 2023 recent projects of the magazine(Vol. 507).
August 2023 : vol. 507
Contents : Records Four Architects from Three Teams Selected for ‘2023 Korea Young Architects Award’ 2023 젊은 건축가상에 선정된 4명의 건축가들 : EXHIBITION / COMPETITION / BOOKS : SKETCH Mistakes, New Beginnings / Diego Alejandro Oquen
anc.masilwide.com
'Architecture Project > Cultural' 카테고리의 다른 글
| Munsan-eup Community Center (0) | 2023.11.23 |
|---|---|
| Myeongseok-myeon Community Center (0) | 2023.11.22 |
| Popped Orange (Uhub House) (0) | 2023.10.26 |
| Crismina Fort refurbishment (0) | 2023.10.16 |
| Yunchen Exhibition Center (0) | 2023.10.13 |
마실와이드 | 등록번호 : 서울, 아03630 | 등록일자 : 2015년 03월 11일 | 마실와이드 | 발행ㆍ편집인 : 김명규 | 청소년보호책임자 : 최지희 | 발행소 : 서울시 마포구 월드컵로8길 45-8 1층 | 발행일자 : 매일



