
원청 전시센터는 광저우 시의 장강 수변에 인접하여 지어졌다. 건축가는 물에서 태어나 물의 언어로 지어진 주변의 수변 환경에 통합될 수 있는 건축의 형태를 만들고자 했다. 이 건물을 멀리서 바라보면 마치 호수 위에 떠있는 최첨단 기술의 방주처럼 보인다. 금속 재질의 외장재는 하늘과 강의 색채에 녹아든다. 한 벽면의 바닥부터 천장까지 넓게 차지하는 창문과 간결하고 강력한 매스감은 시각적으로 강을 따라 연장되며 풍경에 통합된다. 알루미늄 판, 미니멀리즘에 기반한 간결한 선과 절단면은 빛과 그림자의 아름다움을 이끌어내며 고급스러운 그레이 시스템을 형성한다.
건물의 입구부터 2층의 플랫폼에 이르기까지 주변을 감싸는 수변 환경이 일체화되어 수경화(水景畵)를 만들어낸다. 주변의 불규칙적인 대지의 형태로 인해 건물 전경에 비해 뒷면의 정원이 조용하게 숨어있으며, 곡선의 경사로를 이용하여 경계를 따라 이동할 수 있다. 입구 광장은 규칙적이고 단순한 기하학 선을 채택하여 물가로 물결이 밀려오는 듯한 이미지를 디자인으로 형상화했다.
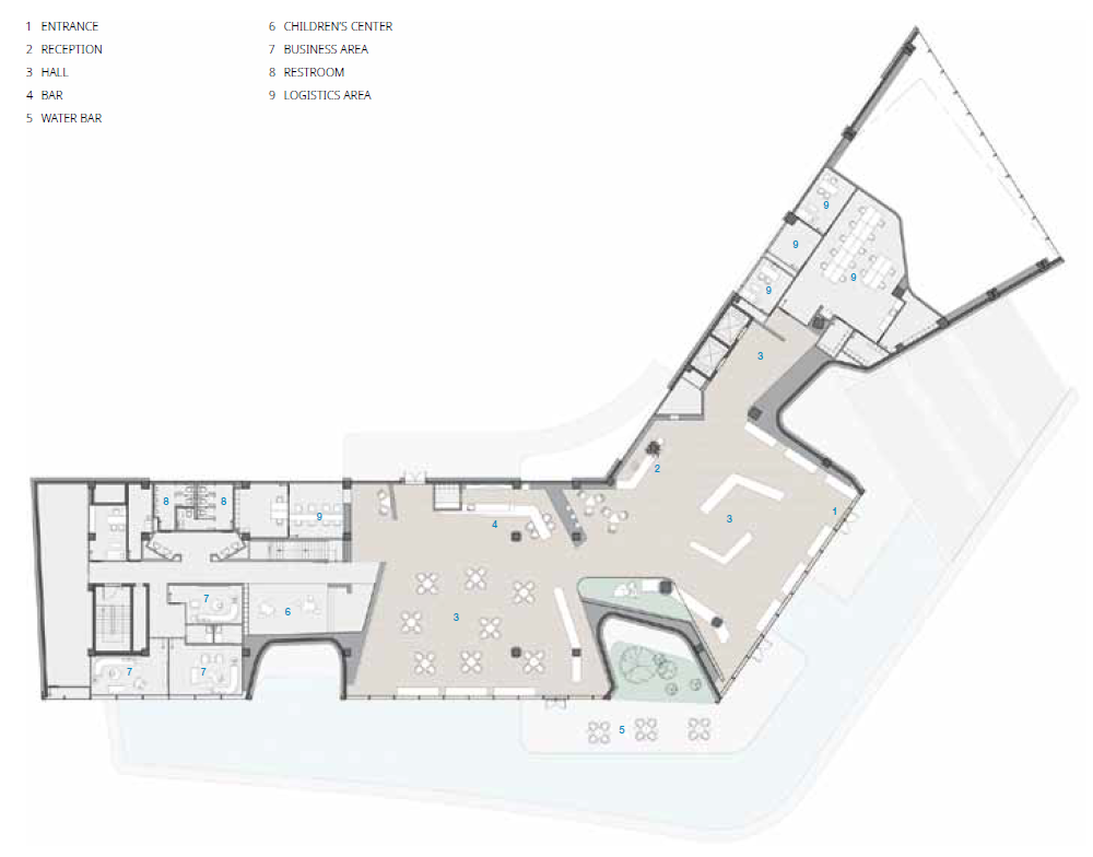
건축가는 원청 전시센터가 사회적인 역할을 할 수 있는 공간이 될 수 있도록 어린이 놀이 시설과 야외 활동 공간, 카페, 공연장, 휴식공간 등의 다양한 기능의 프로그램을 계획했다. 원청 전시센터는 시민들이 삶의 정취를 즐길 수 있는 강변의 다차원적인 문화센터이다.

This case is located on the shore of Zhangjiang River in Ganzhou City. The site has great environmentalcharacteristics and atmosphere. The designeristellinga story of water in architectural language, soas to makethe buildingbe bornin water and integrated into thelandscape. Overlooking from distance, the building looks like a technology ark floating on the water.Its pure coloredmetal shell is integrated into the environment of same colored water and sky. When looking close,itsshapeis like waves, surrounded bywaterscapeand water curtain, creating a technology ark on the water.Itsdesignis based on the largeareafloor to ceiling windows and the smooth, concise and powerful shape, extendedalong the riverincombinationwith the terrain, and rotated to match the site. The blocks aresegmentedtoform a frame view.Taking the building as a boundary, the landscape design of the entrance square is regularand adopts simple geometric lines,itriseslayer by layer andis consistent with the building platform, just likethe rise of water waves to the shore.It presents a high-grade gray system as a whole, with auxiliarydetailssuch as aluminum plate, minimalist lines and diamond cutting surface, combing the beauty of light and shadow,and complementing the river scenery.
Waterscape runs through the beginningto theendwhensightseeingthebuilding. From the entrance landscapeto the waterscape on the second floor platform, from the construction near the water surface tothe watercurtain, the landscape is integrated with the building.Due to the irregular shape of the site, the backyardspace is relatively hidden and quiet, with curve ramps are used to gradually fit the boundary, the color layouttends to be lively and flexible,andan area for children's amusement and outdoor activitiesis set.
This case has its socially role attribute. It is expected to be the epitome of the riverside metropolis. Coffee bar,performing arts hall, spaces for living in seclusion and other multi-functionalspaces are gathered here tocreate a theme exhibition area fulls of life flavor + multidimensional experience in combination with the projectpositioning.












건축가 Challenge Design
위치 중국, 광저우, 원청
용도 전시관
면적 3,157㎡
준공 2022
대표건축가 Li Jie
디자인팀 Yan Fang, Sun Yong Gang, Lin Wei, Hu Ruibing
구조설계 JZFZ
인테리어 iDesigner
조경 Ego Group
지속가능성 Klimaatgarant
발주자 Yibin Liya Liangdian Group
사진작가 PrismImage
해당 프로젝트는 건축문화 2023년 7월호(Vol. 506)에 게재되었습니다.
The project was published in the July, 2023 recent projects of the magazine(Vol. 506).
July 2023 : vol. 506
Contents : Records First Step in Pre-Planning, Change Future School with User Participatory Design 사전기획의 첫걸음, 사용자 참여 디자인으로 내일의 학교를 바꾸다 Look Forward to 100 Years: Songpa Public Housing Design Competition
anc.masilwide.com
'Architecture Project > Cultural' 카테고리의 다른 글
| Popped Orange (Uhub House) (0) | 2023.10.26 |
|---|---|
| Crismina Fort refurbishment (0) | 2023.10.16 |
| Chengdu Xinglong Lake CITIC Bookstore (0) | 2023.10.12 |
| ATIPOGRAFIA : Threshold and Treasure (0) | 2023.10.11 |
| The Hangzhou Asian Games Baseballand Softball Sports Cultural Center (0) | 2023.10.10 |
마실와이드 | 등록번호 : 서울, 아03630 | 등록일자 : 2015년 03월 11일 | 마실와이드 | 발행ㆍ편집인 : 김명규 | 청소년보호책임자 : 최지희 | 발행소 : 서울시 마포구 월드컵로8길 45-8 1층 | 발행일자 : 매일



