
주민자치의 물리적 플랫폼: ‘공간자치’의 실현
‘공간자치’는 주민 누구나 쉽게 접근하고 함께 소통하고 어울리며 새로운 제안과 토론, 지원이 동시에 이루어질 수 있는 공간의 특성이다. 주민자치센터의 ‘공간자치’가 활성화된다면 마을 단위에서의 다양한 방향의 활성화를 이끌어낼 수 있다. 건축가는 명석면 주민복합문화센터를 조성하며 이러한 ‘공간자치’가 실현될 수 있는 건축적인 방안을 제안했다.
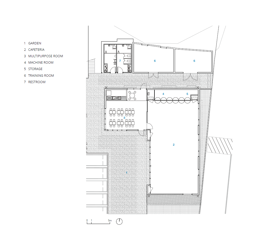
대지의 입구에 자리한 새로운 문화센터 건물은 기존의 면사무소의 접근성을 보완하여 심리적, 물리적 장벽을 낮췄다. 1층에서 2층으로 이어진 경사지붕의 형태와 목구조가 노출된 내부공간은 접근 장벽을 낮추는 형태적인 요소다. 1층의 다목적 프로그램실과 공용부엌을 통해 주민들의 문화접근성을 높였고, 외부의 열린 마당은 주민 누구나 쉬어갈 수 있는 공간이자 인근의 다른 공간과 연계한 활동이 가능하다. 공간 내의 질서를 재구축하기 위해 보차분리를 명확하게 제시한 점이 돋보인다. 기본에는 보행과 차량의 주차 및 이동동선이 혼재하여 보행약자의 위험성이 항상 내재되어 있었다. 건축가는 이를 개선하기 위해 외부 주차공간의 주차대수는 유지한 채 보행전용 통로를 마련하여 공공건축으로서의 접근성을 최대로 확보했다.

Physical platforms for community autonomy: realizing ‘spatial autonomy’
‘Spatial autonomy’ is a characteristic of a space that is easily accessible to all residents and allows them to communicate and socialize together, and to make new suggestions, have discussions, and get support at the same time. If the ‘spatial autonomy’ of community autonomy centers is activated, it can lead to revitalization in various directions at the village level. The architects proposed an architectural plan for the Myeongseok-myeon Community Center to realize such ‘spatial autonomy’.
The new cultural center building located at the entrance of the site complements the accessibility of the existing myeon office[1], reducing psychological and physical barriers. The shape of the sloping roof extending from the first to the second floor and the exposed wooden structure of the interior space are physical elements that reduce access barriers. A multi-purpose program room and a common kitchen on the first floor increase residents’ access to culture, while the open space outside provides a place for all residents to relax and engage in activities with other nearby spaces. To reestablish order in the space, the design has clear separation between pedestrians and vehicles. Previously, there was always an inherent risk for pedestrians with disabilities due to the mix of pedestrian and vehicular parking and movement. In order to improve this, the architects maintained the number of parking spaces outside the building while providing a pedestrian-only passageway to maximize accessibility as a public building.
[1] A township office












건축가 볼드아키텍츠건축사사무소 볼드아키텍츠
위치 경상남도 진주시 명석면 관지리 305-3외 1필지
용도 제1종근린생활시설(주민공동시설)
대지면적 2,400.00㎡
건축면적 270.64㎡
연면적 270.64㎡
건폐율 35.89%
용적률 51.04%
규모 지상 1층
설계기간 2020. 5. - 12.
준공 2021. 9.
대표건축가 신성진, 손경민
구조설계 주종범
기계/전기설계 태영기술
시공 평원건설, 니드텍건설
발주자 진주시
사진작가 신경섭
해당 프로젝트는 건축문화 2023년 8월호(Vol. 507)에 게재되었습니다.
The project was published in the August, 2023 recent projects of the magazine(Vol. 507).
August 2023 : vol. 507
Contents : Records Four Architects from Three Teams Selected for ‘2023 Korea Young Architects Award’ 2023 젊은 건축가상에 선정된 4명의 건축가들 : EXHIBITION / COMPETITION / BOOKS : SKETCH Mistakes, New Beginnings / Diego Alejandro Oquen
anc.masilwide.com
'Architecture Project > Cultural' 카테고리의 다른 글
| DOLBOM Flower shop (0) | 2023.11.24 |
|---|---|
| Munsan-eup Community Center (0) | 2023.11.23 |
| Shaoxing Rice Wine Town Reception Room (0) | 2023.11.14 |
| Popped Orange (Uhub House) (0) | 2023.10.26 |
| Crismina Fort refurbishment (0) | 2023.10.16 |
마실와이드 | 등록번호 : 서울, 아03630 | 등록일자 : 2015년 03월 11일 | 마실와이드 | 발행ㆍ편집인 : 김명규 | 청소년보호책임자 : 최지희 | 발행소 : 서울시 마포구 월드컵로8길 45-8 1층 | 발행일자 : 매일



