
고속도로 충전라운지 “EVning” 프로젝트는 전기차 시대에 적합한 친환경 공공 건축을 제안한 작업이다. 한국도로공사는 환경기준의 강화 및 정부의 친환경 차 보급 정책에 따른 충전 인프라 확충을 위해 고속도로상의 전기차 충전소와 연계된 비대면 중심의 미래형 휴게 라운지 시범사업을 추진함에 따라, 차세대 휴게소 모델로서의 뉴노멀 전기차 충전라운지를 만들어야 했다.
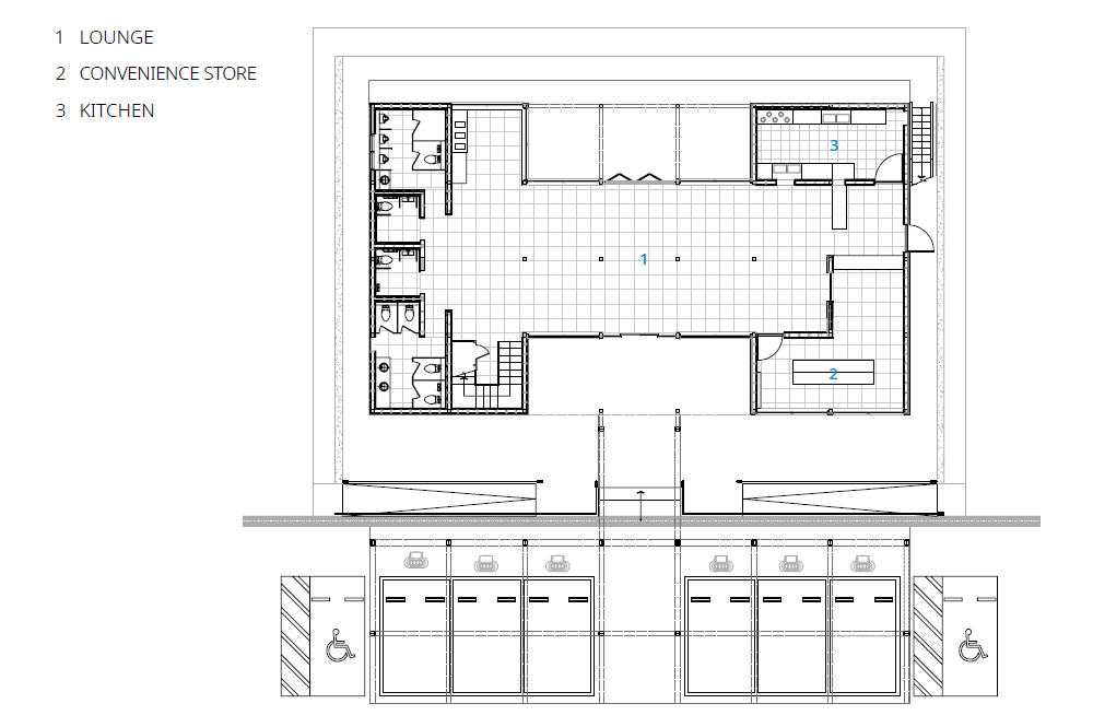
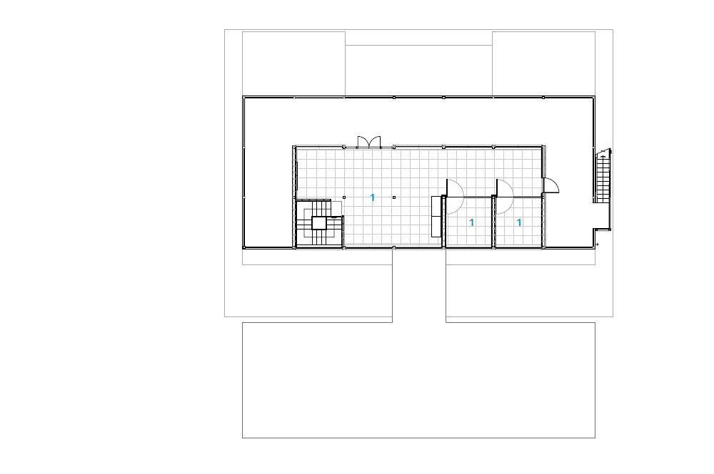
설계에서 중요했던 첫 번째 사항은 공공건축물과 친환경 목구조 형식의 최적의 조합 방법이었다. 공공건축에서 일반적으로 요구되는 넓은 경간, 높은 층고, 투명한 입면의 확보를 위해 중목 구조를 기준으로 한 골조 체계와 목재 판넬라이징 공법을 사용한 벽체구조를 혼용한 목구조 하이브리드 방식으로 지었다. 두 번째는 미래형 휴게소로서의 장소성 구현이다. 기존 내연기관 중심의 휴게소와는 달리 전기 충전을 위해 최대 1시간 이상 머물러야 하는 장소성이 확보되는 공간을 만들어야 했다. 차량 충전과 탑승자의 휴식공간을 일체화하여 공간을 구성했고, 휴게소의 주요 단위 기능인 화장실, 라운지, 편의점 등의 시설이 유기적인 동선을 가질 수 있도록 설계했다. 뿐만 아니라, 수려한 주변 자연환경을 바라볼 수 있는 전후면 외부공간, 2층 테라스 공간 등도 함께 계획했다. 세 번째는 모듈화를 통한 확장 가능성의 공간이다.
규격화된 부재의 치수와 공간의 크기에 대한 기준을 설정하여 다양한 형태의 변형에 쉽게 대응할 수 있도록 했고, 건물의 기밀성, 온습도 조절, 단열성 등 우리나라 기후에 맞는 쾌적한 실내 공간 유지를 위한 기능적인 검토를 면밀하게 진행하였다. 탄소중립 친환경이슈로 인해 전세계가 빠르게 변화하고 있고 이를 반영한 뉴노멀 공간의 필요성이 점점 대두되고 있다. 이번에 제안하는 고속도로 전기차 충전라운지 “EVning” 프로젝트는 국내에서 최초로 실행이 되는 혁신적인 뉴노말 공공 건축의 의미 있는 첫 발걸음이 될 수 있으리라 기대한다.











건축가 심리스건축 & 어반소사이어티건축사사무소
위치 충청남도 공주시 신풍면 평소리 45-6
용도 관광휴게시설(휴게소)
대지면적 990㎡
건축면적 444.26㎡
연면적 546.02㎡
규모 지상 2층
건폐율 1.40%
용적률 1.60%
설계기간 2022. 7. - 10.
시공기간 2022. 10. - 2023. 1.
준공 2023. 1.
대표건축가 양재찬
프로젝트건축가 이완정
디자인팀 황윤성, 안재근, 윤희원, 김민선(커먼굿)기계엔지니어 하늘천
전기엔지니어 하늘천
시공 케이스건축
발주자 (주)서창산업
사진작가 이남선
해당 프로젝트는 건축문화 2023년 7월호(Vol. 506)에 게재되었습니다.
The project was published in the July, 2023 recent projects of the magazine(Vol. 506).
July 2023 : vol. 506
Contents : Records First Step in Pre-Planning, Change Future School with User Participatory Design 사전기획의 첫걸음, 사용자 참여 디자인으로 내일의 학교를 바꾸다 Look Forward to 100 Years: Songpa Public Housing Design Competition
anc.masilwide.com
'Architecture Project > Other' 카테고리의 다른 글
| Wuhan stray animal base adoption area (0) | 2024.03.15 |
|---|---|
| Pavilion of Floating Lights (0) | 2023.11.20 |
| Chibougamau-Chapais Air Terminal Building (0) | 2023.07.05 |
| Fietser International Private Clubhouse (0) | 2023.05.03 |
| Parking house in Dolni Brezany (0) | 2023.04.28 |
마실와이드 | 등록번호 : 서울, 아03630 | 등록일자 : 2015년 03월 11일 | 마실와이드 | 발행ㆍ편집인 : 김명규 | 청소년보호책임자 : 최지희 | 발행소 : 서울시 마포구 월드컵로8길 45-8 1층 | 발행일자 : 매일



