
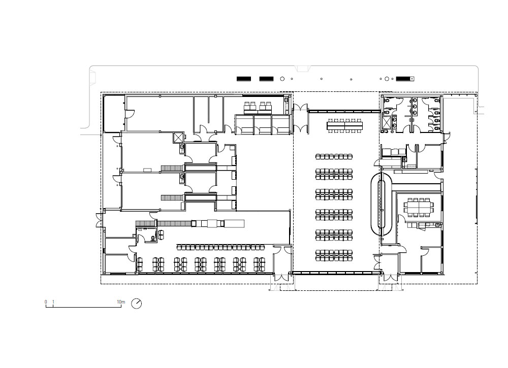
The Chibougamau-Chapais airport is the gateway to the Eeyou Istchee James Bay region. It services a large territory that includes the communities of Chibougamau, Chapais and Ouje-Bougoumou. Faced with growing passenger traffic, a new terminal building was deemed necessary to meet the increasing demand. EVOQ Architecture + ARTCAD in joint venture designed the new terminal according to the latest standards to provide a seamless passenger experience and to express the aspirations and culture of the communities it services.
The new terminal building is composed of two low structures on either side of a glazed concourse. The latter serves as a central hub for passengers and connects all terminal functions and services, ensuring that they are easily identifiable and accessible. Its design establishes visual connectivity from the parking lot to the runway. Waiting travelers can watch their plane on the tarmac while others can monitor the pick-up and drop-off zone. This fluidity is further reinforced by the consistent use of materials and lighting treatment when moving from interior to exterior spaces. The exterior facade features the name of the airport in Cree and in French and is adorned with artwork by Emmanuelle Gendron cleverly integrated into the transparency of the timber curtain walls, paying homage to the Eeyou Istchee region.
Highlighting its proximity to the boreal forest, the terminal’s design showcases locally produced wood, particularly high-performance products such as glulam and cross-laminated timber (CLT) structural slabs. The waiting area is delimited on three sides by timber curtain walls topped by a raised roof forming a south-facing clerestory. The curtain walls provide natural light as well as improved energy efficiency and contribute to structural bracing, while the clerestory acts as a load-bearing axis, eliminating the need for a structural beam. The roof structure combines engineered wood and steel components. Stressed CLT panels spanning 12m are supported by wood columns at each end and reinforced with high-strength steel rods tying the centre to the extremities. This minimalist, highly efficient approach underlines the project’s core design principles: transparency, lightness, comfort, and functionality.

이스체 제임스 베이 지역으로 가기 위해서는 치부가마우-샤뻬 공항을 이용해야 한다. 그 외에도 이 공항을 이용해 치부가마우, 샤뻬, 우제 부구무 등 보다 넓은 영역까지 갈 수 있다. 최근 치부가마우-샤뻬 공항을 이용하려는 사람들의 수요가 증가함에 따라 이를 수용할 수 있는 새로운 터미널이 세워졌다.
새로운 터미널 건물은 중앙홀의 양 편이 유리로 되어 있는 두 개의 낮은 구조물로 구성되어 있다. 뒤 편 건물은 중앙 허브 역할을 하며 터미널의 모든 기능과 서비스가 한 눈에 들어오도록 하였으며 접근성도 높였다. 주차장에서부터 활주로까지 시각적으로도 연결되도록 만들었다. 승객들이 기다리는 동안에도 타마크에서 비행기를 볼 수 있으며 다른 승객들의 전용 승차 및 하차 구역도 지켜볼 수 있다. 내부와 외부의 통일성 있는 자재와 조명의 사용으로 인해 사람들의 움직임이 보다 더 강조된다. 건물 바깥쪽 파사드에는 크리어어와 프랑스어로 공항 이름이 적혀 있고 이유 이스체 지역에 경의를 표하며 엠마누엘 장드롱(Emmanuelle Gendron)의 예술 작품도 놓여있다.
북쪽의 숲과 가까이 있음을 보여주듯 설계 시 지역내 목재를 주로 사용하였고 글루램과 직교 집성판(CLT)와 같은 고성능의 목재를 사용하여 슬라브를 만들었다. 남쪽면으로 클리어 스토리를 만들며 올려진 지붕으로 둘러싸인 목재 커튼 월에 의해 대기 공간은 세 면으로 경계가 나뉜다. 커튼 월을 통해 자연광이 들어오며 에너지의 효율성을 높이고 구조적으로도 보강해준다. 클리어스토리는 하중을 지지하는 축 역할을 하기 때문에 다른 구조적인 보강의 필요가 없어진다. 엔지니어링 우드와 스틸 부품을 결합하여 지붕구조를 만들었다. 12m정도 길이의 CLT 패널의 양쪽 끝에 목재 기둥을 이용해 지지하게 만들었으며 고강도 스틸 로드를 이용해 중앙과 끝 부분의 연결 부분도 보강했다. 이러한 고 효율적인 접근 방식은 프로젝트의 핵심 설계 원칙인 경량성, 투명성, 기능성, 안정성을 강조해준다.












건축가 EVOQ ARCHITECTURE + ARTCAD
위치 캐나다, 퀘벡, 치부가마우-샤뻬
준공 2022
프로젝트건축가 Alain Fournier, Sami Tannoury, Kim-An Truong
프로젝트디렉터 Sami Tannoury
디자인팀 Alain Fournier, Joel Sirard, Sami Tannoury, Kim An Truong, Alexandre Jean-Bergeron, Francois Belleau, Karine Dieujuste, Huayna Sanchez Alfaro, Eric Leblanc, Louis Babin-St-Jean, Eloise Barry, Catherine Fontaine, Alexis Charbonneau, Pierre Bouchard, Genevieve Rene, Edith Dennis-Larocque
엔지니어 SNC-Lavalin et CIMA+
목구조엔지니어 Nordic Structures
시공 Construction Unibec
발주자 Ministere des Transports du Quebec
사진작가 Maxime Brouillet
해당 프로젝트는 건축문화 2023년 5월호(Vol. 504)에 게재되었습니다.
The project was published in the May, 2021 recent projects of the magazine(Vol. 504).
May 2023 : vol. 504
Contents : Records Tadao Ando, His Challenges to Architecture 안도 타다오, 한국에서 만나는 건축을 향한 그의 도전들 Millennium Hilton Hotel in History and Development: Propose the direction for coexistence 역사와 발전 속 밀레
anc.masilwide.com
'Architecture Project > Other' 카테고리의 다른 글
| Pavilion of Floating Lights (0) | 2023.11.20 |
|---|---|
| EV lounge in Shinpoong (0) | 2023.10.02 |
| Fietser International Private Clubhouse (0) | 2023.05.03 |
| Parking house in Dolni Brezany (0) | 2023.04.28 |
| Parkeergarage A1 (0) | 2023.04.27 |
마실와이드 | 등록번호 : 서울, 아03630 | 등록일자 : 2015년 03월 11일 | 마실와이드 | 발행ㆍ편집인 : 김명규 | 청소년보호책임자 : 최지희 | 발행소 : 서울시 마포구 월드컵로8길 45-8 1층 | 발행일자 : 매일



