
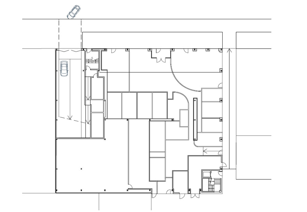
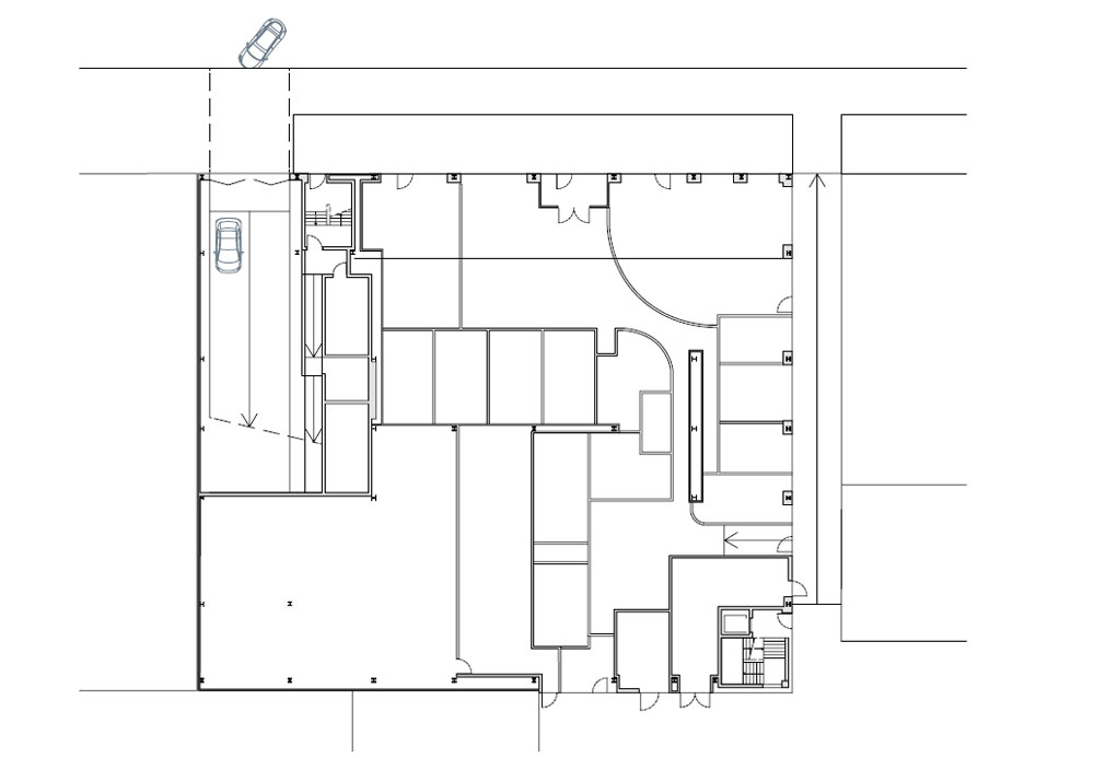
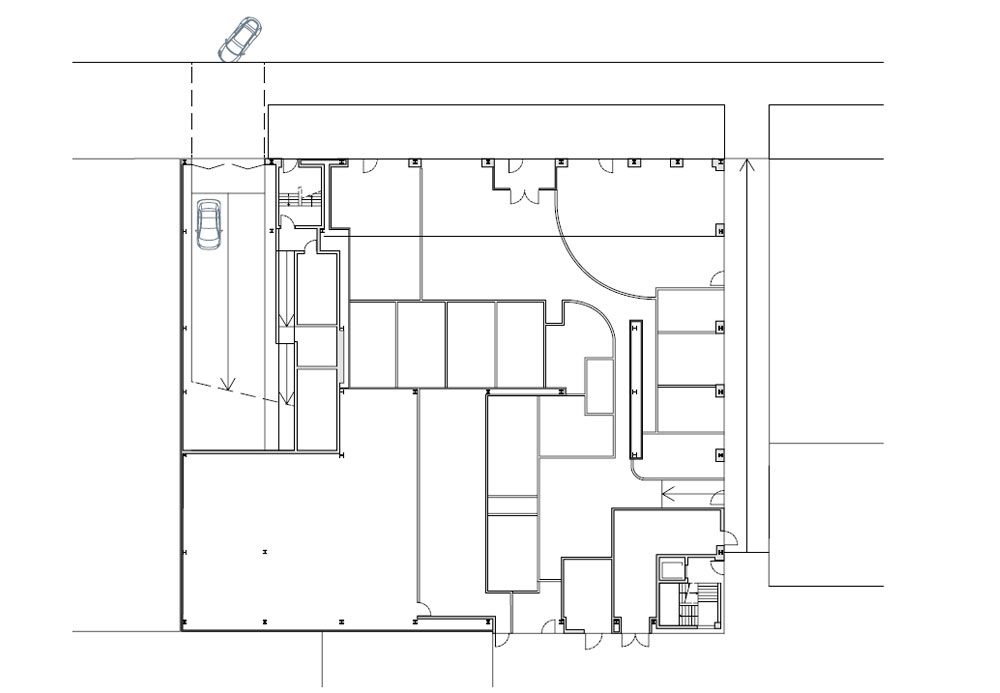
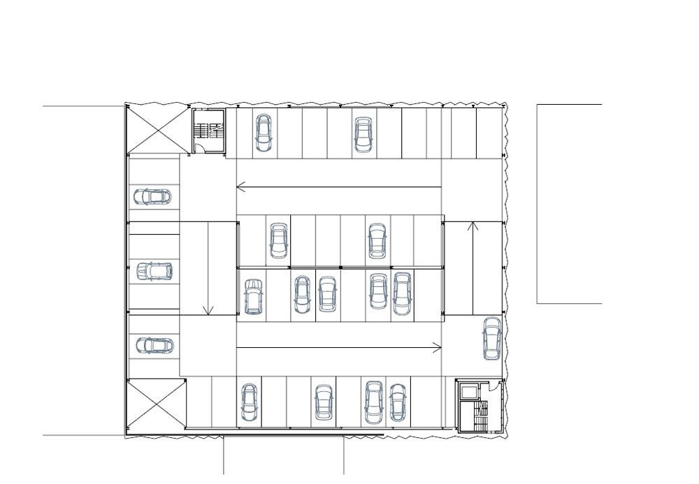
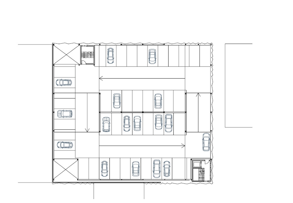
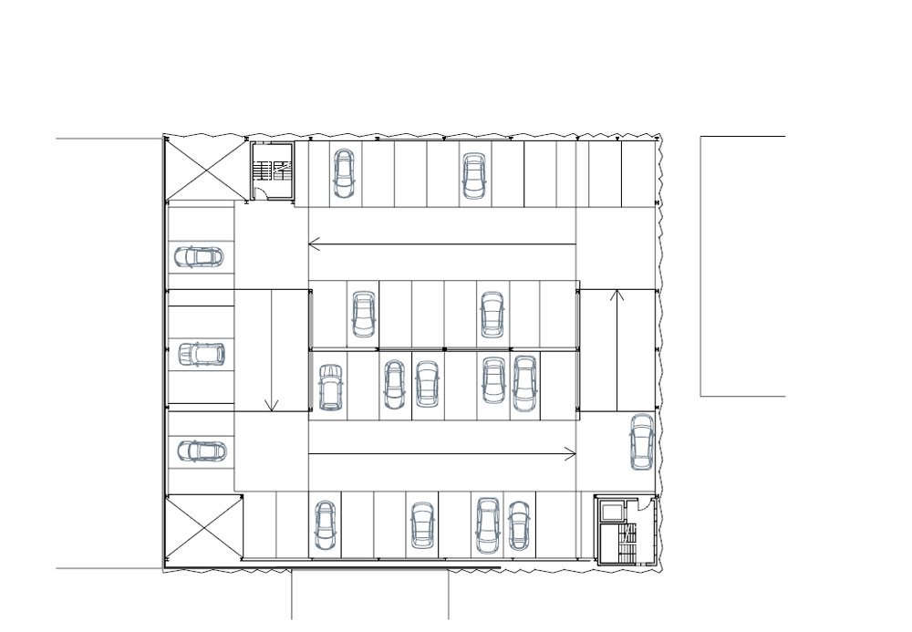
The architect has completed a 250-space community car park incorporating a health centre at ground level in Buiksloterham in the north of Amsterdam. The design of Parkeergarage A1 had to answer the question of how this transport infrastructure building could find its rightful place in its largely new dense mixed-use neighbourhood. How does a car park relate to the houses and apartments built next to it? The distinctive quality of the steel mesh diagrid elevations of Parkeergarage A1 addresses this question by making it read less like a car park per se and more like an entrance to the neighbourhood. The relief pattern of the facade catches the light and animates its form in ways that break down the volume of the building while playing on the industrial past of its context and its particular building typologies, like the non-descript sheds that give little indication of what is contained within them. On the street level, timber slatted cladding introduces a warmer, tactile and more human interface. The natural wooden finish contrasts with the cooler sleek steel architecture above.

바윅슬로터함 주차타워 A1는 암스테르담 북부의 바윅슬로터함(Buiksloterham)에 지상층 보건소와 250대 규모를 수용할 수 있는 복합형 주차타워다. 새로 조성된 밀집된 복합 용도 지구 안에서, 주변 주택과 아파트 사이에서 주차타워와의 관계에 집중하며 설계됐다. 주차타워 A1는 다이아몬드 그리드 철망 입면으로 만들어진 독특한 특징을 가지고 있는데, 주차장보다는 동네의 입구처럼 보이도록 한다. 파사드의 양각 패턴은 빛을 받아 건물의 볼륨을 분해하는 방식으로 그 형태에 생기를 불어 넣으면서, 산업적 과거의 맥락과 내부에 포함된 사물이 드러나지 않도록 디자인된 창고와 같은 건축물의 특정한 건축 유형을 활용한다. 천연 목재로 마감된 상부부는 차갑고 튼튼한 강구조와 대조되는 이미지를 준다.











건축가 XVW architectuur
위치 네덜란드, 암스테르담, 부익슬로터함
용도 주차타워
대지면적 1,260㎡
건축면적 1,260㎡
연면적 7,500㎡
대표건축가 / 프로젝트건축가 Xander Vermeulen Windsant
디자인팀 Xander Vermeulen Windsant, Bartjan van 't Slot
구조엔지니어 Perree
소방엔지니어 Peutz
건축역학엔지니어 Peutz, LBP Sight
발주자 Huber Car Parking Systems for De Alliantie Ontwikkeling
사진작가 Isabel Nabuurs, Marcel van der Burg
해당 프로젝트는 건축문화 2023년 2월호(Vol. 501)에 게재되었습니다.
The project was published in the February, 2023 recent projects of the magazine(Vol. 501).
February 2023 : vol. 501
Contents : NEWS / COMPETITION / BOOKS : SKETCH Things that make a day in your daily life / Hossain mousavi 일상 속에서 하루를 만드는 것들 / 호사인 무사비 : RECENT PROJECT Building of Music / Aisaka Architects’ Atelier 음악 복합공
anc.masilwide.com
'Architecture Project > Other' 카테고리의 다른 글
| Fietser International Private Clubhouse (0) | 2023.05.03 |
|---|---|
| Parking house in Dolni Brezany (0) | 2023.04.28 |
| BUS TERMINAL SLAVONSKI BROD (0) | 2023.04.26 |
| Glowing Bicycle Station in Bergamo (0) | 2023.04.25 |
| Bus Station Tilburg (0) | 2023.04.24 |
마실와이드 | 등록번호 : 서울, 아03630 | 등록일자 : 2015년 03월 11일 | 마실와이드 | 발행ㆍ편집인 : 김명규 | 청소년보호책임자 : 최지희 | 발행소 : 서울시 마포구 월드컵로8길 45-8 1층 | 발행일자 : 매일



