
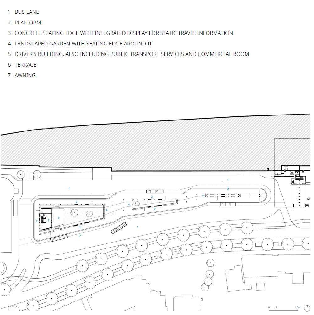
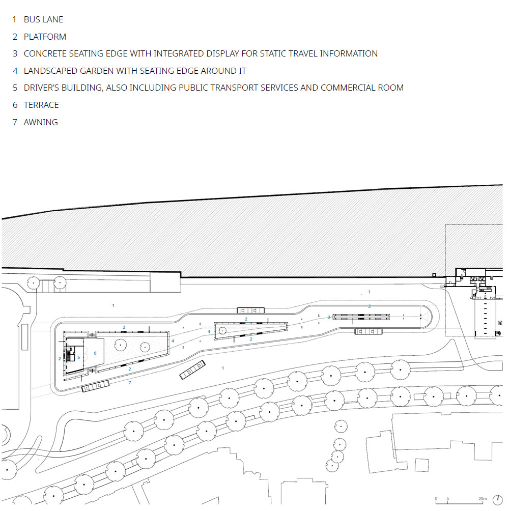
Recently, the new bus station in Tilburg was taken into use. Just like the renovation of the train station and the new bicycle parkings in the railway zone, the bus station was designed by cepezed architects. The new public transport facility generates its own energy and its design is thoroughly integrated. The new bus station is a part of the large-scale revitalization of the Tilburg public transport hub. It is fully tailored to the comfort of the travellers and to a clear and pleasant traffic flow. The facility is situated on the west side of the train station, roughly at the place that also occupied the former bus station, but with the location of the former Tilburion apartment block included on the far west side. The basic setup consists of a series of very thin columns with an evenly minimalistic awning structure on top of them. The construction forms a triangular circuit with a length of over 160 meters and an open space in the centre. The bus positions are arranged around the outer side; six for boarding and one for deboarding. The awning circulation runs from 14 to 30 meters width in total and has two offsets in its contour. These are primarily functional and align with the urban context, but visually, they also resonate elegantly with the monumental roof structure of the train station. This also has an articulated structure and moreover seems to float, just like the bus station awning.
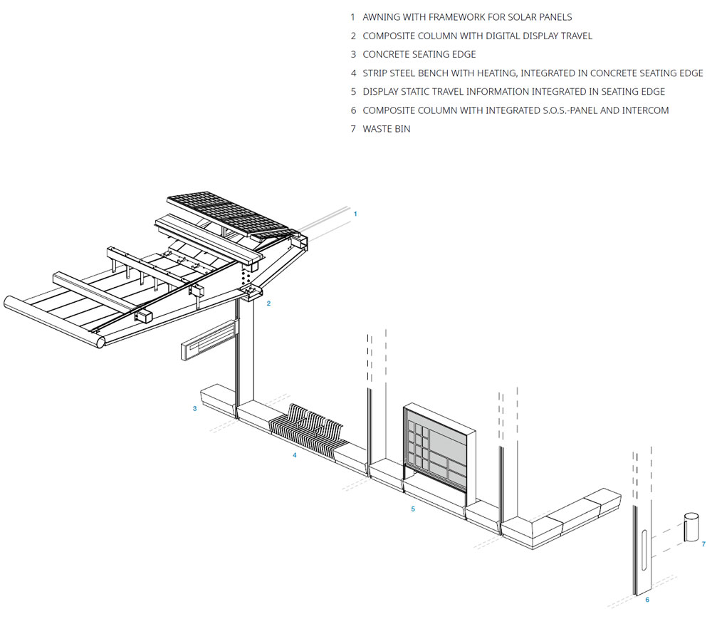
The setoffs divide the overall structure into three segments. In the centre of every segment, there is green plantation surrounded by a sitting edge for the travellers. On the wide end of the circuit, the centre additionally contains a pavilion. This houses a staff canteen for the bus drivers, a public transport service point and a commercial space that has to find its function yet. An elevated terrace adjoins this commercial space. The spacious awning all around fully covers the bus platforms and additionally part of the buses. Thus, travellers can always board and deboard sheltered and protected from the rain. The structure consists of a steel framework covered with ETFE-foil. The lighting is fitted above this foil. During the day, the awning filters the sunlight, while during the dark hours, it becomes one large and spacious lighting element that strongly adds to the travellers’ feeling of safety. 250 m2 of solar panels lie atop of the awning. In strong daylight, these cast a shadow pattern on the ETFE that makes the travellers aware of their presence. The panels supply sufficient energy for all functionalities of the bus station, including the lighting of the awning, the digital information signs, the staff canteen and the public transport service point. The commercial space has its own energy circuit and energy meter.

최근에 틸브뤼흐의 새로운 버스 정류장이 사용되기 시작했다. 기차역의 보수 작업과 철도 구역의 새로운 자전거 주차장을 설계했던 세페즈드가 이번에도 설계를 맡았다. 새로운 대중교통 시설은 자체적으로 에너지를 생산하는 통합된 디자인을 보여준다. 새로운 버스 정류장은 틸브뤼흐의 대중교통 허브의 대규모 활성화의 일부이다. 여행자에게 편안하고, 깨끗하고, 쾌적한 교통을 제공한다. 새 버스 정류장은 기차역의 서쪽에 있으면서 기존 버스 정류장이 있던 곳과 서쪽에 멀리 떨어져 있는 틸부리온(Tilburion) 아파트 블록까지 포함한다. 기본 구조는 매우 얇은 기둥들이 세워진 그 위로 최소한의 차양을 배치했다. 이 구조를 통해 길이 160m가 넘는 삼각형 회로와 중앙에 열린 공간을 만들어낸다. 버스 플랫폼은 바깥쪽을 기준으로 탑승용 6개와 하차용 1개가 배치됐다. 외곽을 이루는 총 14~30m 너비의 차양을 통해 두 개의 오프셋으로 순환이 이루어진다. 주로 기능적 측면과 도시적 맥락을 고려했지만, 기차역의 우아함을 드러내며, 기념비적인 지붕 구조와도 조화를 이루고 있다. 또한, 버스 정류장의 차양은 관절 구조로 되어 있어 마치, 하늘 위로 떠 다니는 것처럼 보인다.
세부적 계획을 보면 전체 구조를 세 부분으로 나누고 있다. 모든 구간의 중앙에는 여행자를 위한 좌석으로 가장자리를 둘러싼 녹지 공간이 있다. 순환이 끝나는 넓은 부분에는 중앙 파빌리온이 추가로 있다. 이곳 에는 버스 기사를 위한 직원 식당, 대중교통 서비스 공간과 상업 공간이 있다. 상업공간 위로는 테라스가 있다. 버스 정류장 위의 넓은 차양은 버스 플랫폼과 정차된 버스의 일부까지 가려준다. 따라서 승 하차 시 이용자들이 비를 맞지 않도록 해준다. 구조는 ETFE-호일로 덮인 강철 프레임워크로 되어 있고 이 호일 위로는 조명이 달려있다. 이로써 낮에는 차양이 햇빛을 가려주고 어두운 시간에는 하나의 크고 넓은 조명이 밝게 비춰 주어 여행자로 하여금 안전함을 느끼게 해준다. 천막 위로 250m2의 태양광 패널이 있다. 낮 동안의 강한 빛은 ETFE에 그림자 패턴을 드리우고 여행자들은 자신의 존재를 인식한다. 패널은 천막의 조명, 디지털 정보 표지판, 직원 매점, 대중 교통 서비스 공간을 포함한 버스 정류장의 모든 기능에 충분한 에너지를 공급해주는 역할을 한다. 상업 공간에는 자체 에너지 회로와 에너지 미터가 있다.
미적인 부분은 물론, 편안함과 기능적 측면, 소재 사용 등 여러가지를 고려하였고 가능한 한 기본에 충실한 구조와 구현 그리고 디테일에 보다 많은 신경을 썼다. 건축가 세페즈드는 버스 정류장을 위한 명확하고 순수한 시스템을 구상하고 세심하게 설계했다. 예를 들면, 철판과 스트립으로 구성된 얇은 기둥 안에 배수 및 전기 배선을 넣었고, S.O.S. 버튼과 인터콤도 기둥 하나에 모두 넣었다. 중앙내 하중 안정 빔 역할을 하는 접힌 강판은 홈통 역할도 한다. 파빌리온에 인접한 테라스의 조명은 해당 구역에 차양 구조에 걸쳐 있는 빔으로 합쳐진다. 검은색 콘크리트 좌석 가장자리에는 난방 기능을 탑재한 스트립 스틸로 제작된 여러 좌석이 있다. 내 하중 홈통의 배수구는 늘어난 ETFE 호일을 고정하기 위해 사용했으며 디지털 정보가 담겨있는 디스플레이는 보이지 않게 고정되어 있다. 파빌리온은 차양의 전반적인 안정성을 위한 기능을 갖추고 있다. 또한, 동작 센서는 14m마다 차양의 강철 가장자리에 있으면서 버스와 사람의 움직임에 반응하여 에너지 사용은 최소화 하면서 모든 상황에서 조명이 충분히 작동하도록 해준다. 버스 정류장은 포용성 또한 고려하여 설계되었다. 예를 들어 경사로가 있어 휠체어를 타고서도 높은 테라스에 갈 수 있으며 테라스와 플랫폼 사이의 핸드레일에는 점자 표시가 되어 있다. 차양의 ETFE 호일은 자체 청소 기능이 있어 유지 관리가 비교적 용이하다. 태양열 패널과 전기 장비의 관리를 위해 차양 순환은 파빌리온과 걸을 수 있는 케이블 홈통을 통해 오고 갈 수 있다. 모서리를 최소화 하고 전체적으로 장식이 없는 디자인은 청소 비용을 줄여준다. 또한, 미래를 대비하여 전기 버스 사용의 증가에 따른 전기 버스를 빠르게 충전할 수 있는 추가 전기 장비를 배치할 준비도 되어 있다.














건축가 architectenbureau cepezed
위치 네덜란드, 튈뷔르흐
용도 버스정류장
설계기간 2016. 10. - 2017. 9.
시공기간 2018. 3. - 2022. 3.
준공 2022
조경건축가 Atelier Quadrat
구조엔지니어 IMd Raadgevend Ingenieurs
기계엔지니어 Nelissen Ingenieursbureau b.v.
전기엔지니어 Nelissen Ingenieursbureau b.v.
조명엔지니어 Atelier LEK
시공 BAM Infra bv, Buiting Staalbouw, Hoppenbouwers Techniek
발주자 City council Tilburg
사진작가 (cepezed) Lucas van der Wee
해당 프로젝트는 건축문화 2023년 2월호(Vol. 501)에 게재되었습니다.
The project was published in the February, 2023 recent projects of the magazine(Vol. 501).
February 2023 : vol. 501
Contents : NEWS / COMPETITION / BOOKS : SKETCH Things that make a day in your daily life / Hossain mousavi 일상 속에서 하루를 만드는 것들 / 호사인 무사비 : RECENT PROJECT Building of Music / Aisaka Architects’ Atelier 음악 복합공
anc.masilwide.com
'Architecture Project > Other' 카테고리의 다른 글
| BUS TERMINAL SLAVONSKI BROD (0) | 2023.04.26 |
|---|---|
| Glowing Bicycle Station in Bergamo (0) | 2023.04.25 |
| Oostende station (0) | 2023.04.21 |
| Cakra Selaras Wahana Station (0) | 2023.04.21 |
| The World’s Biggest Bicycle Parking (0) | 2023.04.20 |
마실와이드 | 등록번호 : 서울, 아03630 | 등록일자 : 2015년 03월 11일 | 마실와이드 | 발행ㆍ편집인 : 김명규 | 청소년보호책임자 : 최지희 | 발행소 : 서울시 마포구 월드컵로8길 45-8 1층 | 발행일자 : 매일



