
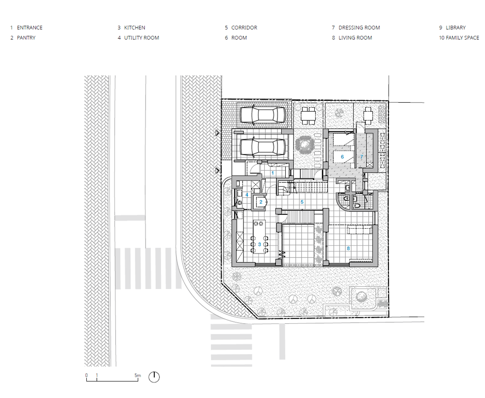
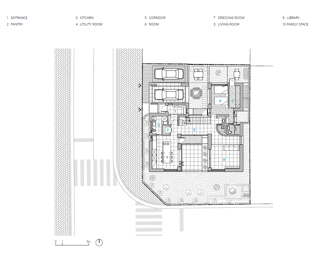
에이치 하우스는 미국의 초기 모더니즘 건축가 루이스 설리번(Louis H. Sullivan)의 “형태는 기능을 따른다”는 건축 철학에 입각하여 계획됐다. 건축가는 공간마다 시선이 변화하는 것과 공간이 지속적으로 확장되는 것을 의도하며, 중정을 중심으로 상층부와 하층부, 남측과 북측의 공간이 분리됨과 동시에 통로를 통해 연속적으로 이어지도록 공간을 구성했다. 인접 주택으로부터 프라이버시를 보호하기 위해 앞마당과 앞뒤의 중정을 갖는 ‘H’자형 평면을 구성했다. 폭이 좁은 중앙부의 공간에는 계단부 및 통로를 설치하여 두 중정을 나누는 중심을 만들고 외부 투시에 대한 부담감을 줄였다. 전면부 중정과 현관 진입로 상부의 분리된 두 공간은 영롱벽돌쌓기 벽이 연결하여 직사광선을 거르고 전이적 공간을 만들어낸다.
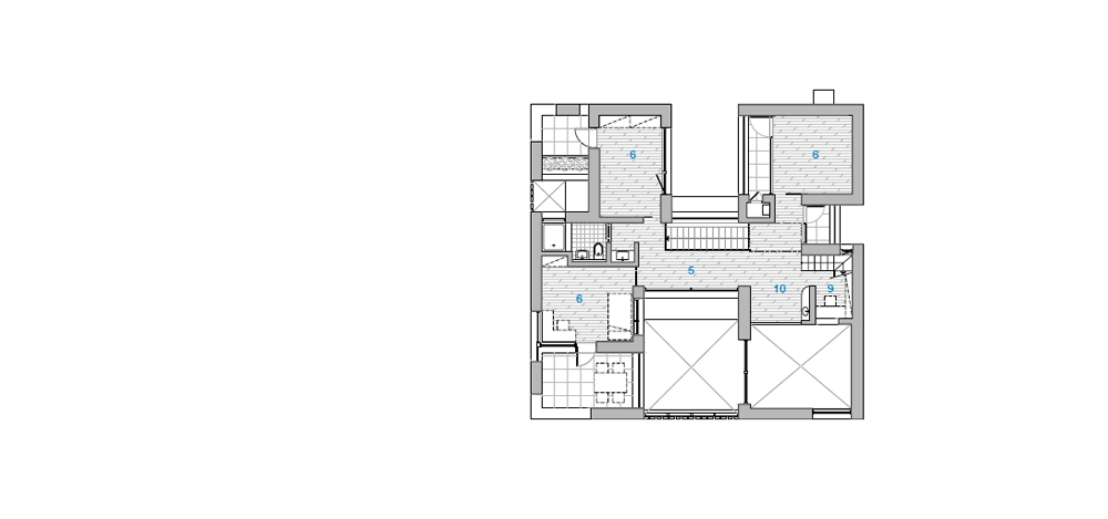
건축가는 실내에 머무르는 시간이 긴 내부 사용자의 만족도에 초점을 맞춰 건축적 전략을 전개했다. 건축주의 선호에 따라 거실과 주방이 명확하게 분리된 구조를 선택했다. 1층 남측부에 주방과 거실 등 공용공간을 배치 하고, 북측에 안방을 포함한 개인공간을 확보했다. 각각의 층은 가족들을 위한 공간과 게스트를 위한 공간으로 구분되며, 옥상은 취미 겸 다목적 공간의 기능을 한다.















건축가 티지엘 아틀리에 아키텍츠 + 씨앤유건축사사무소
위치 세종특별자치시 만남1북로 58
용도 단독주택
대지면적 347.50㎡
건축면적 130.76㎡
연면적 190.19㎡
건폐율 37.63%
용적률 54.73%
규모 지상2층, 다락층
건물높이 9.60m
주차대수 2대
설계기간 2021.1. - 2022.4.
시공기간 2022.5. - 2023.1.
대표건축가 엄준식, 이택구
시공 서진플랜건축
인테리어 정다은
사진작가 윤홍로
해당 프로젝트는 건축문화 2023년 6월호(Vol. 505)에 게재되었습니다.
The project was published in the June, 2023 recent projects of the magazine(Vol. 505).
June 2023 : vol. 505
Contents : Records ‘Design Competition’, Seoul’s Dreams to Have a Global Urbanscape 서울시, ‘디자인 공모’ 첫 도입, 세계적인 도시경관을 꿈꾸다 <SKY PROJECT> Pavilion, Open to the Seoul <하늘소所>, 서울을 향
anc.masilwide.com
'Architecture Project > Single Family' 카테고리의 다른 글
| HOUSE CONNECTED BY COURTYARD (0) | 2023.09.11 |
|---|---|
| HOUSE IN ABENO (0) | 2023.09.11 |
| COPPER-BROWN HOUSE (0) | 2023.09.06 |
| INNER GARDEN HOUSE (0) | 2023.09.06 |
| CAMPout (0) | 2023.09.05 |
마실와이드 | 등록번호 : 서울, 아03630 | 등록일자 : 2015년 03월 11일 | 마실와이드 | 발행ㆍ편집인 : 김명규 | 청소년보호책임자 : 최지희 | 발행소 : 서울시 마포구 월드컵로8길 45-8 1층 | 발행일자 : 매일



