
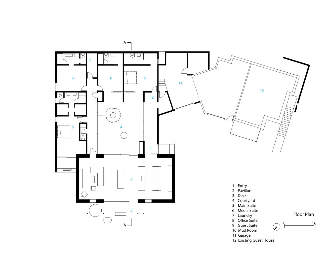
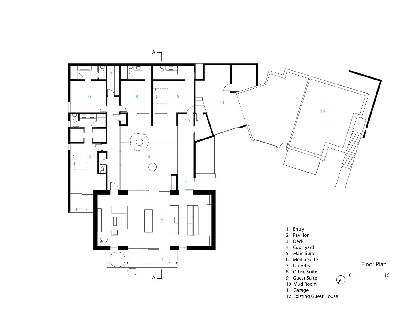
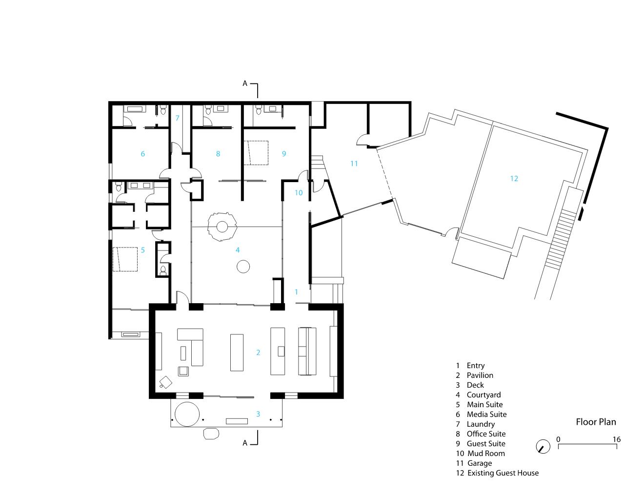
캠프아웃 산장은 샌프란시스코의 시에라 네바다 산맥의 타호 호수 근처에 세워진 주거공간 이다. 대지는 100년 된 제프리 소나무들과 마티스 계곡 근처로 룩아웃 산 아래 북쪽으로 내려오는 경사면이다. 집은 땅에 묻힌 것처럼 보인다. 기후 변화로 산불 사건의 발생률과 규모가 증가하고 개발과 함께 야생 경관 접근성에 따라, 건축가는 재난에 견딜 수 있는 건설 시스템과 재료에 대한 해결책을 제시해야 했다. 그래서 캠프아웃 산장은 녹슨 솔잎을 집의 바닥으로 삼고 현무암 바위가 널린 주변 환경과 어울리는 소재를 집의 주요 외장재로 마감되어 있다. 쉽게 가연되는 자연이 도처에 널려있기 때문에 집의 내부 중정쪽으로만 유리를 사용하여 차이점을 두었다.
주요 공간은 사생활 보호를 위하여 땅으로 감싸져 있다. 가족모임 공간은 안마당과 주변 경치를 연결하는 작은 열린 공간으로 대체했다. 얇은 철제 지붕은 솟아올라 남쪽으로 태양열을 받는다. 벽은 이중 콘크리트 벽 사이에 발포 단열재를 넣는 방식으로 만들어졌다. 지붕과 콘크리트 벽 사이의 삼각형 공간은 깨끗한 층 창문으로 둘러싸여 있다. 콘크리트와 강철 새시 강화 창문의 재질은 내화 장벽을 형성한다. 검게 칠해진 강철 외관과 달리 뜰 주변의 유리로 된 출입구는 잠자는 방과 누각을 안뜰로 연결하고 캠프장처럼 불을 뿜는다. 가구는 동일한 재료와 음색을 공유하여 빛나는 풍경을 공명시킬 수 있는 조용한 존재감을 더욱 강화한다.













건축가 포크너 아키텍츠
위치 미국, 캘리포니아, 타호호
용도 주거시설
대표건축가 Gregory Faulkner
프로젝트건축가 Christian Carpenter
프로젝트매거진 Jenna Shropshire
디자인팀 Gregory Faulkner, Christian Carpenter, Jenna Shropshire, Ann Darby
인테리어 NICOLEHOLLIS
감리 Webb Land Surveying, Inc.
구조엔지니어 CFBR Structural Group
기계전기설비엔지니어 Sugarpine Engineering
토목엔지니어 Shaw Engineering
지질공학전문가 Nortech Geotechnical Consultants
시공 Jim Morrison Construction
사진작가 Joe Fletcher
해당 프로젝트는 건축문화 2023년 6월호(Vol. 505)에 게재되었습니다.
The project was published in the June, 2023 recent projects of the magazine(Vol. 505).
June 2023 : vol. 505
Contents : Records ‘Design Competition’, Seoul’s Dreams to Have a Global Urbanscape 서울시, ‘디자인 공모’ 첫 도입, 세계적인 도시경관을 꿈꾸다 <SKY PROJECT> Pavilion, Open to the Seoul <하늘소所>, 서울을 향
anc.masilwide.com
'Architecture Project > Single Family' 카테고리의 다른 글
| COPPER-BROWN HOUSE (0) | 2023.09.06 |
|---|---|
| INNER GARDEN HOUSE (0) | 2023.09.06 |
| HOUSE OS (0) | 2023.09.05 |
| BAY WINDOW TOWER HOUSE (0) | 2023.09.05 |
| House with some distance (0) | 2023.09.04 |
마실와이드 | 등록번호 : 서울, 아03630 | 등록일자 : 2015년 03월 11일 | 마실와이드 | 발행ㆍ편집인 : 김명규 | 청소년보호책임자 : 최지희 | 발행소 : 서울시 마포구 월드컵로8길 45-8 1층 | 발행일자 : 매일



